Maison à construire à Saint-Yvi (29140)
Images
Description
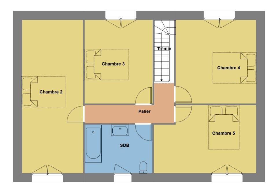
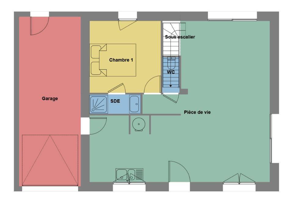
VENTE : maison de 6 pièces (135 m²) à Saint-Yvi
CENTRE-VILLE - MAISON 6 PIÈCES NEUVE
À vendre à 10 km de l'océan Atlantique et à 13 km de Quimper, nous sommes heureux de vous présenter, dans le centre-ville de Saint-Yvi (29140), cette maison de 6 pièces de 135 m².
C'est une maison de 2 niveaux. Son intérieur inclut cinq chambres, une cuisine et deux salles de bains.
Il est proposé à l'achat pour 386 000 €.
N'hésitez pas à prendre contact avec Mathieu DEROUET ((Numéro supprimé)) pour tout renseignement sur la maison ou sur les modalités de vente. Maisons de l'Avenir Quimper est là pour vous accompagner dans tous vos projets immobiliers.
Logement susceptibles de vous intéresser
Nous vous proposons de découvrir aussi cette sélection de logements situés à moins de 10km de Saint-Yvi et qui seraient susceptibles de vous intéresser.
Ergué-Gabéric
TERRAINDEVENEZ PROPRIÉTAIRE D’UN TERRAIN À ERGUÉ-GABÉRIC !Vivez dans un cadre de vie privilégié à Ergué-Gabéric, charmante commune du Finistère, à proximité immédiate de Quimper, des commerces, écoles et services.Profitez du calme de la campagne tout en restant proche de toutes les commodités – un environnement idéal pour votre futur projet immobilier ! Votre terrain comprendo Surface de 390 m², bien orientéeo Possibilité de construire la maison de vos rêves selon vos envies Les atouts du projeto Terrain viabilisé ou proche des réseauxo Cadre de vie paisible, proche de Quimper et du littoral sudo Liberté de construction, plan personnalisable selon vos besoins Prix indiqué hors frais Photos non contractuelles – à titre d’illustration Accession possible avec ou sans apportNe manquez pas cette opportunité unique de devenir propriétaire d’un terrain à Ergué-Gabéric et de concrétiser votre projet sur-mesure ! Contactez-nous dès maintenant pour plus d’informations et étudier votre projet personnalisé.
Elliant
TERRAINDEVENEZ PROPRIÉTAIRE D’UN TERRAIN À ELLIANT !Vivez dans un cadre de vie privilégié à Elliant, charmante commune du Finistère, à proximité des commerces, écoles et services, tout en profitant du calme de la campagne.Un environnement idéal pour construire la maison de vos rêves et réaliser votre projet sur-mesure ! Votre terrain comprendo Surface de 316 m², bien orientéeo Possibilité de construire la maison de vos rêves selon vos envies Les atouts du projeto Terrain viabilisé ou proche des réseauxo Cadre de vie paisible, proche des axes principauxo Liberté de construction, plan personnalisable selon vos besoins Prix indiqué hors frais Photos non contractuelles – à titre d’illustration Accession possible avec ou sans apportNe manquez pas cette opportunité unique de devenir propriétaire d’un terrain à Elliant et de concrétiser votre projet personnalisé ! Contactez nous dès maintenant pour plus d’informations et étudier votre projet sur-mesure.
Melgven
TERRAIN ET MAISONDEVENEZ PROPRIÉTAIRE À MELGVEN – MAISON NEUVE RE2020 SUR-MESUREOffrez-vous un cadre de vie idéal à Melgven, charmante commune du sud Finistère, située entre Concarneau et Rosporden, à seulement quelques minutes des plages et du littoral.Profitez d’un environnement calme et verdoyant, tout en restant proche des commerces, écoles et services — un lieu de vie parfait pour votre famille ou votre premier achat. Votre future maison comprendo 3 chambres spacieuses et lumineuseso Un grand salon-séjour traversant, ouvert sur le jardino Une cuisine moderne et fonctionnelleo Salle de bain et WC séparéso Le tout sur un terrain de 471 m², bien exposé et facile à aménager Les atouts du projeto Maison neuve RE2020, à faible consommation d’énergieo Plan personnalisable selon vos besoins et vos envieso Emplacement idéal entre campagne et littoral, proche de Concarneauo Prestations de qualité et finitions soignéeso Accès rapide à la voie express et aux commodités locales Prix indiqué hors frais Photos non contractuelles à titre d’illustration Accession à la propriété possible avec ou sans apportNe manquez pas cette belle opportunité de devenir propriétaire d’une maison neuve, moderne et économique à Melgven ! Contactez-nous dès maintenant pour découvrir les plans et étudier votre projet personnalisé.
Saint-Évarzec
TERRAINDEVENEZ PROPRIÉTAIRE D’UN TERRAIN À SAINT-EVARZEC !Vivez dans un cadre de vie privilégié à Saint-Evarzec, charmante commune du Sud-Finistère, idéalement située entre Quimper et le littoral sud.Profitez du calme de la campagne, tout en restant proche des commerces, écoles et services – un environnement idéal pour votre futur projet ! Votre terrain comprend 😮 Une surface de 390 m², bien orientéeo Possibilité de construire la maison de vos rêves selon vos envies Les atouts du projet 😮 Terrain viabilisé ou proche des réseaux (à préciser selon le lot)o Cadre de vie paisible, proche des commodités et du littoralo Liberté de construction, avec plan personnalisable selon vos besoins Prix indiqué hors frais Photos non contractuelles à titre d’illustration Accession possible avec ou sans apportNe manquez pas cette opportunité unique de devenir propriétaire d’un terrain à Saint-Evarzec et de réaliser votre projet sur-mesure ! Contactez-nous dès maintenant pour plus d’informations et étudier votre projet.
Concarneau
TERRAINDEVENEZ PROPRIÉTAIRE D’UN TERRAIN À CONCARNEAU !Vivez dans un cadre de vie privilégié à Concarneau, ville dynamique du Sud-Finistère, idéalement située entre Quimper et Lorient, à proximité du littoral.Profitez du calme urbain tout en restant proche des commerces, écoles et services, ainsi que des plages – un environnement idéal pour votre futur projet ! Votre terrain comprend 😮 Une surface de 408 m², bien orientéeo Possibilité de construire la maison de vos rêves selon vos envies Les atouts du projet 😮 Terrain viabilisé ou proche des réseauxo Cadre de vie pratique et proche du littoralo Liberté de construction, avec plan personnalisable selon vos besoins Prix indiqué hors frais Photos non contractuelles à titre d’illustration Accession possible avec ou sans apportNe manquez pas cette opportunité unique de devenir propriétaire d’un terrain à Concarneau et de réaliser votre projet sur-mesure ! Contactez-nous dès maintenant pour plus d’informations et étudier votre projet.
Saint-Yvi
TERRAINSaint-Yvi : terrain de 398 m² à vendrePROCHE CENTRE-VILLE – PROCHE DE QUIMPERÀ Saint-Yvi (29140) à vendre à 10 km de la côte atlantique et à deux pas de Quimper, imaginez la maison de vos rêves sur ce terrain de 398 m². Il se trouve non loin du centre-ville. Il est à vendre pour la somme de 46 000 €. Contactez notre agence (Mathieu DEROUET : (Numéro supprimé)) pour plus d’informations sur ce terrain ou sur les modalités de vente. Maisons de l’Avenir Quimper vous accompagne dans tous vos projets immobiliers et à toutes les étapes de l’achat.
Saint-Yvi
TERRAIN ET MAISONVENTE : maison F4 (105 m²) à Saint-YviPROCHE CENTRE-VILLE – MAISON 4 PIÈCES NEUVEÀ vendre : sur le littoral atlantique et à deux pas de Quimper, nous sommes ravis de vous présenter, proche du centre-ville de Saint-Yvi (29140), cette maison de 4 pièces de 105 m².C’est une maison de 2 niveaux. Son intérieur comporte quatre chambres, une cuisine et deux salles de bains. Elle est à vendre pour la somme de 310 500 €.Contactez Mathieu DEROUET ((Numéro supprimé)) pour obtenir de plus amples renseignements sur le bien ou sur les modalités de vente.
Saint-Yvi
TERRAIN ET MAISONSaint-Yvi : maison de 4 pièces (100 m²) en ventePROCHE CENTRE-VILLE – MAISON 4 PIÈCES NEUVEÀ vendre sur le littoral atlantique et à 13 km de Quimper, nous vous présentons cette maison de 4 pièces de 100 m² proche du centre-ville de Saint-Yvi (29140). Son intérieur inclut trois chambres, une cuisine et deux salles de bains.Le terrain de la propriété s’étend sur 398 m².C’est une maison de 2 niveaux.Elle est proposée à l’achat pour 299 500 €.Contactez notre agence (DEROUET Mathieu : (Numéro supprimé)) pour plus de renseignements sur la maison, sur les démarches à suivre et sur les modalités de vente.
Saint-Yvi
TERRAIN ET MAISONMaison T4 (90 m²) à vendre à Saint-YviPROCHE CENTRE-VILLE – MAISON 4 PIÈCES NEUVEEn vente : à 10 km de la côte atlantique et à deux pas de Quimper, proche du centre-ville de Saint-Yvi (29140), laissez vous charmer par cette maison de 4 pièces de 90 m².C’est une maison de 2 niveaux. Son intérieur dispose de trois chambres, d’une cuisine et de deux salles de bains. Elle est à vendre pour la somme de 277 500 €.N’hésitez pas à prendre contact avec notre agence (Mathieu DEROUET : (Numéro supprimé)) pour toute information sur la propriété, sur les démarches à suivre ou sur les modalités de vente. Maisons de l’Avenir Quimper vous accompagne à toutes les étapes de votre projet et dans tous vos projets immobiliers.
L’actualité immobilière à Saint-Yvi
27/11/2023
02/11/2023
30/10/2023
20/10/2023
16/10/2023
16/10/2023