Maison à construire à Saint-Yvi (29140)
Images
Description
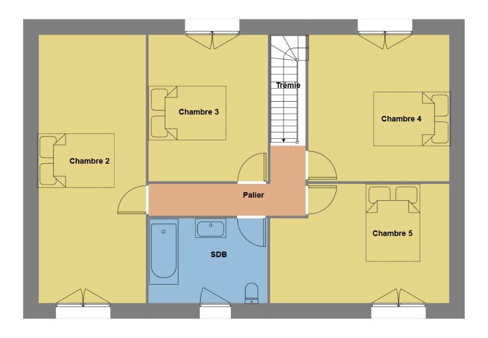
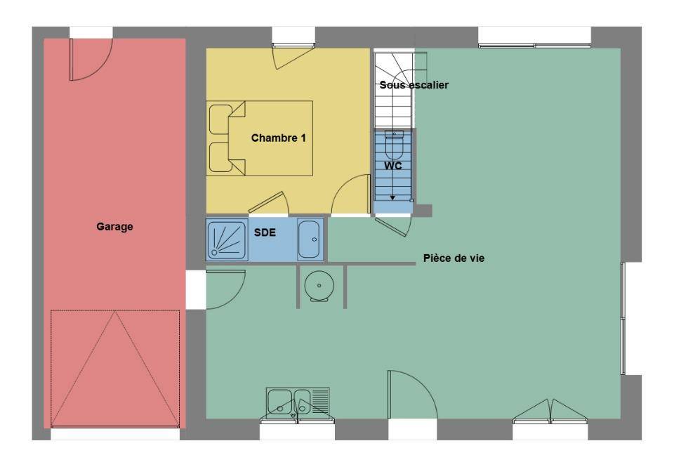
Maison F6 (120 m²) à vendre à Saint-Yvi
PROCHE DE QUIMPER - MAISON 6 PIÈCES NEUVE
En vente : située à 10 km de la côte atlantique et à 13 km de Quimper, nous sommes ravis de vous présenter à Saint-Yvi (29140), cette maison de 6 pièces de 120 m². Elle se divise en cinq chambres, une cuisine et deux salles de bains.
Le terrain du bien est de 505 m².
Il s'agit d'une maison de 2 niveaux.
Elle est à vendre pour la somme de 358 000 €.
Contactez notre agence (DEROUET Mathieu : (Numéro supprimé)) pour toute information sur cette maison, sur les modalités de vente ou sur les démarches à suivre. Maisons de l'Avenir Quimper est là pour vous accompagner à toutes les étapes de votre projet.
Logement susceptibles de vous intéresser
Nous vous proposons de découvrir aussi cette sélection de logements situés à moins de 10km de Saint-Yvi et qui seraient susceptibles de vous intéresser.
Saint-Yvi
TERRAINSaint-Yvi : terrain de 505 m² à vendrePROCHE CENTREÀ 10 km de la côte atlantique et à deux pas de Quimper à Saint-Yvi (29140), grand terrain. Gare de Rosporden à moins de 10 minutes en voiture. On trouve un accès à la nationale N165 à 6 km. Il est à vendre pour la somme de 59 000 €. Prenez contact avec Mathieu DEROUET (tél : (Numéro supprimé)) pour toute information sur le terrain, sur les démarches à suivre ou sur les modalités de vente.
Saint-Yvi
TERRAIN ET MAISONMaison T4 (70 m²) en vente à Saint-YviMAISON 4 PIÈCES NEUVE – PROCHE DE QUIMPERÀ vendre : à 10 km de la côte atlantique et à quelques kilomètres de Quimper, Maisons de l’Avenir Quimper vous propose à Saint-Yvi (29140), cette maison de 4 pièces de 70 m² et de 505 m² de terrain.C’est une maison de 2 niveaux. Son intérieur est composé de trois chambres, d’une cuisine et d’une salle de bains. Son prix de vente est de 226 000 €.Prenez contact avec Mathieu DEROUET (tél : (Numéro supprimé)) pour plus de renseignements sur cette maison, sur les démarches à suivre ou sur les modalités de vente. Faites de vos projets immobiliers une réalité avec Maisons de l’Avenir Quimper.
Saint-Yvi
TERRAIN ET MAISONMaison de 4 pièces (140 m²) à vendre à Saint-YviMAISON 4 PIÈCES NEUVE – PROCHE DE QUIMPEREn vente : à 10 km de la côte atlantique et à 13 km de Quimper, nous sommes heureux de vous proposer cette maison de 4 pièces de 140 m² à Saint-Yvi (29140). Son intérieur propose quatre chambres, une cuisine et deux salles de bains.Le terrain de la propriété est de 505 m².Il s’agit d’une maison de 2 niveaux. Elle est à vendre pour la somme de 402 000 €.Contactez notre agence (Mathieu DEROUET : (Numéro supprimé)) pour tout renseignement sur cette maison. Maisons de l’Avenir Quimper vous accompagne dans tous vos projets immobiliers et à toutes les étapes de votre projet.
Saint-Yvi
TERRAIN ET MAISONMaison F6 (120 m²) à vendre à Saint-YviPROCHE DE QUIMPER – MAISON 6 PIÈCES NEUVEEn vente : située à 10 km de la côte atlantique et à 13 km de Quimper, nous sommes ravis de vous présenter à Saint-Yvi (29140), cette maison de 6 pièces de 120 m². Elle se divise en cinq chambres, une cuisine et deux salles de bains.Le terrain du bien est de 505 m².Il s’agit d’une maison de 2 niveaux. Elle est à vendre pour la somme de 358 000 €.Contactez notre agence (DEROUET Mathieu : (Numéro supprimé)) pour toute information sur cette maison, sur les modalités de vente ou sur les démarches à suivre. Maisons de l’Avenir Quimper est là pour vous accompagner à toutes les étapes de votre projet.
Saint-Yvi
TERRAIN ET MAISONSaint-Yvi : maison F3 (95 m²) à vendrePROCHE DE QUIMPER – MAISON 3 PIÈCES NEUVEEn vente : sur le littoral atlantique et à 13 km de Quimper, nous sommes heureux de vous proposer cette maison de 3 pièces de plain-pied de 95 m² à Saint-Yvi (29140). Son intérieur offre trois chambres, une cuisine et une salle de bains.Le terrain de la propriété s’étend sur 505 m².Elle est à vendre pour la somme de 303 000 €.Prenez contact avec notre agence (DEROUET Mathieu : (Numéro supprimé)) pour plus d’informations sur la maison, sur les modalités de vente et sur les démarches à suivre.
Saint-Yvi
TERRAIN ET MAISONMaison de 4 pièces (85 m²) en vente à Saint-YviMAISON 4 PIÈCES OSSATURE BOIS – PROCHE DE QUIMPERÀ vendre à 10 km de la côte atlantique et à 13 km de Quimper, venez découvrir à Saint-Yvi (29140), cette maison de 4 pièces de plain-pied de 85 m² et de 505 m² de terrain.Son intérieur se divise en trois chambres, une cuisine et une salle de bains.Son prix de vente est de 279 300 €.Prenez contact avec Mathieu DEROUET (tél : (Numéro supprimé)) pour toute information sur ce bien ou sur les modalités de vente.
Pleuven
TERRAINTerrain de 379 m² à vendre à PleuvenPROCHE DE QUIMPERTerrain de 379 m² à 7 km de l’océan Atlantique et à deux pas de Quimper. Ce terrain se situe dans Pleuven (29170). Il est proposé à l’achat pour 95 000 €. Contactez Mathieu DEROUET ((Numéro supprimé)) pour toute question sur ce terrain ou sur les modalités de vente.
Pleuven
TERRAIN ET MAISONPleuven : maison de 4 pièces (75 m²) à vendrePROCHE DE QUIMPER – MAISON 4 PIÈCES NEUVEEn vente sur le littoral atlantique et à deux pas de Quimper, notre agence Maisons de l’Avenir Quimper est heureuse de vous proposer cette maison de 4 pièces de 75 m² et de 379 m² de terrain à Pleuven (29170). Son intérieur est composé de trois chambres, d’une cuisine et d’une salle de bains.Il s’agit d’une maison de 2 niveaux. Elle est proposée à l’achat pour 267 500 €.Prenez contact avec Mathieu DEROUET ((Numéro supprimé)) pour tout renseignement sur la maison. Maisons de l’Avenir Quimper est là pour vous accompagner à toutes les étapes de votre projet.
Pleuven
TERRAIN ET MAISONMaison T4 (85 m²) en vente à PleuvenMAISON 4 PIÈCES NEUVE – PROCHE DE QUIMPEREn vente : à 7 km de la côte atlantique et à deux pas de Quimper, à Pleuven (29170), laissez vous charmer par cette maison de 4 pièces de plain-pied de 85 m². Conçue de plain-pied, elle est composée de trois chambres, d’une cuisine et d’une salle de bains.Le terrain de la propriété s’étend sur 379 m².Elle est proposée à l’achat pour 312 000 €.Prenez contact avec notre agence (Mathieu DEROUET : (Numéro supprimé)) pour toute information sur cette propriété ou sur les modalités de vente.
L’actualité immobilière à Saint-Yvi
27/11/2023
02/11/2023
30/10/2023
20/10/2023
16/10/2023
16/10/2023