Maison à construire à Saint-Yvi (29140)
Images
Description
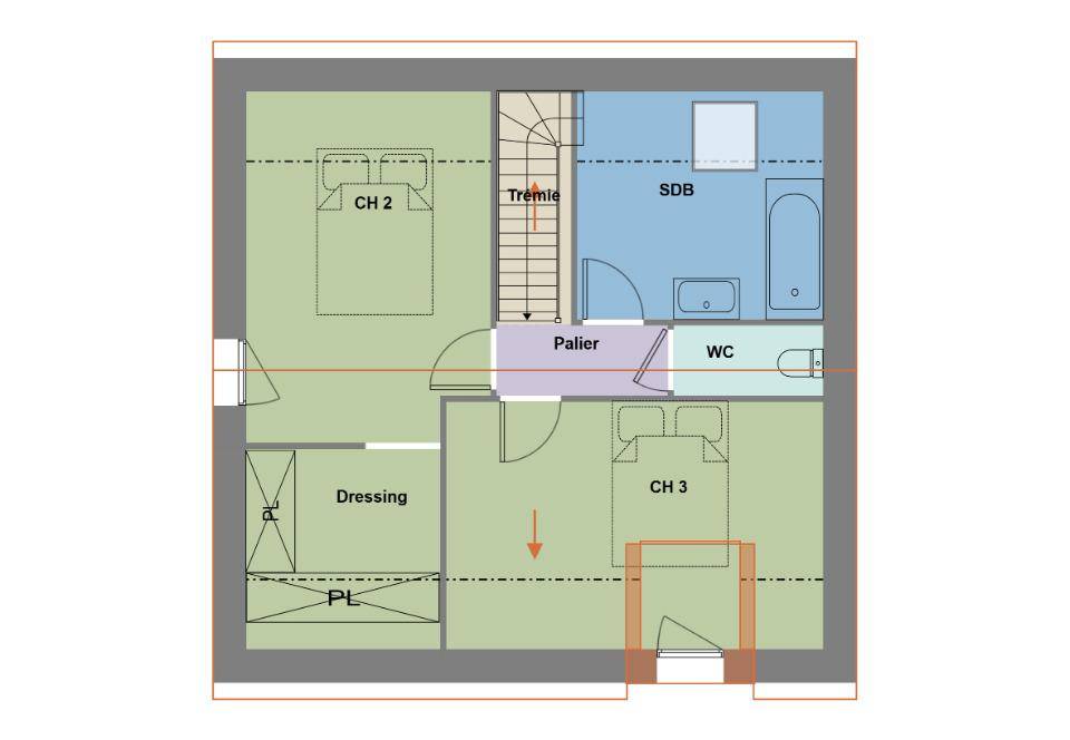
Maison de 4 pièces (95 m²) en vente à Saint-Yvi
PROCHE CENTRE-VILLE - MAISON 4 PIÈCES NEUVE
En vente à 10 km de la côte atlantique et à 13 km de Quimper, notre agence Maisons de l'Avenir Quimper est heureuse de vous présenter cette maison de 4 pièces de 95 m² proche du centre-ville de Saint-Yvi (29140).
C'est une maison de 2 niveaux. Son intérieur offre trois chambres, une cuisine et deux salles de bains.
Il est à vendre pour la somme de 290 000 €.
Contactez notre agence (DEROUET Mathieu : (Numéro supprimé)) pour toute information sur la maison. Donnez vie à vos projets immobiliers avec Maisons de l'Avenir Quimper.
Logement susceptibles de vous intéresser
Nous vous proposons de découvrir aussi cette sélection de logements situés à moins de 10km de Saint-Yvi et qui seraient susceptibles de vous intéresser.
Pleuven
TERRAIN ET MAISONMaison de 4 pièces (75 m²) à vendre à PleuvenPROCHE CENTRE-VILLE – MAISON 4 PIÈCES NEUVEEn vente à 7 km de l’océan Atlantique et à 10 km de Quimper, notre agence Maisons de l’Avenir Pont-l’Abbé est ravie de vous proposer cette maison de 4 pièces de 75 m² et de 379 m² de terrain proche du centre-ville de Pleuven (29170).Cette maison comporte 2 niveaux. Son intérieur compte trois chambres, une cuisine et une salle de bains.Elle est proposée à l’achat pour 282 500 €.N’hésitez pas à prendre contact avec notre agence (DEROUET Mathieu : (Numéro supprimé)) pour toute information sur le bien, sur les démarches à suivre ou sur les modalités de vente. Maisons de l’Avenir Pont-l’Abbé est là pour vous accompagner à toutes les étapes de l’achat.
Pleuven
TERRAINPleuven : terrain de 450 m² en ventePROCHE CENTRE-VILLE – PROCHE DE QUIMPERÀ Pleuven (29170) à 7 km de l’océan Atlantique et à 10 km de Quimper, imaginez la maison de vos rêves sur ce terrain de 450 m². Il se trouve non loin du centre-ville. Il est proposé à l’achat pour 113 000 €. N’hésitez pas à prendre contact avec notre agence (DEROUET Mathieu : (Numéro supprimé)) pour plus de renseignements sur ce terrain ou sur les démarches à suivre. Faites de vos projets immobiliers une réalité avec Maisons de l’Avenir Pont-l’Abbé.
Pleuven
TERRAIN ET MAISONMaison de 4 pièces (95 m²) à vendre à PleuvenPROCHE CENTRE-VILLE – MAISON 4 PIÈCES NEUVEEn vente : à 7 km de l’océan Atlantique et à 10 km de Quimper, découvrez cette maison de 4 pièces de 95 m² et de 450 m² de terrain proche du centre-ville de Pleuven (29170). Son intérieur comporte trois chambres, une cuisine et deux salles de bains.Cette maison possède 2 niveaux. Elle est à vendre pour la somme de 352 000 €.N’hésitez pas à prendre contact avec Mathieu DEROUET ((Numéro supprimé)) pour toute information sur la maison, sur les modalités de vente ou sur les démarches à suivre.
Elliant
TERRAIN ET MAISONDEVENEZ PROPRIÉTAIRE À ELLIANT – MAISON NEUVE conforme à la dernière norme basse consommation RE-2020 !Vivez dans un cadre de vie privilégié à Elliant, commune appréciée du Finistère pour son calme, son environnement naturel et sa proximité avec les commerces, les services et les écoles. Un lieu idéal pour accueillir votre famille dans un cadre serein et agréable !Votre future maison comprend 😮 3 chambres spacieuses et lumineuseso Un grand salon-séjour traversant ouvert sur le jardino Une cuisine moderne et fonctionnelleo Salle de bain et WC séparésLes atouts du projet 😮 Maison neuve RE2020, à faible consommation d’énergieo Plan personnalisable selon vos besoinso Environnement calme et familialo Prestations de qualité, finitions soignéesCe projet s’implante sur un terrain idéalement situé à Elliant, d’environ 438 m² (surface selon disponibilité des partenaires fonciers).Accession à la propriété possible avec ou sans apport, étude de financement gratuite.Photos à titre d’illustration (photos d’une de nos réalisations – non contractuelles).Nous trouvons l’adresse idéale parmi un large choix de terrains disponibles pour votre future demeure.Ne manquez pas cette belle opportunité de devenir propriétaire d’une maison neuve moderne et économique à Elliant !Contactez-nous dès maintenant pour découvrir les plans et étudier votre projet personnalisé.Armorique Immos, franchise d’un constructeur national de maisons individuelles depuis plus de 40 ans, propose en collaboration avec ses partenaires fonciers une sélection de terrains constructibles, selon disponibilité, pour la construction de maisons neuves définies par le constructeur, avec un contrat de construction de maison individuelle, dans le cadre de la loi du 19/12/1990.Prix net, hors frais notariés, d’enregistrement et de publicité foncière.Étude financière réalisée par nos partenaires en courtage (IOSB inscrit à l’Orias).
Pleuven
TERRAIN ET MAISONMaison de 4 pièces (85 m²) à vendre à PleuvenPROCHE CENTRE-VILLE – MAISON 4 PIÈCES NEUVEEn vente à 7 km de la côte atlantique et à quelques kilomètres de Quimper, découvrez cette maison de 4 pièces de plain-pied de 85 m² proche du centre-ville de Pleuven (29170).Elle compte trois chambres, une cuisine et une salle de bains. Elle est proposée à l’achat pour 330 000 €.N’hésitez pas à prendre contact avec notre agence (Mathieu DEROUET : (Numéro supprimé)) pour tout renseignement sur la maison, sur les démarches à suivre et sur les modalités de vente.
Pleuven
TERRAIN ET MAISONVENTE d’une maison de 6 pièces (145 m²) à PleuvenPROCHE CENTRE-VILLE – MAISON 6 PIÈCES NEUVEÀ 7 km de l’océan Atlantique et à quelques kilomètres de Quimper, nous vous présentons cette maison de 6 pièces de 145 m² à vendre proche du centre-ville de Pleuven (29170).Cette maison possède 2 niveaux. Elle propose cinq chambres, une cuisine et deux salles de bains. Son prix de vente est de 462 000 €.N’hésitez pas à prendre contact avec notre agence (DEROUET Mathieu : (Numéro supprimé)) pour toute question sur la maison.
Pleuven
TERRAIN ET MAISONVENTE : maison T4 (90 m²) à PleuvenPROCHE CENTRE-VILLE – MAISON 4 PIÈCES NEUVEÀ vendre : à 7 km de la côte atlantique et à 10 km de Quimper, nous sommes heureux de vous proposer cette maison de 4 pièces de plain-pied de 90 m², proche du centre-ville de Pleuven (29170). Elle propose trois chambres, une cuisine et une salle de bains.Le terrain de cette maison est de 379 m².Il est proposé à l’achat pour 323 000 €.Contactez notre agence (DEROUET Mathieu : (Numéro supprimé)) pour obtenir de plus amples informations sur la maison et sur les démarches à suivre. Maisons de l’Avenir Pont-l’Abbé vous accompagne à toutes les étapes de votre projet et dans tous vos projets immobiliers.
Pleuven
TERRAIN ET MAISONVENTE d’une maison T5 (125 m²) à PleuvenPROCHE CENTRE-VILLE – MAISON 5 PIÈCES NEUVEEn vente à 7 km de la côte atlantique et à 10 km de Quimper, proche du centre-ville de Pleuven (29170), venez découvrir cette maison de 5 pièces de 125 m² et de 379 m² de terrain. Elle compte quatre chambres, une cuisine et deux salles de bains.Cette maison comporte 2 niveaux. Elle est proposée à l’achat pour 400 000 €.N’hésitez pas à prendre contact avec notre agence (DEROUET Mathieu : (Numéro supprimé)) pour plus d’informations sur la maison, sur les démarches à suivre ou sur les modalités de vente. Maisons de l’Avenir Pont-l’Abbé est là pour vous accompagner dans tous vos projets immobiliers.
Pleuven
TERRAINVENTE : terrain de 379 m² à PleuvenPROCHE CENTRE-VILLE – PROCHE DE QUIMPERÀ vendre à 7 km de l’océan Atlantique et à deux pas de Quimper à Pleuven (29170), terrain de 379 m². Réalisez-y votre projet immobilier. Il se trouve non loin du centre-ville. Il est à vendre pour la somme de 95 000 €. N’hésitez pas à prendre contact avec notre agence (DEROUET Mathieu : (Numéro supprimé)) pour obtenir de plus amples renseignements sur ce terrain, sur les démarches à suivre et sur les modalités de vente. Maisons de l’Avenir Pont-l’Abbé vous accompagne à toutes les étapes de l’achat et dans tous vos projets immobiliers.
L’actualité immobilière à Saint-Yvi
27/11/2023
02/11/2023
30/10/2023
20/10/2023
16/10/2023
16/10/2023