Maison à construire à Taulé (29670)
Images
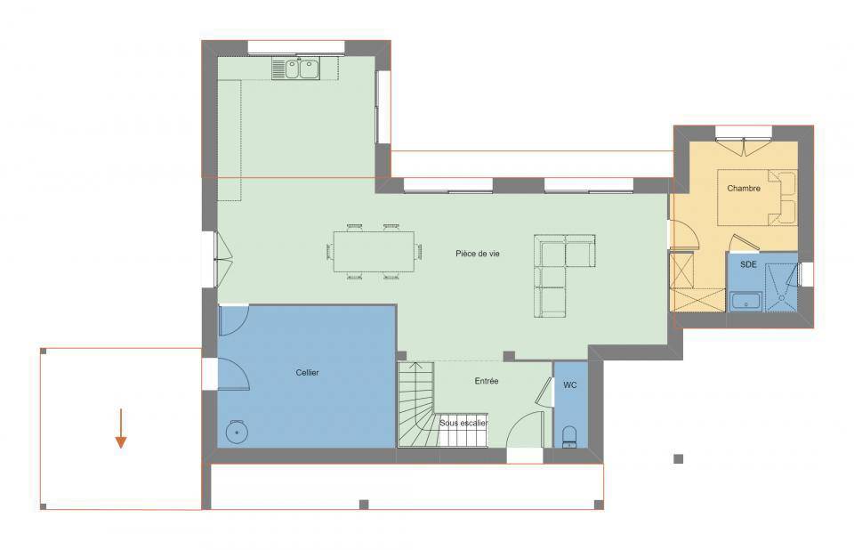
Description
Maison F5 (140 m²) en vente à Taulé
Cette belle maison traditionnelle aux lignes contemporaines offre 140 m² habitable . Au rez-de-chaussée, elle dispose d'une belle pièce de vie offrant un maximum de lumière, d'une grande suite parentale avec sa salle d'eau, d'un wc et d'un très grand cellier. A l'étage on retrouve 3 chambres, une salle de bains, et un WC. L'orientation de cette maison vous permettra de bénéficier d'un maximum de lumière et de chaleur naturelle pour davantage d'économies et de douceur de vivre.
Elle est à vendre pour la somme de 439 000 €.
Prenez contact avec notre agence (Aurélie CAGNARD : (Numéro supprimé)) pour toute question sur la propriété, sur les modalités de vente ou sur les démarches à suivre. Maisons de l'Avenir Guipavas est là pour vous accompagner dans tous vos projets immobiliers.
Logement susceptibles de vous intéresser
Nous vous proposons de découvrir aussi cette sélection de logements situés à moins de 10km de Taulé et qui seraient susceptibles de vous intéresser.
Plouénan
TERRAIN ET MAISONDEVENEZ PROPRIÉTAIRE À PLOUÉNAN – MAISON NEUVE RE2020 SUR-MESURE !Vivez dans un cadre de vie privilégié à Plouénan, charmante commune dynamique du Nord-Finistère, à proximité des commerces, écoles et des plages du littoral.Profitez du calme de la campagne, tout en restant proche des services essentiels – un environnement idéal pour votre famille ! Votre future maison comprend 😮 3 chambres spacieuses et lumineuseso Un grand salon-séjour traversant, ouvert sur le jardino Une cuisine moderne et fonctionnelleo Salle de bain et WC séparéso Le tout sur un terrain de 489 m², bien orienté Les atouts du projet 😮 Maison neuve RE2020, à faible consommation d’énergieo Plan personnalisable selon vos besoinso Cadre de vie paisible, proche du littoralo Prestations de qualité, finitions soignées Prix indiqué hors frais Photos non contractuelles à titre d’illustration Accession à la propriété possible avec ou sans apportNe manquez pas cette belle opportunité de devenir propriétaire d’une maison neuve moderne et économique à Plouénan ! Contactez nous dès maintenant pour découvrir les plans et étudier votre projet personnalisé.
Taulé
TERRAINTerrain de 633 m² à vendre à TauléEn exclusivité, nous vous présentons une opportunité immobilière exceptionnelle dans la charmante ville de Taulé. Un terrain d’une superficie généreuse de 633m², idéalement situé, attend son futur propriétaire.Ce terrain, qui se distingue par son emplacement de choix, offre un cadre de vie idyllique.L’un des points forts majeurs de ce terrain est sans aucun doute son environnement. Taulé, située entre terre et mer, offre un panorama exceptionnel, alliant verdure luxuriante et air marin vivifiant. Ce terrain se trouve à proximité des commodités essentielles, garantissant un confort de vie optimal.Avec ses 633m², les possibilités sont nombreuses pour réaliser le projet de vos rêves, que ce soit la construction d’une résidence principale spacieuse, d’une maison de vacances confortable ou d’un investissement locatif rentable.Ne manquez pas cette occasion unique de devenir propriétaire d’un terrain d’exception à Henvic.Il est à vendre pour la somme de 44 000 €. Contactez Aurélie CAGNARD ((Numéro supprimé)) pour plus de renseignements sur le terrain et sur les modalités de vente.
Taulé
TERRAIN ET MAISONVENTE : maison de 4 pièces (70 m²) à TauléTrès beau plain-pied aux lignes traditionnelles, agencé astucieusement pour un maximum de luminosité, pièce de vie ouverte et volumineuse, cellier, 3 chambres, wc, salle d’eau et garage.Aux normes RE2020, peu énergivore, elle vous ravira par son confort de vie.Elle est à vendre pour la somme de 241 000 €.Contactez Aurélie CAGNARD ((Numéro supprimé)) pour toute information sur cette maison, sur les modalités de vente ou sur les démarches à suivre. Maisons de l’Avenir Guipavas vous accompagne dans tous vos projets immobiliers et à toutes les étapes de l’achat.
Taulé
TERRAIN ET MAISONMaison F5 (140 m²) en vente à TauléCette belle maison traditionnelle aux lignes contemporaines offre 140 m² habitable . Au rez-de-chaussée, elle dispose d’une belle pièce de vie offrant un maximum de lumière, d’une grande suite parentale avec sa salle d’eau, d’un wc et d’un très grand cellier. A l’étage on retrouve 3 chambres, une salle de bains, et un WC. L’orientation de cette maison vous permettra de bénéficier d’un maximum de lumière et de chaleur naturelle pour davantage d’économies et de douceur de vivre.Elle est à vendre pour la somme de 439 000 €.Prenez contact avec notre agence (Aurélie CAGNARD : (Numéro supprimé)) pour toute question sur la propriété, sur les modalités de vente ou sur les démarches à suivre. Maisons de l’Avenir Guipavas est là pour vous accompagner dans tous vos projets immobiliers.
Taulé
TERRAIN ET MAISONMaison de 5 pièces (92 m²) en vente à TauléLe terrain du bien s’étend sur 633 m².Cette belle maison traditionnelle aux lignes contemporaines offre 92m² habitable . Au rez-de-chaussée, elle dispose d’une belle pièce de vie de 34m² offrant un maximum de lumière, d’une suite parentale et d’un wc. A l’étage on retrouve » chambres, une salle de bains, et un WC. L’orientation de cette maison vous permettra de bénéficier d’un maximum de lumière et de chaleur naturelle pour davantage d’économies et de douceur de vivre.Elle est proposée à l’achat pour 281 400 €.Prenez contact avec notre agence (Aurélie CAGNARD : (Numéro supprimé)) pour tout renseignement sur la propriété ou sur les modalités de vente.
Taulé
TERRAIN ET MAISONTaulé : maison F3 (71 m²) en venteNouveau Murs Ossature BoisCette belle maison traditionnelle aux lignes contemporaines offre 71m² habitable . Elle dispose d’une belle pièce de vie offrant un maximum de lumière, 2 chambres, une salle de bains, un WC et son cellier. L’étage dispose de combles aménageables. L’orientation de cette maison vous permettra de bénéficier d’un maximum de lumière et de chaleur naturelle pour davantage d’économies et de douceur de vivre.Aux normes RE2020, peu énergivore, elle vous ravira par son confort de vie.Son prix de vente est de 235 000 €.Contactez notre agence (CAGNARD Aurélie : (Numéro supprimé)) pour toute information sur cette maison. Maisons de l’Avenir Guipavas est là pour vous accompagner à toutes les étapes de l’achat.
Plouvorn
TERRAIN ET MAISONDEVENEZ PROPRIÉTAIRE À PLOUVORN – MAISON NEUVE RE2020 SUR-MESURE !Vivez dans un cadre de vie privilégié à Plouvorn, charmante commune dynamique du Nord-Finistère, idéalement située entre Landivisiau et Saint-Pol-de-Léon.Profitez du calme de la campagne, tout en restant proche des commerces, écoles et services – un environnement idéal pour votre famille ! Votre future maison comprend 😮 3 chambres spacieuses et lumineuseso Un grand salon-séjour traversant, ouvert sur le jardino Une cuisine moderne et fonctionnelleo Salle de bain et WC séparéso Le tout sur un terrain de 468 m², bien orienté Les atouts du projet 😮 Maison neuve RE2020, à faible consommation d’énergieo Plan personnalisable selon vos envies et vos besoinso Cadre de vie paisible, à proximité de Morlaix, Landivisiau et du littoral nordo Prestations de qualité, finitions soignées Prix indiqué hors frais Photos non contractuelles à titre d’illustration Accession à la propriété possible avec ou sans apportNe manquez pas cette belle opportunité de devenir propriétaire d’une maison neuve moderne et économique à Plouvorn ! Contactez-nous dès maintenant pour découvrir les plans et étudier votre projet personnalisé.
Plouénan
TERRAIN ET MAISONMaison T5 (113 m²) en vente à PlouénanNouveau Maison Murs Ossature Bois Ce très beau plain-pied aux lignes contemporaine, de 113 m² agencé astucieusement pour un maximum de luminosité, pièce de vie ouverte et volumineuse, 4 chambres dont 1 suite parentale, son grand cellier et son garage. Aux normes RE2020, peu énergivore, elle vous ravira par son confort de vie Elle est à vendre pour la somme de 316 500 €.Contactez Aurélie CAGNARD (tél : (Numéro supprimé)) pour toute question sur cette maison ou sur les démarches à suivre.
Morlaix
TERRAINMorlaix : terrain de 864 m² à vendreGrand terrain, offrant une surface généreuse, présente une opportunité unique de construire la maison de vos rêves. Il est parfaitement située proche de la nationale 12, et vous permet d’envisager tous types de projets.Vous serez à proximité de toutes les commodités nécessaires au quotidienSon prix de vente est de 66 000 €. N’hésitez pas à prendre contact avec Aurélie CAGNARD (tél : (Numéro supprimé)) pour plus d’informations sur ce terrain et sur les démarches à suivre. Maisons de l’Avenir Guipavas vous accompagne à toutes les étapes de votre projet et dans tous vos projets immobiliers.
L’actualité immobilière à Taulé
27/11/2023
02/11/2023
30/10/2023
20/10/2023
16/10/2023
16/10/2023