Maison à construire à Taulé (29670)
Images
Description
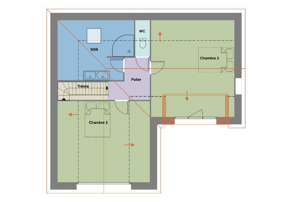
VENTE d'une maison F4 (152 m²) à Taulé
MAISON 4 PIÈCES NEUVE
En vente : à quelques kilomètres de la mer, laissez vous charmer par cette maison de 4 pièces de 152 m² et de 633 m² de terrain à Taulé (29670). Elle se divise en trois chambres, une cuisine et deux salles de bains.
Il s'agit d'une maison de 2 niveaux. Elle est neuve.
Il y a l'École Primaire Privée Saint Joseph et l'École Primaire Publique Jean Monnet. Niveau transports, on trouve la gare Morlaix à moins de 10 minutes en voiture. On trouve un accès à la nationale N12 à 5 km. Il y a une bibliothèque, une boulangerie, un supermarché, une supérette, deux boucheries-charcuteries et un bureau de poste à quelques minutes.
Elle est proposée à l'achat pour 363 000 €.
Prenez contact avec Aurélie CAGNARD pour obtenir de plus amples renseignements sur cette maison ou sur les démarches à suivre. Faites de vos projets immobiliers une réalité avec Maisons de l'Avenir Guipavas.
Logement susceptibles de vous intéresser
Nous vous proposons de découvrir aussi cette sélection de logements situés à moins de 10km de Taulé et qui seraient susceptibles de vous intéresser.
Guiclan
TERRAINDEVENEZ PROPRIÉTAIRE D’UN TERRAIN À GUICLAN !Vivez dans un cadre de vie privilégié à Guiclan, charmante commune dynamique du Nord-Finistère, idéalement située entre Morlaix et Landivisiau.Profitez du calme de la campagne, tout en restant proche des commerces, écoles et services – un environnement idéal pour votre futur projet ! Votre terrain comprend 😮 Une surface de 520 m², bien orientéeo Possibilité de construire la maison de vos rêves selon vos envies Les atouts du projet 😮 Terrain viabilisé ou proche des réseauxo Cadre de vie paisible, à proximité de Morlaix, Landivisiau et du littoral nordo Liberté de construction, avec plan personnalisable selon vos besoins Prix indiqué hors frais Photos non contractuelles à titre d’illustration Accession possible avec ou sans apportNe manquez pas cette opportunité unique de devenir propriétaire d’un terrain à Guiclan et de réaliser votre projet sur-mesure ! Contactez-nous dès maintenant pour plus d’informations et étudier votre projet.
Taulé
TERRAIN ET MAISONMaison de 5 pièces (115 m²) en vente à TauléMAISON 5 PIÈCES NEUVEEn vente : à quelques kilomètres de la mer, laissez vous charmer par cette maison de 5 pièces de 115 m² à Taulé (29670).Il s’agit d’une maison de 2 niveaux. Son intérieur compte quatre chambres, une cuisine et deux salles de bains. La maison est neuve.Le terrain du bien est de 633 m².Il y a l’École Primaire Privée Saint Joseph et l’École Primaire Publique Jean Monnet . Côté transports, on trouve la gare Morlaix à moins de 10 minutes en voiture. Il y a un accès à la nationale N12 à 5 km. Il y a une bibliothèque, une boulangerie, un supermarché, deux boucheries-charcuteries, un bureau de poste et une supérette dans les environs.Il est à vendre pour la somme de 289 000 €.Contactez notre agence (CAGNARD Aurélie) pour toute question sur cette maison ou sur les modalités de vente. Concrétisez vos projets immobiliers avec Maisons de l’Avenir Guipavas.
Taulé
TERRAINTaulé : terrain de 633 m² à vendreÀ vendre sur le littoral à Taulé (29670), grand terrain. Il y a l’École Primaire Privée Saint Joseph et l’École Primaire Publique Jean Monnet à moins de 10 minutes. Niveau transports en commun, on trouve la gare Morlaix à moins de 10 minutes en voiture. La nationale N12 est accessible à 5 km. Il y a une bibliothèque, une boulangerie, un supermarché, deux boucheries-charcuteries, une supérette et un bureau de poste à proximité.Il est à vendre pour la somme de 44 000 €. Prenez contact avec Aurélie CAGNARD pour obtenir de plus amples informations sur ce terrain ou sur les démarches à suivre. Donnez vie à vos projets immobiliers avec Maisons de l’Avenir Guipavas.
Guiclan
TERRAIN ET MAISONDEVENEZ PROPRIÉTAIRE À GUICLAN – MAISON NEUVE conforme à la dernière norme basse consommation RE-2020 !Vivez dans un cadre de vie privilégié à Guiclan, commune appréciée du Finistère Nord pour son calme, son environnement naturel et sa proximité avec les commerces, les services et les écoles. Un lieu idéal pour accueillir votre famille dans un cadre serein et agréable !Votre future maison comprend 😮 3 chambres spacieuses et lumineuseso Un grand salon-séjour traversant ouvert sur le jardino Une cuisine moderne et fonctionnelleo Salle de bain et WC séparésLes atouts du projet 😮 Maison neuve RE2020, à faible consommation d’énergieo Plan personnalisable selon vos besoinso Environnement calme et familialo Prestations de qualité, finitions soignéesCe projet s’implante sur un terrain idéalement situé à Guiclan, d’environ 551 m² (surface selon disponibilité des partenaires fonciers).Accession à la propriété possible avec ou sans apport, étude de financement gratuite.Photos à titre d’illustration (photos d’une de nos réalisations – non contractuelles).Nous trouvons l’adresse idéale parmi un large choix de terrains disponibles pour votre future demeure.Ne manquez pas cette belle opportunité de devenir propriétaire d’une maison neuve moderne et économique à Guiclan !Contactez-nous dès maintenant pour découvrir les plans et étudier votre projet personnalisé.Armorique Immos, franchise d’un constructeur national de maisons individuelles depuis plus de 40 ans, propose en collaboration avec ses partenaires fonciers une sélection de terrains constructibles, selon disponibilité, pour la construction de maisons neuves définies par le constructeur, avec un contrat de construction de maison individuelle, dans le cadre de la loi du 19/12/1990.Prix net, hors frais notariés, d’enregistrement et de publicité foncière.Étude financière réalisée par nos partenaires en courtage (IOSB inscrit à l’Orias).
Taulé
TERRAIN ET MAISONVENTE d’une maison F4 (152 m²) à TauléMAISON 4 PIÈCES NEUVEEn vente : à quelques kilomètres de la mer, laissez vous charmer par cette maison de 4 pièces de 152 m² et de 633 m² de terrain à Taulé (29670). Elle se divise en trois chambres, une cuisine et deux salles de bains.Il s’agit d’une maison de 2 niveaux. Elle est neuve.Il y a l’École Primaire Privée Saint Joseph et l’École Primaire Publique Jean Monnet. Niveau transports, on trouve la gare Morlaix à moins de 10 minutes en voiture. On trouve un accès à la nationale N12 à 5 km. Il y a une bibliothèque, une boulangerie, un supermarché, une supérette, deux boucheries-charcuteries et un bureau de poste à quelques minutes.Elle est proposée à l’achat pour 363 000 €.Prenez contact avec Aurélie CAGNARD pour obtenir de plus amples renseignements sur cette maison ou sur les démarches à suivre. Faites de vos projets immobiliers une réalité avec Maisons de l’Avenir Guipavas.
Taulé
TERRAIN ET MAISONVENTE : maison de 6 pièces (186 m²) à TauléMAISON 6 PIÈCES NEUVEEn vente : à quelques kilomètres de la mer, notre agence Maisons de l’Avenir Guipavas est heureuse de vous présenter cette maison de 6 pièces de 186 m² à Taulé (29670). Son intérieur dispose de cinq chambres, d’une cuisine et de deux salles de bains.Le terrain du bien est de 633 m².Cette maison possède 2 niveaux. Elle est neuve.Il y a l’École Primaire Privée Saint Joseph et l’École Primaire Publique Jean Monnet à moins de 10 minutes à pied. Côté transports, on trouve la gare Morlaix à moins de 10 minutes en voiture. La nationale N12 est accessible à 5 km. Il y a une bibliothèque, une boulangerie, un supermarché, une supérette, deux boucheries-charcuteries et un bureau de poste dans les environs.Son prix de vente est de 431 000 €.N’hésitez pas à prendre contact avec notre constructeur (CAGNARD Aurélie ) pour toute information sur la maison ou sur les modalités de vente.
Taulé
TERRAIN ET MAISONTaulé : maison de 5 pièces (90 m²) en venteMAISON 5 PIÈCES NEUVEÀ vendre : située sur le littoral, découvrez cette maison de 5 pièces de plain-pied de 90 m² et de 633 m² de terrain à Taulé (29670). Son intérieur comporte quatre chambres, une cuisine et une salle de bains.L’École Primaire Privée Saint Joseph et l’École Primaire Publique Jean Monnet sont implantées sur la commune. Niveau transports, il y a la gare Morlaix à moins de 10 minutes en voiture. On trouve un accès à la nationale N12 à 5 km. On trouve une bibliothèque, une boulangerie, un supermarché, une supérette, deux boucheries-charcuteries et un bureau de poste dans les environs.Elle est à vendre pour la somme de 239 000 €.Prenez contact avec notre agence (Aurélie CAGNARD) pour plus d’informations sur cette maison. Maisons de l’Avenir Guipavas est là pour vous accompagner dans toutes vos démarches.
Plouvorn
TERRAINDEVENEZ PROPRIÉTAIRE D’UN TERRAIN À PLOUVORN !Vivez dans un cadre de vie privilégié à Plouvorn, charmante commune dynamique du Nord-Finistère, idéalement située entre Landivisiau et Saint-Pol-de-Léon.Profitez du calme de la campagne, tout en restant proche des commerces, écoles et services – un environnement idéal pour votre futur projet ! Votre terrain comprend 😮 Une surface de 367 m², bien orientéeo Possibilité de construire la maison de vos rêves selon vos envies Les atouts du projet 😮 Terrain viabilisé ou proche des réseauxo Cadre de vie paisible, à proximité de Landivisiau, Saint-Pol-de-Léon et du littoral du Léono Liberté de construction, avec plan personnalisable selon vos besoins Prix indiqué hors frais Photos non contractuelles à titre d’illustration Accession possible avec ou sans apportNe manquez pas cette opportunité unique de devenir propriétaire d’un terrain à Plouvorn et de réaliser votre projet sur-mesure ! Contactez-nous dès maintenant pour plus d’informations et étudier votre projet.
Plouénan
TERRAIN ET MAISONMaison de 5 pièces (93 m²) en vente à PlouénanMAISON 5 PIÈCES NEUVEEn vente : à quelques kilomètres de la mer, notre agence Maisons de l’Avenir Guipavas est heureuse de vous proposer cette maison de 5 pièces de plain-pied de 93 m² à Plouénan (29420). Son intérieur est composé de quatre chambres, d’une cuisine et de deux salles de bains.Le terrain de la propriété est de 513 m².La maison est neuve.L’École Primaire Publique Simone Veil et l’École Primaire Privée Notre-Dame de Kerellon sont implantées à moins de 10 minutes. La nationale N12 est accessible à 12 km. Il y a deux tennis, deux boulangeries, un supermarché, un bureau de poste et une boucherie-charcuterie dans les environs.Elle est à vendre pour la somme de 238 900 €.Contactez Aurélie CAGNARD pour toute information sur cette maison. Donnez vie à vos projets immobiliers avec Maisons de l’Avenir Guipavas.
L’actualité immobilière à Taulé
27/11/2023
02/11/2023
30/10/2023
20/10/2023
16/10/2023
16/10/2023