Maison à construire à Tréflez (29430)
Images
Description
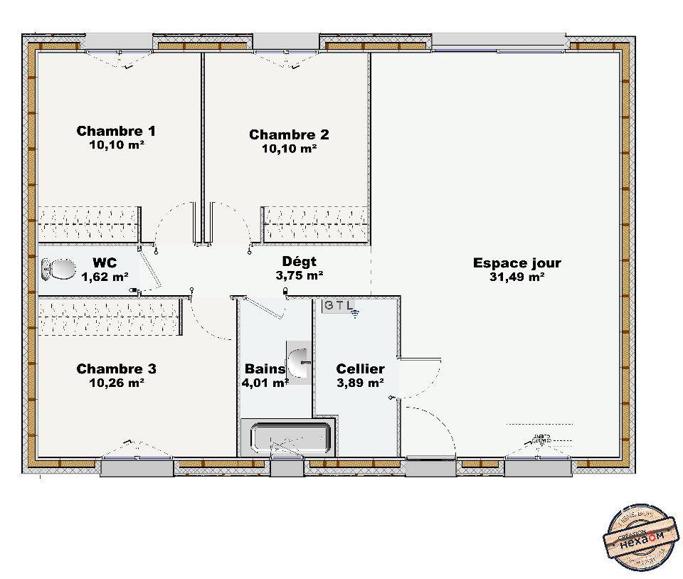
Tréflez : maison T4 (75 m²) en vente
Nouveau Murs Ossature Bois
Cette belle maison traditionnelle aux lignes contemporaines offre 75m² habitable .
Elle dispose d'une belle pièce de vie offrant un maximum de lumière, 3 chambres, une salle de bains, un WC et son cellier.
L'étage dispose de combles aménageables.
L'orientation de cette maison vous permettra de bénéficier d'un maximum de lumière et de chaleur naturelle pour davantage d'économies et de douceur de vivre.
Aux normes RE2020, peu énergivore, elle vous ravira par son confort de vie.
Elle est à vendre pour la somme de 234 900 €.
N'hésitez pas à prendre contact avec notre constructeur (CAGNARD Aurélie : (Numéro supprimé)) pour toute information sur la maison. Maisons de l'Avenir Guipavas vous accompagne dans toutes vos démarches et à toutes les étapes de votre projet.
Logement susceptibles de vous intéresser
Nous vous proposons de découvrir aussi cette sélection de logements situés à moins de 10km de Tréflez et qui seraient susceptibles de vous intéresser.
Plouescat
TERRAIN ET MAISONÀ vendre : située sur le littoral, découvrez à Plouescat (29430), cette maison de 3 pièces de plain-pied de 86 m² et de 361 m² de terrain.Très beau plain-pied aux lignes traditionnelles, agencé astucieusement pour un maximum de luminosité, pièce de vie ouverte et volumineuse,, 3 chambres, une salle d’eau, un wc et un garage. Aux normes RE2020, peu énergivore, elle vous ravira par son confort de vie.Son prix de vente est de 253 600 €.Contactez notre agence (Aurélie CAGNARD : (Numéro supprimé)) pour obtenir de plus amples renseignements sur la maison.
Plouescat
TERRAINEn exclusivité, nous vous présentons une opportunité immobilière exceptionnelle dans la charmante ville de Plouescat. Un terrain d’une superficie de 361m², idéalement situé, attend son futur propriétaire.Ce terrain, qui se distingue par son emplacement de choix, offre un cadre de vie idyllique. Ce terrain représente une opportunité rare sur le marché immobilier actuel.L’un des points forts majeurs de ce terrain est sans aucun doute son environnement. Plouescat, située entre terre et mer, offre un panorama exceptionnel, alliant verdure luxuriante et air marin vivifiant. Ce terrain se trouve à proximité des commodités essentielles, garantissant un confort de vie optimal.De plus, ce terrain offre un potentiel d’aménagement considérable. Avec ses 361m², les possibilités sont nombreuses pour réaliser le projet de vos rêves, que ce soit la construction d’une résidence principale spacieuse, d’une maison de vacances confortable ou d’un investissement locatif rentable.Enfin, ce terrain se distingue par son excellent rapport qualité-prix. Investir dans ce terrain, c’est faire le choix d’un investissement sûr et rentable, dans une ville en pleine expansion.Il est proposé à l’achat pour 49 500 €. Contactez notre agence (Aurélie CAGNARD : (Numéro supprimé)) pour plus d’informations sur le terrain ou sur les démarches à suivre. Maisons de l’Avenir Guipavas est là pour vous accompagner dans tous vos projets immobiliers.
Plouescat
TERRAIN ET MAISONVENTE d’une maison de 4 pièces (75 m²) à PlouescatMAISON 4 PIÈCES NEUVECette belle maison traditionnelle aux lignes contemporaines offre 75m² habitable . Au rez-de-chaussée, elle dispose d’une belle pièce de vie de 32m² offrant un maximum de lumière, d’un wc et d’un garage. A l’étage on retrouve 3 chambres, une salle de bains, et un WC. L’orientation de cette maison vous permettra de bénéficier d’un maximum de lumière et de chaleur naturelle pour davantage d’économies et de douceur de vivre.Elle est à vendre pour la somme de 222 000 €.N’hésitez pas à prendre contact avec notre agence (Aurélie CAGNARD : (Numéro supprimé)) pour tout renseignement sur cette maison, sur les modalités de vente ou sur les démarches à suivre. Maisons de l’Avenir Guipavas est là pour vous accompagner dans tous vos projets immobiliers.
Plouescat
TERRAIN ET MAISONPlouescat : maison T4 (114 m²) en venteCette belle maison traditionnelle aux lignes contemporaines offre 114m² habitable . Au rez-de-chaussée, elle dispose d’une belle pièce de vie offrant un maximum de lumière, d’un wc, un cellier et d’un garage. A l’étage on retrouve 3 chambres, 2 salles d’eau, un WC un bureau et un grand vide sur séjour. L’orientation de cette maison vous permettra de bénéficier d’un maximum de lumière et de chaleur naturelle pour davantage d’économies et de douceur de vivre.Son prix de vente est de 340 500 €.Contactez Aurélie CAGNARD (tél : (Numéro supprimé)) pour tout renseignement sur cette maison. Maisons de l’Avenir Guipavas vous accompagne dans toutes vos démarches et à toutes les étapes de l’achat.
Plouescat
TERRAIN ET MAISONPlouescat : maison T3 (72 m²) à vendreCette belle maison traditionnelle aux lignes contemporaines offre 72m² habitable . Au rez-de-chaussée, elle dispose d’une belle pièce de vie de 34m² offrant un maximum de lumière, d’un wc et d’un cellier. A l’étage on retrouve 2 chambres, une salle de bains, et un WC. L’orientation de cette maison vous permettra de bénéficier d’un maximum de lumière et de chaleur naturelle pour davantage d’économies et de douceur de vivre.Elle est à vendre pour la somme de 206 200 €.N’hésitez pas à prendre contact avec notre agence (CAGNARD Aurélie : (Numéro supprimé)) pour toute information sur cette maison. Maisons de l’Avenir Guipavas vous accompagne dans toutes vos démarches et à toutes les étapes de l’achat.
Plouescat
TERRAINEn exclusivité, nous vous présentons une opportunité immobilière exceptionnelle dans la charmante ville de Plouescat. Un terrain d’une superficie de 448m², idéalement situé, attend son futur propriétaire.Ce terrain, qui se distingue par son emplacement de choix, offre un cadre de vie idyllique. Ce terrain représente une opportunité rare sur le marché immobilier actuel.L’un des points forts majeurs de ce terrain est sans aucun doute son environnement. Plouescat, située entre terre et mer, offre un panorama exceptionnel, alliant verdure luxuriante et air marin vivifiant. Ce terrain se trouve à proximité des commodités essentielles, garantissant un confort de vie optimal.De plus, ce terrain offre un potentiel d’aménagement considérable. Avec ses 448m², les possibilités sont nombreuses pour réaliser le projet de vos rêves, que ce soit la construction d’une résidence principale spacieuse, d’une maison de vacances confortable ou d’un investissement locatif rentable.Enfin, ce terrain se distingue par son excellent rapport qualité prix. Investir dans ce terrain, c’est faire le choix d’un investissement sûr et rentable, dans une ville en pleine expansion.Il est proposé à l’achat pour 55 000 €. Contactez notre agence (Aurélie CAGNARD : (Numéro supprimé)) pour tout renseignement sur le terrain.
Plouescat
TERRAIN ET MAISONVENTE d’une maison F4 (120 m²) à PlouescatNouveau Murs Ossature BoisTrès beau plain-pied aux lignes traditionnelles, agencé astucieusement pour un maximum de luminosité, pièce de vie ouverte et volumineuse, 3 chambres dont une suite parentale, un cellier et son garage.Aux normes RE2020, peu énergivore, elle vous ravira par son confort de vie.Son prix de vente est de 358 600 €.Prenez contact avec notre agence (Aurélie CAGNARD : (Numéro supprimé)) pour obtenir de plus amples informations sur cette maison. Concrétisez vos projets immobiliers avec Maisons de l’Avenir Guipavas.
Plouescat
TERRAIN ET MAISONPlouescat : maison de 5 pièces (92 m²) en venteCette belle maison traditionnelle aux lignes contemporaines offre 92m² habitable . Au rez-de-chaussée, elle dispose d’une belle pièce de vie de 34m² offrant un maximum de lumière, d’une suite parentale et d’un wc. A l’étage on retrouve 3 chambres, une salle de bains, et un WC. L’orientation de cette maison vous permettra de bénéficier d’un maximum de lumière et de chaleur naturelle pour davantage d’économies et de douceur de vivre.Elle est proposée à l’achat pour 262 150 €.Contactez Aurélie CAGNARD (tél : (Numéro supprimé)) pour toute question sur la maison. Maisons de l’Avenir Guipavas est là pour vous accompagner dans toutes vos démarches.
Plouescat
TERRAIN ET MAISONMaison de 5 pièces (142 m²) en vente à PlouescatCette belle maison traditionnelle aux lignes contemporaines offre 142m² habitable . Au rez-de-chaussée, elle dispose d’une belle pièce de vie de 41m² offrant un maximum de lumière, d’une suite parentale, d’un wc, d’un cellier et un garage. A l’étage on retrouve 3 chambres, une salle de bains, et un WC. L’orientation de cette maison vous permettra de bénéficier d’un maximum de lumière et de chaleur naturelle pour davantage d’économies et de douceur de vivreElle est proposée à l’achat pour 430 000 €.Contactez Aurélie CAGNARD ((Numéro supprimé)) pour obtenir de plus amples informations sur cette maison ou sur les démarches à suivre. Maisons de l’Avenir Guipavas est là pour vous accompagner dans tous vos projets immobiliers.
L’actualité immobilière à Tréflez
27/11/2023
02/11/2023
30/10/2023
20/10/2023
16/10/2023
16/10/2023