Maison à construire à Trégunc (29910)
Images
Description
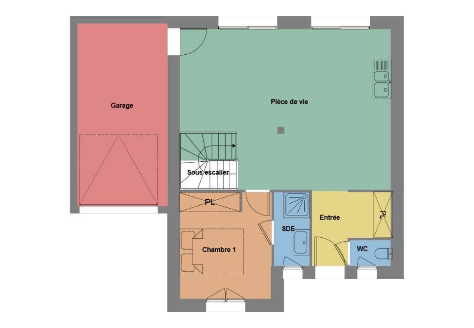
Trégunc : maison de 5 pièces (115 m²) à vendre
IDÉALEMENT SITUÉE - MAISON 5 PIÈCES NEUVE
À vendre : localisée sur la côte atlantique et à quelques kilomètres de Quimper, nous vous présentons cette maison de 5 pièces de 115 m² idéalement située dans Trégunc (29910).
Il s'agit d'une maison de 2 niveaux. Son intérieur se divise en quatre chambres, une cuisine et deux salles de bains.
Le terrain du bien s'étend sur 416 m².
Elle est proposée à l'achat pour 388 000 €.
N'hésitez pas à prendre contact avec notre agence (Mathieu DEROUET : (Numéro supprimé)) pour toute information sur la maison. Donnez vie à vos projets immobiliers avec Maisons de l'Avenir Quimper.
Logement susceptibles de vous intéresser
Nous vous proposons de découvrir aussi cette sélection de logements situés à moins de 10km de Trégunc et qui seraient susceptibles de vous intéresser.
Trégunc
TERRAINVENTE : terrain de 830 m² à TréguncDANS UN CADRE CHAMPETRE, parfait pour les actifs cherchant le calme de la campagne avec un accès rapide à la voie expressÀ vendre sur le littoral atlantique et à quelques kilomètres de Quimper à Trégunc (29910), grand terrain. Réalisez-y la maison de vos rêves. Il est à vendre pour la somme de 118 000 €. Contactez notre agence (Mathieu DEROUET : (Numéro supprimé)) pour toute information sur ce terrain, sur les démarches à suivre et sur les modalités de vente.
Trégunc
TERRAIN ET MAISONMaison F5 (160 m²) en vente à TréguncPROCHE DE QUIMPER – MAISON 5 PIÈCES NEUVEÀ 5 km de l’océan Atlantique et à deux pas de Quimper, en vente à Trégunc (29910), notre agence Maisons de l’Avenir Quimper est ravie de vous proposer cette maison de 5 pièces de 160 m². Elle compte quatre chambres, une cuisine et deux salles de bains.Le terrain du bien s’étend sur 830 m².C’est une maison de 2 niveaux. Son prix de vente est de 526 000 €.Contactez Mathieu DEROUET (tél : (Numéro supprimé)) pour toute question sur la maison ou sur les modalités de vente. Maisons de l’Avenir Quimper vous accompagne dans tous vos projets immobiliers et à toutes les étapes de l’achat.
Trégunc
TERRAIN ET MAISONTrégunc : maison F4 (85 m²) en venteMAISON 4 PIÈCES NEUVE – PROCHE DE QUIMPERSur le littoral atlantique et à quelques kilomètres de Quimper, notre agence Maisons de l’Avenir Quimper est heureuse de vous présenter cette maison de 4 pièces de 85 m² en vente à Trégunc (29910).Cette maison compte 2 niveaux. Elle propose trois chambres, une cuisine et une salle de bains.Son prix de vente est de 316 500 €.N’hésitez pas à prendre contact avec notre constructeur (Mathieu DEROUET : (Numéro supprimé)) pour toute information sur la maison. Faites de vos projets immobiliers une réalité avec Maisons de l’Avenir Quimper.
Trégunc
TERRAIN ET MAISONVENTE : maison de 5 pièces (140 m²) à TréguncPROCHE DE QUIMPER – MAISON 5 PIÈCES NEUVEEn vente : située à 5 km de l’océan Atlantique et à deux pas de Quimper, nous sommes ravis de vous proposer à Trégunc (29910), cette maison de 5 pièces de plain-pied de 140 m² et de 830 m² de terrain. Elle compte quatre chambres, une cuisine et deux salles de bains.Elle est à vendre pour la somme de 466 000 €.Prenez contact avec Mathieu DEROUET (tél : (Numéro supprimé)) pour tout renseignement sur cette propriété. Maisons de l’Avenir Quimper est là pour vous accompagner dans tous vos projets immobiliers.
Trégunc
TERRAIN ET MAISONVENTE d’une maison F4 (115 m²) à TréguncMAISON 4 PIÈCES NEUVE – PROCHE DE QUIMPERÀ vendre à 5 km de l’océan Atlantique et à deux pas de Quimper, nous sommes heureux de vous présenter à Trégunc (29910), cette maison de 4 pièces de 115 m² et de 830 m² de terrain. Elle se divise en trois chambres, une cuisine et deux salles de bains.Il s’agit d’une maison de 2 niveaux. Son prix de vente est de 406 000 €.Contactez notre agence (Mathieu DEROUET : (Numéro supprimé)) pour plus d’informations sur la maison, sur les modalités de vente ou sur les démarches à suivre. Maisons de l’Avenir Quimper est là pour vous accompagner dans tous vos projets immobiliers.
Trégunc
TERRAIN ET MAISONVENTE d’une maison OSSATURE BOIS F6 (150 m²) à TréguncPROCHE DE QUIMPER – MAISON 6 PIÈCES NEUVEÀ vendre : localisée à 5 km de l’océan Atlantique et à 26 km de Quimper, notre agence Maisons de l’Avenir Quimper est heureuse de vous proposer cette maison de 6 pièces de 150 m² à Trégunc (29910). Son intérieur est composé de cinq chambres, d’une cuisine et de deux salles de bains.Le terrain de la propriété est de 830 m².Il s’agit d’une maison de 2 niveaux. Elle est proposée à l’achat pour 522 900 €.Prenez contact avec Mathieu DEROUET ((Numéro supprimé)) pour plus de renseignements sur cette maison. Maisons de l’Avenir Quimper vous accompagne dans toutes vos démarches et à toutes les étapes de votre projet.
Trégunc
TERRAINTrégunc : terrain de 695 m² à vendreIDÉALEMENT SITUÉ – PROCHE DE QUIMPERÀ Trégunc (29910) à 5 km de l’océan Atlantique et à deux pas de Quimper, donnez vie à votre projet immobilier sur ce terrain de 695 m². Il est exposé au sud-ouest. Il est situé dans un secteur convoité, trévignon, plage à 300m On trouve un accès à la nationale N165 à 12 km. Il y a un tennis, deux supermarchés, des commerces, trois boulangeries, un bureau de poste et une poissonnerie dans les environs. Le marché Place de la Mairie a lieu tous les mercredis matin.Ce terrain est proposé à l’achat pour 226 925 €. Prenez contact avec Marie LAURENT ((Numéro supprimé)) pour toute question sur le terrain et sur les démarches à suivre. Maisons de l’Avenir Quimper vous accompagne à toutes les étapes de l’achat et dans tous vos projets immobiliers.
Trégunc
TERRAIN ET MAISONVENTE : maison de 5 pièces (164 m²) à Trégunc/TrévignonIDÉALEMENT SITUÉE – MAISON 5 PIÈCES NEUVEEn vente : à 300 de l’océan Atlantique et à 26 km de Quimper, votre agence Maisons de l’Avenir Quimper est ravie de vous présenter, idéalement située dans Trégunc (29910), cette maison de 5 pièces de 164 m². Elle compte quatre chambres, une cuisine et deux salles de bains.Le terrain de la propriété est de 695 m².Cette maison comporte 2 niveaux. Elle est neuve.La maison est située dans un quartier prisé, la page à pied On trouve un accès à la nationale N165 à 12 km. Il y a un tennis, deux supermarchés, des commerces, trois boulangeries, un bureau de poste et deux épiceries à proximité. Enfin, le marché Place de la Mairie a lieu chaque mercredi matin.Elle est proposée à l’achat pour 602 725 €.Contactez notre agence (LAURENT Marie : (Numéro supprimé)) pour plus d’informations sur la maison, sur les modalités de vente ou sur les démarches à suivre. Maisons de l’Avenir Quimper vous accompagne à toutes les étapes de votre projet et dans tous vos projets immobiliers.
Trégunc
TERRAIN ET MAISONVENTE : maison T4 (120 m²) à Trégunc/TrévignonIDÉALEMENT SITUÉE – MAISON 4 PIÈCES NEUVEEn vente : à 500 M de l’océan Atlantique et à quelques kilomètres de Quimper, Maisons de l’Avenir Quimper vous présente cette maison de 4 pièces de plain-pied de 120 m² et de 695 m² de terrain, idéalement située dans Trégunc (29910). Son intérieur se divise en trois chambres, une cuisine et deux salles de bains.Cette maison est neuve.La maison se trouve dans un secteur recherché. . On trouve un accès à la nationale N165 à 12 km. On trouve un tennis, deux supermarchés, des commerces, trois boulangeries, deux épiceries et un bureau de poste à quelques minutes à peine. Enfin, le marché Place de la Mairie a lieu tous les mercredis matin.Elle est proposée à l’achat pour 493 987 €.Contactez notre agence (LAURENT Marie : (Numéro supprimé)) pour obtenir de plus amples renseignements sur la maison ou sur les modalités de vente. Maisons de l’Avenir Quimper vous accompagne à toutes les étapes de votre projet et dans tous vos projets immobiliers.
L’actualité immobilière à Trégunc
27/11/2023
02/11/2023
30/10/2023
20/10/2023
16/10/2023
16/10/2023