Maison à construire à Trégunc (29910)
Images
Description
Trégunc : maison de 5 pièces (125 m²) à vendre
PROCHE DE QUIMPER - MAISON 5 PIÈCES NEUVE
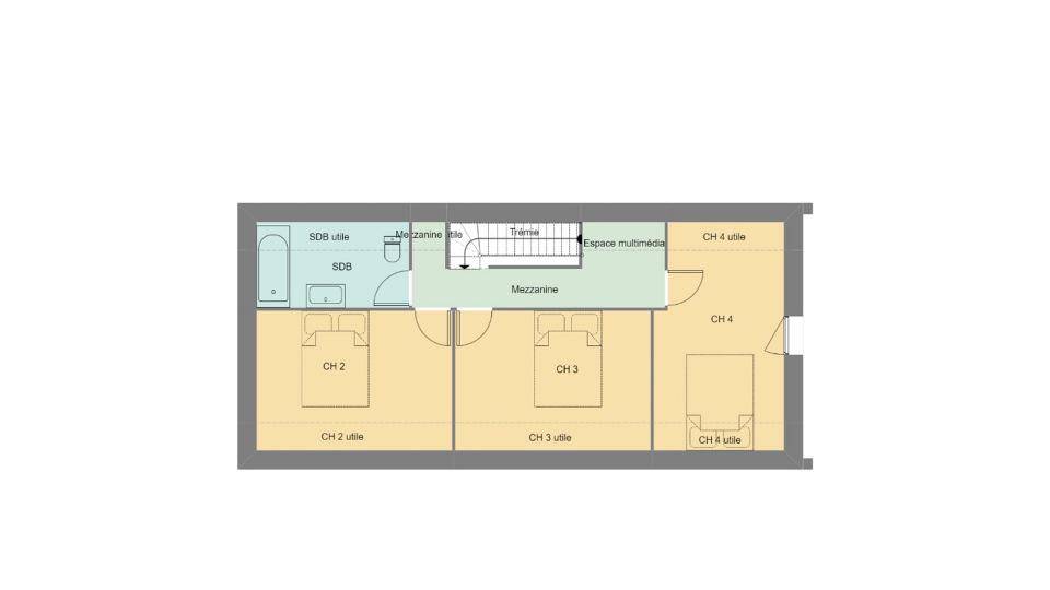
À vendre : située sur la côte atlantique et à quelques kilomètres de Quimper, notre agence Maisons de l'Avenir Quimper est ravie de vous présenter cette maison de 5 pièces de 125 m² à Trégunc (29910). Son intérieur propose quatre chambres, une cuisine et deux salles de bains.
Le terrain de la propriété est de 700 m².
Cette maison comporte 2 niveaux.
Son prix de vente est de 569 000 €.
Contactez notre constructeur (DEROUET Mathieu : (Numéro supprimé)) pour toute question sur la maison ou sur les modalités de vente. Maisons de l'Avenir Quimper est là pour vous accompagner dans toutes vos démarches.
Logement susceptibles de vous intéresser
Nous vous proposons de découvrir aussi cette sélection de logements situés à moins de 10km de Trégunc et qui seraient susceptibles de vous intéresser.
Trégunc
TERRAINVENTE : terrain de 830 m² à TréguncDANS UN CADRE CHAMPETRE, parfait pour les actifs cherchant le calme de la campagne avec un accès rapide à la voie expressÀ vendre sur le littoral atlantique et à quelques kilomètres de Quimper à Trégunc (29910), grand terrain. Réalisez-y la maison de vos rêves. Il est à vendre pour la somme de 118 000 €. Contactez notre agence (Mathieu DEROUET : (Numéro supprimé)) pour toute information sur ce terrain, sur les démarches à suivre et sur les modalités de vente.
Trégunc
TERRAIN ET MAISONMaison F5 (160 m²) en vente à TréguncPROCHE DE QUIMPER – MAISON 5 PIÈCES NEUVEÀ 5 km de l’océan Atlantique et à deux pas de Quimper, en vente à Trégunc (29910), notre agence Maisons de l’Avenir Quimper est ravie de vous proposer cette maison de 5 pièces de 160 m². Elle compte quatre chambres, une cuisine et deux salles de bains.Le terrain du bien s’étend sur 830 m².C’est une maison de 2 niveaux. Son prix de vente est de 526 000 €.Contactez Mathieu DEROUET (tél : (Numéro supprimé)) pour toute question sur la maison ou sur les modalités de vente. Maisons de l’Avenir Quimper vous accompagne dans tous vos projets immobiliers et à toutes les étapes de l’achat.
Trégunc
TERRAIN ET MAISONTrégunc : maison F4 (85 m²) en venteMAISON 4 PIÈCES NEUVE – PROCHE DE QUIMPERSur le littoral atlantique et à quelques kilomètres de Quimper, notre agence Maisons de l’Avenir Quimper est heureuse de vous présenter cette maison de 4 pièces de 85 m² en vente à Trégunc (29910).Cette maison compte 2 niveaux. Elle propose trois chambres, une cuisine et une salle de bains.Son prix de vente est de 316 500 €.N’hésitez pas à prendre contact avec notre constructeur (Mathieu DEROUET : (Numéro supprimé)) pour toute information sur la maison. Faites de vos projets immobiliers une réalité avec Maisons de l’Avenir Quimper.
Trégunc
TERRAIN ET MAISONVENTE : maison de 5 pièces (140 m²) à TréguncPROCHE DE QUIMPER – MAISON 5 PIÈCES NEUVEEn vente : située à 5 km de l’océan Atlantique et à deux pas de Quimper, nous sommes ravis de vous proposer à Trégunc (29910), cette maison de 5 pièces de plain-pied de 140 m² et de 830 m² de terrain. Elle compte quatre chambres, une cuisine et deux salles de bains.Elle est à vendre pour la somme de 466 000 €.Prenez contact avec Mathieu DEROUET (tél : (Numéro supprimé)) pour tout renseignement sur cette propriété. Maisons de l’Avenir Quimper est là pour vous accompagner dans tous vos projets immobiliers.
Trégunc
TERRAIN ET MAISONVENTE d’une maison F4 (115 m²) à TréguncMAISON 4 PIÈCES NEUVE – PROCHE DE QUIMPERÀ vendre à 5 km de l’océan Atlantique et à deux pas de Quimper, nous sommes heureux de vous présenter à Trégunc (29910), cette maison de 4 pièces de 115 m² et de 830 m² de terrain. Elle se divise en trois chambres, une cuisine et deux salles de bains.Il s’agit d’une maison de 2 niveaux. Son prix de vente est de 406 000 €.Contactez notre agence (Mathieu DEROUET : (Numéro supprimé)) pour plus d’informations sur la maison, sur les modalités de vente ou sur les démarches à suivre. Maisons de l’Avenir Quimper est là pour vous accompagner dans tous vos projets immobiliers.
Trégunc
TERRAIN ET MAISONVENTE d’une maison OSSATURE BOIS F6 (150 m²) à TréguncPROCHE DE QUIMPER – MAISON 6 PIÈCES NEUVEÀ vendre : localisée à 5 km de l’océan Atlantique et à 26 km de Quimper, notre agence Maisons de l’Avenir Quimper est heureuse de vous proposer cette maison de 6 pièces de 150 m² à Trégunc (29910). Son intérieur est composé de cinq chambres, d’une cuisine et de deux salles de bains.Le terrain de la propriété est de 830 m².Il s’agit d’une maison de 2 niveaux. Elle est proposée à l’achat pour 522 900 €.Prenez contact avec Mathieu DEROUET ((Numéro supprimé)) pour plus de renseignements sur cette maison. Maisons de l’Avenir Quimper vous accompagne dans toutes vos démarches et à toutes les étapes de votre projet.
Trégunc
TERRAINTrégunc : terrain de 695 m² à vendreIDÉALEMENT SITUÉ – PROCHE DE QUIMPERÀ Trégunc (29910) à 5 km de l’océan Atlantique et à deux pas de Quimper, donnez vie à votre projet immobilier sur ce terrain de 695 m². Il est exposé au sud-ouest. Il est situé dans un secteur convoité, trévignon, plage à 300m On trouve un accès à la nationale N165 à 12 km. Il y a un tennis, deux supermarchés, des commerces, trois boulangeries, un bureau de poste et une poissonnerie dans les environs. Le marché Place de la Mairie a lieu tous les mercredis matin.Ce terrain est proposé à l’achat pour 226 925 €. Prenez contact avec Marie LAURENT ((Numéro supprimé)) pour toute question sur le terrain et sur les démarches à suivre. Maisons de l’Avenir Quimper vous accompagne à toutes les étapes de l’achat et dans tous vos projets immobiliers.
Trégunc
TERRAIN ET MAISONVENTE : maison de 5 pièces (164 m²) à Trégunc/TrévignonIDÉALEMENT SITUÉE – MAISON 5 PIÈCES NEUVEEn vente : à 300 de l’océan Atlantique et à 26 km de Quimper, votre agence Maisons de l’Avenir Quimper est ravie de vous présenter, idéalement située dans Trégunc (29910), cette maison de 5 pièces de 164 m². Elle compte quatre chambres, une cuisine et deux salles de bains.Le terrain de la propriété est de 695 m².Cette maison comporte 2 niveaux. Elle est neuve.La maison est située dans un quartier prisé, la page à pied On trouve un accès à la nationale N165 à 12 km. Il y a un tennis, deux supermarchés, des commerces, trois boulangeries, un bureau de poste et deux épiceries à proximité. Enfin, le marché Place de la Mairie a lieu chaque mercredi matin.Elle est proposée à l’achat pour 602 725 €.Contactez notre agence (LAURENT Marie : (Numéro supprimé)) pour plus d’informations sur la maison, sur les modalités de vente ou sur les démarches à suivre. Maisons de l’Avenir Quimper vous accompagne à toutes les étapes de votre projet et dans tous vos projets immobiliers.
Trégunc
TERRAIN ET MAISONVENTE : maison T4 (120 m²) à Trégunc/TrévignonIDÉALEMENT SITUÉE – MAISON 4 PIÈCES NEUVEEn vente : à 500 M de l’océan Atlantique et à quelques kilomètres de Quimper, Maisons de l’Avenir Quimper vous présente cette maison de 4 pièces de plain-pied de 120 m² et de 695 m² de terrain, idéalement située dans Trégunc (29910). Son intérieur se divise en trois chambres, une cuisine et deux salles de bains.Cette maison est neuve.La maison se trouve dans un secteur recherché. . On trouve un accès à la nationale N165 à 12 km. On trouve un tennis, deux supermarchés, des commerces, trois boulangeries, deux épiceries et un bureau de poste à quelques minutes à peine. Enfin, le marché Place de la Mairie a lieu tous les mercredis matin.Elle est proposée à l’achat pour 493 987 €.Contactez notre agence (LAURENT Marie : (Numéro supprimé)) pour obtenir de plus amples renseignements sur la maison ou sur les modalités de vente. Maisons de l’Avenir Quimper vous accompagne à toutes les étapes de votre projet et dans tous vos projets immobiliers.
L’actualité immobilière à Trégunc
27/11/2023
02/11/2023
30/10/2023
20/10/2023
16/10/2023
16/10/2023