Maison à construire à Trégunc (29910)
Images
Description
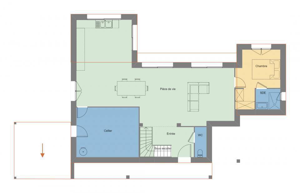
Trégunc : maison T5 (145 m²) en vente
IDÉALEMENT SITUÉE - MAISON 5 PIÈCES NEUVE
À vendre sur la côte atlantique et à deux pas de Quimper, votre agence Maisons de l'Avenir Quimper est heureuse de vous présenter cette maison de 5 pièces de 145 m² et de 500 m² de terrain idéalement située dans Trégunc (29910).
Il s'agit d'une maison de 2 niveaux. Son intérieur propose quatre chambres, une cuisine et deux salles de bains.
Son prix de vente est de 484 000 €.
Contactez Mathieu DEROUET ((Numéro supprimé)) pour plus d'informations sur la maison, sur les démarches à suivre ou sur les modalités de vente.
Logement susceptibles de vous intéresser
Nous vous proposons de découvrir aussi cette sélection de logements situés à moins de 10km de Trégunc et qui seraient susceptibles de vous intéresser.
Pont-Aven
TERRAINVENTE d’un terrain de 481 m² à Pont-AvenPROCHE BOURGTerrain de 481 m² en vente sur le littoral atlantique et à 28 km de Quimper. Ce terrain se situe dans Pont-Aven (29930). Il est à vendre pour la somme de 90 000 €. Contactez Valérie BULA ((Numéro supprimé)) pour plus de renseignements sur ce terrain ou sur les démarches à suivre. Concrétisez vos projets immobiliers avec Maisons de l’Avenir Quimper.
Pont-Aven
TERRAIN ET MAISONPont-Aven : maison T4 (95 m²) à vendreMAISON 4 PIÈCES NEUVE – PROCHE DE QUIMPERSur le littoral atlantique et à deux pas de Quimper, en vente à Pont-Aven (29930), Maisons de l’Avenir Quimper vous propose cette maison de 4 pièces de 95 m² et de 481 m² de terrain. Son intérieur dispose de trois chamElle est à vendre pour la somme de 327 500 €.Prenez contact avec Valérie BULA ((Numéro supprimé)) pour toute question sur cette maison, sur les démarches à suivre ou sur les modalités de vente.
Pont-Aven
TERRAIN ET MAISONMaison T4 (100 m²) à vendre à Pont-AvenPROCHE DE QUIMPER – MAISON 4 PIÈCES NEUVEÀ 9 km de l’océan Atlantique et à 28 km de Quimper, en vente à Pont-Aven (29930), nous vous présentons cette maison de 4 pièces de 100 m² et de 481 m² de terrain.Il s’agit d’une maison de 2 niveaux. Son intérieur est composé de trois chambres, d’une cuisine et de deux salles de bains. Elle est à vendre pour la somme de 338 500 €.Contactez Valérie BULA ((Numéro supprimé)) pour tout renseignement sur cette maison.
Pont-Aven
TERRAIN ET MAISONMaison de 4 pièces (70 m²) à vendre à Pont-AvenMAISON 4 PIÈCES NEUVE – PROCHE DE QUIMPERÀ 9 km de la côte atlantique et à quelques kilomètres de Quimper, notre agence Maisons de l’Avenir Quimper est heureuse de vous présenter à vendre à Pont-Aven (29930), cette maison de 4 pièces de 70 m² et de 481 m² de terrain. Elle dispose de trois chambres, d’une cuisine et d’une salle de bains.C’est une maison de 2 niveaux. Elle est à vendre pour la somme de 252 000 €.N’hésitez pas à prendre contact avec notre agence (BULA Valérie : (Numéro supprimé)) pour obtenir de plus amples renseignements sur la maison, sur les modalités de vente ou sur les démarches à suivre. Donnez vie à vos projets immobiliers avec Maisons de l’Avenir Quimper.
Pont-Aven
TERRAIN ET MAISONVENTE : maison de 5 pièces (135 m²) à Pont-AvenMAISON 5 PIÈCES NEUVE – PROCHE DE QUIMPERÀ vendre : à 9 km de l’océan Atlantique et à 28 km de Quimper, ayez le coup de coeur pour à Pont-Aven (29930), cette maison de 5 pièces de 135 m².C’est une maison de 2 niveaux. Son intérieur offre quatre chambres, une cuisine et deux salles de bains. Elle est à vendre pour la somme de 415 500 €.Contactez Mathieu DEROUET ((Numéro supprimé)) pour toute information sur la maison, sur les démarches à suivre ou sur les modalités de vente. Maisons de l’Avenir Quimper est là pour vous accompagner à toutes les étapes de votre projet.
Pont-Aven
TERRAIN ET MAISONMaison de 4 pièces (95 m²) en vente à Pont-AvenPROCHE DE QUIMPER – MAISON 4 PIÈCES OSSATURE BOISÀ 9 km de l’océan Atlantique et à quelques kilomètres de Quimper, nous sommes ravis de vous proposer cette maison de 4 pièces de plain-pied de 95 m² à Pont-Aven (29930). Elle est composée de trois chambres, d’une cuisine et de deux salles de bains.Le terrain de la propriété s’étend sur 481 m².Son prix de vente est de 343 875 €.N’hésitez pas à prendre contact avec notre agence (DEROUET Mathieu : (Numéro supprimé)) pour plus de renseignements sur la propriété. Maisons de l’Avenir Quimper est là pour vous accompagner dans toutes vos démarches.
Concarneau
TERRAINVENTE d’un terrain de 670 m² à ConcarneauÀ 6 km de l’océan Atlantique à Concarneau (29900), grand terrain. Réalisez-y votre projet de construction. Il bénéficie d’une exposition sud-ouest.. Côté transports en commun, on trouve la gare Rosporden à moins de 10 minutes en voiture. Il y a un accès à la nationale N165 à 3 km. Il y a des commerces, un supermarché et une boulangerie à quelques minutes du bien.Il est proposé à l’achat pour 87 000 €. N’hésitez pas à prendre contact avec Marie LAURENT ((Numéro supprimé)) pour plus d’informations sur ce terrain. Maisons de l’Avenir Quimper est là pour vous accompagner dans toutes vos démarches.
Concarneau
TERRAIN ET MAISONMaison de 4 pièces (125 m²) à vendre à ConcarneauMAISON 4 PIÈCES NEUVEÀ vendre : à 6 km de l’océan Atlantique, Maisons de l’Avenir Quimper vous présente cette maison de 4 pièces de plain-pied de 125 m² à Concarneau (29900).Elle inclut trois chambres, une cuisine et deux salles de bains. La maison est neuve.Le terrain du bien est de 670 m².Niveau transports, on trouve la gare Rosporden à moins de 10 minutes en voiture. La nationale N165 est accessible à 3 km. Il y a six commerces, un supermarché et une boulangerie à proximité.Son prix de vente est de 364 500 €.Contactez notre agence (LAURENT Marie : (Numéro supprimé)) pour toute question sur la propriété, sur les démarches à suivre ou sur les modalités de vente. Faites de vos projets immobiliers une réalité avec Maisons de l’Avenir Quimper.
Concarneau
TERRAIN ET MAISONMaison F3 (87 m²) en vente à ConcarneauMAISON 3 PIÈCES NEUVEÀ vendre à 6 km de l’océan Atlantique, nous vous présentons cette maison de 3 pièces de plain-pied de 87 m² à Concarneau (29900). Conçue de plain-pied, elle inclut trois chambres, une cuisine et une salle de bains.Le terrain de cette maison est de 670 m².Cette maison est neuve.Côté transports, on trouve la gare Rosporden à moins de 10 minutes en voiture. La nationale N165 est accessible à 3 km. Il y a des commerces, un supermarché et une boulangerie à proximité du bien.Elle est proposée à l’achat pour 284 700 €.Contactez Marie LAURENT ((Numéro supprimé)) pour toute question sur le bien, sur les modalités de vente ou sur les démarches à suivre. Concrétisez vos projets immobiliers avec Maisons de l’Avenir Quimper.
L’actualité immobilière à Trégunc
27/11/2023
02/11/2023
30/10/2023
20/10/2023
16/10/2023
16/10/2023