Maison à construire à Trégunc (29910)
Images
Description
Maison de 4 pièces (120 m²) en vente à Trégunc/Trévignon
MAISON 4 PIÈCES NEUVE - PROCHE DE QUIMPER
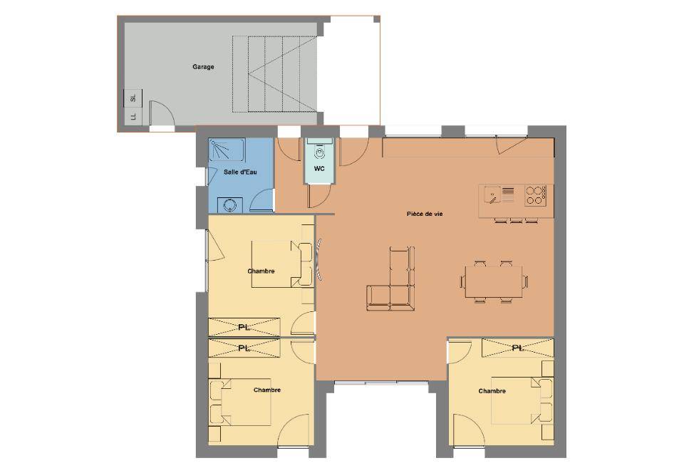
À vendre à 5 km de la côte atlantique et à quelques kilomètres de Quimper, nous vous présentons cette maison de 4 pièces de plain-pied de 120 m² et de 1 437 m² de terrain à Trégunc (29910).
Conçue de plain-pied, elle compte trois chambres, une cuisine et une salle de bains. La maison est neuve.
On trouve un accès à la nationale N165 à 6 km. On trouve un tennis, deux supermarchés, des commerces, trois boulangeries, une poissonnerie et un bureau de poste à proximité du logement. Ne manquez pas le marché Place de la Mairie chaque mercredi matin.
Elle est à vendre pour la somme de 577 200 €.
Contactez notre agence (Marie LAURENT : (Numéro supprimé)) pour toute question sur la propriété ou sur les modalités de vente. Faites de vos projets immobiliers une réalité avec Maisons de l'Avenir Quimper.
Logement susceptibles de vous intéresser
Nous vous proposons de découvrir aussi cette sélection de logements situés à moins de 10km de Trégunc et qui seraient susceptibles de vous intéresser.
Pont-Aven
TERRAIN ET MAISONDEVENEZ PROPRIÉTAIRE À PONT-AVEN – MAISON NEUVE conforme à la norme RE-2020 !Vivez dans un cadre de vie privilégié à Pont-Aven, commune recherchée du Finistère, offrant un environnement calme et verdoyant tout en restant proche des commerces, des écoles et de toutes les commodités – un lieu idéal pour votre famille !Votre future maison comprend :3 chambres spacieuses et lumineusesGrand salon-séjour traversant, ouvert sur le jardinCuisine moderne et fonctionnelleSalle de bain et WC séparésTerrain de 481 m², bien orientéLes atouts du projet :Maison neuve RE2020, à faible consommation d’énergiePlan personnalisable selon vos besoinsEnvironnement paisible et familialPrestations de qualité, finitions soignéesAccession à la propriété possible avec ou sans apport, étude de financement gratuite.Photos à titre d’illustration : photos d’une réalisation similaire (non contractuelles).Nous trouvons l’adresse idéale parmi plus de 200 terrains disponibles pour votre future demeure.Ne manquez pas cette belle opportunité de devenir propriétaire d’une maison moderne et économique à Pont-Aven !Contactez-nous dès maintenant pour découvrir les plans et étudier votre projet personnalisé.Armorique Immos, franchise d’un constructeur national de maisons individuelles depuis plus de 40 ans, propose, en collaboration avec ses partenaires fonciers, une sélection de terrains constructibles selon disponibilité, pour la construction de maisons neuves définies par le constructeur, avec un contrat de construction de maison individuelle (loi du 19/12/1990).Prix net, hors frais notariés, d’enregistrement et de publicité foncière.Étude financière réalisée par nos partenaires en courtage (IOSB inscrit à l’Orias).
Pont-Aven
TERRAIN ET MAISONVENTE d’une maison de 5 pièces (140 m²) à Pont-AvenMAISON 5 PIÈCES NEUVE – PROCHE DE QUIMPEREn vente à 9 km de la côte atlantique et à 28 km de Quimper, nous sommes ravis de vous proposer à Pont-Aven (29930), cette maison de 5 pièces de 140 m² et de 480 m² de terrain. Elle inclut quatre chambres, une cuisine et deux salles de bains.Il s’agit d’une maison de 2 niveaux. Elle est neuve.Quatre établissements scolaires sont implantés dans la commune. Côté transports en commun, il y a la gare Bannalec à moins de 10 minutes en voiture. On trouve un accès à la nationale N165 à 3 km. On trouve une bibliothèque et une boulangerie à proximité.Son prix de vente est de 427 500 €.Prenez contact avec notre agence (COLLOCH Christophe : (Numéro supprimé)) pour toute information sur la maison. Maisons de l’Avenir Lorient est là pour vous accompagner dans toutes vos démarches.
Pont-Aven
TERRAIN ET MAISONVENTE : maison de 5 pièces (127 m²) à Pont-AvenPROCHE DE QUIMPER – MAISON 5 PIÈCES NEUVEÀ vendre : située sur le littoral atlantique et à 28 km de Quimper, à Pont-Aven (29930), votre agence Maisons de l’Avenir Lorient est ravie de vous présenter cette maison de 5 pièces de 127 m² et de 480 m² de terrain.Il s’agit d’une maison de 2 niveaux. Son intérieur est composé de quatre chambres, d’une cuisine et de deux salles de bains. La maison est neuve.Quatre établissements scolaires sont implantés dans la commune. Niveau transports, on trouve la gare Bannalec à moins de 10 minutes en voiture. La nationale N165 est accessible à 3 km. Il y a une bibliothèque et une boulangerie à proximité.Elle est à vendre pour la somme de 418 900 €.Contactez notre agence (Christophe COLLOCH : (Numéro supprimé)) pour toute information sur cette maison. Maisons de l’Avenir Lorient vous accompagne dans tous vos projets immobiliers et à toutes les étapes de votre projet.
Trégunc
TERRAIN ET MAISONVENTE : maison F5 (130 m²) à TréguncCENTRE-VILLE – MAISON 5 PIÈCES NEUVEEn vente : sur la côte atlantique et à deux pas de Quimper, en plein coeur de Trégunc (29910), nous vous proposons cette maison de 5 pièces de 130 m² et de 640 m² de terrain. Elle dispose de quatre chambres, d’une cuisine et de deux salles de bains.Cette maison compte 2 niveaux. Elle est à vendre pour la somme de 396 000 €.Contactez Mathieu DEROUET ((Numéro supprimé)) pour obtenir de plus amples informations sur la maison ou sur les démarches à suivre. Maisons de l’Avenir Pont-l’Abbé est là pour vous accompagner dans tous vos projets immobiliers.
Pont-Aven
TERRAIN ET MAISONPont-Aven : maison de 4 pièces (89 m²) à vendreMAISON 4 PIÈCES NEUVE – PROCHE DE QUIMPERÀ vendre : située à 9 km de la côte atlantique et à deux pas de Quimper, Maisons de l’Avenir Lorient vous présente cette maison de 4 pièces de 89 m² à Pont-Aven (29930).Il s’agit d’une maison de 2 niveaux. Elle propose trois chambres, une cuisine et deux salles de bains. Cette maison est neuve.Le terrain de la propriété s’étend sur 480 m².Quatre établissements scolaires sont implantés dans la commune. Niveau transports, il y a la gare Bannalec à moins de 10 minutes en voiture. La nationale N165 est accessible à 3 km. On trouve une bibliothèque et une boulangerie dans les environs.Elle est proposée à l’achat pour 327 900 €.Contactez notre agence (Christophe COLLOCH : (Numéro supprimé)) pour toute information sur la maison ou sur les démarches à suivre. Maisons de l’Avenir Lorient est là pour vous accompagner à toutes les étapes de l’achat.
Trégunc
TERRAIN ET MAISONVENTE : maison T4 (90 m²) à TréguncCENTRE-VILLE – MAISON 4 PIÈCES NEUVEÀ vendre : à 5 km de l’océan Atlantique et à quelques kilomètres de Quimper, votre agence Maisons de l’Avenir Pont-l’Abbé est ravie de vous présenter cette maison de 4 pièces de 90 m² et de 640 m² de terrain en plein coeur de Trégunc (29910).Cette maison possède 2 niveaux. Son intérieur comporte trois chambres, une cuisine et deux salles de bains. Son prix de vente est de 308 000 €.N’hésitez pas à prendre contact avec notre constructeur (Mathieu DEROUET : (Numéro supprimé)) pour plus de renseignements sur le bien ou sur les démarches à suivre.
Pont-Aven
TERRAINPont-Aven : terrain de 480 m² en ventePROCHE DE QUIMPERÀ vendre sur le littoral atlantique et à 28 km de Quimper à Pont-Aven (29930), terrain de 480 m². Il est prêt à accueillir votre projet immobilier pour toute la famille. Le terrain est proche des écoles et des commerces. Quatre établissements scolaires sont implantés dans la commune. Côté transports en commun, il y a la gare Bannalec à moins de 10 minutes en voiture. Il y a un accès à la nationale N165 à 3 km. On trouve une bibliothèque et une boulangerie dans les environs.Ce terrain est proposé à l’achat pour 90 000 €. N’hésitez pas à prendre contact avec Christophe COLLOCH ((Numéro supprimé)) pour toute question sur le terrain, sur les démarches à suivre ou sur les modalités de vente.
Concarneau
TERRAIN ET MAISONVENTE : maison de 4 pièces (95 m²) à ConcarneauMAISON 4 PIÈCES OSSATURE BOISÀ vendre : située à 6 km de la côte atlantique, à Concarneau (29900), nous sommes ravis de vous présenter cette maison de 4 pièces de plain-pied de 95 m² et de 540 m² de terrain.Elle propose trois chambres, une cuisine et deux salles de bains. Son prix de vente est de 328 600 €.Contactez Mathieu DEROUET ((Numéro supprimé)) pour toute information sur cette maison. Maisons de l’Avenir Quimper est là pour vous accompagner dans tous vos projets immobiliers.
Concarneau
TERRAINConcarneau : terrain de 540 m² en venteÀ Concarneau (29900) sur le littoral atlantique, donnez vie à votre projet de construction sur ce terrain de 540 m². Proche centre.Il est à vendre pour la somme de 74 000 €. Prenez contact avec Mathieu DEROUET ((Numéro supprimé)) pour obtenir de plus amples renseignements sur ce terrain, sur les modalités de vente ou sur les démarches à suivre. Maisons de l’Avenir Quimper est là pour vous accompagner à toutes les étapes de votre projet.
L’actualité immobilière à Trégunc
27/11/2023
02/11/2023
30/10/2023
20/10/2023
16/10/2023
16/10/2023