Maison à construire à Tréméven (29300)
Images
Description
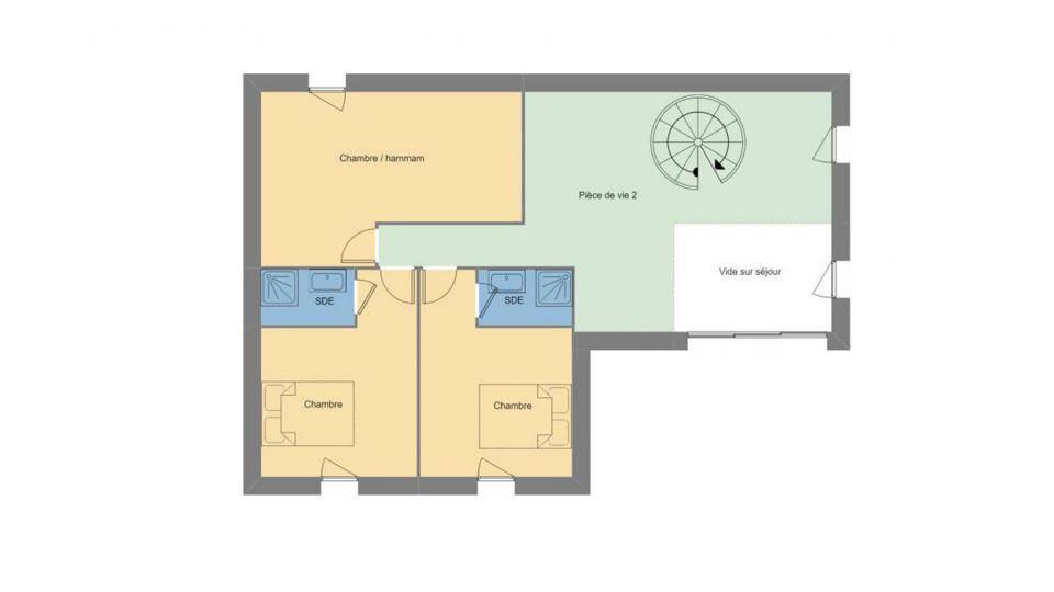
Maison F6 (163 m²) à vendre à Tréméven
MAISON 6 PIÈCES NEUVE - PROCHE DE LORIENT
À 16 km de la côte atlantique et à 20 km de Lorient, Maisons de l'Avenir Quimper vous propose cette maison de 6 pièces de 163 m² à vendre à Tréméven (29300). Son intérieur propose cinq chambres, une cuisine et deux salles de bains.
Le terrain du bien s'étend sur 7 000 m².
Cette maison comporte 2 niveaux. Elle est neuve.
Niveau transports en commun, il y a la gare Quimperlé à moins de 10 minutes en voiture. La nationale N165 est accessible à 5 km. On trouve une bibliothèque et deux épiceries à quelques minutes de la maison.
Elle est à vendre pour la somme de 479 500 €.
Contactez Marie LAURENT (tél : (Numéro supprimé)) pour tout renseignement sur la maison, sur les modalités de vente ou sur les démarches à suivre. Faites de vos projets immobiliers une réalité avec Maisons de l'Avenir Quimper.
Logement susceptibles de vous intéresser
Nous vous proposons de découvrir aussi cette sélection de logements situés à moins de 10km de Tréméven et qui seraient susceptibles de vous intéresser.
Tréméven
TERRAIN ET MAISONVENTE : maison de 5 pièces (139 m²) à TrémévenMAISON 5 PIÈCES NEUVE – PROCHE DE LORIENTEn vente : à 16 km de l’océan Atlantique et à quelques kilomètres de Lorient, à Tréméven (29300), nous vous présentons cette maison de 5 pièces de plain-pied de 139 m² et de 7 000 m² de terrain. Conçue de plain-pied, elle comporte quatre chambres, une cuisine et deux salles de bains.La maison est neuve. Côté transports, il y a la gare Quimperlé à moins de 10 minutes en voiture. On trouve un accès à la nationale N165 à 5 km. On trouve une bibliothèque et deux épiceries à quelques minutes.Elle est proposée à l’achat pour 426 700 €.Contactez notre agence (Marie LAURENT : (Numéro supprimé)) pour plus de renseignements sur cette maison. Maisons de l’Avenir Quimper est là pour vous accompagner dans toutes vos démarches.
Tréméven
TERRAINTerrain de 7 000 m² à vendre à TrémévenPROCHE DE LORIENTEn vente à 16 km de l’océan Atlantique et à 20 km de Lorient à Tréméven (29300), grand terrain. Il bénéficie d’une exposition sud-ouest. Niveau transports en commun, on trouve la gare Quimperlé à moins de 10 minutes en voiture. La nationale N165 est accessible à 5 km. Il y a une bibliothèque et deux épiceries à proximité du bien.Son prix de vente est de 105 900 €. Prenez contact avec notre agence (LAURENT Marie : (Numéro supprimé)) pour obtenir de plus amples informations sur ce terrain.
Tréméven
TERRAIN ET MAISONTréméven : maison T4 (80 m²) à vendreMAISON 4 PIÈCES NEUVE – PROCHE DE LORIENTEn vente : localisée à 16 km de la côte atlantique et à quelques kilomètres de Lorient, à Tréméven (29300), Maisons de l’Avenir Quimper vous propose cette maison de 4 pièces de plain-pied de 80 m².Son intérieur compte trois chambres, une cuisine et deux salles de bains. Cette maison est neuve.Le terrain de la propriété est de 7 000 m².L’École Primaire Publique Yann-Fanch Kemener est implantée à moins de 10 minutes à pied. Niveau transports en commun, il y a la gare Quimperlé à moins de 10 minutes en voiture. La nationale N165 est accessible à 5 km. On trouve une bibliothèque et deux épiceries à quelques minutes de la maison.Son prix de vente est de 288 900 €.Prenez contact avec Marie LAURENT ((Numéro supprimé)) pour obtenir de plus amples renseignements sur cette maison. Maisons de l’Avenir Quimper est là pour vous accompagner dans toutes vos démarches.
Tréméven
TERRAIN ET MAISONVENTE d’une maison T4 (115 m²) à TrémévenMAISON 4 PIÈCES NEUVE – PROCHE DE LORIENTÀ 16 km de l’océan Atlantique et à 20 km de Lorient, découvrez cette maison de 4 pièces de 115 m² et de 7 000 m² de terrain à vendre à Tréméven (29300). Son intérieur inclut trois chambres, une cuisine et deux salles de bains.C’est une maison de 2 niveaux. Elle est neuve.Niveau transports en commun, il y a la gare Quimperlé à moins de 10 minutes en voiture. La nationale N165 est accessible à 5 km. On trouve une bibliothèque et deux épiceries dans les environs.Elle est proposée à l’achat pour 362 400 €.Contactez Marie LAURENT (tél : (Numéro supprimé)) pour tout renseignement sur la maison, sur les modalités de vente ou sur les démarches à suivre. Faites de vos projets immobiliers une réalité avec Maisons de l’Avenir Quimper.
Tréméven
TERRAIN ET MAISONMaison F6 (163 m²) à vendre à TrémévenMAISON 6 PIÈCES NEUVE – PROCHE DE LORIENTÀ 16 km de la côte atlantique et à 20 km de Lorient, Maisons de l’Avenir Quimper vous propose cette maison de 6 pièces de 163 m² à vendre à Tréméven (29300). Son intérieur propose cinq chambres, une cuisine et deux salles de bains.Le terrain du bien s’étend sur 7 000 m².Cette maison comporte 2 niveaux. Elle est neuve. Niveau transports en commun, il y a la gare Quimperlé à moins de 10 minutes en voiture. La nationale N165 est accessible à 5 km. On trouve une bibliothèque et deux épiceries à quelques minutes de la maison.Elle est à vendre pour la somme de 479 500 €.Contactez Marie LAURENT (tél : (Numéro supprimé)) pour tout renseignement sur la maison, sur les modalités de vente ou sur les démarches à suivre. Faites de vos projets immobiliers une réalité avec Maisons de l’Avenir Quimper.
Mellac
TERRAINDEVENEZ PROPRIÉTAIRE D’UN TERRAIN À MELLAC !Vivez dans un cadre de vie privilégié à Mellac, charmante commune du Finistère, à proximité des commerces, écoles et services, et à seulement quelques minutes de Quimper et du littoral sud.Profitez du calme de la campagne tout en restant proche des commodités – un environnement idéal pour construire la maison de vos rêves ! Votre terrain comprendo Surface de 563 m², bien orientéeo Possibilité de construire la maison de vos rêves selon vos envies Les atouts du projeto Terrain viabilisé ou proche des réseauxo Cadre de vie paisible, proche de Quimper et du littoralo Liberté de construction, plan personnalisable selon vos besoins Prix indiqué hors frais Photos non contractuelles – à titre d’illustration Accession possible avec ou sans apportNe manquez pas cette opportunité unique de devenir propriétaire d’un terrain à Mellac et de réaliser votre projet sur-mesure ! Contactez-nous dès maintenant pour plus d’informations et étudier votre projet personnalisé.
Mellac
TERRAIN ET MAISONVous rêvez d’une maison neuve, moderne et adaptée à vos besoins ? Nous vous proposons un projet de construction comprenant :- Une maison individuelle comprenant : 3 chambres spacieuses, un grand salon lumineux, une cuisine fonctionnelle, WC , salle(s) de bain/d’eau sur un terrain de 563m², idéalement situé à MELLAC.Profitez d’une maison sur-mesure, conçue pour votre confort et votre bien-être ! Maison RE2020 à faible consommation d’énergies. Prix hors frais. Photos non contractuelles et illustratives. Possibilité d’accession à la propriété avec un CDI (hors CAF, RSA et Pôle Emploi). Pour tout renseignement supplémentaire, contactez nous au (Numéro supprimé).
Quimperlé
TERRAINVENTE d’un terrain de 530 m² à QuimperléEMPLACEMENT PRIVILÉGIÉ – PROCHE DE LORIENTÀ Quimperlé (29300) à 13 km de l’océan Atlantique et à quelques kilomètres de Lorient, imaginez la maison de vos rêves sur ce terrain de 530 m². Dans un secteur attractif, ce terrain bénéficiant d’un emplacement privilégié est proche des commerces et des écoles. Cinq établissements scolaires sont implantés à moins de 10 minutes à pied, tout comme une crèche. Niveau transports, on trouve la gare Quimperlé dans les alentours. La nationale N165 est accessible à 2 km. Il y a des commerces, des boulangeries, un supermarché, deux bureaux de poste et deux poissonneries à proximité. Enfin, le marché Place saint Michel anime le quartier tous les vendredis.Il est à vendre pour la somme de 65 000 €. Prenez contact avec Christophe COLLOCH (tél : (Numéro supprimé)) pour obtenir de plus amples informations sur ce terrain ou sur les démarches à suivre.
Quimperlé
TERRAIN ET MAISONQuimperlé : maison de 4 pièces (70 m²) à vendreEMPLACEMENT PRIVILÉGIÉ – MAISON 4 PIÈCES NEUVEÀ 13 km de la côte atlantique et à deux pas de Lorient, Maisons de l’Avenir Lorient vous présente cette maison de 4 pièces de plain-pied de 70 m² et de 530 m² de terrain bénéficiant d’un emplacement d’exception dans Quimperlé (29300).Elle offre trois chambres, une cuisine et une salle de bains. La maison est neuve.Cette maison est située dans un secteur attractif. Cinq établissements scolaires sont implantés à moins de 10 minutes à pied, tout comme une crèche. Côté transports en commun, il y a la gare Quimperlé à quelques pas du bien. La nationale N165 est accessible à 2 km. On trouve des commerces, des boulangeries, un supermarché, deux bureaux de poste et quatre épiceries à proximité de la maison. Le marché Place saint Michel anime le quartier chaque vendredi.Son prix de vente est de 209 000 €.N’hésitez pas à prendre contact avec Christophe COLLOCH ((Numéro supprimé)) pour obtenir de plus amples renseignements sur la propriété.
L’actualité immobilière à Tréméven
27/11/2023
02/11/2023
30/10/2023
20/10/2023
16/10/2023
16/10/2023