Maison à construire à Tréouergat (29290)
Images
Description
VENTE d'une maison de 4 pièces (105 m²) à Tréouergat
IDÉALEMENT SITUÉE - MAISON 4 PIÈCES NEUVE
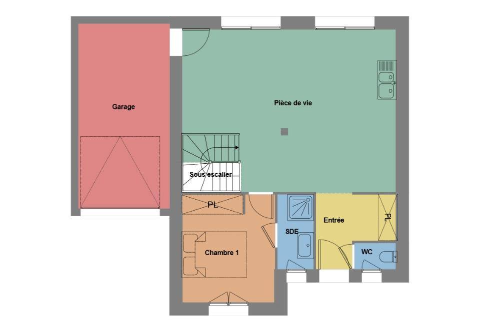
À quelques kilomètres de la mer et à 12 km de Brest, notre agence Maisons de l'Avenir Guipavas est ravie de vous proposer cette maison de 4 pièces de 105 m² et de 591 m² de terrain idéalement située dans Tréouergat (29290). Son intérieur dispose de trois chambres, d'une cuisine et de deux salles de bains.
Il s'agit d'une maison de 2 niveaux.
La maison se trouve dans un secteur recherché.
Son prix de vente est de 315 000 €.
Contactez Erwan TILLY pour obtenir de plus amples renseignements sur la maison, sur les modalités de vente ou sur les démarches à suivre. Maisons de l'Avenir Guipavas vous accompagne à toutes les étapes de votre projet et dans tous vos projets immobiliers.
Logement susceptibles de vous intéresser
Nous vous proposons de découvrir aussi cette sélection de logements situés à moins de 10km de Tréouergat et qui seraient susceptibles de vous intéresser.
Milizac-Guipronvel
TERRAINVENTE d’un terrain de 782 m² à GuipronvelIDÉALEMENT SITUÉ – PROCHE DE BRESTÀ quelques kilomètres de la mer et à 7 km de Brest à Milizac (29290), grand terrain. Il est prêt à accueillir votre résidence principale ou secondaire pour toute la famille. Il est exposé au sud-ouest. Dans un secteur recherché, le terrain idéalement situé est proche des écoles et des commerces. L’École Primaire Privée Saint Joseph-Notre Dame et l’École Primaire Publique Marcel Aymé sont implantées à moins de 10 minutes à pied. Il y a un accès à la nationale N12 à 10 km. Il y a deux boulangeries, un commerce, un bureau de poste, une épicerie et une boucherie-charcuterie à proximité.Il est à vendre pour la somme de 100 000 €. Contactez Erwan TILLY pour plus d’informations sur le terrain, sur les démarches à suivre ou sur les modalités de vente. Maisons de l’Avenir Guipavas est là pour vous accompagner dans tous vos projets immobiliers.
Milizac-Guipronvel
TERRAIN ET MAISONVENTE d’une maison T3 (100 m²) à MilizacIDÉALEMENT SITUÉE – MAISON 3 PIÈCES NEUVEÀ vendre à quelques kilomètres de la mer et à 7 km de Brest, idéalement située dans Milizac (29290), Maisons de l’Avenir Guipavas vous propose cette maison de 3 pièces de plain-pied de 100 m² et de 782 m² de terrain. Son intérieur offre trois chambres, une cuisine et une salle de bains.La maison est neuve.Cette maison se situe dans un secteur prisé. L’École Primaire Privée Saint Joseph-Notre Dame et l’École Primaire Publique Marcel Aymé sont implantées à moins de 10 minutes à pied. La nationale N12 est accessible à 10 km. Il y a deux boulangeries, un commerce, une épicerie, une boucherie-charcuterie et un bureau de poste dans les environs.Elle est à vendre pour la somme de 300 200 €.Prenez contact avec notre agence (Erwan TILLY) pour obtenir de plus amples informations sur la maison, sur les modalités de vente ou sur les démarches à suivre.
Milizac-Guipronvel
TERRAIN ET MAISONVENTE : maison de 5 pièces (140 m²) à MilizacIDÉALEMENT SITUÉE – MAISON 5 PIÈCES NEUVEEn vente : sur le littoral et à quelques kilomètres de Brest, découvrez, idéalement située dans Milizac (29290), cette maison de 5 pièces de 140 m². Elle se divise en quatre chambres, une cuisine et deux salles de bains.Le terrain de cette maison s’étend sur 782 m².Il s’agit d’une maison de 2 niveaux. Elle est neuve.La maison est située dans un secteur recherché. Il y a l’École Primaire Privée Saint Joseph-Notre Dame et l’École Primaire Publique Marcel Aymé à moins de 10 minutes à pied. La nationale N12 est accessible à 10 km. On trouve deux boulangeries, un commerce, une épicerie, un bureau de poste et une boucherie-charcuterie à proximité de la maison.Elle est à vendre pour la somme de 478 000 €.Prenez contact avec notre agence (Erwan TILLY) pour tout renseignement sur le bien ou sur les modalités de vente. Maisons de l’Avenir Guipavas est là pour vous accompagner dans toutes vos démarches.
Milizac-Guipronvel
TERRAIN ET MAISONVENTE : maison F4 (130 m²) à MilizacIDÉALEMENT SITUÉE – MAISON 4 PIÈCES NEUVEÀ quelques kilomètres de la mer et à deux pas de Brest, Maisons de l’Avenir Guipavas vous propose à vendre, idéalement située dans Milizac (29290), cette maison de 4 pièces de 130 m² et de 782 m² de terrain.Il s’agit d’une maison de 2 niveaux. Elle propose quatre chambres, une cuisine et deux salles de bains. Cette maison est neuve.La maison est située dans un secteur recherché. L’École Primaire Privée Saint Joseph-Notre Dame et l’École Primaire Publique Marcel Aymé se trouvent à moins de 10 minutes à pied. La nationale N12 est accessible à 10 km. Il y a deux boulangeries, un commerce, une boucherie-charcuterie, une épicerie et un bureau de poste à quelques minutes du bien.Son prix de vente est de 472 300 €.Contactez notre agence (Erwan TILLY) pour plus de renseignements sur le bien.
Tréglonou
TERRAIN📢 À vendre : Dernier terrain disponible à Tréglonou ! 🌿🏡Saisissez cette opportunité rare sur la commune de Tréglonou ! Ce magnifique terrain de 403 m², situé dans un petit lotissement, bénéficie d’une belle exposition et d’un cadre idéal pour votre futur projet de construction.Il s’agit de l’un des derniers terrains disponibles sur la commune, une occasion à ne pas manquer !Contactez vite Erwan TILLY des Maisons de l’Avenir pour organiser une visite et commencer à concevoir les plans sur mesure de votre future maison.📞 Erwan TILLY – Maisons de l’Avenir⚠️ Faites vite, ce terrain partira très rapidement ! 🚀
Tréglonou
TERRAIN ET MAISON📢 À vendre : Dernier terrain disponible à Tréglonou ! 🌿🏡Saisissez cette opportunité rare sur la commune de Tréglonou ! Ce magnifique terrain de 403 m², situé dans un petit lotissement, bénéficie d’une belle exposition et d’un cadre idéal pour votre futur projet de construction.Il s’agit de l’un des derniers terrains disponibles sur la commune, une occasion à ne pas manquer !🏠 Votre projet clé en main :Nous proposons les plans d’une maison de plain-pied au style architectural moderne, de 120 m², comprenant :✔️ 4 chambres, dont une suite parentale✔️ 2 salles d’eau✔️ Un vaste espace de vie ouvert de plus de 45 m²✔️ Un garage pour protéger votre voiture ou offrir un espace de stockageCette maison est conçue dans le cadre de nos maisons passives Bati Activ, favorisant les gains énergétiques et l’ensoleillement pour un confort optimal. Les plans sont entièrement modifiables selon vos goûts et envies, tant sur l’esthétique que sur l’architecture.💡 Prix de l’opération terrain + maison : 330 000 €Ne laissez pas passer cette opportunité unique ! Contactez dès maintenant Erwan Tilly de Maisons de l’Avenir, pour visiter ce terrain et concrétiser votre projet sur mesure.
Tréglonou
TERRAIN ET MAISON📢 À vendre : Dernier terrain disponible à Tréglonou ! 🌿🏡Saisissez cette opportunité rare sur la commune de Tréglonou ! Ce magnifique terrain de 403 m², situé dans un petit lotissement, bénéficie d’une belle exposition et d’un cadre idéal pour votre futur projet de construction.Il s’agit de l’un des derniers terrains disponibles sur la commune, une occasion à ne pas manquer !🏠 Votre projet clé en main :Nous proposons les plans d’une maison au style moderne, de 105 m², comprenant :✔️ 3 chambres, dont une suite parentale✔️ 2 salles d’eau✔️ Un vaste espace de vie ouvert de plus de 35 m²✔️ Un garage pour protéger votre voiture ou offrir un espace de stockageCette maison est conçue dans le cadre de nos maisons passives Bati Activ, favorisant les gains énergétiques et l’ensoleillement pour un confort optimal. Les plans sont entièrement modifiables selon vos goûts et envies, tant sur l’esthétique que sur l’architecture.💡 Prix de l’opération terrain + maison : 295 000 €Ne laissez pas passer cette opportunité unique ! Contactez dès maintenant Erwan Tilly de Maisons de l’Avenir, pour visiter ce terrain et concrétiser votre projet sur mesure.
Tréglonou
TERRAIN ET MAISON📢 À vendre : Dernier terrain disponible à Tréglonou ! 🌿🏡Saisissez cette opportunité rare sur la commune de Tréglonou ! Ce magnifique terrain de 403 m², situé dans un petit lotissement, bénéficie d’une belle exposition et d’un cadre idéal pour votre futur projet de construction.Il s’agit de l’un des derniers terrains disponibles sur la commune, une occasion à ne pas manquer !🏠 Votre projet clé en main :Nous proposons les plans d’une maison au style moderne, de 75 m², comprenant :✔️ 3 chambres✔️ 1 salles d’eau (douche + baignoire)✔️ Un vaste espace de vie ouvert de plus de 35 m²✔️ Un garage pour protéger votre voiture ou offrir un espace de stockageCette maison est conçue dans le cadre de nos maisons passives Bati Activ, favorisant les gains énergétiques et l’ensoleillement pour un confort optimal. Les plans sont entièrement modifiables selon vos goûts et envies, tant sur l’esthétique que sur l’architecture.💡 Prix de l’opération terrain + maison : 255 000 €Ne laissez pas passer cette opportunité unique ! Contactez dès maintenant Erwan Tilly de Maisons de l’Avenir, pour visiter ce terrain et concrétiser votre projet sur mesure.
Tréouergat
TERRAINTerrain de 591 m² à vendre à TréouergatIDÉALEMENT SITUÉ – PROCHE DE BRESTÀ Tréouergat (29290) à quelques kilomètres de la mer et à deux pas de Brest, donnez vie à votre résidence principale ou secondaire sur ce terrain de 591 m². Il est exposé au sud. Dans un quartier attractif, le terrain idéalement situé est proche des écoles et des commerces. Les nationales N12, N265 et N165 sont accessibles à moins de 18 km. Il y a une bibliothèque à quelques minutes à peine.Ce terrain est proposé à l’achat pour 73 000 €. Contactez Erwan TILLY pour obtenir de plus amples renseignements sur le terrain et sur les démarches à suivre. Maisons de l’Avenir Guipavas est là pour vous accompagner à toutes les étapes de l’achat.
L’actualité immobilière à Tréouergat
27/11/2023
02/11/2023
30/10/2023
20/10/2023
16/10/2023
16/10/2023