Maison à construire à Alès (30100)
Images
Description
VENTE : maison de 5 pièces (110 m²) à Alès
IDÉALEMENT SITUÉE - MAISON 5 PIÈCES NEUVE
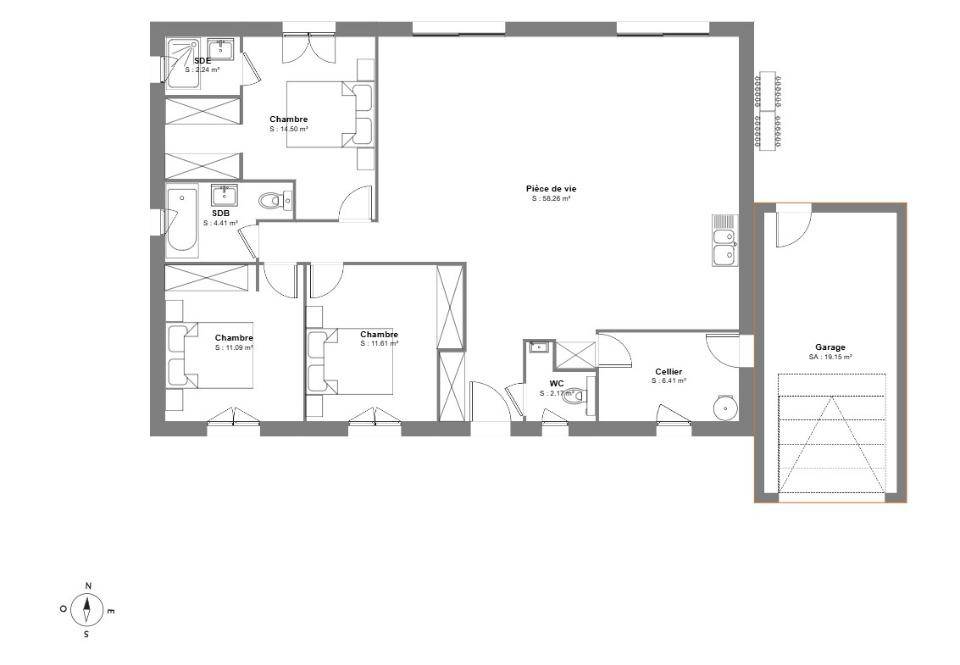
Nous sommes ravis de vous présenter cette maison de 5 pièces de plain-pied de 110 m² idéalement située dans Alès (30100).
Elle est composée de trois chambres, d'une cuisine et de deux salles de bains. La maison est neuve.
Le terrain du bien s'étend sur 1 101 m².
Cette maison se situe dans un quartier attractif. Des écoles du primaire et du secondaire se trouvent à moins de 10 minutes à pied, tout comme trois structures d'accueil pour la petite enfance. Côté transports en commun, il y a la gare Alès juste à côté. La nationale N106 est accessible à 3 km. On trouve une bibliothèque, un bassin de natation, un tennis, trois supermarchés, des commerces, des boulangeries, une poissonnerie et des épiceries à quelques minutes de la maison.
Elle est à vendre pour la somme de 322 800 €.
Contactez Pascale PIEL ((Numéro supprimé)) pour toute information sur la maison, sur les démarches à suivre ou sur les modalités de vente.
Logement susceptibles de vous intéresser
Nous vous proposons de découvrir aussi cette sélection de logements situés à moins de 10km de Alès et qui seraient susceptibles de vous intéresser.
Saint-Privat-des-Vieux
TERRAINFiche N°Id-TCT177721 : SAINT PRIVAT DES VIEUX Fiche BC177721 : Saint privat des vieux, secteur Al?s, Terrain 1800 m2 de 1800 m2 – – Equipements annexes : – chauffage : Aucun – Plus d’informations disponibles sur demande… – Mentions légales : Proposé à la vente à 114500 Euros (honoraires à la charge du vendeur) – Affaire suivie par Mr Guilhem JULLIAN (Agent commercial independant) – Reseau Immo-Diffusion Moussac – Pour plus d’informations, contactez notre secrétariat au (Numéro supprimé) (Appel gratuit ou prix d’une communication locale)
Saint-Julien-les-Rosiers
TERRAINGILLES RACCAH DE VOTRE AGENCE REGARD VOUS PROPOSE CE TERRAIN CONSTRUCTIBLE SUR LA COMMUNE DE SAINT-JULIEN-LES-ROSIERSVenez découvrir ce terrain de 7 617 m² dont 1 038 m² constructible.Libre constructeur pour la partie à bâtir avec le viabilisation en bordure de terrain.Les 6500 m² de bois attenant avec une partie plate et une parcelle comprenant des Oliviers.Opportunité à saisir rapidement pour ce terrain situé dans un quartier au calme et recherché.
Saint-Christol-lez-Alès
TERRAINÀ vendre – Terrain constructible 841 m² à Saint-Christol-lès-AlèsDécouvrez cette belle parcelle de 841 m², idéalement située sur la commune très recherchée de Saint-Christol-lès-Alès, une ville dynamique et en plein développement au cœur du Gard.Le terrain, plat et bien exposé, bénéficie d’un Coefficient d’Occupation des Sols (COS) de 0,30, offrant de nombreuses possibilités de construction pour votre future maison familiale ou votre projet immobilier. Environnement calme et résidentiel, à proximité immédiate des commerces, écoles, services et axes principaux reliant Alès et Nîmes. Atouts :Viabilité en bordure et assainissement collectif,Quartier agréable et recherché,Fort potentiel de valorisation dans une commune en croissance.Un emplacement idéal pour concilier confort, nature et vie active. Plus d’informations sur demande. Honoraires à la charge du vendeur.Les informations sur les risques auxquels ce bien est exposé sont disponibles sur le site Géorisques : www.georisques.gouv.fr .
Alès
TERRAINVENTE : terrain de 1 300 m² à AlèsIDÉALEMENT SITUÉ – VUE DÉGAGÉEIdéalement situé dans Alès (30100), grand terrain. Il est prêt à accueillir la maison de vos rêves pour toute la famille. Ce terrain, exposé sud-est, profite d’une vue dégagée. Dans un quartier recherché, le terrain est proche des commerces et des écoles. Des établissements scolaires de tous types (de la maternelle au lycée) se trouvent à moins de 10 minutes à pied, tout comme trois crèches. Niveau transports, il y a la gare Alès à quelques pas du bien. On trouve un accès à la nationale N106 à 3 km. On trouve une bibliothèque, un bassin de natation, un tennis, trois supermarchés, des commerces, des boulangeries, un bureau de poste et deux supérettes à proximité du terrain.Il est proposé à l’achat pour 109 900 €. Prenez contact avec Jean-françois MARTERER ((Numéro supprimé)) pour toute information sur ce terrain. Maisons Balency Uzès vous accompagne dans toutes vos démarches et dans tous vos projets immobiliers.Annonce proposée par un Agent Commercial Partenaire.
Alès
TERRAIN ET MAISONAlès : maison de 5 pièces (101 m²) à vendreIDÉALEMENT SITUÉE – MAISON 5 PIÈCES NEUVEEn vente : notre agence Maisons Balency Uzès est heureuse de vous proposer cette maison de 5 pièces de plain-pied de 101 m² et de 1 300 m² de terrain idéalement située dans Alès (30100). Elle se divise en quatre chambres, une cuisine et une salle de bains.Cette maison est neuve.Cette maison se situe dans un secteur convoité. Des établissements scolaires du primaire et du secondaire se trouvent à moins de 10 minutes à pied, tout comme trois structures d’accueil pour la petite enfance. Niveau transports, il y a la gare Alès dans un rayon de 1 km. On trouve un accès à la nationale N106 à 3 km. On trouve une bibliothèque, un bassin de natation, un tennis, trois supermarchés, des commerces, des boulangeries, deux supérettes et un bureau de poste à proximité du bien.Elle est proposée à l’achat pour 279 000 €.Contactez notre agence (MARTERER Jean-françois : (Numéro supprimé)) pour obtenir de plus amples informations sur la propriété. Maisons Balency Uzès est là pour vous accompagner à toutes les étapes de l’achat.Annonce proposée par un Agent Commercial Partenaire.
Ribaute-les-Tavernes
TERRAINTerrain de 464 m² en vente à Ribaute-les-TavernesIDÉALEMENT SITUÉ – PROCHE DE NÎMESÀ Ribaute-les-Tavernes (30720) à deux pas de Nîmes, donnez vie à la maison de vos rêves sur ce terrain de 464 m². Il est orienté plein est. Dans un quartier prisé, ce terrain idéalement situé est proche des écoles et des commerces. Il y a l’École Primaire Marcel Pagnol à moins de 10 minutes à pied. Niveau transports, on trouve la gare Boucoiran-et-Nozières à moins de 10 minutes en voiture. La nationale N106 est accessible à 4 km. Il y a un tennis, une épicerie et un bureau de poste à quelques minutes.Ce terrain est proposé à l’achat pour 85 900 €. Contactez Jean-françois MARTERER ((Numéro supprimé)) pour tout renseignement sur le terrain ou sur les démarches à suivre. Concrétisez vos projets immobiliers avec Maisons Balency Uzès.Annonce proposée par un Agent Commercial Partenaire.
Ribaute-les-Tavernes
TERRAINRibaute-les-Tavernes : terrain de 450 m² à vendreIDÉALEMENT SITUÉ – PROCHE DE NÎMESÀ Ribaute-les-Tavernes (30720) à deux pas de Nîmes, imaginez la maison de vos rêves sur ce terrain de 450 m². Il est exposé à l’est. Dans un quartier convoité, ce terrain idéalement situé est proche des écoles et des commerces. Il y a l’École Primaire Marcel Pagnol à moins de 10 minutes à pied. Niveau transports, on trouve la gare Boucoiran-et-Nozières à moins de 10 minutes en voiture. On trouve un accès à la nationale N106 à 4 km. Il y a un tennis, une épicerie et un bureau de poste dans les environs.Ce terrain est proposé à l’achat pour 84 900 €. Contactez notre agence (Jean-françois MARTERER : (Numéro supprimé)) pour toute question sur le terrain. Maisons Balency Uzès est là pour vous accompagner à toutes les étapes de votre projet.Annonce proposée par un Agent Commercial Partenaire.
Ribaute-les-Tavernes
TERRAINVENTE d’un terrain de 496 m² à Ribaute-les-TavernesIDÉALEMENT SITUÉ – PROCHE DE NÎMESÀ Ribaute-les-Tavernes (30720) à vendre à quelques kilomètres de Nîmes, imaginez la maison de vos rêves sur ce terrain de 496 m². Il est orienté plein est. Dans un quartier attractif, le terrain idéalement situé est proche des écoles et des commerces. Il y a l’École Primaire Marcel Pagnol à moins de 10 minutes à pied. Niveau transports, on trouve la gare Boucoiran-et-Nozières à moins de 10 minutes en voiture. La nationale N106 est accessible à 4 km. Il y a un tennis, un bureau de poste et une épicerie dans les environs.Ce terrain est proposé à l’achat pour 89 900 €. Contactez Jean-françois MARTERER ((Numéro supprimé)) pour toute information sur le terrain ou sur les démarches à suivre.Annonce proposée par un Agent Commercial Partenaire.
Alès
TERRAIN ET MAISONMaison de 5 pièces (104 m²) à vendre à AlèsIDÉALEMENT SITUÉE – MAISON 5 PIÈCES NEUVEÀ vendre : Maisons Balency Uzès vous propose, idéalement située dans Alès (30100), cette maison de 5 pièces de plain-pied de 104 m². Conçue de plain-pied, elle se divise en quatre chambres, une cuisine et deux salles de bains.Le terrain de la propriété est de 1 300 m².Cette maison est neuve.La maison se situe dans un secteur convoité. Des établissements scolaires de tous types (de la maternelle au lycée) se trouvent à moins de 10 minutes à pied, tout comme trois structures d’accueil pour la petite enfance. Niveau transports, il y a la gare Alès à quelques pas de la maison. La nationale N106 est accessible à 3 km. On trouve une bibliothèque, un bassin de natation, un tennis, trois supermarchés, des commerces, des boulangeries, une poissonnerie et un bureau de poste à proximité de la maison.Elle est à vendre pour la somme de 320 990 €.N’hésitez pas à prendre contact avec Jean-françois MARTERER (tél : (Numéro supprimé)) pour tout renseignement sur le bien.Annonce proposée par un Agent Commercial Partenaire.
L’actualité immobilière à Alès
27/11/2023
16/10/2023
16/10/2023
13/10/2023