Terrain à vendre

Maison à construire à Barjac (30430)

369000 €
130 m²
Barjac
Gard (30)
TERRAIN ET MAISON
Réf externe: 3520971
Annonce publiée le 5 novembre 2025

Images

Description

Bastide contemporaine - 130 m² habitables avec garage accolé

Cette bastide contemporaine d'environ 110 m², à laquelle s'ajoutent 20 m² attenants aménagés en suite parentale, offre de beaux volumes et des prestations modernes.

👉 Au rez-de-chaussée

Une vaste pièce de vie lumineuse de plus de 50 m²,

Une cuisine,

Un cellier,

Une suite parentale avec salle d'eau, dressing et accès direct à la terrasse.

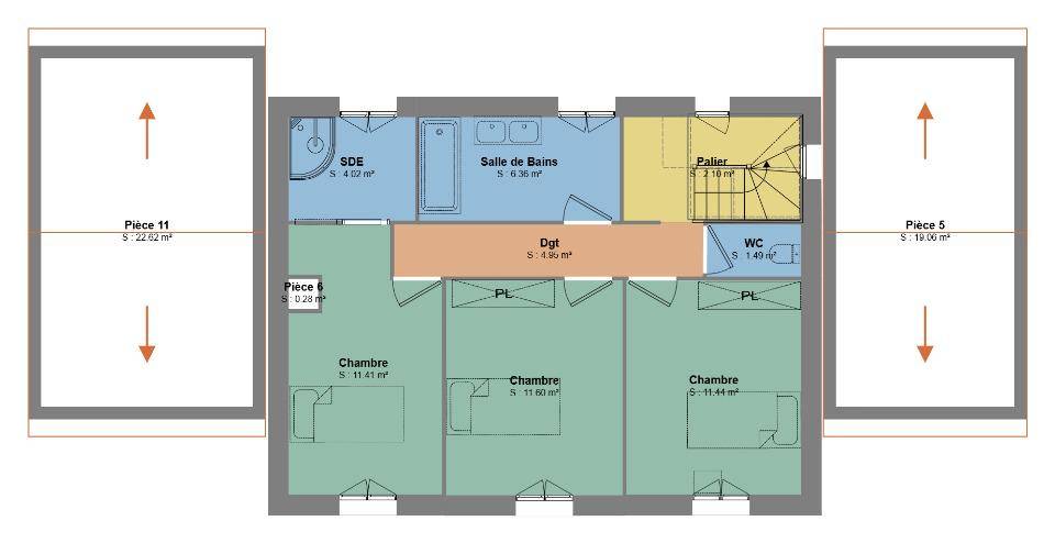
👉 À l'étage

Trois chambres avec vue côté jardin,

Une salle de bains,

Un WC indépendant.

👉 Annexes

Un garage accolé de plus de 20 m².

👉 Prestations

Pompe à chaleur gainable,

Carrelage sur toute la surface,

Menuiseries anthracite,

Volets roulants motorisés et centralisés.

CONTACTER

Logement susceptibles de vous intéresser

333 700 €
129 m²

Saint-Jean-de-Maruéjols-et-Avéjan

TERRAIN ET MAISON

🏡 MAISON DE PLAIN-PIED MODERNE EN L – 129 m²Style et conceptionMaison à l’architecture moderne et épurée, en forme de L pour profiter pleinement de l’ensoleillement plein sud et créer un espace extérieur intime abrité du vent.La construction est traditionnelle, avec des matériaux durables et performants.Les menuiseries anthracite, les volets roulants motorisés et centralisés, et les grandes baies vitrées soulignent le caractère contemporain de l’ensemble.🧱 Organisation intérieure🔸 Aile Jour (au centre du L) – environ 50 m²Entrée avec placard donnant sur une grande pièce de vie traversante, baignée de lumière naturelle grâce à de larges baies vitrées plein sud.Séjour / Salon / Salle à manger ouvrant sur une terrasse couverte orientée plein sud, idéale pour recevoir et profiter des beaux jours.Cuisine ouverte moderne avec îlot central.Cellier / buanderie attenant à la cuisine, communiquant directement avec le garage pour plus de confort au quotidien.🔸 Aile Nuit – Côté EstSuite parentale indépendante avec :une chambre spacieuse ouvrant sur la terrasse,un dressing fonctionnel,une salle d’eau privative (douche à l’italienne, double vasque, WC possible).🔸 Aile Nuit – Côté OuestTrois chambres lumineuses (10 à 11 m² chacune).Salle d’eau commune avec douche et double vasque.WC séparé à proximité.🎨 Prestations et finitionsCarrelage 60×60 cm dans la pièce de vie.Revêtements de sol au choix dans les chambres (parquet ou carrelage assorti).Menuiseries aluminium anthracite à double vitrage.Volets roulants électriques centralisés.Chauffage par pompe à chaleur gainable, offrant confort et performance énergétique.Terrasse couverte orientée plein sud, dans l’angle du L, parfaite pour les repas en extérieur.🌿 Points fortsPlan en L offrant luminosité et intimité dans le jardin.Suite parentale isolée des autres chambres.Circulation fluide et fonctionnelle.Cellier vers garage

374 000 €
129 m²

Vagnas

TERRAIN ET MAISON

🏡 MAISON DE PLAIN-PIED MODERNE EN L – 129 m²Style et conceptionMaison à l’architecture moderne et épurée, en forme de L pour profiter pleinement de l’ensoleillement plein sud et créer un espace extérieur intime abrité du vent.La construction est traditionnelle, avec des matériaux durables et performants.Les menuiseries anthracite, les volets roulants motorisés et centralisés, et les grandes baies vitrées soulignent le caractère contemporain de l’ensemble.🧱 Organisation intérieure🔸 Aile Jour (au centre du L) – environ 50 m²Entrée avec placard donnant sur une grande pièce de vie traversante, baignée de lumière naturelle grâce à de larges baies vitrées plein sud.Séjour / Salon / Salle à manger ouvrant sur une terrasse couverte orientée plein sud, idéale pour recevoir et profiter des beaux jours.Cuisine ouverte moderne avec îlot central.Cellier / buanderie attenant à la cuisine, communiquant directement avec le garage pour plus de confort au quotidien.🔸 Aile Nuit – Côté EstSuite parentale indépendante avec :une chambre spacieuse ouvrant sur la terrasse,un dressing fonctionnel,une salle d’eau privative (douche à l’italienne, double vasque, WC possible).🔸 Aile Nuit – Côté OuestTrois chambres lumineuses (10 à 11 m² chacune).Salle d’eau commune avec douche et double vasque.WC séparé à proximité.🎨 Prestations et finitionsCarrelage 60×60 cm dans la pièce de vie.Revêtements de sol au choix dans les chambres (parquet ou carrelage assorti).Menuiseries aluminium anthracite à double vitrage.Volets roulants électriques centralisés.Chauffage par pompe à chaleur gainable, offrant confort et performance énergétique.Terrasse couverte orientée plein sud, dans l’angle du L, parfaite pour les repas en extérieur.🌿 Points fortsPlan en L offrant luminosité et intimité dans le jardin.Suite parentale isolée des autres chambres.Circulation fluide et fonctionnelle.Cellier vers garage

345 600 €
129 m²

Orgnac-l'Aven

TERRAIN ET MAISON

🏡 MAISON DE PLAIN-PIED MODERNE EN L – 129 m²Style et conceptionMaison à l’architecture moderne et épurée, en forme de L pour profiter pleinement de l’ensoleillement plein sud et créer un espace extérieur intime abrité du vent.La construction est traditionnelle, avec des matériaux durables et performants.Les menuiseries anthracite, les volets roulants motorisés et centralisés, et les grandes baies vitrées soulignent le caractère contemporain de l’ensemble.🧱 Organisation intérieure🔸 Aile Jour (au centre du L) – environ 50 m²Entrée avec placard donnant sur une grande pièce de vie traversante, baignée de lumière naturelle grâce à de larges baies vitrées plein sud.Séjour / Salon / Salle à manger ouvrant sur une terrasse couverte orientée plein sud, idéale pour recevoir et profiter des beaux jours.Cuisine ouverte moderne avec îlot central.Cellier / buanderie attenant à la cuisine, communiquant directement avec le garage pour plus de confort au quotidien.🔸 Aile Nuit – Côté EstSuite parentale indépendante avec :une chambre spacieuse ouvrant sur la terrasse,un dressing fonctionnel,une salle d’eau privative (douche à l’italienne, double vasque, WC possible).🔸 Aile Nuit – Côté OuestTrois chambres lumineuses (10 à 11 m² chacune).Salle d’eau commune avec douche et double vasque.WC séparé à proximité.🎨 Prestations et finitionsCarrelage 60×60 cm dans la pièce de vie.Revêtements de sol au choix dans les chambres (parquet ou carrelage assorti).Menuiseries aluminium anthracite à double vitrage.Volets roulants électriques centralisés.Chauffage par pompe à chaleur gainable, offrant confort et performance énergétique.Terrasse couverte orientée plein sud, dans l’angle du L, parfaite pour les repas en extérieur.🌿 Points fortsPlan en L offrant luminosité et intimité dans le jardin.Suite parentale isolée des autres chambres.Circulation fluide et fonctionnelle.Cellier vers garage

359 800 €
129 m²

Salavas

TERRAIN ET MAISON

🏡 MAISON DE PLAIN-PIED MODERNE EN L – 129 m²Style et conceptionMaison à l’architecture moderne et épurée, en forme de L pour profiter pleinement de l’ensoleillement plein sud et créer un espace extérieur intime abrité du vent.La construction est traditionnelle, avec des matériaux durables et performants.Les menuiseries anthracite, les volets roulants motorisés et centralisés, et les grandes baies vitrées soulignent le caractère contemporain de l’ensemble.🧱 Organisation intérieure🔸 Aile Jour (au centre du L) – environ 50 m²Entrée avec placard donnant sur une grande pièce de vie traversante, baignée de lumière naturelle grâce à de larges baies vitrées plein sud.Séjour / Salon / Salle à manger ouvrant sur une terrasse couverte orientée plein sud, idéale pour recevoir et profiter des beaux jours.Cuisine ouverte moderne avec îlot central.Cellier / buanderie attenant à la cuisine, communiquant directement avec le garage pour plus de confort au quotidien.🔸 Aile Nuit – Côté EstSuite parentale indépendante avec :une chambre spacieuse ouvrant sur la terrasse,un dressing fonctionnel,une salle d’eau privative (douche à l’italienne, double vasque, WC possible).🔸 Aile Nuit – Côté OuestTrois chambres lumineuses (10 à 11 m² chacune).Salle d’eau commune avec douche et double vasque.WC séparé à proximité.🎨 Prestations et finitionsCarrelage 60×60 cm dans la pièce de vie.Revêtements de sol au choix dans les chambres (parquet ou carrelage assorti).Menuiseries aluminium anthracite à double vitrage.Volets roulants électriques centralisés.Chauffage par pompe à chaleur gainable, offrant confort et performance énergétique.Terrasse couverte orientée plein sud, dans l’angle du L, parfaite pour les repas en extérieur.🌿 Points fortsPlan en L offrant luminosité et intimité dans le jardin.Suite parentale isolée des autres chambres.Circulation fluide et fonctionnelle.Cellier vers garage

364 800 €
129 m²

Labastide-de-Virac

TERRAIN ET MAISON

🏡 MAISON DE PLAIN-PIED MODERNE EN L – 129 m²Style et conceptionMaison à l’architecture moderne et épurée, en forme de L pour profiter pleinement de l’ensoleillement plein sud et créer un espace extérieur intime abrité du vent.La construction est traditionnelle, avec des matériaux durables et performants.Les menuiseries anthracite, les volets roulants motorisés et centralisés, et les grandes baies vitrées soulignent le caractère contemporain de l’ensemble.🧱 Organisation intérieure🔸 Aile Jour (au centre du L) – environ 50 m²Entrée avec placard donnant sur une grande pièce de vie traversante, baignée de lumière naturelle grâce à de larges baies vitrées plein sud.Séjour / Salon / Salle à manger ouvrant sur une terrasse couverte orientée plein sud, idéale pour recevoir et profiter des beaux jours.Cuisine ouverte moderne avec îlot central.Cellier / buanderie attenant à la cuisine, communiquant directement avec le garage pour plus de confort au quotidien.🔸 Aile Nuit – Côté EstSuite parentale indépendante avec :une chambre spacieuse ouvrant sur la terrasse,un dressing fonctionnel,une salle d’eau privative (douche à l’italienne, double vasque, WC possible).🔸 Aile Nuit – Côté OuestTrois chambres lumineuses (10 à 11 m² chacune).Salle d’eau commune avec douche et double vasque.WC séparé à proximité.🎨 Prestations et finitionsCarrelage 60×60 cm dans la pièce de vie.Revêtements de sol au choix dans les chambres (parquet ou carrelage assorti).Menuiseries aluminium anthracite à double vitrage.Volets roulants électriques centralisés.Chauffage par pompe à chaleur gainable, offrant confort et performance énergétique.Terrasse couverte orientée plein sud, dans l’angle du L, parfaite pour les repas en extérieur.🌿 Points fortsPlan en L offrant luminosité et intimité dans le jardin.Suite parentale isolée des autres chambres.Circulation fluide et fonctionnelle.Cellier vers garage

L’actualité immobilière à Barjac

Image du post Pourquoi acheter un terrain en lotissement ? 27/11/2023
Lire l’article
Pourquoi acheter un terrain en lotissement ?
Image du post Vendre son terrain à un promoteur : comment procéder ? 02/11/2023
Lire l’article
Vendre son terrain à un promoteur : comment procéder ?
Image du post Diviser le terrain de sa maison pour le vendre : pourquoi et comment ? 30/10/2023
Lire l’article
Diviser le terrain de sa maison pour le vendre : pourquoi et comment ?
Image du post Acheter un terrain viabilisé : quels avantages ? 20/10/2023
Lire l’article
Acheter un terrain viabilisé : quels avantages ?
Image du post Les 7 étapes incontournables pour bien vendre votre terrain constructible 16/10/2023
Lire l’article
Les 7 étapes incontournables pour bien vendre votre terrain constructible
Image du post 5 points clés à vérifier pour l’achat d’un terrain constructible  16/10/2023
Lire l’article
5 points clés à vérifier pour l’achat d’un terrain constructible