Maison à construire à Blauzac (30700)
Images
Description
VENTE : maison T5 (100 m²) à Blauzac
IDÉALEMENT SITUÉE - MAISON 5 PIÈCES NEUVE
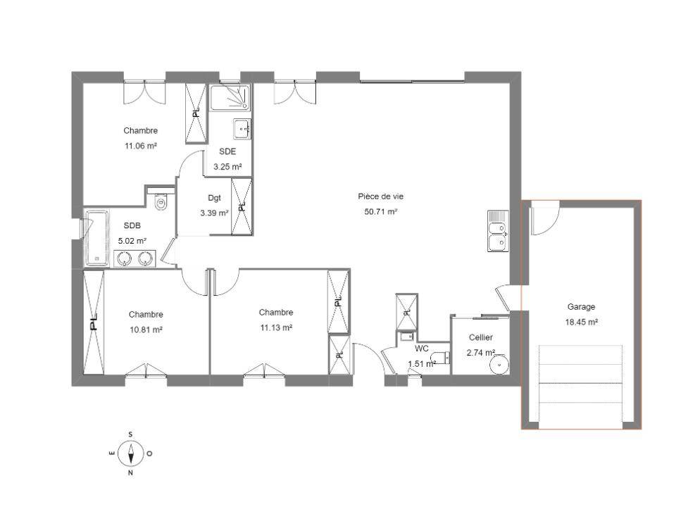
À vendre : à 15 km de Nîmes, Maisons Balency Uzès vous présente cette maison de 5 pièces de plain-pied de 100 m², idéalement située dans Blauzac (30700). Conçue de plain-pied, elle propose trois chambres, une cuisine et deux salles de bains.
Le terrain de la propriété est de 416 m².
Cette maison est neuve.
La maison est située dans un quartier attractif. L'École Primaire Pré de Valence est implantée à moins de 10 minutes à pied. On trouve un accès à la nationale N106 à 10 km. Il y a un tennis dans les environs.
Elle est à vendre pour la somme de 280 600 €.
Contactez Pascale PIEL ((Numéro supprimé)) pour tout renseignement sur le bien. Maisons Balency Uzès vous accompagne dans toutes vos démarches et à toutes les étapes de l'achat.
Logement susceptibles de vous intéresser
Nous vous proposons de découvrir aussi cette sélection de logements situés à moins de 10km de Blauzac et qui seraient susceptibles de vous intéresser.
Uzès
TERRAINFiche N°Id-TCT178355 : UZES Fiche BC178355 : Uzes, secteur 4 km d uz?s, Terrain 420 m2 de 420 m2 – – Equipements annexes : jardin – – chauffage : Aucun – Plus d’informations disponibles sur demande… – Mentions légales : Proposé à la vente à 114900 Euros (honoraires à la charge du vendeur) – Affaire suivie par Mr Guilhem JULLIAN (Agent commercial independant) – Reseau Immo-Diffusion Moussac – Pour plus d’informations, contactez notre secrétariat au (Numéro supprimé) (Appel gratuit ou prix d’une communication locale)
Blauzac
TERRAINTerrain de 343 m² en vente à BlauzacIDÉALEMENT SITUÉ – VUE DÉGAGÉEÀ vendre à 15 km de Nîmes à Blauzac (30700), terrain de 343 m². Réalisez-y votre projet immobilier. Il profite d’une vue dégagée et est exposé plein sud. Dans un secteur prisé, ce terrain idéalement situé est proche des écoles et des commerces. L’École Primaire Pré de Valence est implantée à moins de 10 minutes à pied. La nationale N106 est accessible à 10 km. On trouve un tennis à proximité.Il est à vendre pour la somme de 77 900 €. N’hésitez pas à prendre contact avec Jean-françois MARTERER ((Numéro supprimé)) pour tout renseignement sur le terrain ou sur les démarches à suivre. Faites de vos projets immobiliers une réalité avec Maisons Balency Uzès.Annonce proposée par un Agent Commercial Partenaire.
Blauzac
TERRAINTerrain de 465 m² en vente à BlauzacIDÉALEMENT SITUÉ – VUE DÉGAGÉEÀ Blauzac (30700) à deux pas de Nîmes, découvrez ce terrain de 465 m². Ce terrain, orienté plein sud, profite d’une vue dégagée. Dans un quartier convoité, ce terrain idéalement situé est proche des commerces et des écoles. Il y a l’École Primaire Pré de Valence à moins de 10 minutes à pied. On trouve un accès à la nationale N106 à 10 km. On trouve un tennis dans les environs.Son prix de vente est de 94 900 €. Contactez notre agence (Jean-françois MARTERER : (Numéro supprimé)) pour toute question sur le terrain, sur les modalités de vente ou sur les démarches à suivre. Faites de vos projets immobiliers une réalité avec Maisons Balency Uzès.Annonce proposée par un Agent Commercial Partenaire.
Blauzac
TERRAINVENTE : terrain de 350 m² à BlauzacIDÉALEMENT SITUÉ – PROCHE DE NÎMESÀ Blauzac (30700) en vente à deux pas de Nîmes, découvrez ce terrain de 350 m². Il bénéficie d’une exposition sud-ouest. Dans un quartier recherché, le terrain idéalement situé est proche des écoles et des commerces. On trouve l’École Primaire Pré de Valence à moins de 10 minutes à pied. La nationale N106 est accessible à 10 km. Il y a un tennis à proximité.Son prix de vente est de 82 000 €. N’hésitez pas à prendre contact avec Jean-françois MARTERER (tél : (Numéro supprimé)) pour toute information sur le terrain ou sur les modalités de vente. Faites de vos projets immobiliers une réalité avec Maisons Balency Uzès.Annonce proposée par un Agent Commercial Partenaire.
Blauzac
TERRAINBlauzac : terrain de 425 m² à vendreIDÉALEMENT SITUÉ – PROCHE DE NÎMESÀ quelques kilomètres de Nîmes à Blauzac (30700), terrain de 425 m². Il est orienté à l’ouest. Dans un secteur prisé, le terrain idéalement situé est proche des commerces et des écoles. L’École Primaire Pré de Valence est implantée à moins de 10 minutes à pied. La nationale N106 est accessible à 10 km. On trouve un tennis à proximité du bien.Ce terrain est proposé à l’achat pour 99 000 €. Contactez notre agence (MARTERER Jean-françois : (Numéro supprimé)) pour toute information sur le terrain ou sur les modalités de vente. Donnez vie à vos projets immobiliers avec Maisons Balency Uzès.Annonce proposée par un Agent Commercial Partenaire.
Blauzac
TERRAINTerrain de 350 m² en vente à BlauzacIDÉALEMENT SITUÉ – PROCHE DE NÎMESÀ 15 km de Nîmes à Blauzac (30700), terrain de 350 m². Il bénéficie d’une exposition sud-ouest. Dans un quartier prisé, ce terrain idéalement situé est proche des écoles et des commerces. Il y a l’École Primaire Pré de Valence à moins de 10 minutes à pied. On trouve un accès à la nationale N106 à 10 km. On trouve un tennis dans les environs.Ce terrain est à vendre pour la somme de 85 000 €. Prenez contact avec notre agence (MARTERER Jean-françois : (Numéro supprimé)) pour toute information sur le terrain ou sur les modalités de vente.Annonce proposée par un Agent Commercial Partenaire.
Blauzac
TERRAINVENTE : terrain de 416 m² à BlauzacIDÉALEMENT SITUÉ – PROCHE DE NÎMESÀ Blauzac (30700) à vendre à quelques kilomètres de Nîmes, projetez la maison de vos rêves sur ce terrain de 416 m². Il est exposé au sud-ouest. Dans un secteur convoité, le terrain idéalement situé est proche des écoles et des commerces. Il y a l’École Primaire Pré de Valence à moins de 10 minutes à pied. La nationale N106 est accessible à 10 km. On trouve un tennis à proximité du terrain.Son prix de vente est de 92 000 €. Contactez Jean-françois MARTERER (tél : (Numéro supprimé)) pour tout renseignement sur le terrain ou sur les modalités de vente.Annonce proposée par un Agent Commercial Partenaire.
Blauzac
TERRAIN ET MAISONMaison T4 (86 m²) à vendre à BlauzacIDÉALEMENT SITUÉE – MAISON 4 PIÈCES NEUVEÀ quelques kilomètres de Nîmes, Maisons Balency Uzès vous propose en vente, idéalement située dans Blauzac (30700), cette maison de 4 pièces de plain-pied de 86 m² et de 343 m² de terrain.Conçue de plain-pied, elle dispose de trois chambres, d’une cuisine et d’une salle de bains. Cette maison est neuve.La maison se situe dans un secteur recherché. On trouve l’École Primaire Pré de Valence à moins de 10 minutes à pied. La nationale N106 est accessible à 10 km. Il y a un tennis à proximité.Elle est proposée à l’achat pour 219 200 €.Contactez notre agence (MARTERER Jean-françois : (Numéro supprimé)) pour tout renseignement sur le bien, sur les démarches à suivre ou sur les modalités de vente. Maisons Balency Uzès vous accompagne à toutes les étapes de votre projet et dans tous vos projets immobiliers.Annonce proposée par un Agent Commercial Partenaire.
Blauzac
TERRAIN ET MAISONVENTE : maison T5 (101 m²) à BlauzacIDÉALEMENT SITUÉE – MAISON 5 PIÈCES NEUVEEn vente : à 15 km de Nîmes, découvrez cette maison de 5 pièces de plain-pied de 101 m², idéalement située dans Blauzac (30700).Conçue de plain-pied, elle compte quatre chambres, une cuisine et une salle de bains. La maison est neuve.Le terrain du bien s’étend sur 465 m².Cette maison est située dans un quartier convoité. L’École Primaire Pré de Valence se trouve à moins de 10 minutes à pied. La nationale N106 est accessible à 10 km. Il y a un tennis à quelques minutes de la maison.Elle est à vendre pour la somme de 264 000 €.Contactez notre agence (MARTERER Jean-françois : (Numéro supprimé)) pour obtenir de plus amples renseignements sur la propriété. Maisons Balency Uzès est là pour vous accompagner à toutes les étapes de l’achat.Annonce proposée par un Agent Commercial Partenaire.
L’actualité immobilière à Blauzac
27/11/2023
02/11/2023
30/10/2023
20/10/2023
16/10/2023
16/10/2023