Maison à construire à Castillon-du-Gard (30210)
Images
Description
VENTE d'une maison T5 (120 m²) à Castillon-du-Gard
IDÉALEMENT SITUÉE - MAISON 5 PIÈCES NEUVE
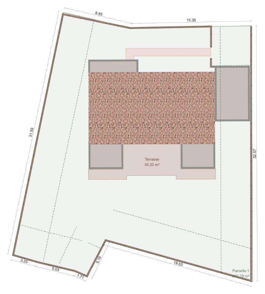
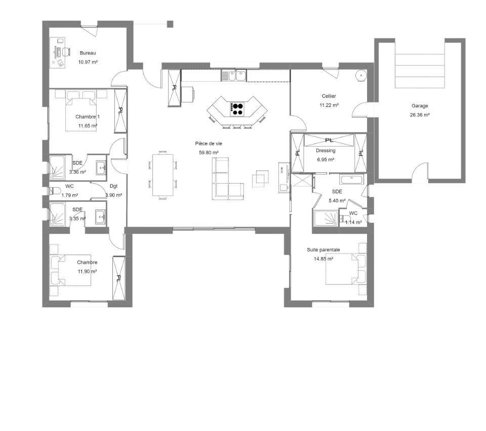
À vendre : à 47 km de la côte méditerranéenne et à quelques kilomètres de Nîmes, idéalement située dans Castillon-du-Gard (30210), Maisons Balency Uzès vous propose cette maison de 5 pièces de plain-pied de 120 m².
Son intérieur inclut quatre chambres, une cuisine et trois salles de bains. La maison est neuve.
Le terrain du bien s'étend sur 981 m².
Cette maison est située dans un secteur prisé. On y trouve une école primaire ainsi qu'une crèche. L'autoroute A9 et la nationale N100 sont accessibles à moins de 5 km. Il y a trois boulangeries à quelques minutes à peine.
Elle est proposée à l'achat pour 530 000 €.
Contactez notre agence (PIEL Pascale : (Numéro supprimé)) pour toute information sur la propriété et sur les modalités de vente. Faites de vos projets immobiliers une réalité avec Maisons Balency Uzès.
Logement susceptibles de vous intéresser
Nous vous proposons de découvrir aussi cette sélection de logements situés à moins de 10km de Castillon-du-Gard et qui seraient susceptibles de vous intéresser.
Estézargues
TERRAINTerrain de 465 m² en vente à EstézarguesIDÉALEMENT SITUÉ – PROCHE DE NÎMESÀ Estézargues (30390) à 42 km de la mer Méditerranée et à 28 km de Nîmes, donnez vie à votre résidence principale ou secondaire sur ce terrain de 465 m². Il bénéficie d’une exposition sud. Dans un secteur prisé, le terrain idéalement situé est proche des écoles et des commerces. Une école primaire est implantée dans le quartier et une structure d’accueil pour les enfants en bas âge. L’autoroute A9 et la nationale N100 sont accessibles à moins de 4 km.Son prix de vente est de 109 900 €. Prenez contact avec Pascale PIEL ((Numéro supprimé)) pour toute information sur le terrain.
Estézargues
TERRAIN ET MAISONMaison de 5 pièces (98 m²) à vendre à EstézarguesIDÉALEMENT SITUÉE – MAISON 5 PIÈCES NEUVEÀ vendre : à 42 km de la mer Méditerranée et à quelques kilomètres de Nîmes, ayez le coup de coeur pour, idéalement située dans Estézargues (30390), cette maison de 5 pièces de 98 m².Cette maison possède 2 niveaux. Son intérieur offre quatre chambres, une cuisine et une salle de bains. Cette maison est neuve.Le terrain de la propriété s’étend sur 465 m².La propriété se situe dans un secteur prisé. On y trouve une école primaire ainsi qu’une crèche. L’autoroute A9 et la nationale N100 sont accessibles à moins de 4 km.Elle est proposée à l’achat pour 288 200 €.Prenez contact avec Pascale PIEL ((Numéro supprimé)) pour tout renseignement sur la maison.
Castillon-du-Gard
TERRAINTerrain de 981 m² en vente à Castillon-du-GardIDÉALEMENT SITUÉ – PROCHE DE NÎMESÀ 47 km de la côte méditerranéenne et à 24 km de Nîmes à Castillon-du-Gard (30210), grand terrain. Réalisez-y votre résidence principale ou secondaire. Il est exposé plein sud. Il y a une école primaire dans le quartier et une structure d’accueil pour les enfants en bas âge. L’autoroute A9 et la nationale N100 sont accessibles à moins de 5 km. On trouve trois boulangeries à quelques minutes à peine.Son prix de vente est de 165 000 €. Contactez Pascale PIEL (tél : (Numéro supprimé)) pour tout renseignement sur ce terrain, sur les modalités de vente ou sur les démarches à suivre.
Castillon-du-Gard
TERRAIN ET MAISONMaison de 5 pièces (123 m²) en vente à Castillon-du-GardIDÉALEMENT SITUÉE – MAISON 5 PIÈCES NEUVEÀ vendre : située à 47 km de la mer Méditerranée et à 24 km de Nîmes, découvrez cette maison de 5 pièces de 123 m² et de 981 m² de terrain idéalement située dans Castillon-du-Gard (30210).Cette maison comporte 2 niveaux. Elle compte trois chambres, une cuisine et deux salles de bains. Cette maison est neuve.La maison se situe dans un quartier prisé. On y trouve une école primaire ainsi qu’une structure d’accueil pour les tout-petits. L’autoroute A9 et la nationale N100 sont accessibles à moins de 5 km. On trouve trois boulangeries à proximité.Son prix de vente est de 455 500 €.Prenez contact avec notre agence (Pascale PIEL : (Numéro supprimé)) pour toute information sur la maison.
Castillon-du-Gard
TERRAIN ET MAISONVENTE d’une maison T5 (120 m²) à Castillon-du-GardIDÉALEMENT SITUÉE – MAISON 5 PIÈCES NEUVEÀ vendre : à 47 km de la côte méditerranéenne et à quelques kilomètres de Nîmes, idéalement située dans Castillon-du-Gard (30210), Maisons Balency Uzès vous propose cette maison de 5 pièces de plain-pied de 120 m².Son intérieur inclut quatre chambres, une cuisine et trois salles de bains. La maison est neuve.Le terrain du bien s’étend sur 981 m².Cette maison est située dans un secteur prisé. On y trouve une école primaire ainsi qu’une crèche. L’autoroute A9 et la nationale N100 sont accessibles à moins de 5 km. Il y a trois boulangeries à quelques minutes à peine.Elle est proposée à l’achat pour 530 000 €.Contactez notre agence (PIEL Pascale : (Numéro supprimé)) pour toute information sur la propriété et sur les modalités de vente. Faites de vos projets immobiliers une réalité avec Maisons Balency Uzès.
Castillon-du-Gard
TERRAINVENTE : terrain de 981 m² à Castillon-du-GardIDÉALEMENT SITUÉ – PROCHE DE NÎMESÀ Castillon-du-Gard (30210) à 47 km de la côte méditerranéenne et à deux pas de Nîmes, projetez la maison de vos rêves sur ce terrain de 981 m². Il bénéficie d’une exposition sud. Une école primaire est implantée dans le quartier et une structure d’accueil pour les enfants en bas âge. L’autoroute A9 et la nationale N100 sont accessibles à moins de 5 km. Il y a trois boulangeries à proximité de la propriété.Son prix de vente est de 165 000 €. Contactez Pascale PIEL (tél : (Numéro supprimé)) pour toute information sur ce terrain. Maisons Balency Uzès vous accompagne dans tous vos projets immobiliers et dans toutes vos démarches.
Castillon-du-Gard
TERRAIN ET MAISONVENTE d’une maison de 5 pièces (100 m²) à Castillon-du-GardIDÉALEMENT SITUÉE – MAISON 5 PIÈCES NEUVEÀ vendre : à 47 km de la mer Méditerranée et à deux pas de Nîmes, Maisons Balency Uzès vous présente, idéalement située dans Castillon-du-Gard (30210), cette maison de 5 pièces de plain-pied de 100 m². Conçue de plain-pied, elle est composée de trois chambres, d’une cuisine et de deux salles de bains.Le terrain de la propriété est de 981 m².La maison est neuve.Cette maison se trouve dans un secteur recherché. Une école primaire y est implantée et une structure d’accueil pour les tout-petits. L’autoroute A9 et la nationale N100 sont accessibles à moins de 5 km. Il y a trois boulangeries à quelques minutes.Son prix de vente est de 360 000 €.Prenez contact avec Pascale PIEL (tél : (Numéro supprimé)) pour toute question sur la maison ou sur les démarches à suivre. Maisons Balency Uzès est là pour vous accompagner à toutes les étapes de votre projet.
Castillon-du-Gard
TERRAIN ET MAISONMaison de 6 pièces (100 m²) à vendre à Castillon-du-GardIDÉALEMENT SITUÉE – MAISON 6 PIÈCES NEUVEÀ vendre : à 47 km de la mer Méditerranée et à 24 km de Nîmes, notre agence Maisons Balency Uzès est heureuse de vous proposer cette maison de 6 pièces de plain-pied de 100 m² et de 981 m² de terrain idéalement située dans Castillon-du-Gard (30210). Son intérieur inclut trois chambres, une cuisine et deux salles de bains.La maison est neuve.Cette maison est située dans un quartier prisé. On y trouve une école primaire ainsi qu’une structure d’accueil pour les enfants en bas âge. L’autoroute A9 et la nationale N100 sont accessibles à moins de 5 km. Il y a trois boulangeries dans les environs.Elle est à vendre pour la somme de 374 000 €.Contactez Pascale PIEL (tél : (Numéro supprimé)) pour tout renseignement sur la maison. Maisons Balency Uzès est là pour vous accompagner dans toutes vos démarches.
Saint-Siffret
TERRAINTerrain de 500 m² dans nouvelle opération à St Siffret.Il y a une école primaire dans le quartier. L’autoroute A9 et les nationales N100 et N106 sont accessibles à moins de 20 km. On trouve une épicerie à quelques minutes.N’hésitez pas à prendre contact avec notre agence Maisons de Manon Caissargues pour toutes questions au (Numéro supprimé). Annonce proposée par un Agent Commercial Partenaire.
L’actualité immobilière à Castillon-du-Gard
27/11/2023
02/11/2023
30/10/2023
20/10/2023
16/10/2023
16/10/2023