Maison à construire à Connaux (30330)
Images
Description
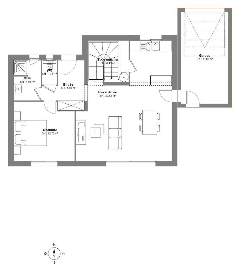
VENTE d'une maison F5 (95 m²) à Connaux
IDÉALEMENT SITUÉE - MAISON 5 PIÈCES NEUVE
En vente à quelques kilomètres d'Avignon, nous vous proposons, idéalement située dans Connaux (30330), cette maison de 5 pièces de 95 m². Elle inclut trois chambres, une cuisine et deux salles de bains.
Le terrain de la propriété s'étend sur 700 m².
Cette maison possède 2 niveaux. Elle est neuve.
La maison se situe dans un quartier convoité. L'École Primaire Robert Terral est implantée à moins de 10 minutes à pied. La nationale N86 est accessible à 9 km. On trouve un tennis, quatre commerces, deux boulangeries, une épicerie, une boucherie-charcuterie et un bureau de poste à quelques minutes à peine.
Elle est proposée à l'achat pour 324 700 €.
Prenez contact avec Pascale PIEL ((Numéro supprimé)) pour toute question sur la maison et sur les démarches à suivre.
Logement susceptibles de vous intéresser
Nous vous proposons de découvrir aussi cette sélection de logements situés à moins de 10km de Connaux et qui seraient susceptibles de vous intéresser.
Saint-Victor-la-Coste
TERRAIN ET MAISONLaissez-vous séduire par cette maison contemporaine à haute performance énergétique (DPE A), pensée pour le confort de toute la famille.Au rez-de-chaussée, un hall d’entrée dessert une vaste pièce de vie lumineuse, intégrant un salon-séjour et une cuisine ouverte moderne. Un cellier attenant vient compléter cet espace, idéal pour une organisation optimale.La suite parentale au rez-de-chaussée offre un véritable cocon avec chambre, dressing et salle de bain privative.À l’étage, trois chambres, chacune avec leur salle de bain dédiée, garantissent intimité et confort. Un dressing sur le palier vient optimiser le rangement de l’espace nuit.Le chauffage gainable assure un confort thermique homogène dans toute la maison, et un double garage vient compléter l’ensemble.Contactez-nous pour découvrir ce bien d’exception.Contactez-nous au (Numéro supprimé).Frais de notaire non compris.Cette annonce a été créée et diffusée avec le logiciel VITAHOME.
Tresques
TERRAINÀ Tresques, construisez la maison de vos rêves !Vous recherchez un cadre de vie agréable, à la fois proche des commodités et entouré de nature ?Ce terrain de 700 m² en 3 faces situé à Tresques, dans le Gard, est une opportunité à ne pas manquer !Une localisation idéale :À seulement 10 minutes de Bagnols-sur-Cèze,15 minutes de Saint-Laurent-des-Arbres,Et 30 minutes d’Avignon.Tresques est un charmant village alliant tranquillité et dynamisme, parfait pour accueillir votre futur projet immobilier.Votre maison, votre style: Avec Toits de Fance, constructeur reconnu, vous bénéficiez d’un accompagnement complet pour concevoir un plan 100 % personnalisé, parfaitement adapté à vos besoins, votre mode de vie et votre budget.Notre priorité ? La maîtrise des coûts et la garantie d’une construction fiable, moderne et pérenne. Choisir Toits de France, c’est choisir :✔ Un interlocuteur unique qui vous guide à chaque étape.✔ Un projet sur mesure, de la conception à la réalisation.✔ La sérénité de construire avec un constructeur local de confiance. Ce terrain rare à Tresques n’attend plus que vous pour devenir le lieu de votre nouvelle vie. Contactez notre agence au (Numéro supprimé) dès aujourd’hui pour découvrir toutes les possibilités et commencer à bâtir la maison qui vous ressemble.
Tresques
TERRAIN ET MAISONMaison contemporaine de plain-pied neuve à construire – Terrain de 700 m² sans vis-à-vis à Tresques.Découvrez cette élégante villa moderne en L de 120 m² habitables, implantée sur un magnifique terrain de 700 m², au calme absolu et sans aucun vis-à-vis. Cette parcelle offre un cadre de vie paisible à seulement quelques minutes des commodités.Le plan de la maison inclut : Un hall d entréeUn spacieux séjour-cuisine lumineux de 50 m² environ, parfait pour vos moments en famille ou entre amisUne suite parentale de 25 m² avec salle d’eau privative et dressingDeux belles chambres de 11,5 m² chacune dont une pouvant faire office de bureauUne salle d’eau supplémentaire et un WC séparéUn cellier pour plus de praticitéUn hall d’entrée fonctionnelle avec placardLe tout sur un terrain de 700 m², idéal pour une piscine, un jardin paysager ou une aire de jeux pour les enfants.✅ Terrain plat, ensoleillé, dans un quartier recherché.✅ Exposition idéale✅ Maison aux normes RE2020.Disponibilité immédiate pour projet de construction personnalisableNe manquez pas cette opportunité rare de construire votre maison dans un environnement privilégié ! Contactez notre agence au (Numéro supprimé). (visuels non contractuels)
Tresques
TERRAIN ET MAISONMaison de plain-pied neuve à construire 3 chambres – Terrain de 700 m² sans vis-à-vis à Tresques.Découvrez cette élégante villa moderne en L de 120 m² habitables, implantée sur un magnifique terrain de 700 m², au calme absolu et sans aucun vis-à-vis. Elle offre un cadre de vie paisible à seulement quelques minutes des commodités.Un intérieur optimisé pour votre bien-être :✅ 90 m² habitables, intelligemment agencés✅ 3 chambres lumineuses, idéales pour toute la famille✅ Grande pièce de vie ouverte sur l’extérieur pour plus de convivialité✅ cellier à proximité immédiate de la cuisine✅ Salle de bain moderne et WC séparé✅ Terrain plat, ensoleillé, dans un quartier recherché avec un extérieur préservé et paisible✅ Terrain spacieux de 700 m², parfait pour vos projets d’aménagement✅ Maison aux normes RE2020.Disponibilité immédiate pour projet de construction personnalisableNe manquez pas cette opportunité rare de construire votre maison dans un environnement privilégié ! Contactez notre agence au (Numéro supprimé). (visuels non contractuels)
Tresques
TERRAINTresques : terrain de 700 m² en venteIDÉALEMENT SITUÉ – PROCHE D’AVIGNONEn vente à deux pas d’Avignon à Tresques (30330), grand terrain. Réalisez-y votre résidence principale ou secondaire. Il est exposé au sud-est. Dans un secteur recherché, le terrain idéalement situé est proche des écoles et des commerces. Il y a une école primaire dans le quartier. Côté transports, on trouve la gare Bagnols-sur-Cèze à moins de 10 minutes en voiture. La nationale N86 est accessible à 8 km. Il y a un tennis, une boulangerie, un commerce, une épicerie et un bureau de poste dans les environs.Son prix de vente est de 109 900 €. Contactez Jean-françois MARTERER (tél : (Numéro supprimé)) pour obtenir de plus amples informations sur le terrain ou sur les modalités de vente. Maisons Balency Uzès est là pour vous accompagner dans toutes vos démarches.Annonce proposée par un Agent Commercial Partenaire.
Tresques
TERRAINTerrain de 734 m² à vendre à TresquesIDÉALEMENT SITUÉ – PROCHE D’AVIGNONÀ quelques kilomètres d’Avignon à Tresques (30330), grand terrain. Il est prêt à accueillir votre résidence principale ou secondaire pour toute la famille. Il bénéficie d’une exposition sud. Dans un quartier prisé, le terrain idéalement situé est proche des écoles et des commerces. Une école primaire est implantée dans le quartier. Niveau transports, on trouve la gare Bagnols-sur-Cèze à moins de 10 minutes en voiture. La nationale N86 est accessible à 8 km. Il y a un tennis, une boulangerie, un commerce, une épicerie et un bureau de poste dans les environs.Il est à vendre pour la somme de 129 900 €. Prenez contact avec notre agence (Jean-françois MARTERER : (Numéro supprimé)) pour tout renseignement sur ce terrain, sur les démarches à suivre ou sur les modalités de vente. Concrétisez vos projets immobiliers avec Maisons Balency Uzès.Annonce proposée par un Agent Commercial Partenaire.
Tresques
TERRAIN ET MAISONTresques : maison de 4 pièces (86 m²) à vendreIDÉALEMENT SITUÉE – MAISON 4 PIÈCES NEUVEEn vente à quelques kilomètres d’Avignon, découvrez cette maison de 4 pièces de plain-pied de 86 m² et de 700 m² de terrain, idéalement située dans Tresques (30330).Conçue de plain-pied, elle propose trois chambres, une cuisine et une salle de bains. La maison est neuve.La maison est située dans un secteur recherché. Une école primaire y est implantée. Niveau transports, il y a la gare Bagnols-sur-Cèze à moins de 10 minutes en voiture. La nationale N86 est accessible à 8 km. On trouve un tennis, une boulangerie, un commerce, une épicerie et un bureau de poste à quelques minutes.Elle est à vendre pour la somme de 251 200 €.Prenez contact avec Jean-françois MARTERER ((Numéro supprimé)) pour toute question sur la maison.Annonce proposée par un Agent Commercial Partenaire.
Tresques
TERRAIN ET MAISONMaison de 5 pièces (101 m²) en vente à TresquesIDÉALEMENT SITUÉE – MAISON 5 PIÈCES NEUVEEn vente à deux pas d’Avignon, votre agence Maisons Balency Uzès est ravie de vous proposer, idéalement située dans Tresques (30330), cette maison de 5 pièces de plain-pied de 101 m² et de 734 m² de terrain. Conçue de plain-pied, elle offre quatre chambres, une cuisine et une salle de bains.La maison est neuve.Cette propriété se trouve dans un quartier attractif. Une école primaire y est implantée. Niveau transports, il y a la gare Bagnols-sur-Cèze à moins de 10 minutes en voiture. La nationale N86 est accessible à 8 km. On trouve un tennis, une boulangerie, un commerce, un bureau de poste et une épicerie à quelques minutes à peine.Elle est à vendre pour la somme de 299 000 €.N’hésitez pas à prendre contact avec Jean-françois MARTERER (tél : (Numéro supprimé)) pour tout renseignement sur la maison, sur les démarches à suivre ou sur les modalités de vente.Annonce proposée par un Agent Commercial Partenaire.
Laudun-l'Ardoise
TERRAINNouveautés, ! Maisons France Confort Agence du Pontet, vous propose ce magnifique terrain plat entièrement viabilisé de 275M²Avec son exposition sud, vous bénéficierez d’un cadre arboré dans un secteur très recherché.Vous pourrez profiter d’une maison allant jusqu’à 120 M² (garage en option) à proximité de toutes les commodités : écoles, commerces, services, transports, à 15mn de Bagnols sur CèzeVilles à proximités : Orsan, Saint Victor Lacoste, Saint Laurent des ArbresElaboration de votre projet sur mesure dans notre agence : Maisons France Confort Le Pontet avec étude financière possible.Faite confiance au premier constructeur national pour vous accompagner en toute sérénité dans vos démarches.Contactez M FINCK Walter au : (Numéro supprimé)
L’actualité immobilière à Connaux
27/11/2023
02/11/2023
30/10/2023
20/10/2023
16/10/2023
16/10/2023