Maison à construire à Garrigues-Sainte-Eulalie (30190)
Images
Description
VENTE : maison T5 (100 m²) à Garrigues-Sainte-Eulalie
IDÉALEMENT SITUÉE - MAISON 5 PIÈCES NEUVE
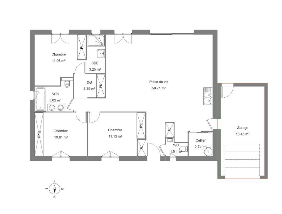
À quelques kilomètres de Nîmes, à vendre idéalement située dans Garrigues-Sainte-Eulalie (30190), venez découvrir cette maison de 5 pièces de plain-pied de 100 m². Elle propose trois chambres, une cuisine et deux salles de bains.
Le terrain de cette maison est de 404 m².
La maison est neuve.
Cette maison se trouve dans un quartier attractif. L'École Élémentaire les Oliviers est implantée à moins de 10 minutes à pied. Côté transports, il y a trois gares (Nozières-Brignon, Saint-Geniès-de-Malgoirès et Boucoiran-et-Nozières) à moins de 10 minutes en voiture. La nationale N106 est accessible à 8 km. On trouve un tennis et deux boulangeries dans les environs.
Son prix de vente est de 284 960 €.
Contactez Pascale PIEL ((Numéro supprimé)) pour plus de renseignements sur la propriété.
Logement susceptibles de vous intéresser
Nous vous proposons de découvrir aussi cette sélection de logements situés à moins de 10km de Garrigues-Sainte-Eulalie et qui seraient susceptibles de vous intéresser.
Uzès
TERRAINFiche N°Id-TCT178355 : UZES Fiche BC178355 : Uzes, secteur 4 km d uz?s, Terrain 420 m2 de 420 m2 – – Equipements annexes : jardin – – chauffage : Aucun – Plus d’informations disponibles sur demande… – Mentions légales : Proposé à la vente à 114900 Euros (honoraires à la charge du vendeur) – Affaire suivie par Mr Guilhem JULLIAN (Agent commercial independant) – Reseau Immo-Diffusion Moussac – Pour plus d’informations, contactez notre secrétariat au (Numéro supprimé) (Appel gratuit ou prix d’une communication locale)
La Rouvière
TERRAINFiche N°Id-TCT177640 : LA ROUVIERE Fiche BC177640 : La rouviere, secteur Nord nimes, Terrain constructible 910m2 de 910 m2 – – Equipements annexes : – chauffage : Aucun – Plus d’informations disponibles sur demande… – Mentions légales : Proposé à la vente à 168000 Euros (honoraires à la charge du vendeur) – Affaire suivie par Mr Guilhem JULLIAN (Agent commercial independant) – Reseau Immo-Diffusion Moussac – Pour plus d’informations, contactez notre secrétariat au (Numéro supprimé) (Appel gratuit ou prix d’une communication locale)
Saint-Geniès-de-Malgoirès
TERRAINCoup de coeur! VENTE d’un terrain de 900 m² à Saint-Geniès-de-Malgoirès hors lotissementDécouvrez un terrain exceptionnel de 900m2 situé dans la charmante commune de Saint-Geniès-de-Malgoirès, disponible en partenariat avec Les Toits de France.Ce terrain offre une opportunité unique de construire votre maison dans un cadre idyllique. Situé dans un environnement paisible, il bénéficie d’une localisation stratégique, proche des commodités tout en offrant une tranquillité sans pareille.En collaboration avec Les Toits de France, vous avez la possibilité de concevoir votre maison sur mesure, parfaitement adaptée à vos besoins et à vos envies. Que vous souhaitiez une maison contemporaine, traditionnelle ou écologique, notre équipe d’experts en construction est là pour concrétiser votre projet.Imaginez-vous profiter d’un jardin ensoleillé, aménagé selon vos préférences, où vous pourrez créer un espace de détente ou organiser des moments conviviaux en famille et entre amis.En choisissant Les Toits de France, vous bénéficiez de notre engagement envers la qualité de construction et des matériaux durables. Notre équipe expérimentée est à votre écoute pour vous accompagner à chaque étape de votre projet, en veillant à ce que votre maison soit à la hauteur de vos attentes les plus élevées.Ne manquez pas cette opportunité exceptionnelle de construire votre maison sur ce terrain de 900 m2 à Saint-Geniès-de-Malgoirès. Contactez-nous dès aujourd’hui pour en savoir plus et commencer à réaliser votre rêve avec Les Toits de France (votre contact (Numéro supprimé))
Garrigues-Sainte-Eulalie
TERRAIN ET MAISONVENTE d’une maison T4 (78 m²) à Garrigues-Sainte-EulalieMAISON 4 PIÈCES NEUVE – PROCHE DE NÎMESEn vente : située à 18 km de Nîmes, Maisons de Manon Villevieille vous propose cette maison de 4 pièces de 78 m² à Garrigues-Sainte-Eulalie (30190).C’est une maison de 2 niveaux. Son intérieur propose trois chambres, une cuisine et une salle de bains. Cette maison est neuve.Le terrain du bien s’étend sur 400 m².L’École Élémentaire les Oliviers est implantée à moins de 10 minutes à pied. Niveau transports en commun, il y a trois gares (Nozières-Brignon, Saint-Geniès-de-Malgoirès et Boucoiran-et-Nozières) à moins de 10 minutes en voiture. La nationale N106 est accessible à 8 km. On trouve un tennis et deux boulangeries dans les environs.Elle est proposée à l’achat pour 232 900 €.Prenez contact avec Vincent BOUBAL ((Numéro supprimé)) pour toute question sur la maison. Maisons de Manon Villevieille vous accompagne à toutes les étapes de l’achat et dans tous vos projets immobiliers.
Garrigues-Sainte-Eulalie
TERRAIN ET MAISONMaison de 4 pièces (85 m²) à vendre à Garrigues-Sainte-EulalieMAISON 4 PIÈCES NEUVE – PROCHE DE NÎMESÀ vendre : localisée à 18 km de Nîmes, découvrez cette maison de 4 pièces de plain-pied de 85 m² et de 400 m² de terrain à Garrigues-Sainte-Eulalie (30190). Elle dispose de trois chambres, d’une cuisine et de deux salles de bains.Cette maison est neuve.Il y a l’École Élémentaire les Oliviers à moins de 10 minutes à pied. Niveau transports, on trouve les gares Nozières-Brignon, Saint-Geniès-de-Malgoirès et Boucoiran-et-Nozières à moins de 10 minutes en voiture. On trouve un accès à la nationale N106 à 8 km. Il y a un tennis et deux boulangeries dans les environs.Elle est proposée à l’achat pour 237 900 €.Prenez contact avec notre agence (Vincent BOUBAL : (Numéro supprimé)) pour toute question sur cette maison ou sur les démarches à suivre.
Saint-Chaptes
TERRAIN ET MAISONSaint-Chaptes : maison T4 (91 m²) en ventePROCHE DE NÎMES – MAISON 4 PIÈCES NEUVEEn vente : localisée à 50 km de la mer Méditerranée et à 16 km de Nîmes, ayez le coup de coeur pour cette maison de 4 pièces de plain-pied de 91 m² et de 600 m² de terrain à Saint-Chaptes (30190).Elle compte trois chambres, une cuisine et deux salles de bains. Cette maison est neuve.Il y a des établissements scolaires maternelles et élémentaires à moins de 10 minutes à pied et, comme l’École Élémentaire Publique. Niveau transports, on trouve quatre gares à moins de 10 minutes en voiture. La nationale N106 est accessible à 5 km. Il y a un tennis, une boulangerie, un commerce, une boucherie-charcuterie, une supérette et un bureau de poste à proximité.Elle est proposée à l’achat pour 302 500 €.Contactez Vincent BOUBAL ((Numéro supprimé)) pour toute question sur le bien. Maisons de Manon Villevieille vous accompagne à toutes les étapes de l’achat et dans toutes vos démarches.
Garrigues-Sainte-Eulalie
TERRAIN ET MAISONVENTE : maison de 4 pièces (105 m²) à Garrigues-Sainte-EulalieMAISON 4 PIÈCES NEUVE – PROCHE DE NÎMESÀ vendre à quelques kilomètres de Nîmes, à Garrigues-Sainte-Eulalie (30190), découvrez cette maison de 4 pièces de 105 m² et de 400 m² de terrain.C’est une maison de 2 niveaux. Son intérieur propose trois chambres, une cuisine et trois salles de bains. Cette maison est neuve.Il y a l’École Élémentaire les Oliviers à moins de 10 minutes à pied. Niveau transports, on trouve les gares Nozières-Brignon, Saint-Geniès-de-Malgoirès et Boucoiran-et-Nozières à moins de 10 minutes en voiture. La nationale N106 est accessible à 8 km. Il y a un tennis et deux boulangeries à proximité de la maison.Son prix de vente est de 299 400 €.N’hésitez pas à prendre contact avec Vincent BOUBAL (tél : (Numéro supprimé)) pour toute information sur la maison ou sur les modalités de vente.
Saint-Geniès-de-Malgoirès
TERRAIN ET MAISONMaison contemporaine de plain-pied neuve à construire – Terrain de 900 m² sans vis-à-vis à St-Geniès-de-Malgoirès Découvrez cette élégante villa moderne en L de 120 m² habitables, implantée sur un magnifique terrain de 900 m², au calme absolu et sans aucun vis-à-vis. Cette parcelle offre un cadre de vie paisible à seulement quelques minutes des commodités.Le plan de la maison inclut : Un hall d entréeUn spacieux séjour-cuisine lumineux de 50 m² environ, parfait pour vos moments en famille ou entre amisUne suite parentale de 25 m² avec salle d’eau privative et dressingDeux belles chambres de 11,5 m² chacune dont une pouvant faire office de bureauUne salle d’eau supplémentaire et un WC séparéUn cellier pour plus de praticitéUn hall d’entrée fonctionnelle avec placardLe tout sur un terrain de 900 m², idéal pour une piscine, un jardin paysager ou une aire de jeux pour les enfants.✅ Terrain plat, ensoleillé, dans un quartier recherché.✅ Exposition idéale et aucune mitoyenneté.✅ Maison aux normes RE2020.Disponibilité immédiate pour projet de construction personnalisableNe manquez pas cette opportunité rare de construire votre maison dans un environnement privilégié ! Contactez notre agence au (Numéro supprimé). (visuels non contractuels)
Saint-Geniès-de-Malgoirès
TERRAIN ET MAISONVilla neuve 90 m² à St-Geniès-de-Malgoirès – Liberté et espace en pleine nature !À construire sur un superbe terrain de 900 m², cette maison moderne et fonctionnelle vous offre tout le confort dont vous rêvez dans un cadre privilégié, sans vis-à-vis. Un intérieur optimisé pour votre bien-être :✅ 90 m² habitables, intelligemment agencés✅ 3 chambres lumineuses, idéales pour toute la famille✅ Grande pièce de vie ouverte sur l’extérieur pour plus de convivialité✅ cellier à proximité immédiate de la cuisine✅ Salle de bain moderne et WC séparés🌿 Un extérieur préservé et paisible :✅ Terrain spacieux de 900 m², parfait pour vos projets d’aménagement✅ Cadre champêtre, calme et sans nuisance✅ Possibilité de terrasse, piscine, jardin paysager…Offrez-vous une maison à votre image, dans un environnement exceptionnel !📞 Contactez notre agence (Numéro supprimé) dès maintenant pour plus d’infos !(visuels non contractuels)
L’actualité immobilière à Garrigues-Sainte-Eulalie
27/11/2023
02/11/2023
30/10/2023
20/10/2023
16/10/2023
16/10/2023