Maison à construire à Lirac (30126)
Images
Description
VENTE d'une maison T4 (81 m²) à Lirac
IDÉALEMENT SITUÉE - MAISON 4 PIÈCES NEUVE
En vente à deux pas d'Avignon, votre agence Maisons France Confort Le Pontet est ravie de vous présenter cette maison de 4 pièces de plain-pied de 81 m² idéalement située dans Lirac (30126).
Son intérieur propose trois chambres, une cuisine et une salle de bains. Cette maison est neuve.
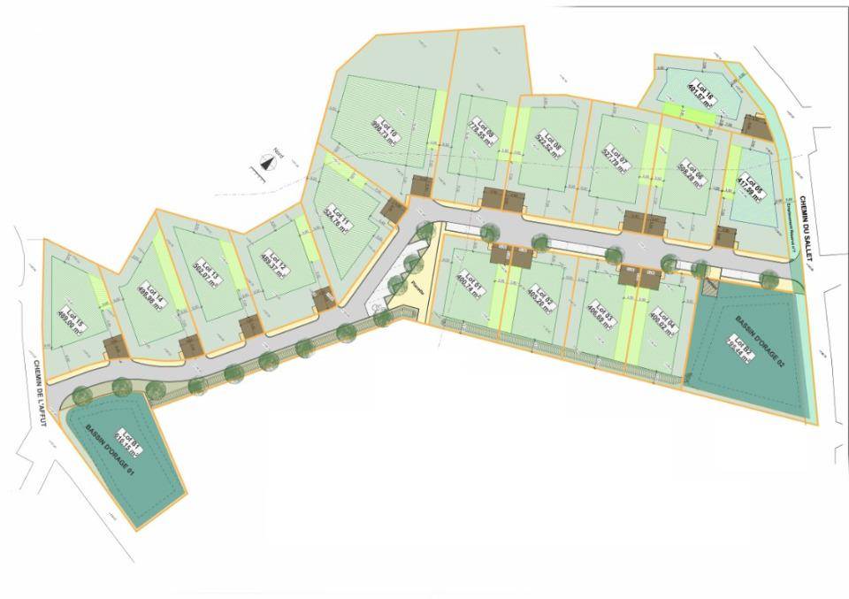
Le terrain de la propriété est de 499 m².
La maison se trouve dans un secteur prisé. On y trouve une école primaire. L'autoroute A9 est accessible à 4 km. Il y a une boulangerie dans les environs.
Elle est proposée à l'achat pour 270 000 €.
Prenez contact avec notre agence (MONTAGNE Lionel : (Numéro supprimé)) pour tout renseignement sur la maison, sur les démarches à suivre ou sur les modalités de vente.
Logement susceptibles de vous intéresser
Nous vous proposons de découvrir aussi cette sélection de logements situés à moins de 10km de Lirac et qui seraient susceptibles de vous intéresser.
Tavel
TERRAIN30126 TAVEL- Gard – Terrain 473 m² – 99 000 Euros -Nicolas JENNY vous propose ce terrain plat de 470 m², arboré et en partie clôturé dans un environnement calme tout en restant proche des commodités (commerces, écoles, transports).Viabilités en bordure, ce terrain est prêt à accueillir votre projet de construction.Exposition agréable offrant une belle luminosité tout au long de la journée.Libre de constructeur : laissez libre cours à vos envies architecturales.Secteur recherché, cadre de vie paisible et familial.Une belle opportunité à saisir pour construire la maison dans un cadre agréablePrix de vente : 99 000 Euros (honoraires à la charge du vendeur).Mandat 409432. Dossier et photos sur demande.Selon l’article L.561.5 du Code Monétaire et Financier, pour l’organisation de la visite, la présentation d’une pièce d’identité vous sera demandée.Informations sur les risques auxquels ce bien est exposé sont disponibles sur le site Géorisques : www.georisques.gouv.frNicolas JENNY 06 72 999 518, (Email supprimé).Cette présente annonce a été rédigée sous la responsabilité éditoriale de Nicolas JENNY agissant en qualité de conseiller immobilier indépendant sous portage salarial auprès de SAS PROPRIETES PRIVEES, au capital de 44 920 Euros, ZAC LE CHÊNE FERRÉ – 44 ALLÉE DES CINQ CONTINENTS 44120 VERTOU. SIRET 487 624 777 00040, RCS Nantes. Carte Professionnelle Transactions sur immeubles et fonds de commerce (T) et Gestion immobilière (G) n°CPI 4401 2016 000 010 388 délivrée par la CCI Nantes – Saint Nazaire. Compte séquestre n(Numéro supprimé)67 BPA SAINT-SEBASTIEN-SUR-LOIRE (44230). Garantie GALIAN-SMABTP – 89 rue de la Boétie, 75008 Paris – n°28137 J pour 2 000 000 euros pour T et 120 000 euros pour G. Assurance responsabilité civile professionnelle par GALIAN-SMABTP n° de police 28137.J.
Roquemaure
TERRAINDernière opportunité, ! Maisons France Confort Agence du Pontet, vous propose ce magnifique terrain plat entièrement viabilisé de 400M²Avec son exposition sud, vous bénéficierez d’un cadre arboré dans un secteur très recherché.Vous pourrez profiter d’une maison allant jusqu’à 120 M² à proximité de toutes les commodités : écoles, commerces, services, transports, à 30mn d’Avignon et de Nimes.Villes à proximités : Sauveterre, Lirac, saint laurent des arbres…Elaboration de votre projet sur mesure dans notre agence : Maisons France Confort Le Pontet avec étude financière possible.Faite confiance au premier constructeur national pour vous accompagner en toute sérénité dans vos démarches.Contactez M FINCK Walter au : (Numéro supprimé)
Roquemaure
TERRAIN ET MAISONDernière opportunité, ! Maisons France Confort Agence du Pontet, vous propose ce magnifique terrain plat entièrement viabilisé de 400M²Avec son exposition sud, vous bénéficierez d’un cadre arboré dans un secteur très recherché.Vous pourrez profiter d’une maison allant jusqu’à 120 M² (garage en option) à proximité de toutes les commodités : écoles, commerces, services, transports, à 30mn d’Avignon et de Nimes.Villes à proximités : Sauveterre, Lirac, saint laurent des arbres…Elaboration de votre projet sur mesure dans notre agence : Maisons France Confort Le Pontet avec étude financière possible.Faite confiance au premier constructeur national pour vous accompagner en toute sérénité dans vos démarches.Contactez M FINCK Walter au : (Numéro supprimé)
Roquemaure
TERRAIN ET MAISONDernière opportunité, ! Maisons France Confort Agence du Pontet, vous propose ce magnifique terrain plat entièrement viabilisé de 400M²Avec son exposition sud, vous bénéficierez d’un cadre arboré dans un secteur très recherché.Vous pourrez profiter d’une maison allant jusqu’à 120 M² (garage en option) à proximité de toutes les commodités : écoles, commerces, services, transports, à 30mn d’Avignon et de Nimes.Villes à proximités : Sauveterre, Lirac, saint laurent des arbres…Elaboration de votre projet sur mesure dans notre agence : Maisons France Confort Le Pontet avec étude financière possible.Faite confiance au premier constructeur national pour vous accompagner en toute sérénité dans vos démarches.Contactez M FINCK Walter au : (Numéro supprimé)
Laudun-l'Ardoise
TERRAINNouveautés, ! Maisons France Confort Agence du Pontet, vous propose ce magnifique terrain plat entièrement viabilisé de 275M²Avec son exposition sud, vous bénéficierez d’un cadre arboré dans un secteur très recherché.Vous pourrez profiter d’une maison allant jusqu’à 120 M² (garage en option) à proximité de toutes les commodités : écoles, commerces, services, transports, à 15mn de Bagnols sur CèzeVilles à proximités : Orsan, Saint Victor Lacoste, Saint Laurent des ArbresElaboration de votre projet sur mesure dans notre agence : Maisons France Confort Le Pontet avec étude financière possible.Faite confiance au premier constructeur national pour vous accompagner en toute sérénité dans vos démarches.Contactez M FINCK Walter au : (Numéro supprimé)
Lirac
TERRAINL »agence Maisons France Confort du Pontet vous propose, en accord avec son partenaire foncier et en exclusivité ce joli terrain de 499 m² sur la commune de LIRAC . SAZE se situe à 10 minutes d »Avignon et à 15 minutes de l » accès a l autoroute a 15mn . Le terrain est exposé plein sud, il est viabilités et se situe dans une zone très calme tout proche du centre ville. Vous trouverez dans les alentours un hôpital, un centre commercial, un pôle santé, une école, collège, arrêt de bus etc…Pour plus d »informations, n »hésitez à contacter Lionel Montagne de l »agence de Maisons France Confort Le Pontet au (Numéro supprimé)
Laudun-l'Ardoise
TERRAIN ET MAISONNouveautés, ! Maisons France Confort Agence du Pontet, vous propose ce magnifique terrain plat entièrement viabilisé de 275M²Avec son exposition sud, vous bénéficierez d’un cadre arboré dans un secteur très recherché.Vous pourrez profiter d’une maison allant jusqu’à 120 M² (garage en option) à proximité de toutes les commodités : écoles, commerces, services, transports, à 15mn de Bagnols sur CèzeVilles à proximités : Orsan, Saint Victor Lacoste, Saint Laurent des ArbresElaboration de votre projet sur mesure dans notre agence : Maisons France Confort Le Pontet avec étude financière possible.Faite confiance au premier constructeur national pour vous accompagner en toute sérénité dans vos démarches.Contactez M FINCK Walter au : (Numéro supprimé)
Laudun-l'Ardoise
TERRAIN ET MAISONNouveautés, ! Maisons France Confort Agence du Pontet, vous propose ce magnifique terrain plat entièrement viabilisé de 275M²Avec son exposition sud, vous bénéficierez d’un cadre arboré dans un secteur très recherché.Vous pourrez profiter d’une maison allant jusqu’à 120 M² (garage en option) à proximité de toutes les commodités : écoles, commerces, services, transports, à 15mn de Bagnols sur CèzeVilles à proximités : Orsan, Saint Victor Lacoste, Saint Laurent des ArbresElaboration de votre projet sur mesure dans notre agence : Maisons France Confort Le Pontet avec étude financière possible.Faite confiance au premier constructeur national pour vous accompagner en toute sérénité dans vos démarches.Contactez M FINCK Walter au : (Numéro supprimé)
Laudun-l'Ardoise
TERRAIN ET MAISONNouveautés, ! Maisons France Confort Agence du Pontet, vous propose ce magnifique terrain plat entièrement viabilisé de 275M²Avec son exposition sud, vous bénéficierez d’un cadre arboré dans un secteur très recherché.Vous pourrez profiter d’une maison allant jusqu’à 120 M² (garage en option) à proximité de toutes les commodités : écoles, commerces, services, transports, à 15mn de Bagnols sur CèzeVilles à proximités : Orsan, Saint Victor Lacoste, Saint Laurent des ArbresElaboration de votre projet sur mesure dans notre agence : Maisons France Confort Le Pontet avec étude financière possible.Faite confiance au premier constructeur national pour vous accompagner en toute sérénité dans vos démarches.Contactez M FINCK Walter au : (Numéro supprimé)
L’actualité immobilière à Lirac
27/11/2023
02/11/2023
30/10/2023
20/10/2023
16/10/2023
16/10/2023