Maison à construire à Mus (30121)
Images
Description
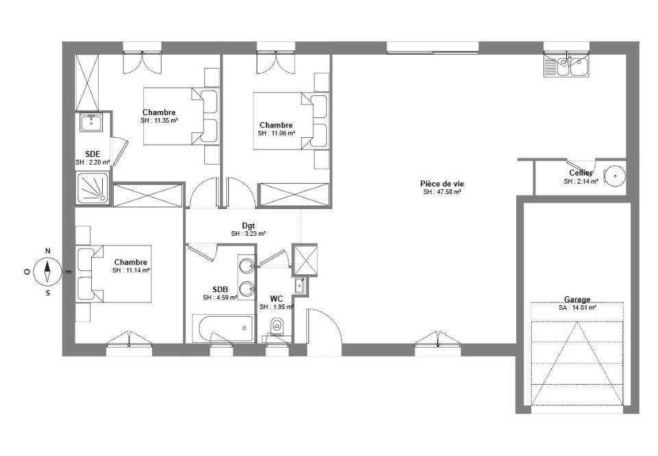
VENTE d'une maison de 5 pièces (95 m²) à Mus
IDÉALEMENT SITUÉE - MAISON 5 PIÈCES NEUVE
En vente : localisée à 23 km de la côte méditerranéenne et à 30 km de Montpellier, ayez le coup de coeur pour cette maison de 5 pièces de plain-pied de 95 m², idéalement située dans Mus (30121).
Elle inclut trois chambres, une cuisine et deux salles de bains. Cette maison est neuve.
Le terrain du bien s'étend sur 422 m².
La maison se situe dans un secteur attractif. L'École Primaire les Amandiers est implantée à moins de 10 minutes à pied. Niveau transports en commun, on trouve huit gares à moins de 10 minutes en voiture. L'autoroute A9 est accessible à 1 km. Il y a deux commerces, une boulangerie, une épicerie et un bureau de poste à proximité du logement.
Son prix de vente est de 341 600 €.
Prenez contact avec notre agence (Pascale PIEL : (Numéro supprimé)) pour plus d'informations sur la maison, sur les démarches à suivre et sur les modalités de vente.
Logement susceptibles de vous intéresser
Nous vous proposons de découvrir aussi cette sélection de logements situés à moins de 10km de Mus et qui seraient susceptibles de vous intéresser.
Calvisson
TERRAINCoeur de Village! Terrain à bâtir hors lotissement de 544 m2 à Calvisson. Zone B1 PTZDécouvrez un terrain sur la charmante commune de Calvisson, dans le département du Gard avec Les Toits de France, constructeur de maisons individuelles. Nichée au coeur de la région provençale, Calvisson offre un cadre de vie idéal pour construire votre maison de rêve.Ce terrain, d’une superficie généreuse, vous permettra de réaliser un projet sur mesure, en harmonie avec vos besoins et vos envies.Calvisson bénéficie d’une atmosphère authentique. Vous serez séduit par son charme provençal et son ambiance conviviale.La commune offre également une qualité de vie exceptionnelle. Vous pourrez profiter de promenades relaxantes dans les espaces naturels environnants, découvrir les sentiers de randonnée à travers les paysages vallonnés et vous ressourcer en pleine nature.En choisissant de construire votre maison à Calvisson avec Les Toits de France constructeur CCMI, vous profiterez également de la proximité des commodités. Les commerces, les écoles et les services sont facilement accessibles, vous offrant un confort de vie optimal au quotidien. Chez Les Toits de France, nous mettons à votre disposition notre expertise en matière de construction. Notre équipe d’experts sera là pour vous accompagner à chaque étape de votre projet, de la conception à la réalisation, en veillant à ce que votre maison reflète votre style de vie et réponde à toutes vos exigences.Ne laissez pas passer cette opportunité de construire votre maison de rêve sur ce terrain exceptionnel à Calvisson. Contactez notre agence ((Numéro supprimé) ) dès aujourd’hui pour discuter de votre projet avec Les Toits de France.
Calvisson
TERRAIN ET MAISONCoeur de Village! Maison neuve à construire 4 chambres sur terrain de 544 m2 à Calvisson. Zone B1 PTZ jardin, cadre idéal !Une maison bien pensée pour votre confort✔ 4 belles chambres avec rangements✔ Grande pièce de vie lumineuse, ouverte sur l’extérieur, avec espace cuisine✔ Salle de bain moderne avec douche ou baignoire selon vos envies✔ Chauffage économique et isolation performante pour un confort toute l’année✔ Grand jardin privatif, parfait pour profiter des beaux jours en toute tranquillitéEn choisissant de construire votre maison à Calvisson avec Les Toits de France constructeur CCMI, vous profiterez également de la proximité des commodités. Les commerces, les écoles et les services sont facilement accessibles, vous offrant un confort de vie optimal au quotidien. Chez Les Toits de France, nous mettons à votre disposition notre expertise en matière de construction. Notre équipe d’experts sera là pour vous accompagner à chaque étape de votre projet, de la conception à la réalisation, en veillant à ce que votre maison reflète votre style de vie et réponde à toutes vos exigences.Ne laissez pas passer cette opportunité de construire votre maison de rêve sur ce terrain exceptionnel à Calvisson. Contactez notre agence ((Numéro supprimé) ) dès aujourd’hui pour discuter de votre projet avec Les Toits de France. (visuels non contractuels)
Calvisson
TERRAIN ET MAISONCoeur de Village! Maison neuve à construire une ou 2 chambres (au choix) sur terrain de 544 m2 à Calvisson. Zone B1 PTZ jardin, cadre idéal !Une maison bien pensée pour votre confort✔ 2 belles chambres avec rangements✔ Grande pièce de vie lumineuse, ouverte sur l’extérieur, avec espace cuisine✔ Salle de bain moderne avec douche ou baignoire selon vos envies✔ Chauffage économique et isolation performante pour un confort toute l’année✔ Grand jardin privatif, parfait pour profiter des beaux jours en toute tranquillitéEn choisissant de construire votre maison à Calvisson avec Les Toits de France constructeur CCMI, vous profiterez également de la proximité des commodités. Les commerces, les écoles et les services sont facilement accessibles, vous offrant un confort de vie optimal au quotidien. Chez Les Toits de France, nous mettons à votre disposition notre expertise en matière de construction. Notre équipe d’experts sera là pour vous accompagner à chaque étape de votre projet, de la conception à la réalisation, en veillant à ce que votre maison reflète votre style de vie et réponde à toutes vos exigences.Ne laissez pas passer cette opportunité de construire votre maison de rêve sur ce terrain exceptionnel à Calvisson. Contactez notre agence ((Numéro supprimé) ) dès aujourd’hui pour discuter de votre projet avec Les Toits de France. (visuels non contractuels)
Mus
TERRAINVENTE d’un terrain de 260 m² à MusIDÉALEMENT SITUÉ – VUE DÉGAGÉEÀ Mus (30121) à 23 km de la côte méditerranéenne et à quelques kilomètres de Montpellier, venez découvrir ce terrain de 260 m². Ce terrain, sur les hauteurs, avec vue dégagée, est orienté plein sud. Entouré d’oliviers et de pins avec accès sécurisé, ce terrain idéalement situé est proche des écoles et des commerces. Il y a l’École Primaire les Amandiers à moins de 10 minutes à pied. Niveau transports en commun, on trouve huit gares à moins de 10 minutes en voiture. L’autoroute A9 est accessible à 1 km. Il y a deux commerces, une boulangerie, une épicerie et un bureau de poste dans les environs.Son prix de vente est de 130 000 €. Prenez contact avec Jean-François MARTERER (tél : (Numéro supprimé)) pour obtenir de plus amples renseignements sur le terrain.Annonce proposée par un Agent Commercial Partenaire.
Mus
TERRAIN ET MAISONMus : maison T4 (85 m²) en venteIDÉALEMENT SITUÉE – MAISON 4 PIÈCES NEUVEEn vente : localisée à 23 km de la côte méditerranéenne et à deux pas de Montpellier, idéalement située dans Mus (30121) sur les hauteurs, avec vue dégagée, et orienté plein sud. Entouré d’oliviers et de pins avec accès sécurisé, Nous sommes heureux de vous présenter cette maison de 4 pièces de 85 m².Il s’agit d’une maison de 2 niveaux. Son intérieur propose trois chambres, une cuisine et une salle de bains. Cette maison est neuve.Le terrain de la propriété est de 260 m².Cette maison se situe dans un quartier recherché. L’École Primaire les Amandiers se trouve à moins de 10 minutes à pied. Côté transports en commun, il y a huit gares à moins de 10 minutes en voiture. Il y a un accès à l’autoroute A9 à 1 km. On trouve deux commerces, une boulangerie, un bureau de poste et une épicerie à proximité de la maison.Elle est à vendre pour la somme de 285 000 €.Contactez Jean-françois MARTERER ((Numéro supprimé)) pour toute question sur la maison, sur les modalités de vente ou sur les démarches à suivre. Maisons Balency Uzès vous accompagne à toutes les étapes de l’achat et dans tous vos projets immobiliers.Annonce proposée par un Agent Commercial Partenaire.
Aubais
TERRAINTerrain de 400 m² à vendre à AubaisIDÉALEMENT SITUÉ – PROCHE DE MONTPELLIERÀ 23 km de la mer Méditerranée et à 27 km de Montpellier à Aubais (30250), terrain de 400 m². Il est prêt à accueillir votre projet de construction pour toute la famille. Il est orienté au sud. Dans un secteur prisé, ce terrain idéalement situé est proche des commerces et des écoles. Des écoles primaires sont implantées dans le quartier et une structure d’accueil pour les enfants en bas âge. Niveau transports, il y a six gares à moins de 10 minutes en voiture. On trouve un accès à l’autoroute A9 à 4 km. On trouve une bibliothèque, un bureau de poste et une épicerie à quelques minutes de la propriété.Il est à vendre pour la somme de 155 900 €. Contactez notre agence (Jean-françois MARTERER : (Numéro supprimé)) pour plus d’informations sur le terrain. Faites de vos projets immobiliers une réalité avec Maisons Balency Uzès.Annonce proposée par un Agent Commercial Partenaire.
Aubais
TERRAINVENTE d’un terrain de 502 m² à AubaisIDÉALEMENT SITUÉ – PROCHE DE MONTPELLIERÀ 23 km de la mer Méditerranée et à 27 km de Montpellier à Aubais (30250), grand terrain. Il est prêt à accueillir la maison de vos rêves pour toute la famille. Il est orienté à l’ouest. Dans un quartier recherché, le terrain idéalement situé est proche des écoles et des commerces. Des établissements scolaires maternelles et élémentaires sont implantés dans le quartier et une crèche. Niveau transports, il y a six gares à moins de 10 minutes en voiture. L’autoroute A9 est accessible à 4 km. On trouve une bibliothèque, un bureau de poste et une épicerie à quelques minutes à peine.Son prix de vente est de 189 900 €. Contactez Jean-françois MARTERER (tél : (Numéro supprimé)) pour obtenir de plus amples renseignements sur ce terrain, sur les modalités de vente ou sur les démarches à suivre. Maisons Balency Uzès est là pour vous accompagner à toutes les étapes de l’achat.Annonce proposée par un Agent Commercial Partenaire.
Aubais
TERRAIN ET MAISONAubais : maison F4 (85 m²) en venteIDÉALEMENT SITUÉE – MAISON 4 PIÈCES NEUVEÀ vendre : située à 23 km de la côte méditerranéenne et à quelques kilomètres de Montpellier, laissez vous charmer par, idéalement située dans Aubais (30250), cette maison de 4 pièces de 85 m² et de 400 m² de terrain.Il s’agit d’une maison de 2 niveaux. Son intérieur compte trois chambres, une cuisine et une salle de bains. La maison est neuve.Cette maison est située dans un quartier convoité. Des établissements scolaires maternelles et élémentaires y sont implantés et une crèche. Niveau transports en commun, il y a six gares à moins de 10 minutes en voiture. L’autoroute A9 est accessible à 4 km. On trouve une bibliothèque, une épicerie et un bureau de poste à proximité.Elle est à vendre pour la somme de 314 840 €.N’hésitez pas à prendre contact avec Jean-françois MARTERER ((Numéro supprimé)) pour plus d’informations sur la maison. Maisons Balency Uzès vous accompagne à toutes les étapes de l’achat et dans toutes vos démarches.Annonce proposée par un Agent Commercial Partenaire.
Aubais
TERRAIN ET MAISONAubais : maison T4 (98 m²) à vendreIDÉALEMENT SITUÉE – MAISON 4 PIÈCES NEUVEÀ 23 km de la côte méditerranéenne et à deux pas de Montpellier, nous vous proposons cette maison de 4 pièces de 98 m² et de 502 m² de terrain à vendre idéalement située dans Aubais (30250). Elle propose trois chambres, une cuisine et une salle de bains.Cette maison comporte 2 niveaux. Elle est neuve.La maison se situe dans un secteur attractif. Des écoles maternelles et élémentaires y sont implantées et une crèche. Côté transports, on trouve six gares à moins de 10 minutes en voiture. On trouve un accès à l’autoroute A9 à 4 km. Il y a une bibliothèque, un bureau de poste et une épicerie à proximité.Son prix de vente est de 368 200 €.N’hésitez pas à prendre contact avec notre agence (Jean-françois MARTERER : (Numéro supprimé)) pour toute information sur la maison ou sur les modalités de vente. Maisons Balency Uzès vous accompagne dans toutes vos démarches et dans tous vos projets immobiliers.Annonce proposée par un Agent Commercial Partenaire.
L’actualité immobilière à Mus
27/11/2023
02/11/2023
30/10/2023
20/10/2023
16/10/2023
16/10/2023