Maison à construire à Rochefort-du-Gard (30650)
Images
Description
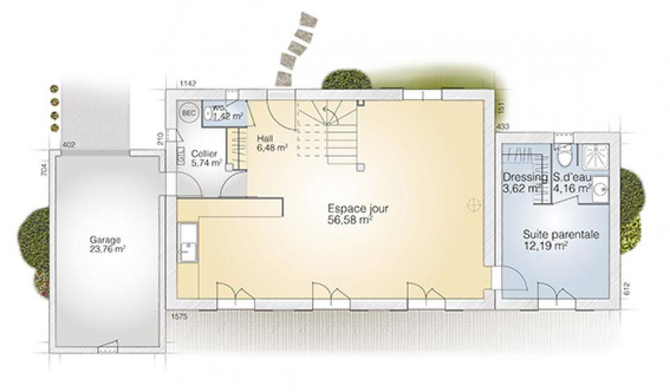
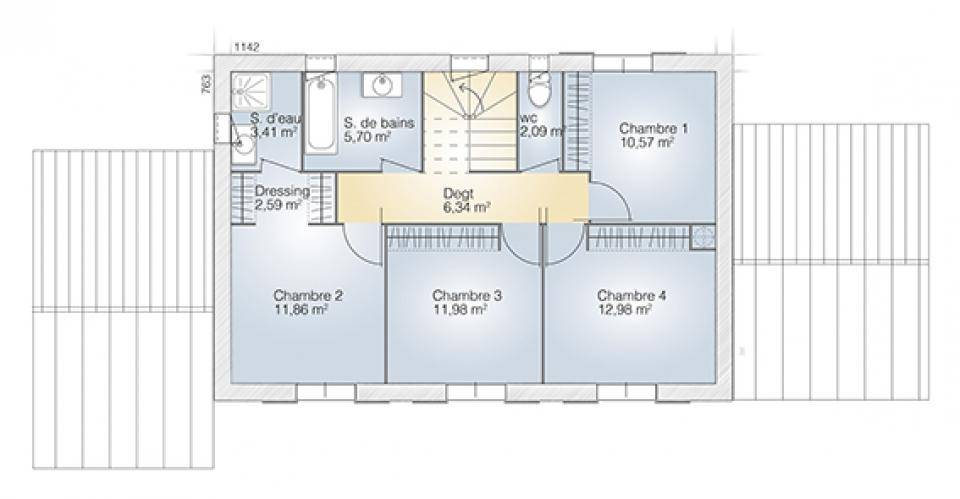
VENTE d'une maison de 7 pièces (140 m²) à Rochefort-du-Gard
IDÉALEMENT SITUÉE - MAISON 7 PIÈCES NEUVE
En vente : à 45 km de la côte méditerranéenne et à deux pas d'Avignon, nous vous présentons cette maison de 7 pièces de 140 m² idéalement située dans Rochefort-du-Gard (30650). Elle propose cinq chambres, une cuisine et trois salles de bains.
Le terrain de la propriété est de 703 m².
Il s'agit d'une maison de 2 niveaux. Elle est neuve.
La maison se situe dans un quartier attractif. On trouve des écoles maternelles et élémentaires à moins de 10 minutes à pied. Niveau transports en commun, il y a trois gares (Avignon TGV, Avignon TGV terminal TER et Avignon Centre) à moins de 10 minutes en voiture. L'autoroute A9 et les nationales N7 et N100 sont accessibles à moins de 9 km. On trouve un tennis, quatre commerces, une boulangerie, un bureau de poste et une supérette dans les environs.
Elle est à vendre pour la somme de 400 800 €.
Prenez contact avec notre agence (Pascale PIEL : (Numéro supprimé)) pour toute question sur la maison ou sur les modalités de vente.
Logement susceptibles de vous intéresser
Nous vous proposons de découvrir aussi cette sélection de logements situés à moins de 10km de Rochefort-du-Gard et qui seraient susceptibles de vous intéresser.
Saint-Victor-la-Coste
TERRAIN ET MAISONLaissez-vous séduire par cette maison contemporaine à haute performance énergétique (DPE A), pensée pour le confort de toute la famille.Au rez-de-chaussée, un hall d’entrée dessert une vaste pièce de vie lumineuse, intégrant un salon-séjour et une cuisine ouverte moderne. Un cellier attenant vient compléter cet espace, idéal pour une organisation optimale.La suite parentale au rez-de-chaussée offre un véritable cocon avec chambre, dressing et salle de bain privative.À l’étage, trois chambres, chacune avec leur salle de bain dédiée, garantissent intimité et confort. Un dressing sur le palier vient optimiser le rangement de l’espace nuit.Le chauffage gainable assure un confort thermique homogène dans toute la maison, et un double garage vient compléter l’ensemble.Contactez-nous pour découvrir ce bien d’exception.Contactez-nous au (Numéro supprimé).Frais de notaire non compris.Cette annonce a été créée et diffusée avec le logiciel VITAHOME.
Tavel
TERRAIN30126 TAVEL- Gard – Terrain 473 m² – 99 000 Euros -Nicolas JENNY vous propose ce terrain plat de 470 m², arboré et en partie clôturé dans un environnement calme tout en restant proche des commodités (commerces, écoles, transports).Viabilités en bordure, ce terrain est prêt à accueillir votre projet de construction.Exposition agréable offrant une belle luminosité tout au long de la journée.Libre de constructeur : laissez libre cours à vos envies architecturales.Secteur recherché, cadre de vie paisible et familial.Une belle opportunité à saisir pour construire la maison dans un cadre agréablePrix de vente : 99 000 Euros (honoraires à la charge du vendeur).Mandat 409432. Dossier et photos sur demande.Selon l’article L.561.5 du Code Monétaire et Financier, pour l’organisation de la visite, la présentation d’une pièce d’identité vous sera demandée.Informations sur les risques auxquels ce bien est exposé sont disponibles sur le site Géorisques : www.georisques.gouv.frNicolas JENNY 06 72 999 518, (Email supprimé).Cette présente annonce a été rédigée sous la responsabilité éditoriale de Nicolas JENNY agissant en qualité de conseiller immobilier indépendant sous portage salarial auprès de SAS PROPRIETES PRIVEES, au capital de 44 920 Euros, ZAC LE CHÊNE FERRÉ – 44 ALLÉE DES CINQ CONTINENTS 44120 VERTOU. SIRET 487 624 777 00040, RCS Nantes. Carte Professionnelle Transactions sur immeubles et fonds de commerce (T) et Gestion immobilière (G) n°CPI 4401 2016 000 010 388 délivrée par la CCI Nantes – Saint Nazaire. Compte séquestre n(Numéro supprimé)67 BPA SAINT-SEBASTIEN-SUR-LOIRE (44230). Garantie GALIAN-SMABTP – 89 rue de la Boétie, 75008 Paris – n°28137 J pour 2 000 000 euros pour T et 120 000 euros pour G. Assurance responsabilité civile professionnelle par GALIAN-SMABTP n° de police 28137.J.
Roquemaure
TERRAINDernière opportunité, ! Maisons France Confort Agence du Pontet, vous propose ce magnifique terrain plat entièrement viabilisé de 400M²Avec son exposition sud, vous bénéficierez d’un cadre arboré dans un secteur très recherché.Vous pourrez profiter d’une maison allant jusqu’à 120 M² à proximité de toutes les commodités : écoles, commerces, services, transports, à 30mn d’Avignon et de Nimes.Villes à proximités : Sauveterre, Lirac, saint laurent des arbres…Elaboration de votre projet sur mesure dans notre agence : Maisons France Confort Le Pontet avec étude financière possible.Faite confiance au premier constructeur national pour vous accompagner en toute sérénité dans vos démarches.Contactez M FINCK Walter au : (Numéro supprimé)
Roquemaure
TERRAIN ET MAISONDernière opportunité, ! Maisons France Confort Agence du Pontet, vous propose ce magnifique terrain plat entièrement viabilisé de 400M²Avec son exposition sud, vous bénéficierez d’un cadre arboré dans un secteur très recherché.Vous pourrez profiter d’une maison allant jusqu’à 120 M² (garage en option) à proximité de toutes les commodités : écoles, commerces, services, transports, à 30mn d’Avignon et de Nimes.Villes à proximités : Sauveterre, Lirac, saint laurent des arbres…Elaboration de votre projet sur mesure dans notre agence : Maisons France Confort Le Pontet avec étude financière possible.Faite confiance au premier constructeur national pour vous accompagner en toute sérénité dans vos démarches.Contactez M FINCK Walter au : (Numéro supprimé)
Roquemaure
TERRAIN ET MAISONDernière opportunité, ! Maisons France Confort Agence du Pontet, vous propose ce magnifique terrain plat entièrement viabilisé de 400M²Avec son exposition sud, vous bénéficierez d’un cadre arboré dans un secteur très recherché.Vous pourrez profiter d’une maison allant jusqu’à 120 M² (garage en option) à proximité de toutes les commodités : écoles, commerces, services, transports, à 30mn d’Avignon et de Nimes.Villes à proximités : Sauveterre, Lirac, saint laurent des arbres…Elaboration de votre projet sur mesure dans notre agence : Maisons France Confort Le Pontet avec étude financière possible.Faite confiance au premier constructeur national pour vous accompagner en toute sérénité dans vos démarches.Contactez M FINCK Walter au : (Numéro supprimé)
Lirac
TERRAINL »agence Maisons France Confort du Pontet vous propose, en accord avec son partenaire foncier et en exclusivité ce joli terrain de 499 m² sur la commune de LIRAC . SAZE se situe à 10 minutes d »Avignon et à 15 minutes de l » accès a l autoroute a 15mn . Le terrain est exposé plein sud, il est viabilités et se situe dans une zone très calme tout proche du centre ville. Vous trouverez dans les alentours un hôpital, un centre commercial, un pôle santé, une école, collège, arrêt de bus etc…Pour plus d »informations, n »hésitez à contacter Lionel Montagne de l »agence de Maisons France Confort Le Pontet au (Numéro supprimé)
Saint-Laurent-des-Arbres
TERRAIN ET MAISONLe rez-de-chaussée propose un hall d’entrée desservant une suite parentale avec salle d’eau privative, un grand salon-séjour, un cellier pratique, ainsi qu’un garage attenant. L’ensemble offre un espace de vie spacieux, lumineux et bien pensé.À l’étage, vous trouverez deux belles chambres, une salle de bains équipée, ainsi qu’un WC indépendant.Cette maison allie confort, volume et agencement optimisé. Conforme à la réglementation thermique en vigueur (RE2020), elle bénéficie d’une excellente performance énergétique (DPE A).Contactez-nous au (Numéro supprimé).Frais de notaire non compris.Cette annonce a été créée et diffusée avec le logiciel VITAHOME.
Saint-Laurent-des-Arbres
TERRAIN ET MAISONSituée dans un secteur calme et prisé, cette maison de plain-pied séduit par sa modernité, sa luminosité et son organisation intérieure parfaitement pensée.L’espace de vie s’ouvre sur une grande pièce avec cuisine ouverte, salon/séjour, et de belles ouvertures sur le jardin, offrant une agréable continuité entre intérieur et extérieur.La maison dispose de 4 chambres avec espace rangement, ainsi qu’une salle de bains indépendante, WC séparés et un cellier pratique donnant accès au garage.À l’extérieur, profitez d’un jardin intime, sans vis-à-vis, et d’une terrasse bien exposée pour vos moments de détenteContactez-nous au (Numéro supprimé).Frais de notaire non compris.Cette annonce a été créée et diffusée avec le logiciel VITAHOME.
Estézargues
TERRAINTerrain de 465 m² en vente à EstézarguesIDÉALEMENT SITUÉ – PROCHE DE NÎMESÀ Estézargues (30390) à 42 km de la mer Méditerranée et à 28 km de Nîmes, donnez vie à votre résidence principale ou secondaire sur ce terrain de 465 m². Il bénéficie d’une exposition sud. Dans un secteur prisé, le terrain idéalement situé est proche des écoles et des commerces. Une école primaire est implantée dans le quartier et une structure d’accueil pour les enfants en bas âge. L’autoroute A9 et la nationale N100 sont accessibles à moins de 4 km.Son prix de vente est de 109 900 €. Prenez contact avec Pascale PIEL ((Numéro supprimé)) pour toute information sur le terrain.
L’actualité immobilière à Rochefort-du-Gard
27/11/2023
02/11/2023
30/10/2023
20/10/2023
16/10/2023
16/10/2023