Maison à construire à Saze (30650)
Images
Description
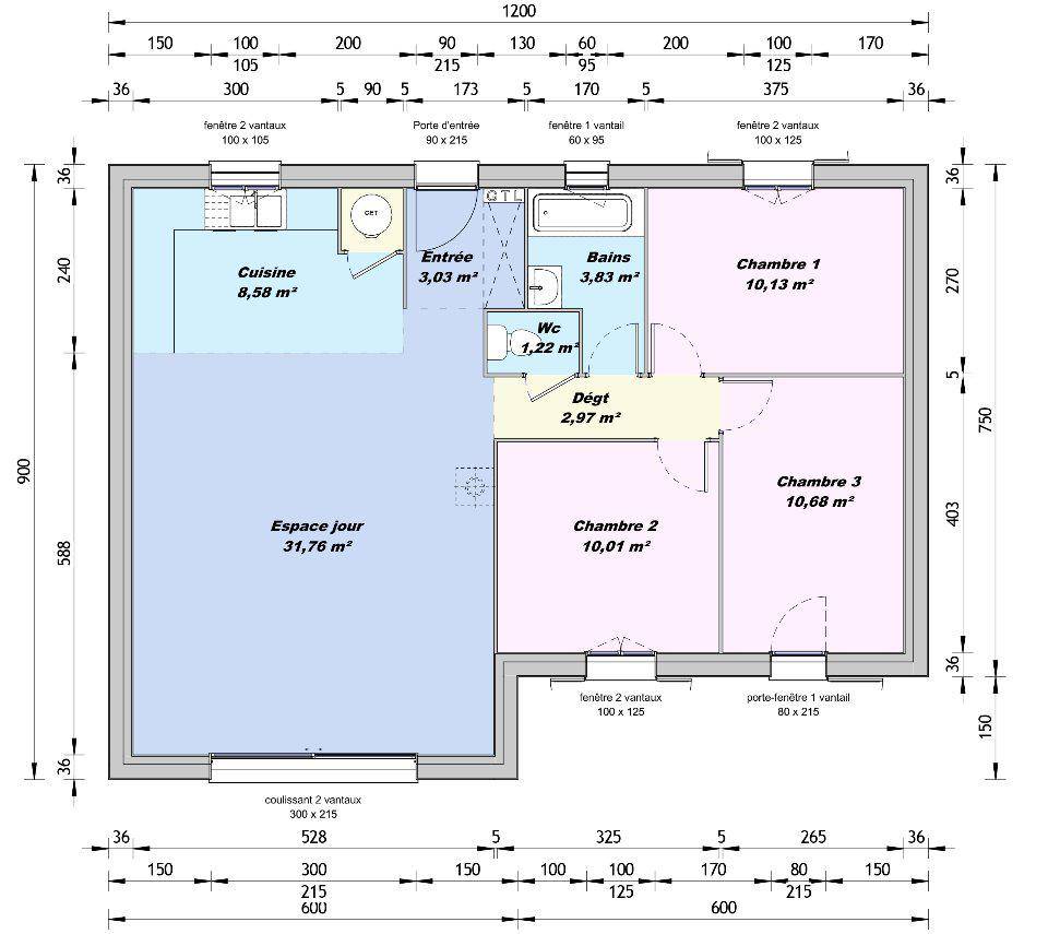
VENTE : maison de 4 pièces (83 m²) à Saze
MAISON 4 PIÈCES NEUVE - PROCHE D'AVIGNON
En vente : à 41 km de la côte méditerranéenne et à deux pas d'Avignon, Maisons France Confort Le Pontet vous propose cette maison de 4 pièces de plain-pied de 83 m² et de 400 m² de terrain à Saze (30650). Son intérieur dispose de trois chambres, d'une cuisine et d'une salle de bains.
Cette maison est neuve.
Il y a une école primaire dans le quartier. Niveau transports, on trouve les gares Avignon TGV, Avignon TGV terminal TER et Avignon Centre à moins de 10 minutes en voiture. L'autoroute A9 et les nationales N100 et N7 sont accessibles à moins de 8 km. Il y a un tennis, deux commerces, une boulangerie, une épicerie et une supérette à quelques minutes.
Elle est à vendre pour la somme de 289 000 €.
Contactez Driss LAMTALSI (tél : (Numéro supprimé)) pour toute information sur la maison ou sur les modalités de vente. Faites de vos projets immobiliers une réalité avec Maisons France Confort Le Pontet.
Logement susceptibles de vous intéresser
Nous vous proposons de découvrir aussi cette sélection de logements situés à moins de 10km de Saze et qui seraient susceptibles de vous intéresser.
Villeneuve-lès-Avignon
TERRAIN ET MAISONDécouvrez cette maison à étage de 155 m²Rez-de-chaussée :• Suite parentale avec salle d'eau privative, offrant intimité et confort.• Grand espace de vie ouvert et lumineux.• Cuisine moderne avec cellier attenant.• Garage intégré avec accès direct à la maison.À l'étage :• Un couloir avec vide sur séjour, apportant luminosité et sensation d’espace.• Deux chambres avec rangements intégrés.• Salle de bain fonctionnelle, idéale pour toute la famille.Points forts :• Chauffage gainable pour un confort thermique.• DPE A, garantissant une consommation réduite.• Panneaux solaires pour une production d’énergie verte.• Matériaux de qualité, assurant durabilité et confort toute l’année.Située dans un quartier calme et proche des commodités.Contactez-nous au (Numéro supprimé).Frais de notaire non compris.Cette annonce a été créée et diffusée avec le logiciel VITAHOME.
Villeneuve-lès-Avignon
TERRAINFiche N°Id-TCT167684 : VILLENEUVE LES AVIGNON Fiche BC167684 : Villeneuve les avignon, Terrain – – Equipements annexes : – chauffage : Aucun – Plus d’informations disponibles sur demande… – Mentions légales : Proposé à la vente à 380000 Euros (honoraires à la charge du vendeur) – Affaire suivie par Mme St?phanie PIT (Conseiller immobilier salarié) – Reseau Immo-Diffusion Manduel – Pour plus d’informations, contactez notre secrétariat au (Numéro supprimé) (Appel gratuit ou prix d’une communication locale)
Lirac
TERRAIN ET MAISONVENTE d’une maison de 4 pièces (82 m²) à LiracIDÉALEMENT SITUÉE – MAISON 4 PIÈCES NEUVEÀ vendre : située à 16 km d’Avignon, nous sommes ravis de vous proposer cette maison de 4 pièces de 82 m² idéalement située dans Lirac (30126). Son intérieur comporte trois chambres, une cuisine et une salle de bains.Le terrain de cette maison est de 499 m².Il s’agit d’une maison de 2 niveaux. Elle est neuve.Cette maison se trouve dans un quartier convoité. Une école primaire y est implantée. L’autoroute A9 est accessible à 4 km. Il y a une boulangerie à quelques minutes du bien.Elle est proposée à l’achat pour 285 000 €.Contactez Lionel MONTAGNE (tél : (Numéro supprimé)) pour toute information sur la maison ou sur les démarches à suivre. Maisons France Confort Le Pontet vous accompagne dans tous vos projets immobiliers et à toutes les étapes de votre projet.
Domazan
TERRAINVENTE d’un terrain de 520 m² à DomazanPROCHE DE NÎMESGrand terrain à vendre à 40 km de la mer Méditerranée et à deux pas de Nîmes. De 520 m², ce terrain se situe dans Domazan (30390). Ce terrain est proche des commerces et des écoles. Il y a une école primaire dans le quartier. L’autoroute A9 et les nationales N100 et N7 sont accessibles à moins de 10 km.Son prix de vente est de 115 000 €. N’hésitez pas à prendre contact avec notre agence (LAMTALSI Driss : (Numéro supprimé)) pour tout renseignement sur le terrain ou sur les démarches à suivre. Maisons France Confort Le Pontet est là pour vous accompagner dans tous vos projets immobiliers. Contacter Mr Lamtalsi au (Numéro supprimé)
Lirac
TERRAIN ET MAISONMaison de 5 pièces (101 m²) en vente à LiracIDÉALEMENT SITUÉE – MAISON 5 PIÈCES NEUVEEn vente : localisée à 16 km d’Avignon, idéalement située dans Lirac (30126), Maisons France Confort Le Pontet vous propose cette maison de 5 pièces de plain-pied de 101 m² et de 499 m² de terrain. Elle est composée de quatre chambres, d’une cuisine et d’une salle de bains.La maison est neuve.La maison se situe dans un secteur convoité. On y trouve une école primaire. Il y a un accès à l’autoroute A9 à 4 km. Il y a une boulangerie à quelques minutes.Elle est à vendre pour la somme de 285 000 €.Contactez notre agence (MONTAGNE Lionel : (Numéro supprimé)) pour toute question sur la maison ou sur les modalités de vente.
Lirac
TERRAIN ET MAISONVENTE : maison T6 (114 m²) à LiracIDÉALEMENT SITUÉE – MAISON 6 PIÈCES NEUVEÀ 16 km d’Avignon, ayez le coup de coeur pour en vente, idéalement située dans Lirac (30126), cette maison de 6 pièces de 114 m². Son intérieur inclut cinq chambres, une cuisine et deux salles de bains.Le terrain du bien est de 499 m².Il s’agit d’une maison de 2 niveaux. Elle est neuve.La maison se situe dans un quartier prisé. Une école primaire y est implantée. Il y a un accès à l’autoroute A9 à 4 km. On trouve une boulangerie à proximité de la maison.Son prix de vente est de 340 000 €.N’hésitez pas à prendre contact avec notre agence (MONTAGNE Lionel : (Numéro supprimé)) pour plus de renseignements sur la maison, sur les démarches à suivre ou sur les modalités de vente. Maisons France Confort Le Pontet vous accompagne à toutes les étapes de l’achat et dans tous vos projets immobiliers.
Lirac
TERRAIN ET MAISONVENTE d’une maison T4 (81 m²) à LiracIDÉALEMENT SITUÉE – MAISON 4 PIÈCES NEUVEEn vente à deux pas d’Avignon, votre agence Maisons France Confort Le Pontet est ravie de vous présenter cette maison de 4 pièces de plain-pied de 81 m² idéalement située dans Lirac (30126).Son intérieur propose trois chambres, une cuisine et une salle de bains. Cette maison est neuve.Le terrain de la propriété est de 499 m².La maison se trouve dans un secteur prisé. On y trouve une école primaire. L’autoroute A9 est accessible à 4 km. Il y a une boulangerie dans les environs.Elle est proposée à l’achat pour 270 000 €.Prenez contact avec notre agence (MONTAGNE Lionel : (Numéro supprimé)) pour tout renseignement sur la maison, sur les démarches à suivre ou sur les modalités de vente.
Lirac
TERRAINL »agence Maisons France Confort du Pontet vous propose, en accord avec son partenaire foncier et en exclusivité ce joli terrain de 499 m² sur la commune de LIRAC . SAZE se situe à 10 minutes d »Avignon et à 15 minutes de l » accès a l autoroute a 15mn . Le terrain est exposé plein sud, il est viabilités et se situe dans une zone très calme tout proche du centre ville. Vous trouverez dans les alentours un hôpital, un centre commercial, un pôle santé, une école, collège, arrêt de bus etc…Pour plus d »informations, n »hésitez à contacter Lionel Montagne de l »agence de Maisons France Confort Le Pontet au (Numéro supprimé)
Saze
TERRAIN ET MAISONMaison F6 (93 m²) à vendre à SazePROCHE D’AVIGNON – MAISON 6 PIÈCES NEUVEÀ vendre à 41 km de la mer Méditerranée et à deux pas d’Avignon, découvrez à Saze (30650), cette maison de 6 pièces de plain-pied de 93 m² et de 400 m² de terrain. Son intérieur comporte quatre chambres, une cuisine et une salle de bains.Cette maison est neuve.Il y a une école primaire dans le quartier. Niveau transports, on trouve les gares Avignon TGV, Avignon TGV terminal TER et Avignon Centre à moins de 10 minutes en voiture. L’autoroute A9 et les nationales N100 et N7 sont accessibles à moins de 8 km. Il y a un tennis, deux commerces, une boulangerie, une épicerie et une supérette à quelques minutes.Elle est proposée à l’achat pour 296 000 €.Contactez notre agence (Driss LAMTALSI : (Numéro supprimé)) pour toute question sur la maison. Maisons France Confort Le Pontet est là pour vous accompagner dans toutes vos démarches.Contacter Mr Lamtalsi au (Numéro supprimé)
L’actualité immobilière à Saze
27/11/2023
02/11/2023
30/10/2023
20/10/2023
16/10/2023
16/10/2023