Maison à construire à Saint-Alexandre (30130)
Images
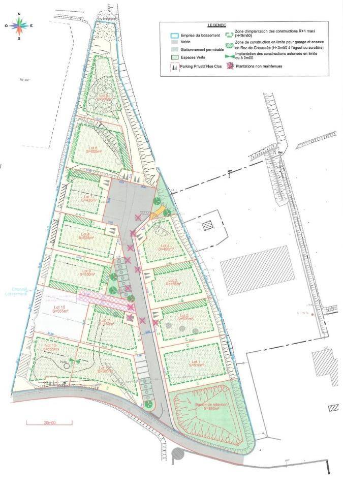
Description
NOUVEAUTÉ, ! Maisons France Confort Agence du Pontet, vous propose ce magnifique terrain plat entièrement viabilisé de 455M²
Avec son exposition sud, vous bénéficierez d'un cadre arboré dans un secteur très recherché.
Vous pourrez profiter d'une maison allant jusqu'à 120 M² (garage en option) à proximité de toutes les commodités : écoles, commerces, services, transports, à 10mn de bagnols sur Cèze et de Pont saint Esprit.
Villes à proximités : Saint Nazaire, Saint Gervais, saint Paulet de Caisson
Elaboration de votre projet sur mesure dans notre agence : Maisons France Confort Le Pontet avec étude financière possible.
Faite confiance au premier constructeur national pour vous accompagner en toute sérénité dans vos démarches.
Contactez M FINCK Walter au : (Numéro supprimé)
Logement susceptibles de vous intéresser
Nous vous proposons de découvrir aussi cette sélection de logements situés à moins de 10km de Saint-Alexandre et qui seraient susceptibles de vous intéresser.
Saint-Alexandre
TERRAINNOUVEAUTÉ, ! Maisons France Confort Agence du Pontet, vous propose ce magnifique terrain plat entièrement viabilisé de 455M²Avec son exposition sud, vous bénéficierez d »un cadre arboré dans un secteur très recherché.Vous pourrez profiter d »une maison allant jusqu »à 120 M² à proximité de toutes les commodités : écoles, commerces, services, transports, à 10mn de bagnols sur Cèze et de Pont saint Esprit.Villes à proximités : Saint Nazaire, Saint Gervais, saint Paulet de CaissonElaboration de votre projet sur mesure dans notre agence : Maisons France Confort Le Pontet avec étude financière possible.Faite confiance au premier constructeur national pour vous accompagner en toute sérénité dans vos démarches.Contactez M FINCK Walter au : (Numéro supprimé)
Saint-Alexandre
TERRAIN ET MAISONNOUVEAUTÉ, ! Maisons France Confort Agence du Pontet, vous propose ce magnifique terrain plat entièrement viabilisé de 455M²Avec son exposition sud, vous bénéficierez d’un cadre arboré dans un secteur très recherché.Vous pourrez profiter d’une maison allant jusqu’à 120 M² (garage en option) à proximité de toutes les commodités : écoles, commerces, services, transports, à 10mn de bagnols sur Cèze et de Pont saint Esprit.Villes à proximités : Saint Nazaire, Saint Gervais, saint Paulet de CaissonElaboration de votre projet sur mesure dans notre agence : Maisons France Confort Le Pontet avec étude financière possible.Faite confiance au premier constructeur national pour vous accompagner en toute sérénité dans vos démarches.Contactez M FINCK Walter au : (Numéro supprimé)
Saint-Alexandre
TERRAIN ET MAISONNOUVEAUTÉ, ! Maisons France Confort Agence du Pontet, vous propose ce magnifique terrain plat entièrement viabilisé de 455M²Avec son exposition sud, vous bénéficierez d’un cadre arboré dans un secteur très recherché.Vous pourrez profiter d’une maison allant jusqu’à 120 M² (garage en option) à proximité de toutes les commodités : écoles, commerces, services, transports, à 10mn de bagnols sur Cèze et de Pont saint Esprit.Villes à proximités : Saint Nazaire, Saint Gervais, saint Paulet de CaissonElaboration de votre projet sur mesure dans notre agence : Maisons France Confort Le Pontet avec étude financière possible.Faite confiance au premier constructeur national pour vous accompagner en toute sérénité dans vos démarches.Contactez M FINCK Walter au : (Numéro supprimé)
Saint-Alexandre
TERRAIN ET MAISONNOUVEAUTÉ, ! Maisons France Confort Agence du Pontet, vous propose ce magnifique terrain plat entièrement viabilisé de 455M²Avec son exposition sud, vous bénéficierez d’un cadre arboré dans un secteur très recherché.Vous pourrez profiter d’une maison allant jusqu’à 120 M² (garage en option) à proximité de toutes les commodités : écoles, commerces, services, transports, à 10mn de bagnols sur Cèze et de Pont saint Esprit.Villes à proximités : Saint Nazaire, Saint Gervais, saint Paulet de CaissonElaboration de votre projet sur mesure dans notre agence : Maisons France Confort Le Pontet avec étude financière possible.Faite confiance au premier constructeur national pour vous accompagner en toute sérénité dans vos démarches.Contactez M FINCK Walter au : (Numéro supprimé)
Mondragon
TERRAINDernières opportunités, ! Maisons France Confort Agence du Pontet, vous propose ce magnifique terrain plat entièrement viabilisé de 310M²Avec son exposition sud, vous bénéficierez d’un cadre arboré dans un secteur très recherché.Vous pourrez profiter d’une maison allant jusqu’à 120 M² (garage en option) à proximité de toutes les commodités : écoles, commerces, services, transports, à 20mn d’Avignon et 10 du Pontet et sorguesVilles à proximités :Mornas, Bollène, Pont saint Esrpit….Elaboration de votre projet sur mesure dans notre agence : Maisons France Confort Le Pontet avec étude financière possible.Faite confiance au premier constructeur national pour vous accompagner en toute sérénité dans vos démarches.Contactez M FINCK Walter au : (Numéro supprimé)
Mondragon
TERRAIN ET MAISONDernières opportunités, ! Maisons France Confort Agence du Pontet, vous propose ce magnifique terrain plat entièrement viabilisé de 310M²Avec son exposition sud, vous bénéficierez d’un cadre arboré dans un secteur très recherché.Vous pourrez profiter d’une maison allant jusqu’à 120 M² (garage en option) à proximité de toutes les commodités : écoles, commerces, services, transports, à 20mn d’Avignon et 10 du Pontet et sorguesVilles à proximités :Mornas, Bollène, Pont saint Esrpit….Elaboration de votre projet sur mesure dans notre agence : Maisons France Confort Le Pontet avec étude financière possible.Faite confiance au premier constructeur national pour vous accompagner en toute sérénité dans vos démarches.Contactez M FINCK Walter au : (Numéro supprimé)
Bagnols-sur-Cèze
TERRAINFiche N°Id-TCT173863 : BAGNOLS SUR CEZE Fiche BC173863 : Bagnols sur ceze, secteur Campagne, Terrain de 420 m2 – – Equipements annexes : jardin – – chauffage : Aucun – Plus d’informations disponibles sur demande… – Mentions légales : Proposé à la vente à 66620 Euros (Dont 6% TTC d’honoraires à la charge de l’acquéreur, soit un prix hors honoraires de 62850 Euros) – Affaire suivie par Mr Guilhem JULLIAN (Agent commercial independant) – Reseau Immo-Diffusion Moussac – Pour plus d’informations, contactez notre secrétariat au (Numéro supprimé) (Appel gratuit ou prix d’une communication locale)
Bagnols-sur-Cèze
TERRAINL’agence Maisons France Confort du Pontet vous propose, en accord avec son partenaire foncier ce joli terrain de 1028m² sur la commune de Bagnols sur Cèze. Bagnols sur Cèze se situe à 25 minutes d’Avignon 15 mn d’Orange . Le terrain est exposé sud, il est viabilités et se situe dans une zone très calme tout proche du centre ville. Vous trouverez dans les alentours un centre commercial, un pôle santé, une école, collège, arrêt de bus etc…Pour plus d’informations, n’hésitez à contacter Lionel Montagne de l’agence de Maisons France Confort Le Pontet au (Numéro supprimé)
Bagnols-sur-Cèze
TERRAIN ET MAISONL’agence Maisons France Confort du Pontet vous propose, en accord avec son partenaire foncier ce joli terrain de 1028m² sur la commune de Bagnols sur Cèze. Bagnols sur Cèze se situe à 25 minutes d’Avignon 15 mn d’Orange . Le terrain est exposé sud, il est viabilités et se situe dans une zone très calme tout proche du centre ville. Vous trouverez dans les alentours un centre commercial, un pôle santé, une école, collège, arrêt de bus etc…Votre villa étage personnalisée belles prestations Pour plus d’informations, n’hésitez à contacter Lionel Montagne de l’agence de Maisons France Confort Le Pontet au (Numéro supprimé)
L’actualité immobilière à Saint-Alexandre
27/11/2023
02/11/2023
30/10/2023
20/10/2023
16/10/2023
16/10/2023