Maison à construire à Saint-Jean-de-Maruéjols-et-Avéjan (30430)
Images
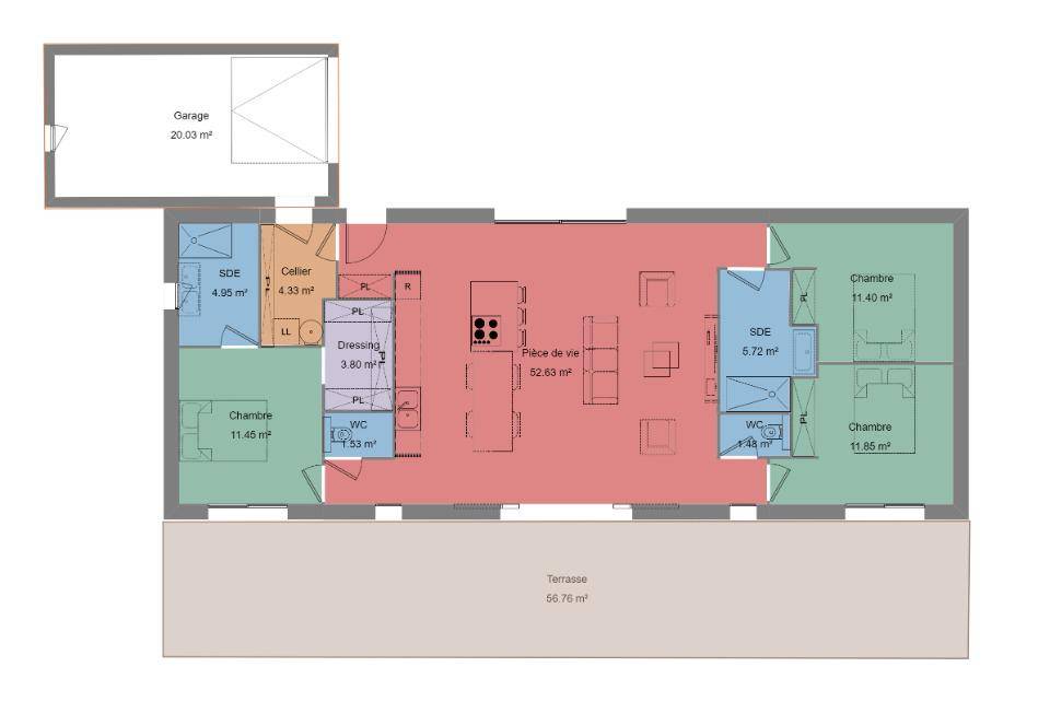
Description
Une maison contemporaine élégante et parfaitement optimisée
Avec ses volumes simples et bien pensés, cette maison contemporaine allie confort, modernité et fonctionnalité.
Un agencement harmonieux
Au coeur de la maison, une vaste pièce de vie d'environ 50 m² offre un espace convivial et lumineux.
De part et d'autre, deux espaces nuit distincts assurent l'intimité de chacun :
Un espace enfants avec deux chambres et une salle de bains,
Une suite parentale avec salle d'eau privative, dressing et WC indépendant.
Des prestations de qualité
Cette maison est équipée de prestations modernes et durables :
Chauffage par pompe à chaleur gainable,
Menuiseries gris anthracite avec volets roulants motorisés.
La confiance MAISONS FRANCE CONFORT
Avec MAISONS FRANCE CONFORT, vous bénéficiez de garanties uniques :
Prix, délais et livraison garantis,
Assurance dommage-ouvrage incluse dans le devis,
Des modèles 100 % personnalisables selon vos envies et vos besoins.
📞 Renseignements et devis auprès de CAROLINE au (Numéro supprimé)
Logement susceptibles de vous intéresser
Nous vous proposons de découvrir aussi cette sélection de logements situés à moins de 10km de Saint-Jean-de-Maruéjols-et-Avéjan et qui seraient susceptibles de vous intéresser.
Saint-Jean-de-Maruéjols-et-Avéjan
TERRAIN ET MAISON🏡 MAISON DE PLAIN-PIED MODERNE EN L – 129 m²Style et conceptionMaison à l’architecture moderne et épurée, en forme de L pour profiter pleinement de l’ensoleillement plein sud et créer un espace extérieur intime abrité du vent.La construction est traditionnelle, avec des matériaux durables et performants.Les menuiseries anthracite, les volets roulants motorisés et centralisés, et les grandes baies vitrées soulignent le caractère contemporain de l’ensemble.🧱 Organisation intérieure🔸 Aile Jour (au centre du L) – environ 50 m²Entrée avec placard donnant sur une grande pièce de vie traversante, baignée de lumière naturelle grâce à de larges baies vitrées plein sud.Séjour / Salon / Salle à manger ouvrant sur une terrasse couverte orientée plein sud, idéale pour recevoir et profiter des beaux jours.Cuisine ouverte moderne avec îlot central.Cellier / buanderie attenant à la cuisine, communiquant directement avec le garage pour plus de confort au quotidien.🔸 Aile Nuit – Côté EstSuite parentale indépendante avec :une chambre spacieuse ouvrant sur la terrasse,un dressing fonctionnel,une salle d’eau privative (douche à l’italienne, double vasque, WC possible).🔸 Aile Nuit – Côté OuestTrois chambres lumineuses (10 à 11 m² chacune).Salle d’eau commune avec douche et double vasque.WC séparé à proximité.🎨 Prestations et finitionsCarrelage 60×60 cm dans la pièce de vie.Revêtements de sol au choix dans les chambres (parquet ou carrelage assorti).Menuiseries aluminium anthracite à double vitrage.Volets roulants électriques centralisés.Chauffage par pompe à chaleur gainable, offrant confort et performance énergétique.Terrasse couverte orientée plein sud, dans l’angle du L, parfaite pour les repas en extérieur.🌿 Points fortsPlan en L offrant luminosité et intimité dans le jardin.Suite parentale isolée des autres chambres.Circulation fluide et fonctionnelle.Cellier vers garage
Barjac
TERRAINMaison France Confort réalise votre projet de construction à Barjac ! En accord avec notre partenaire foncier, nous vous proposons ce terrain constructible d’une superficie de 1242 m2 pour réaliser votre projet de construction. Aux portes des Cévennes et à quelques minutes des gorges de l’Ardèche, Barjac bénéficie d’un cadre naturel exceptionnel, parfait pour les amoureux de la nature, de randonnée, de baignade et de tranquillité.Prix : 81 000 € (hors droit d’enregistrement et frais de notaire)Viabilisations à prévoir Assainissement individuelTerrain issu d’une découpe parcellaire de 6 Lots Nous vous proposons un accompagnement complet et personnalisé dans toutes vos démarches liées à votre projet de construction. Nous réalisons vos plans sur mesure selon vos envies. Contactez Mélanie DEFFOBIS – Maison France Confort -Vallon Pont d’arc au (Numéro supprimé).
Barjac
TERRAIN ET MAISONMaison France confort vous propose ce projet de construction à Barjac ! Prestations proposées : Superficie : Maison de 120 m2 à étage partiel Chambre : 3 dont une suite parentale Garage : Oui Terrasse : Oui Chauffage : Plancher chauffant / rafraichissant Ce projet de construction est présenté à titre d’inspiration et peut être entièrement personnalisé. Chaque maison est conçue sur mesure en fonction de votre projet et de votre budget.Budget estimatif du projet, terrain inclus : 420 000 € (hors frais annexes)En CCMI, RE 2020, Assurances et garanties du constructeur incluses (RC professionnelle, décennale, dommage ouvrage).Terrain proposé pour ce projet Superficie : 1241 m2 Prix : 81 000 € (hors droit d’enregistrement et frais de notaire) Viabilisé : NonAssainissement : Individuel Pour plus d’informations, contactez Mélanie DEFFOBIS – Maison France Confort – Agence de Vallon Pont d’Arc – (Numéro supprimé)
Barjac
TERRAIN ET MAISONMaison France confort vous propose ce projet de construction à Barjac ! Prestations proposées : Superficie : Bastide de 115 m2 Chambres : 4 dont 2 suite parentale Garage : Oui Terrasse : Oui Chauffage : PAC / Gainable Ce projet de construction est présenté à titre d’inspiration et peut être entièrement personnalisé. Chaque maison est conçue sur mesure en fonction de votre projet et de votre budget.Budget estimatif du projet, terrain inclus : 360 000 € (hors frais annexes)En CCMI, RE 2020, Assurances et garanties du constructeur incluses (RC professionnelle, décennale, dommage ouvrage).Terrain proposé pour ce projet Superficie : 1242 m2 Prix : 81 000 € (hors droit d’enregistrement et frais de notaire) Viabilisé : NonAssainissement : Individuel Pour plus d’informations, contactez Mélanie DEFFOBIS – Maison France Confort – Agence de Vallon Pont d’Arc – (Numéro supprimé)
Barjac
TERRAIN🌞 Terrain à bâtir – Sud Ardèche, Vagnas 🌞À seulement 5 minutes de Barjac, 10 minutes de Vallon Pont d’Arc et 40 minutes d’Aubenas, je vous propose en partenariat avec notre foncier une superbe parcelle plate et ensoleillée, idéalement située à pied du centre du village.📍 Localisation :Vagnas, charmant village avec école maternelle et primaire, épicerie, bar et restaurants.Crèche à Barjac, collège à Vallon Pont d’Arc.Environnement résidentiel calme, exposition plein sud.📐 Caractéristiques :Terrain plat, facile à aménager,Prix attractif : 112 000€,Devis réalisés pour la viabilisation.🎯 Atouts :Proximité immédiate des commodités,Nombreuses activités à proximité : accrobranche, ferme pédagogique de Vagnas, descente de l’Ardèche en canoë, Grotte Chauvet, Aven d’Orgnac, villages classés (Vogüé, Barjac, Ruoms, Balazuc, Labeaume…),Festivals musicaux réputés : Aluna Festival, Barjac m’en chante.📞 À visiter sans tarder !Renseignements et visites auprès de Caroline – (Numéro supprimé)
Barjac
TERRAIN ET MAISONCe modèle s’articule autour de deux ailes distinctes :Aile jour : une entrée ouvrant sur un vaste espace de vie comprenant le salon, la cuisine et la salle à manger en open space.Aile nuit : trois chambres, une salle de bains ainsi qu’une suite parentale avec dressing et salle d’eau privative.Les prestations comprennent :Menuiseries en RAL 7016Volets roulants motorisés et centralisés avec sonde d’ensoleillementChauffage gainable avec système ShogunDevis auprès de Caroline au (Numéro supprimé) Un garage peut être ajouté en option, selon vos besoins.
Barjac
TERRAIN ET MAISONBelle villa contemporaine avec espace invités indépendantCette villa moderne offre à la fois confort et convivialité grâce à sa partie principale et à son espace indépendant idéal pour accueillir famille, amis ou générer des revenus locatifs saisonniers.Espace de vie lumineux de plus de 60 m²4 chambres spacieuses2 salles de bain, 2 WCCellier / buanderie pratiqueGrande terrasse couverte pour recevoir en toute saisonPrestations de qualité :Chauffage par pompe à chaleur gainableMenuiseries RAL 7016, volets roulants centralisés et motorisés avec sonde d’ensoleillementEn option : garage selon vos besoins.📞 Renseignements auprès de Caroline : (Numéro supprimé)
Barjac
TERRAIN ET MAISON🏡 Maison de plain-pied avec garage – Sud ArdècheCette maison contemporaine de plain-pied offre confort et fonctionnalité dans un environnement agréable.👉 AgencementUne belle pièce de vie lumineuse donnant sur une terrasse couverte,Une cuisine avec accès direct au cellier, lui-même communiquant avec le garage intégré d’environ 20 m²,Trois chambres,Une salle de bains,Un WC indépendant.👉 PrestationsChauffage par pompe à chaleur réversible,Menuiseries blanches,Volets roulants motorisés.Une maison idéale pour une famille, alliant praticité et confort moderne.
Bessas
TERRAIN ET MAISONARDECHE (07)A vendre villa de plain pied de 110m² toute neuve implantée sur un terrain de 1000 m² + gîte indépendant de 40m²Environnement calme avec vue dégagée idéalement exposéCette propriété dispose de nombreux atouts avec une grande pièce de vie, 4 chambres, 3 salles d’eauReste à finir quelques travaux pour la mise en conformité de la maison aux normes RE2020A l’extérieur terrain piscinableAssainissement individuel avec microstationPuits sur le terrainPlus de détails sur le site internet TUC IMMO SAINT AMBROIX – Réf 92742Les informations sur les risques auxquels ce bien est exposé sont disponibles sur le site Géorisques : www. georisques. gouv. fr
L’actualité immobilière à Saint-Jean-de-Maruéjols-et-Avéjan
27/11/2023
02/11/2023
30/10/2023
20/10/2023
16/10/2023
16/10/2023