Maison à construire à Vers-Pont-du-Gard (30210)
Images
Description
L'agence Maisons France Confort du Pontet vous propose, en accord avec son partenaire foncier ce joli terrain de 668 m² sur la commune du Vers pont du Gard .
Vers pont du Gard se situe entre Uzès et Remoulins .
Le terrain est exposé sud, il est viabilités et se situe dans une zone très calme tout proche du centre ville.
Vous trouverez dans les alentours un centre commercial, un pôle santé, une école, collège, arrêt de bus etc...
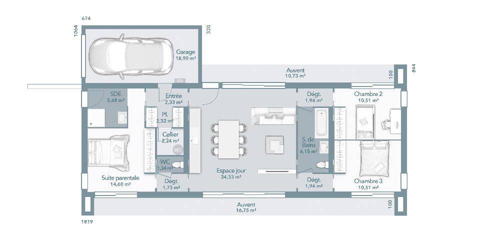
Votre maison personnalisée de plein pied contemporaine. Belles prestations
Pour plus d'informations, n'hésitez à contacter Lionel Montagne de l'agence de Maisons France Confort Le Pontet au O64897O81
Logement susceptibles de vous intéresser
Nous vous proposons de découvrir aussi cette sélection de logements situés à moins de 10km de Vers-Pont-du-Gard et qui seraient susceptibles de vous intéresser.
Uzès
TERRAINFiche N°Id-TCT178355 : UZES Fiche BC178355 : Uzes, secteur 4 km d uz?s, Terrain 420 m2 de 420 m2 – – Equipements annexes : jardin – – chauffage : Aucun – Plus d’informations disponibles sur demande… – Mentions légales : Proposé à la vente à 114900 Euros (honoraires à la charge du vendeur) – Affaire suivie par Mr Guilhem JULLIAN (Agent commercial independant) – Reseau Immo-Diffusion Moussac – Pour plus d’informations, contactez notre secrétariat au (Numéro supprimé) (Appel gratuit ou prix d’une communication locale)
Estézargues
TERRAINTerrain de 465 m² en vente à EstézarguesIDÉALEMENT SITUÉ – PROCHE DE NÎMESÀ Estézargues (30390) à 42 km de la mer Méditerranée et à 28 km de Nîmes, donnez vie à votre résidence principale ou secondaire sur ce terrain de 465 m². Il bénéficie d’une exposition sud. Dans un secteur prisé, le terrain idéalement situé est proche des écoles et des commerces. Une école primaire est implantée dans le quartier et une structure d’accueil pour les enfants en bas âge. L’autoroute A9 et la nationale N100 sont accessibles à moins de 4 km.Son prix de vente est de 109 900 €. Prenez contact avec Pascale PIEL ((Numéro supprimé)) pour toute information sur le terrain.
Estézargues
TERRAIN ET MAISONMaison de 5 pièces (98 m²) à vendre à EstézarguesIDÉALEMENT SITUÉE – MAISON 5 PIÈCES NEUVEÀ vendre : à 42 km de la mer Méditerranée et à quelques kilomètres de Nîmes, ayez le coup de coeur pour, idéalement située dans Estézargues (30390), cette maison de 5 pièces de 98 m².Cette maison possède 2 niveaux. Son intérieur offre quatre chambres, une cuisine et une salle de bains. Cette maison est neuve.Le terrain de la propriété s’étend sur 465 m².La propriété se situe dans un secteur prisé. On y trouve une école primaire ainsi qu’une crèche. L’autoroute A9 et la nationale N100 sont accessibles à moins de 4 km.Elle est proposée à l’achat pour 288 200 €.Prenez contact avec Pascale PIEL ((Numéro supprimé)) pour tout renseignement sur la maison.
Poulx
TERRAINZone B1 PTZ 2025 . À Vendre : Terrain de 300 m² à Poulx – Opportunité Rare Secteur Nîmes EstNe manquez pas cette opportunité exceptionnelle ! Découvrez ce superbe terrain à bâtir de 300 m² à Poulx, dans le secteur prisé de Nîmes Est. Un emplacement idéal pour réaliser vos projets de construction dans un cadre paisible et recherché.Points Forts de ce Terrain :Superficie Idéale : 300 m², parfait pour concevoir et bâtir la maison de vos rêvesEmplacement Privilégié : Situé à Poulx, un charmant village en direction de Nîmes EstCadre Paisible : Environnement serein et naturel, offrant une qualité de vie exceptionnelleProximité des Commodités : Écoles, commerces et services essentiels facilement accessiblesPourquoi Choisir Ce Terrain ?Qualité de Vie Exceptionnelle : Vivre à Poulx, c’est profiter de la tranquillité d’un village tout en étant proche des commodités Potentiel Immense : Idéal pour construire une villa avec jardin et espaces extérieurs personnalisésAccessibilité : Emplacement stratégique offrant un accès rapide aux axes routiers et à la ville de NîmesInvestissement Sûr : Une opportunité rare dans une région en forte demande, parfaite pour un premier achat immobilier ou un investissement locatifVotre contact : (Numéro supprimé)
Poulx
TERRAIN ET MAISONMaison neuve 2 chambres à petit prix : votre jardin à Poulx!A Poulx, sur 300 m² de terrain, Les Toits de France vous proposent cette maison neuve et fonctionnelle, idéale pour profiter du confort d’un logement moderne avec un beau jardin, le tout à prix accessible ! Une maison bien pensée pour votre confort✔ 2 belles chambres avec rangements✔ Grande pièce de vie lumineuse, ouverte sur l’extérieur, avec espace cuisine✔ Salle de bain moderne avec douche ou baignoire selon vos envies✔ Chauffage économique et isolation performante pour un confort toute l’année✔ Grand jardin privatif, parfait pour profiter des beaux jours en toute tranquillitéPoulx un cadre de vie idéal:➡ Toutes commodités à proximité : écoles, commerces, services de santé➡ Environnement agréableUne opportunité rare à ce prix ! Contactez-nous vite pour en savoir plus et réaliser votre projet avec Les Toits de France. Un prix accessible pour une maison de qualité ! Contactez Les Toits de France dès maintenant pour concrétiser votre projet. Votre contact (Numéro supprimé) (visuels non contractuels)Toits de France est un spécialiste de la construction, de la rénovation et de l’extension de maisons.
Poulx
TERRAIN ET MAISONMaison neuve 3 chambres à petit prix : votre jardin à Poulx!A Poulx, sur 300 m² de terrain, Les Toits de France vous proposent cette maison neuve et fonctionnelle, idéale pour profiter du confort d’un logement moderne avec un beau jardin, le tout à prix accessible ! Une maison bien pensée pour votre confort✔ 3 belles chambres avec rangements✔ Grande pièce de vie lumineuse, ouverte sur l’extérieur, avec espace cuisine✔ Salle de bain moderne avec douche ou baignoire selon vos envies✔ Chauffage économique et isolation performante pour un confort toute l’année✔ Grand jardin privatif, parfait pour profiter des beaux jours en toute tranquillité Poulx, un cadre de vie idéal:➡ Toutes commodités à proximité : écoles, commerces, services de santé➡ Accès facile : gare TER à quelques minutes, Nîmes à seulement 10 min➡ Environnement agréable, sans les contraintes d’un lotissementUne opportunité rare à ce prix ! Contactez-nous vite pour en savoir plus et réaliser votre projet avec Les Toits de France. Un prix accessible pour une maison de qualité ! Contactez Les Toits de France dès maintenant pour concrétiser votre projet. Votre contact (Numéro supprimé) (visuels non contractuels)
Poulx
TERRAIN ET MAISONMaison neuve 3 chambres à petit prix : votre jardin à Poulx!A Poulx, sur 300 m² de terrain, Les Toits de France vous proposent cette maison neuve et fonctionnelle, idéale pour profiter du confort d’un logement moderne avec un beau jardin, le tout à prix accessible ! Une maison bien pensée pour votre confort✔ 3 belles chambres avec rangements✔ Grande pièce de vie lumineuse, ouverte sur l’extérieur, avec espace cuisine✔ Salle de bain moderne avec douche ou baignoire selon vos envies✔ Chauffage économique et isolation performante pour un confort toute l’année✔ Grand jardin privatif, parfait pour profiter des beaux jours en toute tranquillité Poulx, un cadre de vie idéal:➡ Toutes commodités à proximité : écoles, commerces, services de santé➡ Accès facile : gare TER à quelques minutes, Nîmes à seulement 10 min➡ Environnement agréable, sans les contraintes d’un lotissementUne opportunité rare à ce prix ! Contactez-nous vite pour en savoir plus et réaliser votre projet avec Les Toits de France. Un prix accessible pour une maison de qualité ! Contactez Les Toits de France dès maintenant pour concrétiser votre projet. Votre contact (Numéro supprimé) (visuels non contractuels)
Castillon-du-Gard
TERRAINTerrain de 981 m² en vente à Castillon-du-GardIDÉALEMENT SITUÉ – PROCHE DE NÎMESÀ 47 km de la côte méditerranéenne et à 24 km de Nîmes à Castillon-du-Gard (30210), grand terrain. Réalisez-y votre résidence principale ou secondaire. Il est exposé plein sud. Il y a une école primaire dans le quartier et une structure d’accueil pour les enfants en bas âge. L’autoroute A9 et la nationale N100 sont accessibles à moins de 5 km. On trouve trois boulangeries à quelques minutes à peine.Son prix de vente est de 165 000 €. Contactez Pascale PIEL (tél : (Numéro supprimé)) pour tout renseignement sur ce terrain, sur les modalités de vente ou sur les démarches à suivre.
Castillon-du-Gard
TERRAIN ET MAISONMaison de 5 pièces (123 m²) en vente à Castillon-du-GardIDÉALEMENT SITUÉE – MAISON 5 PIÈCES NEUVEÀ vendre : située à 47 km de la mer Méditerranée et à 24 km de Nîmes, découvrez cette maison de 5 pièces de 123 m² et de 981 m² de terrain idéalement située dans Castillon-du-Gard (30210).Cette maison comporte 2 niveaux. Elle compte trois chambres, une cuisine et deux salles de bains. Cette maison est neuve.La maison se situe dans un quartier prisé. On y trouve une école primaire ainsi qu’une structure d’accueil pour les tout-petits. L’autoroute A9 et la nationale N100 sont accessibles à moins de 5 km. On trouve trois boulangeries à proximité.Son prix de vente est de 455 500 €.Prenez contact avec notre agence (Pascale PIEL : (Numéro supprimé)) pour toute information sur la maison.
L’actualité immobilière à Vers-Pont-du-Gard
27/11/2023
02/11/2023
30/10/2023
20/10/2023
16/10/2023
16/10/2023