Maison à construire à Vers-Pont-du-Gard (30210)
Images
Description
Vers-Pont-du-Gard : maison F4 (94 m²) en vente
IDÉALEMENT SITUÉE - MAISON 4 PIÈCES NEUVE
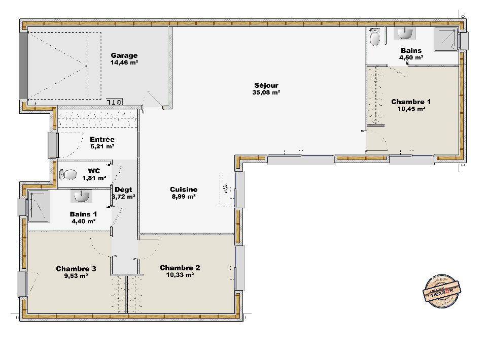
En vente : localisée à 48 km de la mer Méditerranée et à deux pas de Nîmes, idéalement située dans Vers-Pont-du-Gard (30210), nous vous présentons cette maison de 4 pièces de plain-pied de 94 m². Elle comporte trois chambres, une cuisine et deux salles de bains.
Le terrain de cette maison est de 708 m².
Cette maison est neuve.
Le bien se trouve dans un quartier attractif. On y trouve des écoles maternelles et élémentaires ainsi qu'une structure d'accueil pour les enfants en bas âge. L'autoroute A9 et la nationale N100 sont accessibles à moins de 7 km. Il y a un tennis, une boulangerie, un commerce et un bureau de poste à quelques minutes à peine.
Il est proposé à l'achat pour 331 600 €.
Contactez Pascale PIEL (tél : (Numéro supprimé)) pour tout renseignement sur la maison. Maisons Balency Uzès est là pour vous accompagner dans toutes vos démarches.
Logement susceptibles de vous intéresser
Nous vous proposons de découvrir aussi cette sélection de logements situés à moins de 10km de Vers-Pont-du-Gard et qui seraient susceptibles de vous intéresser.
Uzès
TERRAINFiche N°Id-TCT178355 : UZES Fiche BC178355 : Uzes, secteur 4 km d uz?s, Terrain 420 m2 de 420 m2 – – Equipements annexes : jardin – – chauffage : Aucun – Plus d’informations disponibles sur demande… – Mentions légales : Proposé à la vente à 114900 Euros (honoraires à la charge du vendeur) – Affaire suivie par Mr Guilhem JULLIAN (Agent commercial independant) – Reseau Immo-Diffusion Moussac – Pour plus d’informations, contactez notre secrétariat au (Numéro supprimé) (Appel gratuit ou prix d’une communication locale)
Vers-Pont-du-Gard
TERRAIN ET MAISONVers-Pont-du-Gard : maison F6 (100 m²) à vendreIDÉALEMENT SITUÉE – MAISON 6 PIÈCES NEUVEÀ vendre : située à 48 km de la mer Méditerranée et à deux pas de Nîmes, nous vous présentons cette maison de 6 pièces de plain-pied de 100 m² idéalement située dans Vers-Pont-du-Gard (30210).Conçue de plain-pied, elle offre trois chambres, une cuisine et deux salles de bains. Cette maison est neuve.Le terrain du bien est de 708 m².Le bien se trouve dans un quartier prisé. Des écoles maternelles et élémentaires y sont implantées et une structure d’accueil pour les tout-petits. L’autoroute A9 et la nationale N100 sont accessibles à moins de 7 km. Il y a un tennis, une boulangerie, un commerce et un bureau de poste à quelques minutes.Son prix de vente est de 319 000 €.N’hésitez pas à prendre contact avec notre agence (PIEL Pascale : (Numéro supprimé)) pour obtenir de plus amples renseignements sur la maison, sur les démarches à suivre ou sur les modalités de vente. Faites de vos projets immobiliers une réalité avec Maisons Balency Uzès.
Vers-Pont-du-Gard
TERRAIN ET MAISONVers-Pont-du-Gard : maison F5 (101 m²) en venteIDÉALEMENT SITUÉE – MAISON 5 PIÈCES NEUVEÀ vendre : à 48 km de la côte méditerranéenne et à 21 km de Nîmes, votre agence Maisons Balency Uzès est ravie de vous présenter, idéalement située dans Vers-Pont-du-Gard (30210), cette maison de 5 pièces de plain-pied de 101 m². Son intérieur propose quatre chambres, une cuisine et une salle de bains.Le terrain de la propriété s’étend sur 524 m².La maison est neuve.Cette maison se situe dans un secteur recherché. Des écoles primaires y sont implantées et une structure d’accueil pour la petite enfance. L’autoroute A9 et la nationale N100 sont accessibles à moins de 7 km. Il y a un tennis, une boulangerie, un commerce et un bureau de poste à quelques minutes.Son prix de vente est de 290 500 €.Contactez Pascale PIEL (tél : (Numéro supprimé)) pour plus de renseignements sur la propriété. Maisons Balency Uzès est là pour vous accompagner à toutes les étapes de votre projet.
Vers-Pont-du-Gard
TERRAIN ET MAISONVers-Pont-du-Gard : maison F4 (94 m²) en venteIDÉALEMENT SITUÉE – MAISON 4 PIÈCES NEUVEEn vente : localisée à 48 km de la mer Méditerranée et à deux pas de Nîmes, idéalement située dans Vers-Pont-du-Gard (30210), nous vous présentons cette maison de 4 pièces de plain-pied de 94 m². Elle comporte trois chambres, une cuisine et deux salles de bains.Le terrain de cette maison est de 708 m².Cette maison est neuve.Le bien se trouve dans un quartier attractif. On y trouve des écoles maternelles et élémentaires ainsi qu’une structure d’accueil pour les enfants en bas âge. L’autoroute A9 et la nationale N100 sont accessibles à moins de 7 km. Il y a un tennis, une boulangerie, un commerce et un bureau de poste à quelques minutes à peine.Il est proposé à l’achat pour 331 600 €.Contactez Pascale PIEL (tél : (Numéro supprimé)) pour tout renseignement sur la maison. Maisons Balency Uzès est là pour vous accompagner dans toutes vos démarches.
Saint-Siffret
TERRAIN ET MAISONMaison neuve 4 pièces de 70 m² sur 400 m² de terrain à construire à Laudun L’ArdoiseToits de France vous propose un projet de construction au calme et proche des commodités.Maison moderne à étage de 70 m² habitables, à bâtir sur un terrain de 400 m².Une maison bien pensée pour votre confort et n agencement intelligent, qui maximise chaque m² pour un confort optimal: ✔ 3 belles chambres avec rangements✔ Grande pièce de vie lumineuse, ouverte sur l’extérieur, avec espace cuisine✔ Salle de bain moderne avec douche ou baignoire selon vos envies✔ Chauffage économique et isolation performante pour un confort toute l’année✔ Grand jardin privatif, parfait pour profiter des beaux jours en toute tranquillitéToits de France est un spécialiste de la construction, la rénovation et de l’extension de maisons depuis plus de 42 ans.Contactez-notre agence au (Numéro supprimé) pour une étude gratuite et personnalisée de votre projet ! (Visuels non contractuels)
Vers-Pont-du-Gard
TERRAINVENTE : terrain de 708 m² à Vers-Pont-du-GardIDÉALEMENT SITUÉ – PROCHE DE NÎMESÀ 48 km de la côte méditerranéenne et à deux pas de Nîmes à Vers-Pont-du-Gard (30210), grand terrain. Réalisez-y votre résidence principale ou secondaire. Il est exposé au sud. Dans un secteur prisé, le terrain idéalement situé est proche des commerces et des écoles. Des écoles primaires sont implantées dans le quartier et une structure d’accueil pour les enfants en bas âge. L’autoroute A9 et la nationale N100 sont accessibles à moins de 7 km. Il y a un tennis, une boulangerie, un commerce et un bureau de poste à quelques minutes.Ce terrain est proposé à l’achat pour 109 000 €. Prenez contact avec Pascale PIEL (tél : (Numéro supprimé)) pour toute question sur le terrain. Maisons Balency Uzès vous accompagne dans tous vos projets immobiliers et à toutes les étapes de l’achat.
Vers-Pont-du-Gard
TERRAINVENTE d’un terrain de 524 m² à Vers-Pont-du-GardIDÉALEMENT SITUÉ – PROCHE DE NÎMESÀ Vers-Pont-du-Gard (30210) à 48 km de la côte méditerranéenne et à quelques kilomètres de Nîmes, projetez la maison de vos rêves sur ce terrain de 524 m². Il est orienté au sud. Dans un quartier attractif, ce terrain idéalement situé est proche des écoles et des commerces. Il y a des écoles primaires dans le quartier et une structure d’accueil pour les tout-petits. L’autoroute A9 et la nationale N100 sont accessibles à moins de 7 km. On trouve un tennis, une boulangerie, un commerce et un bureau de poste à proximité du terrain.Ce terrain est à vendre pour la somme de 119 000 €. Prenez contact avec notre agence (PIEL Pascale : (Numéro supprimé)) pour obtenir de plus amples renseignements sur le terrain. Maisons Balency Uzès vous accompagne dans toutes vos démarches et dans tous vos projets immobiliers.
Vers-Pont-du-Gard
TERRAIN ET MAISONVENTE d’une maison F5 (100 m²) à Vers-Pont-du-GardIDÉALEMENT SITUÉE – MAISON 5 PIÈCES NEUVEEn vente : à 48 km de la mer Méditerranée et à quelques kilomètres de Nîmes, idéalement située dans Vers-Pont-du-Gard (30210), Maisons Balency Uzès vous propose cette maison de 5 pièces de plain-pied de 100 m². Elle compte trois chambres, une cuisine et deux salles de bains.Le terrain du bien est de 524 m².La maison est neuve.Cette maison est située dans un quartier attractif. On y trouve des écoles maternelles et élémentaires ainsi qu’une structure d’accueil pour les tout-petits. L’autoroute A9 et la nationale N100 sont accessibles à moins de 7 km. On trouve un tennis, une boulangerie, un commerce et un bureau de poste à proximité du logement.Elle est à vendre pour la somme de 310 000 €.N’hésitez pas à prendre contact avec notre agence (Pascale PIEL : (Numéro supprimé)) pour obtenir de plus amples renseignements sur la maison. Faites de vos projets immobiliers une réalité avec Maisons Balency Uzès.
Vers-Pont-du-Gard
TERRAIN ET MAISONVENTE d’une maison T5 (104 m²) à Vers-Pont-du-GardIDÉALEMENT SITUÉE – MAISON 5 PIÈCES NEUVEEn vente à 48 km de la côte méditerranéenne et à quelques kilomètres de Nîmes, votre agence Maisons Balency Uzès est ravie de vous présenter cette maison de 5 pièces de plain-pied de 104 m² et de 524 m² de terrain idéalement située dans Vers-Pont-du-Gard (30210). Conçue de plain-pied, elle est composée de quatre chambres, d’une cuisine et de deux salles de bains.Cette maison est neuve.Cette maison se trouve dans un quartier prisé. Des écoles maternelles et élémentaires y sont implantées et une structure d’accueil pour les tout-petits. L’autoroute A9 et la nationale N100 sont accessibles à moins de 7 km. Il y a un tennis, une boulangerie, un commerce et un bureau de poste dans les environs.Elle est proposée à l’achat pour 337 300 €.Prenez contact avec Pascale PIEL (tél : (Numéro supprimé)) pour toute question sur la maison. Donnez vie à vos projets immobiliers avec Maisons Balency Uzès.
L’actualité immobilière à Vers-Pont-du-Gard
27/11/2023
02/11/2023
30/10/2023
20/10/2023
16/10/2023
16/10/2023