Maison à construire à Cologne (32430)
Images
Description
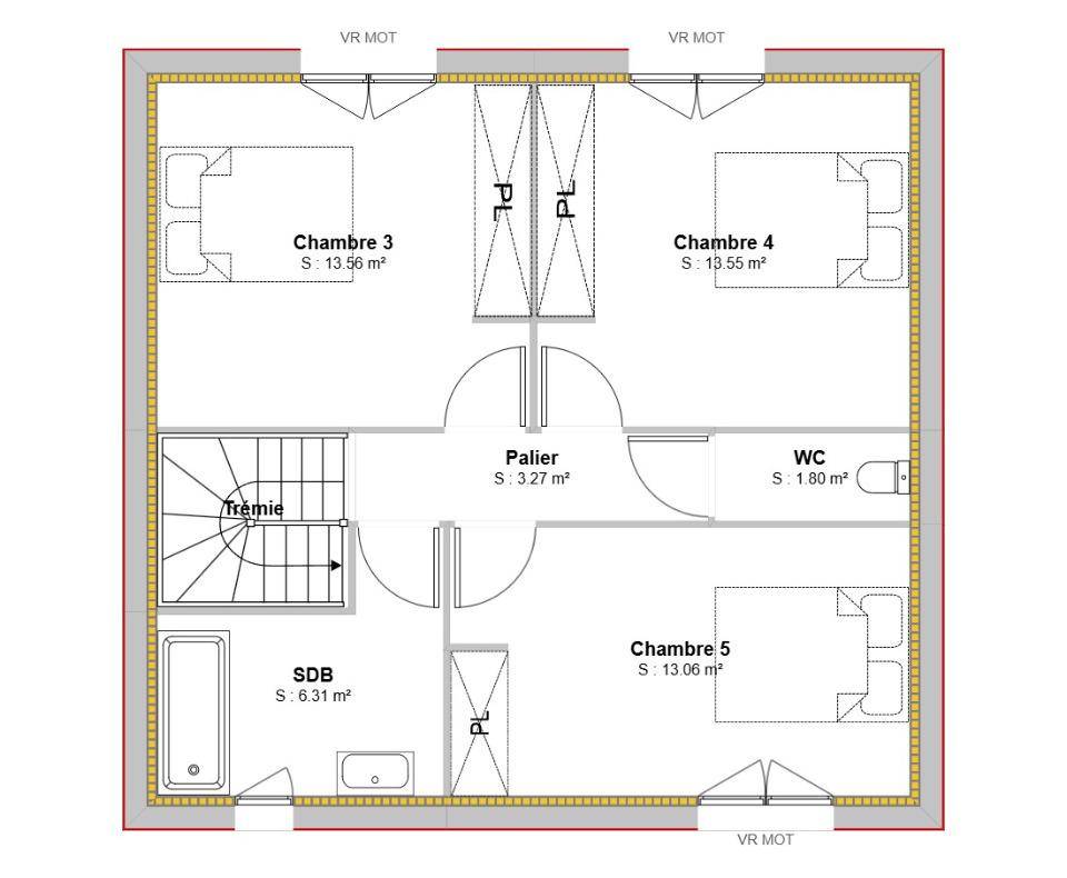
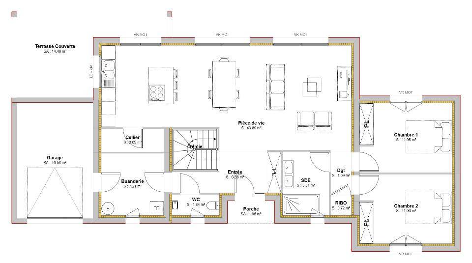
VENTE : maison T6 (145 m²) à Cologne
Avec l'agence Maisons France Confort de Tournefeuille au (Numéro supprimé)
IDÉALEMENT SITUÉE - MAISON 6 PIÈCES NEUVE
À deux pas de Colomiers, découvrez cette maison neuve de 6 pièces et 145 m², idéalement située à Cologne (32430) sur un terrain de 1 000 m².
Elle comprend cinq chambres, une cuisine et deux salles de bains, réparties sur deux niveaux, pour le confort de toute la famille.
Située dans un quartier recherché, elle bénéficie d'une école primaire à proximité. La nationale N124 est accessible à 15 km. Vous trouverez également un tennis, deux commerces, une boulangerie, deux épiceries et un bureau de poste à quelques minutes.
Prix de vente : 389 874 €
Pour tout renseignement sur la maison ou sur les démarches à suivre, contactez l'agence Maisons France Confort de Tournefeuille au (Numéro supprimé).
Annonce proposée par un Agent Commercial Partenaire.
Logement susceptibles de vous intéresser
Nous vous proposons de découvrir aussi cette sélection de logements situés à moins de 10km de Cologne et qui seraient susceptibles de vous intéresser.
Cologne
TERRAINTerrain de 700 m² à vendre à Cologne avec l’agence Maisons France Confort de Tournefeuille au (Numéro supprimé)PROCHE DE COLOMIERSÀ Cologne (32430) en vente à 31 km de Colomiers, découvrez ce terrain de 700 m². Une école primaire est implantée dans le quartier. On trouve un accès à la nationale N124 à 15 km. Il y a un tennis, deux commerces, une boulangerie, deux épiceries et un bureau de poste dans les environs.Il est proposé à l’achat pour 42 000 €. Contactez l’agence Maisons France Confort de Tournefeuille au (Numéro supprimé) pour obtenir de plus amples informations sur ce terrain ou sur les démarches à suivre. Donnez vie à vos projets immobiliers avec Maisons France Confort Tournefeuille.Annonce proposée par un Agent Commercial Partenaire.
Cologne
TERRAIN ET MAISONVENTE d’une maison de 3 pièces (50 m²) à Cologne avec l’agence Maisons France Confort de Tournefeuille au (Numéro supprimé)PROCHE DE COLOMIERS – MAISON 3 PIÈCES NEUVEÀ 31 km de Colomiers, nous vous proposons à vendre à Cologne (32430), cette maison de 3 pièces de plain-pied de 50 m². Elle propose deux chambres, une cuisine et une salle de bains.Le terrain de la propriété est de 700 m².Cette maison est neuve.Une école primaire est implantée dans le quartier. La nationale N124 est accessible à 15 km. On trouve un tennis, deux commerces, une boulangerie, un bureau de poste et deux épiceries à quelques minutes.Son prix de vente est de 152 487 €.Prenez contact avec l’agence Maisons France Confort de Tournefeuille au (Numéro supprimé) pour toute information sur la maison, sur les modalités de vente ou sur les démarches à suivre. Faites de vos projets immobiliers une réalité avec Maisons France Confort Tournefeuille.Annonce proposée par un Agent Commercial Partenaire.
Cologne
TERRAIN ET MAISONVENTE : maison de 4 pièces (81 m²) à Cologne avec l’agence Maisons France Confort de Tournefeuille au (Numéro supprimé)PROCHE DE COLOMIERS – MAISON 4 PIÈCES NEUVEEn vente : à deux pas de Colomiers, votre agence Maisons France Confort Tournefeuille est heureuse de vous proposer à Cologne (32430), cette maison de 4 pièces de plain-pied de 81 m² et de 700 m² de terrain. Conçue de plain-pied, elle se divise en trois chambres, une cuisine et une salle de bains.Cette maison est neuve.Il y a une école primaire dans le quartier. La nationale N124 est accessible à 15 km. On trouve un tennis, deux commerces, une boulangerie, un bureau de poste et deux épiceries à quelques minutes.Son prix de vente est de 201 458 €.Prenez contact avec l’agence Maisons France Confort de Tournefeuille au (Numéro supprimé) pour toute question sur cette maison.Annonce proposée par un Agent Commercial Partenaire.
Cologne
TERRAIN ET MAISONMaison F5 (101 m²) en vente à Cologne avec l’agence Maisons France Confort de Tournefeuille au (Numéro supprimé)PROCHE DE COLOMIERS – MAISON 5 PIÈCES NEUVEEn vente : localisée à 31 km de Colomiers, laissez vous charmer par à Cologne (32430), cette maison de 5 pièces de plain-pied de 101 m². Elle inclut quatre chambres, une cuisine et une salle de bains.Le terrain de la propriété s’étend sur 700 m².Cette maison est neuve.Il y a une école primaire dans le quartier. La nationale N124 est accessible à 15 km. On trouve un tennis, deux commerces, une boulangerie, deux épiceries et un bureau de poste dans les environs.Elle est proposée à l’achat pour 212 458 €.Prenez contact avec l’agence Maisons France Confort de Tournefeuille au (Numéro supprimé) pour plus d’informations sur la propriété, sur les modalités de vente ou sur les démarches à suivre. Maisons France Confort Tournefeuille vous accompagne à toutes les étapes de l’achat et dans tous vos projets immobiliers.Annonce proposée par un Agent Commercial Partenaire.
Cologne
TERRAIN ET MAISONVENTE : maison T4 (85 m²) à Cologne avec l’agence Maisons France Confort de Tournefeuille au (Numéro supprimé)MAISON 4 PIÈCES NEUVE – PROCHE DE COLOMIERSÀ vendre : à deux pas de Colomiers, à Cologne (32430), nous vous présentons cette maison de 4 pièces de plain-pied de 85 m². Elle offre trois chambres, une cuisine et une salle de bains.Le terrain de cette maison s’étend sur 700 m².La maison est neuve.Il y a une école primaire dans le quartier. La nationale N124 est accessible à 15 km. On trouve un tennis, deux commerces, une boulangerie, deux épiceries et un bureau de poste dans les environs.Elle est proposée à l’achat pour 195 478 €.Prenez contact avec l’agence Maisons France Confort de Tournefeuille au (Numéro supprimé) pour plus d’informations sur ce bien. Donnez vie à vos projets immobiliers avec Maisons France Confort Tournefeuille.Annonce proposée par un Agent Commercial Partenaire.
Cologne
TERRAIN ET MAISONCologne : maison de 6 pièces (166 m²) à vendre avec l’agence Maisons France Confort de Tournefeuille au (Numéro supprimé)MAISON 6 PIÈCES NEUVE – PROCHE DE COLOMIERSÀ vendre : localisée à quelques kilomètres de Colomiers, à Cologne (32430), nous sommes heureux de vous proposer cette maison de 6 pièces de 166 m². Son intérieur dispose de quatre chambres, d’une cuisine et de deux salles de bains.Le terrain du bien est de 700 m².Cette maison compte 2 niveaux. Elle est neuve.Il y a une école primaire dans le quartier. La nationale N124 est accessible à 15 km. On trouve un tennis, deux commerces, une boulangerie, un bureau de poste et deux épiceries à quelques minutes de la maison.Son prix de vente est de 369 874 €.Contactez l’agence Maisons France Confort de Tournefeuille au (Numéro supprimé) pour plus de renseignements sur la maison. Donnez vie à vos projets immobiliers avec Maisons France Confort Tournefeuille.Annonce proposée par un Agent Commercial Partenaire.
Cologne
TERRAINVENTE : terrain de 1 000 m² à Cologne avec l’agence Maisons France Confort de Tournefeuille au (Numéro supprimé)PROCHE DE COLOMIERSÀ vendre à Cologne (32430), à 31 km de Colomiers, imaginez la maison de vos rêves sur ce terrain de 1 000 m². Une école primaire est implantée dans le quartier. La nationale N124 est accessible à 15 km. Vous trouverez également un tennis, deux commerces, une boulangerie, deux épiceries et un bureau de poste à proximité.Ce terrain est proposé à l’achat pour 73 000 €.Prenez contact avec l’agence Maisons France Confort de Tournefeuille au (Numéro supprimé) pour toute information sur ce terrain. Donnez vie à vos projets immobiliers avec Maisons France Confort Tournefeuille.Annonce proposée par un Agent Commercial Partenaire.
Cologne
TERRAIN ET MAISONVENTE : maison ossature Bois F5 (120 m²) à CologneAvec l’agence Maisons France Confort de Tournefeuille au (Numéro supprimé)IDÉALEMENT SITUÉE – MAISON 5 PIÈCES NEUVEÀ deux pas de Colomiers, Maisons France Confort Tournefeuille vous présente cette maison ossature bois de 5 pièces et 120 m² de plain-pied, idéalement située à Cologne (32430).Conçue pour le confort et la fonctionnalité, elle comprend trois chambres, une cuisine et deux salles de bains. Le terrain de la propriété s’étend sur 1 000 m².Située dans un secteur prisé, la maison bénéficie d’une école primaire à proximité. La nationale N124 est accessible à 15 km. Vous trouverez également un tennis, deux commerces, une boulangerie, un bureau de poste et deux épiceries dans les environs.Elle est proposée à l’achat pour 409 874 €.Pour plus de renseignements sur la maison, les modalités de vente ou les démarches à suivre, contactez l’agence Maisons France Confort de Tournefeuille au (Numéro supprimé). Nous vous accompagnons à toutes les étapes de votre projet immobilier.Annonce proposée par un Agent Commercial Partenaire.
Cologne
TERRAIN ET MAISONVENTE : maison T6 ossature Bois (114 m²) à CologneAvec l’agence Maisons France Confort de Tournefeuille au (Numéro supprimé)IDÉALEMENT SITUÉE – MAISON 6 PIÈCES NEUVEÀ 31 km de Colomiers, découvrez cette maison ossature bois de 6 pièces et 114 m², idéalement située à Cologne (32430).Cette maison sur deux niveaux comprend cinq chambres, une cuisine et deux salles de bains. Le terrain s’étend sur 1 000 m².Située dans un secteur recherché, elle bénéficie d’une école primaire à proximité. La nationale N124 est accessible à 15 km. Vous trouverez également un tennis, deux commerces, une boulangerie, deux épiceries et un bureau de poste à quelques minutes.Elle est proposée à l’achat pour 479 841 €.Pour plus de renseignements sur cette maison, ses modalités de vente ou les démarches à suivre, contactez l’agence Maisons France Confort de Tournefeuille au (Numéro supprimé). Nous vous accompagnons à chaque étape de votre projet immobilier.Annonce proposée par un Agent Commercial Partenaire.
L’actualité immobilière à Cologne
27/11/2023
02/11/2023
30/10/2023
20/10/2023
16/10/2023
16/10/2023