Maison à construire à Andernos-les-Bains (33510)
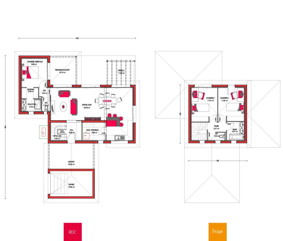
Images
Description
Sur la commune d'Andernos, dans un quartier résidentiel, calme et recherché, ce terrain de 400 m² bénéficie d'un emplacement rare, bonne exposition, et à l'écart de toute nuisance sonore ou visuelle.
La parcelle est viabilisée et permet de réaliser une belle maison de plain-pied ou à étage, dans un environnement serein, préservé et sans vis-à-vis.
Présentation de notre modèle de maison personnalisable de 105 m².
Une véritable opportunité pour construire dans l'un des secteurs les plus qualitatifs du Bassin d'Arcachon.
Contactez Fabien UTEZA au (Numéro supprimé) pour plus d'informations.
Logement susceptibles de vous intéresser
Nous vous proposons de découvrir aussi cette sélection de logements situés à moins de 10km de Andernos-les-Bains et qui seraient susceptibles de vous intéresser.
Andernos-les-Bains
TERRAINTerrain de 380 m² à vendre à Andernos-les-BainsPrenez contact avec notre agence (Javier TERRON : (Numéro supprimé)) pour toute question sur ce terrain, sur les démarches à suivre ou sur les modalités de vente.IDÉALEMENT SITUÉ – PROCHE DE SAINT-MÉDARD-EN-JALLESÀ Andernos-les-Bains (33510) en vente sur le littoral atlantique et à deux pas de Saint-Médard-en-Jalles, donnez vie à votre projet de construction sur ce terrain de 380 m². Dans un quartier convoité, le terrain idéalement situé est proche des commerces et des écoles. Il y a des établissements scolaires de tous types (de la maternelle au lycée) dans la commune. L’autoroute A660 est accessible à 17 km. On trouve un tennis, de nombreux commerces et une boulangerie à proximité du bien.Son prix de vente est de 185 000 €. Hors frais de notaire, et de raccordements.
Andernos-les-Bains
TERRAIN ET MAISONVENTE d’une maison de 5 pièces (100 m²) à Andernos-les-BainsIDÉALEMENT SITUÉE – MAISON 5 PIÈCES NEUVEEn Elle est proposée à l’achat pour 480 060 €. Hors frais de notaire, et de raccordements.N’hésitez pas à prendre contact avec notre agence (TERRON Javier : (Numéro supprimé)) pour obtenir de plus amples informations sur la maison. Villas Melrose Andernos-les-Bains est là pour vous accompagner à toutes les étapes de l’achat. : située à 6 km de la côte atlantique et à 28 km de Saint-Médard-en-Jalles, idéalement située dans Andernos-les-Bains (33510), découvrez cette maison de 5 pièces de 100 m² et de 380 m² de terrain. Son intérieur dispose de quatre chambres, d’une cuisine et de deux salles de bains.Il s’agit d’une maison de 2 niveaux. Elle est neuve.La maison se trouve dans un quartier convoité. On y trouve des écoles du primaire et du secondaire. L’autoroute A660 est accessible à 17 km. Il y a un tennis, de nombreux commerces et une boulangerie à quelques minutes à peine.
Andernos-les-Bains
TERRAIN ET MAISONAndernos-les-Bains : maison de 5 pièces (115 m²) en venteContactez Javier TERRON ((Numéro supprimé)) pour tout renseignement sur la maison. Villas Melrose Andernos-les-Bains vous accompagne dans toutes vos démarches et à toutes les étapes de l’achat.IDÉALEMENT SITUÉE – MAISON 5 PIÈCES NEUVEÀ vendre : sur le littoral atlantique et à quelques kilomètres de Saint-Médard-en-Jalles, nous vous présentons cette maison de 5 pièces de 115 m² et de 380 m² de terrain idéalement située dans Andernos-les-Bains (33510). Elle offre quatre chambres, une cuisine et deux salles de bains.Cette maison comporte 2 niveaux. Elle est neuve.La maison se situe dans un secteur recherché. Des établissements scolaires de tous types (de la maternelle au lycée) y sont implantés. L’autoroute A660 est accessible à 17 km. Il y a un tennis, de nombreux commerces et une boulangerie à proximité.Elle est à vendre pour la somme de 535 620 €. Hors frais de notaire, et de raccordements
Andernos-les-Bains
TERRAIN ET MAISONMaison T5 (126 m²) à vendre à Andernos-les-BainsContactez Javier TERRON (tél : (Numéro supprimé)) pour toute question sur la maison ou sur les démarches à suivre. Villas Melrose Andernos-les-Bains vous accompagne dans tous vos projets immobiliers et dans toutes vos démarches.IDÉALEMENT SITUÉE – MAISON 5 PIÈCES NEUVEEn vente : localisée sur le littoral atlantique et à 28 km de Saint-Médard-en-Jalles, Villas Melrose Andernos-les-Bains vous présente cette maison de 5 pièces de 126 m² et de 380 m² de terrain idéalement située dans Andernos-les-Bains (33510).C’est une maison de 2 niveaux. Son intérieur se divise en quatre chambres, une cuisine et deux salles de bains. Cette maison est neuve.La maison se trouve dans un secteur convoité. Des établissements scolaires du primaire et du secondaire y sont implantés. On trouve un accès à l’autoroute A660 à 17 km. Il y a un tennis, de nombreux commerces et une boulangerie à proximité.Elle est à vendre pour la somme de 563 690 €.Hors frais de notaire, et de raccordements.
Andernos-les-Bains
TERRAINAndernos-les-Bains : terrain de 510 m² en venteContactez notre agence (TERRON Javier : (Numéro supprimé)) pour plus de renseignements sur ce terrain. Villas Melrose Andernos-les-Bains vous accompagne à toutes les étapes de votre projet et dans toutes vos démarches.QUARTIER RECHERCHÉ – PROCHE DE SAINT-MÉDARD-EN-JALLESSur le littoral atlantique et à 28 km de Saint-Médard-en-Jalles à Andernos-les-Bains (33510), grand terrain. Réalisez-y votre projet immobilier. Dans un quartier prisé, le terrain niché dans un quartier attractif est proche des écoles et des commerces. On trouve des établissements scolaires du primaire et du secondaire dans la commune. L’autoroute A660 est accessible à 17 km. Il y a un tennis, de nombreux commerces et une boulangerie à quelques minutes.Son prix de vente est de 235 000 €. Hors frais de notaire, et de raccordements.
Andernos-les-Bains
TERRAIN ET MAISONVENTE : maison F4 (100 m²) à Andernos-les-BainsPrenez contact avec Javier TERRON (tél : (Numéro supprimé)) pour plus d’informations sur la maison. Villas Melrose Andernos-les-Bains vous accompagne dans tous vos projets immobiliers et dans toutes vos démarches.QUARTIER RECHERCHÉ – MAISON 4 PIÈCES NEUVEÀ 6 km de la côte atlantique et à deux pas de Saint-Médard-en-Jalles, votre agence Villas Melrose Andernos-les-Bains est ravie de vous proposer cette maison de 4 pièces de plain-pied de 100 m² et de 510 m² de terrain située dans un quartier prisé d’Andernos-les-Bains (33510).Son intérieur offre trois chambres, une cuisine et deux salles de bains. Cette maison est neuve.La maison se trouve dans un secteur recherché. Des écoles (de la maternelle au lycée) y sont implantées. Il y a un accès à l’autoroute A660 à 17 km. Il y a un tennis, de nombreux commerces et une boulangerie dans les environs.Son prix de vente est de 454 260 €. Hors frais de notaire, et de raccordements.
Andernos-les-Bains
TERRAIN ET MAISONMaison de 4 pièces (115 m²) à vendre à Andernos-les-BainsContactez notre agence (Javier TERRON : (Numéro supprimé)) pour toute information sur la maison, sur les modalités de vente ou sur les démarches à suivre. Villas Melrose Andernos-les-Bains vous accompagne dans tous vos projets immobiliers et à toutes les étapes de votre projet.QUARTIER RECHERCHÉ – MAISON 4 PIÈCES NEUVEEn vente : localisée à 6 km de l’océan Atlantique et à 28 km de Saint-Médard-en-Jalles, laissez vous charmer par, dans un quartier prisé d’Andernos-les-Bains (33510), cette maison de 4 pièces de plain-pied de 115 m².Elle dispose de trois chambres, d’une cuisine et de deux salles de bains. Cette maison est neuve.Le terrain de la propriété est de 510 m².Cette maison est située dans un secteur attractif. On y trouve des établissements scolaires du primaire et du secondaire. L’autoroute A660 est accessible à 17 km. Il y a un tennis, de nombreux commerces et une boulangerie à quelques minutes à peine.Elle est à vendre pour la somme de 522 895 € .Hors frais de notaire, et de raccordements.
Andernos-les-Bains
TERRAIN ET MAISONAndernos-les-Bains : maison F4 (135 m²) à vendreContactez Javier TERRON (tél : (Numéro supprimé)) pour toute information sur la maison. Concrétisez vos projets immobiliers avec Villas Melrose Andernos-les-Bains.QUARTIER RECHERCHÉ – MAISON 4 PIÈCES NEUVEEn vente sur le littoral atlantique et à deux pas de Saint-Médard-en-Jalles, nous vous proposons cette maison de 4 pièces de plain-pied de 135 m², située dans un quartier recherché d’Andernos-les-Bains (33510). Elle est composée de trois chambres, d’une cuisine et de deux salles de bains.Le terrain du bien s’étend sur 510 m².Cette maison est neuve.La maison se trouve dans un secteur convoité. On y trouve des établissements scolaires de tous niveaux. L’autoroute A660 est accessible à 17 km. Il y a un tennis, de nombreux commerces et une boulangerie à proximité du logement.Elle est proposée à l’achat pour 572 560 €. Hors frais de notaire, et de raccordements
Arès
TERRAIN ET MAISONSur la commune d’Arès, dans un quartier résidentiel, calme et recherché, ce terrain de 400 m² bénéficie d’un emplacement rare, bonne exposition, et à l’écart de toute nuisance sonore ou visuelle.La parcelle est viabilisée et permet de réaliser une belle maison de plain-pied ou à étage, dans un environnement serein, préservé et sans vis-à-vis.Présentation de notre modèle de maison personnalisable de 120 m².Une véritable opportunité pour construire dans l’un des secteurs les plus qualitatifs du Bassin d’Arcachon.Contactez Fabien UTEZA au (Numéro supprimé) pour plus d’informations.
L’actualité immobilière à Andernos-les-Bains
27/11/2023
02/11/2023
30/10/2023
20/10/2023
16/10/2023
16/10/2023