Maison neuve à Andernos-les-Bains (33510)
Images
Description
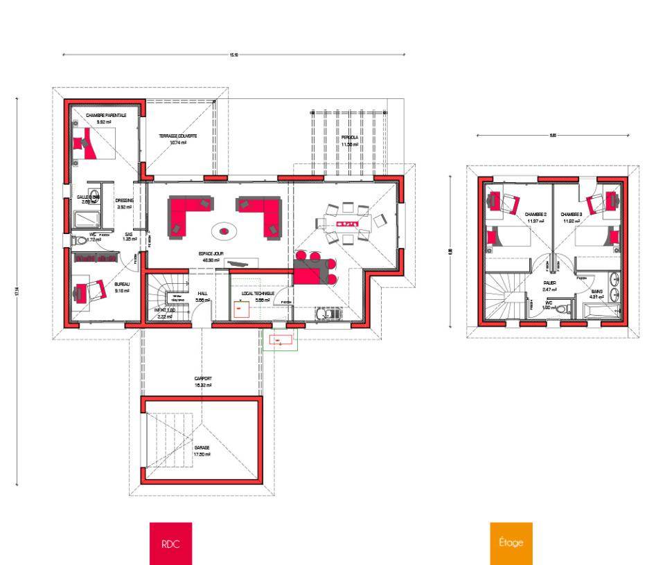
Sur la commune d'Andernos, dans un quartier résidentiel, calme et recherché, ce terrain de 500 m² bénéficie d'un emplacement rare, bonne exposition, et à l'écart de toute nuisance sonore ou visuelle.
La parcelle est viabilisée et permet de réaliser une belle maison de plain-pied ou à étage, dans un environnement serein, préservé et sans vis-à-vis.
Présentation de notre modèle de maison personnalisable de 105 m².
Une véritable opportunité pour construire dans l'un des secteurs les plus qualitatifs du Bassin d'Arcachon.
Contactez Fabien UTEZA au (Numéro supprimé) pour plus d'informations.
Logement susceptibles de vous intéresser
Nous vous proposons de découvrir aussi cette sélection de logements situés à moins de 10km de Andernos-les-Bains et qui seraient susceptibles de vous intéresser.
Andernos-les-Bains
TERRAIN ET MAISONDans un quartier résidentiel calme et recherché sur Andernos, beau terrain de 600 m² issu d'une division parcellaire en 2ème ligne. Emprise au sol de 30%, étage possible et terrain piscinable. Cette maison familiale à étage de 180 m² habitables s'intégrera parfaitement au paysage. Une entrée vous accueille dans un espace de vie très lumineux de plus de 56 m², une cuisine semi-ouverte, une terrasse couverte, une suite parentale avec une salle de bains, une petite chambre ou bureau et un double garage avec grenier. A l'étage, un palier dessert 1 suite avec salle de bains privative, deux chambres, une salle de bains indépendante. Et le plus de cette maison, une terrasse couverte idéale pour des moments de détente. Pour vous assurer un confort de vie et conformément à la RE2025, nous avons choisi un mode de chauffage par PAC + plancher chauffant, volets roulants électriques. Prix hors peinture, décoration, revêtements de sol dans les chambres, cuisine équipée), frais de notaire, raccordements, dommage ouvrage. (Piscine non contractuelle, non comprise dans le prix). // Réf. : 1693-211013-CLB. Prix terrain : 240 000 €, hors frais d'agence à la charge de l'acquéreur. Ce terrain vous est proposé, par nos partenaires fonciers, dans le cadre d'un projet de construction avec nous. Les informations sur les risques auxquels ce bien est exposé sont disponibles sur le site Géorisques (www.georisques.gouv.fr). Prix maison : 495 157 €.
Andernos-les-Bains
TERRAIN ET MAISONDans un quartier résidentiel calme et recherché sur Andernos, beau terrain de 600 m² issu d'une division parcellaire en 2ème ligne. Emprise au sol de 30%, étage possible et terrain piscinable. Lignes contemporaines & espaces optimisés ! Offrez-vous une maison personnalisable, conçue pour le confort et la convivialité. Avec 4 chambres, dont une suite parentale avec dressing et salle d’eau au rez-de-chaussée, cette maison allie fonctionnalité et élégance. Son vaste espace de vie lumineux est l’endroit idéal pour partager des moments en famille. À l’étage, trois chambres bien agencées, une salle de bain moderne et un WC séparé offrent un espace nuit parfait. Un garage et un cellier viennent compléter ce projet pensé pour s’adapter à votre style de vie. Pour un confort optimal et conforme à la RE2025, cette maison dispose d’une PAC avec plancher chauffant, radiateurs à l’étage et volets roulants électriques. À noter : Le prix indiqué exclut les revêtements de sol des chambres, la cuisine aménagée, la peinture, la décoration, les raccordements, les frais de notaire et l’assurance dommages-ouvrage. N’attendez plus pour concrétiser votre projet de vie ! Contactez-nous pour plus d’informations et une étude personnalisée. . // Réf. : 1311-211013-CLB. Prix terrain : 240 000 €, hors frais d'agence à la charge de l'acquéreur. Ce terrain vous est proposé, par nos partenaires fonciers, dans le cadre d'un projet de construction avec nous. Les informations sur les risques auxquels ce bien est exposé sont disponibles sur le site Géorisques (www.georisques.gouv.fr). Prix maison : 305 601 €.
Andernos-les-Bains
TERRAIN ET MAISONDans un quartier résidentiel calme et recherché sur Andernos, beau terrain de 600 m² issu d'une division parcellaire en 2ème ligne. Emprise au sol de 30%, étage possible et terrain piscinable. Une maison qui s’adapte à vous, et non l’inverse ! Oubliez les plans figés, ici c’est vous qui donnez le ton ! Un vaste espace de vie de près de 50 m², baigné de lumière et pensé pour des moments de convivialité. Une chambre au rez-de-chaussée avec salle d’eau attenante, idéale pour votre confort ou celui de vos invités. À l’étage, trois chambres spacieuses et une salle de bain vous offrent un cocon parfait. Ajoutez à cela un garage pratique et un cellier malin, et vous obtenez une maison qui évolue avec vous. Design, confort et flexibilité. Il ne manque que votre touche ! . Pour un confort optimal et conforme à la RE2025, cette maison dispose d’une PAC avec plancher chauffant, radiateurs à l’étage et volets roulants électriques. À noter : Le prix indiqué exclut les revêtements de sol des chambres, la cuisine aménagée, la peinture, la décoration, les raccordements, les frais de notaire et l’assurance dommages-ouvrage. . . // Réf. : 483-211013-CLB. Prix terrain : 240 000 €, hors frais d'agence à la charge de l'acquéreur. Ce terrain vous est proposé, par nos partenaires fonciers, dans le cadre d'un projet de construction avec nous. Les informations sur les risques auxquels ce bien est exposé sont disponibles sur le site Géorisques (www.georisques.gouv.fr). Prix maison : 249 483 €.
Andernos-les-Bains
TERRAINDans un quartier résidentiel calme et recherché sur Andernos, beau terrain de 600 m² issu d'une division parcellaire en 2ème ligne. Emprise au sol de 30%, étage possible et terrain piscinable. // Réf. : T211013. Prix terrain : 240 000 €, hors frais d'agence et de notaire à la charge de l'acquéreur. Ce terrain vous est proposé, par nos partenaires fonciers, dans le cadre d'un projet de construction avec nous. Les informations sur les risques auxquels ce bien est exposé sont disponibles sur le site Géorisques (www.georisques.gouv.fr).
Arès
TERRAINTerrain à bâtir de 360 m² sur la commune d’Arès dans un secteur calme.Situé dans un quartier recherché d’Arès, proche du centre-ville, ce terrain de 360 m² offre un emplacement idéal pour votre projet de construction.Parcelle avec une bonne exposition, dans une rue calme et peu passante, offrant un cadre de vie paisible à deux pas de toutes les commodités.Contactez Fabien UTEZA au (Numéro supprimé) pour plus d’informations.
Andernos-les-Bains
TERRAINTerrain à bâtir de 400 m² sur la commune d’Andernos dans un secteur calme.Situé dans un quartier recherché d’Andernos, proche du centre-ville, ce terrain de 400 m² offre un emplacement idéal pour votre projet de construction.Parcelle avec une bonne exposition, dans une rue calme et peu passante, offrant un cadre de vie paisible à deux pas de toutes les commodités.Contactez Fabien UTEZA au (Numéro supprimé) pour plus d’informations.
Lanton
TERRAINTerrain à bâtir de 400 m² sur la commune de Lanton dans un secteur calme.Situé dans un quartier recherché de Lanton, proche du centre-ville, ce terrain de 400 m² offre un emplacement idéal pour votre projet de construction.Parcelle avec une bonne exposition, dans une rue calme et peu passante, offrant un cadre de vie paisible à deux pas de toutes les commodités.Contactez Fabien UTEZA au (Numéro supprimé) pour plus d’informations.
Lanton
TERRAIN ET MAISONSur la commune de Lanton, dans un quartier résidentiel, calme et recherché, ce terrain de 400 m² bénéficie d’un emplacement rare, bonne exposition, et à l’écart de toute nuisance sonore ou visuelle.La parcelle est viabilisée et permet de réaliser une belle maison de plain-pied ou à étage, dans un environnement serein, préservé et sans vis-à-vis.Présentation de notre modèle de maison personnalisable de 100 m².Une véritable opportunité pour construire dans l’un des secteurs les plus qualitatifs du Bassin d’Arcachon.Contactez Fabien UTEZA au (Numéro supprimé) pour plus d’informations.
Andernos-les-Bains
TERRAIN ET MAISONSur la commune d’Andernos, dans un quartier résidentiel, calme et recherché, ce terrain de 500 m² bénéficie d’un emplacement rare, bonne exposition, et à l’écart de toute nuisance sonore ou visuelle.La parcelle est viabilisée et permet de réaliser une belle maison de plain-pied ou à étage, dans un environnement serein, préservé et sans vis-à-vis.Présentation de notre modèle de maison personnalisable de 105 m².Une véritable opportunité pour construire dans l’un des secteurs les plus qualitatifs du Bassin d’Arcachon.Contactez Fabien UTEZA au (Numéro supprimé) pour plus d’informations.
L’actualité immobilière à Andernos-les-Bains
27/11/2023
02/11/2023
30/10/2023
20/10/2023
16/10/2023
16/10/2023