Maison neuve à Arès (33740)
Images
Description
Sur la commune d' Arès, dans un quartier résidentiel, calme et recherché, ce terrain de 360 m² bénéficie d'un emplacement rare, bonne exposition, et à l'écart de toute nuisance sonore ou visuelle.
La parcelle est viabilisée et permet de réaliser une belle maison de plain-pied ou à étage, dans un environnement préservé, et sans vis-à-vis.
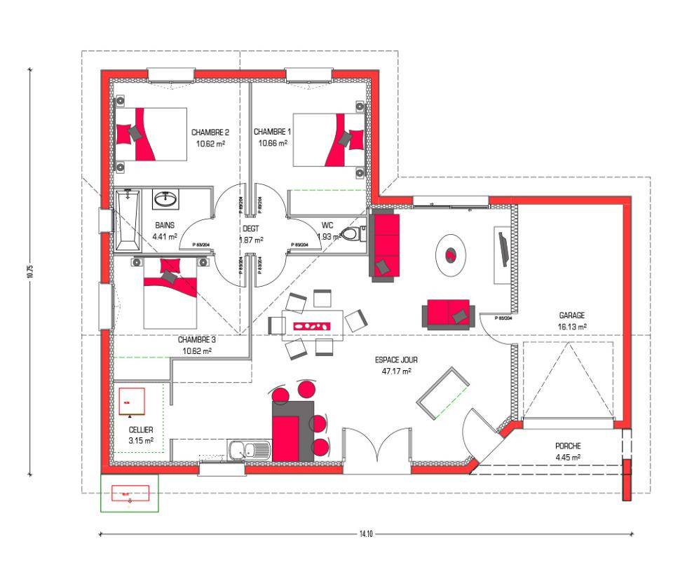
Présentation de notre modèle de maison personnalisable de 90 m².
Le prix inclus l'achat du terrain, les frais de notaire, la construction, et les raccordements.
Contactez Fabien UTEZA au (Numéro supprimé) pour plus d'informations.
Logement susceptibles de vous intéresser
Nous vous proposons de découvrir aussi cette sélection de logements situés à moins de 10km de Arès et qui seraient susceptibles de vous intéresser.
Arès
TERRAIN ET MAISONArès : maison T4 (90 m²) à vendre. Contactez notre agence (ARNOULD Guillaume : (Numéro supprimé))- 400 mètres à pied du Centre-Ville D’ARES- A 4 mn à Vélo de la Jetée D’Arès et de la Plage du Triangle de PereireQUARTIER RECHERCHÉ – MAISON 4 PIÈCES NEUVESur la côte atlantique, en vente dans un quartier recherché d’Arès (33740), nous sommes ravis de vous présenter cette maison de 4 pièces de plain-pied de 90 m². Elle compte trois chambres, une cuisine et une salle de bains. GarageLe terrain de la propriété s’étend sur 350 m².La maison est neuve. PLAN ET SURFACE MODULABLES.Cette maison se trouve dans un secteur convoité. L’École Maternelle W. Bordes Sue est implantée à moins de 10 minutes à pied. On trouve un accès à l’autoroute A660 à 20 km. Il y a un tennis, des commerces, un supermarché, deux boulangeries, un bureau de poste et une épicerie à quelques minutes du bien. Le marché Place Weiss anime le quartier tous les mardis matin.Elle est à vendre pour la somme de 380 000 €.Contactez notre agence (ARNOULD Guillaume : (Numéro supprimé)) pour plus d’informations sur la propriété. Maisons de la Côte Atlantique Saint-Médard-en-Jalles vous accompagne à toutes les étapes de l’achat et dans tous vos projets immobiliers.
Le Porge
TERRAINLe Temple : terrain de 1 124 m² à vendreEMPLACEMENT PRIVILÉGIÉ – PROCHE DE BORDEAUXAu Temple (33680) à vendre à 20 km de l’océan Atlantique et à deux pas de Bordeaux, imaginez la maison de vos rêves sur ce terrain de 1 124 m². Il y a l’École Primaire la Lebade à moins de 10 minutes à pied. On trouve un tennis à proximité du terrain.Il est proposé à l’achat pour 150 000 €. N’hésitez pas à prendre contact avec notre agence (AUDINEAU Pamela : (Numéro supprimé)) pour obtenir de plus amples renseignements sur le terrain. Maisons de la Côte Atlantique Portets est là pour vous accompagner dans tous vos projets immobiliers.
Arès
TERRAIN ET MAISONVENTE d’une maison de 4 pièces (100 m²) à ArèsN’hésitez pas à prendre contact avec Javier TERRON ((Numéro supprimé)) pour obtenir de plus amples renseignements sur la maison ou sur les modalités de vente. Villas Melrose Andernos-les-Bains est là pour vous accompagner dans tous vos projets immobiliers.IDÉALEMENT SITUÉE – MAISON 4 PIÈCES NEUVEEn vente sur la côte atlantique et à 26 km de Saint-Médard-en-Jalles, votre agence Villas Melrose Andernos-les-Bains est ravie de vous présenter, idéalement située dans Arès (33740), cette maison de 4 pièces de plain-pied de 100 m² et de 345 m² de terrain. Conçue de plain-pied, elle dispose de trois chambres, d’une cuisine et de deux salles de bains.Cette maison est neuve.La maison se situe dans un secteur prisé. On trouve l’École Maternelle W. Bordes Sue à moins de 10 minutes à pied. On trouve un accès à l’autoroute A660 à 20 km. Il y a un tennis, des commerces, un supermarché, deux boulangeries, une boucherie-charcuterie et une poissonnerie à quelques minutes à peine. Ne manquez pas le marché Place Weiss chaque mardi matin.Elle est proposée à l’achat pour 423 560 €. Hors frais de notaire, et de raccordements.
Arès
TERRAIN ET MAISONArès : maison T5 (112 m²) en venteIDÉALEMENT SITUÉE – MAISON 5 PIÈCES NEUVEÀ 1 km de la côte atlantique et à deux pas de Saint-Médard-en-Jalles, nous sommes ravis de vous présenter cette maison de 5 pièces de plain-pied de 112 m² à vendre, idéalement située dans Arès (33740).Son intérieur propose trois chambres, une cuisine et une salle de bains. Cette maison est neuve.Le terrain du bien est de 320 m².La maison est située dans un quartier recherché. Il y a l’École Maternelle W. Bordes Sue à moins de 10 minutes à pied. L’autoroute A660 est accessible à 20 km. On trouve un tennis, des commerces, un supermarché, deux boulangeries, une épicerie et une boucherie-charcuterie dans les environs. Le marché Place Weiss anime le quartier chaque mardi matin.Elle est à vendre pour la somme de 424 000 €.Contactez Laurent BOLZER ((Numéro supprimé)) pour tout renseignement sur la maison. Concrétisez vos projets immobiliers avec Maisons de la Côte Atlantique Biganos.
Andernos-les-Bains
TERRAIN ET MAISONSur la commune d’Andernos, dans un quartier résidentiel, calme et recherché.Ce terrain de 570 m² bénéficie d’un emplacement rare, bonne exposition, et à l’écart de toute nuisance sonore ou visuelle.La parcelle est viabilisée et permet de réaliser une belle maison de plain-pied ou à étage, dans un environnement serein, préservé et sans vis-à-vis.Présentation de notre modèle de maison personnalisable de 115 m².Une véritable opportunité pour construire dans l’un des secteurs les plus qualitatifs du Bassin d’Arcachon.D’autres terrains sont disponibles sur Andernos.Contactez Fabien UTEZA au (Numéro supprimé) pour plus d’informations.
Lanton
TERRAIN ET MAISONSur la commune de Lanton, dans un quartier résidentiel, calme et recherché, ce terrain de 400 m² bénéficie d’un emplacement rare, bonne exposition, et à l’écart de toute nuisance sonore ou visuelle.La parcelle est viabilisée et permet de réaliser une belle maison de plain-pied ou à étage, dans un environnement serein, préservé et sans vis-à-vis.Présentation de notre modèle de maison personnalisable de 90 m².Une véritable opportunité pour construire dans l’un des secteurs les plus qualitatifs du Bassin d’Arcachon.Contactez Fabien UTEZA au (Numéro supprimé) pour plus d’informations.
Arès
TERRAIN ET MAISONSur la commune d’Arès, dans un quartier résidentiel, calme et recherché, ce terrain de 450 m² bénéficie d’un emplacement rare, bonne exposition, et à l’écart de toute nuisance sonore ou visuelle.La parcelle est viabilisée et permet de réaliser une belle maison de plain-pied ou à étage, dans un environnement serein, préservé et sans vis-à-vis.Présentation de notre modèle de maison « NAHIA » de 90 m² + garage.Une véritable opportunité pour construire dans l’un des secteurs les plus qualitatifs du Bassin d’Arcachon.D’autres terrains à bâtir sont disponibles sur Arès.Contactez Fabien UTEZA au (Numéro supprimé) pour plus d’informations.
Le Porge
TERRAIN ET MAISONVENTE d’une maison F3 (69 m²) au TempleEMPLACEMENT PRIVILÉGIÉ – MAISON 3 PIÈCES NEUVEÀ vendre : à 20 km de la côte atlantique et à quelques kilomètres de Bordeaux, notre agence Maisons de la Côte Atlantique Portets est ravie de vous proposer cette maison de 3 pièces de plain-pied de 69 m², bénéficiant d’un emplacement privilégié dans Le Temple (33680). Son intérieur est composé de deux chambres, d’une cuisine et d’une salle de bains.Le terrain de la propriété est de 1 124 m².Cette maison est neuve.La maison est située dans un quartier convoité. Il y a l’École Primaire la Lebade à moins de 10 minutes à pied. On trouve un tennis à quelques minutes à peine.Elle est à vendre pour la somme de 288 667 €.Contactez notre agence (AUDINEAU Pamela : (Numéro supprimé)) pour tout renseignement sur la propriété. Donnez vie à vos projets immobiliers avec Maisons de la Côte Atlantique Portets.
Arès
TERRAIN ET MAISONArès : maison F4 (115 m²) à vendreContactez notre agence (TERRON Javier : (Numéro supprimé)) pour tout renseignement sur la maison, sur les modalités de vente ou sur les démarches à suivre. Villas Melrose Andernos-les-Bains vous accompagne à toutes les étapes de votre projet et dans tous vos projets immobiliers.IDÉALEMENT SITUÉE – MAISON 4 PIÈCES NEUVEÀ 1 km de l’océan Atlantique et à 26 km de Saint-Médard-en-Jalles, Villas Melrose Andernos-les-Bains vous présente en vente, idéalement située dans Arès (33740), cette maison de 4 pièces de plain-pied de 115 m².Elle propose trois chambres, une cuisine et deux salles de bains. La maison est neuve.Le terrain de la propriété s’étend sur 345 m².La propriété est située dans un secteur attractif. Il y a l’École Maternelle W. Bordes Sue à moins de 10 minutes à pied. L’autoroute A660 est accessible à 20 km. On trouve un tennis, des commerces, un supermarché, deux boulangeries, une boucherie-charcuterie et une poissonnerie dans les environs. Enfin, le marché Place Weiss anime les environs chaque mardi matin.Son prix de vente est de 442 150 €. Hors frais de notaire, et de raccordements.
L’actualité immobilière à Arès
27/11/2023
02/11/2023
30/10/2023
20/10/2023
16/10/2023
16/10/2023