Maison neuve à Audenge (33980)
Images
Description
Sur la commune d'Audenge, dans un quartier résidentiel, calme et recherché, ce terrain de 650 m² bénéficie d'un emplacement rare, bonne exposition, et à l'écart de toute nuisance sonore ou visuelle.
La parcelle est viabilisée et permet de réaliser une belle maison de plain-pied ou à étage, dans un environnement serein, préservé et sans vis-à-vis.
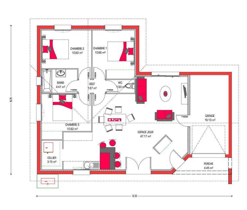
Présentation de notre modèle de maison personnalisable de 90 m².
Une véritable opportunité pour construire dans l'un des secteurs les plus qualitatifs du Bassin d'Arcachon.
Contactez Fabien UTEZA au (Numéro supprimé) pour plus d'informations.
Logement susceptibles de vous intéresser
Nous vous proposons de découvrir aussi cette sélection de logements situés à moins de 10km de Audenge et qui seraient susceptibles de vous intéresser.
Audenge
TERRAIN ET MAISONBeau terrain de 610m² vendu en direct particulier. En seconde ligne, il offre la possibilité de construire jusqu'à 215m² au sol. . Cette contemporaine orientée nord-sud vous accueille sous un porche ouvrant sur un séjour et sa cuisine semi-ouverte de 60 m², puis un bureau, une suite parentale de 23 m², 2 chambres, sdb, et un garage de 26 m². Pour vous assurer un confort de vie et conformément à la RE2025, nous avons choisi un mode de chauffage par PAC + plancher chauffant, volets roulants électriques. Prix hors peinture, décoration, revêtements de sol dans les chambres, cuisine équipée), frais de notaire, raccordements, dommage ouvrage. . // Réf. : 536-210836-PEL. Prix terrain : 219 000 €, hors frais d'agence à la charge de l'acquéreur. Ce terrain vous est proposé, par nos partenaires fonciers, dans le cadre d'un projet de construction avec nous. Les informations sur les risques auxquels ce bien est exposé sont disponibles sur le site Géorisques (www.georisques.gouv.fr). Prix maison : 276 145 €.
Audenge
TERRAIN ET MAISONBeau terrain de 610m² vendu en direct particulier. En seconde ligne, il offre la possibilité de construire jusqu'à 215m² au sol. . Très belle maison de plain-pied de 131 m² habitables avec garage. La vie s'organise autour d'un très bel espace de vie très lumineux grâce à ses ouvertures et sa très grande baie vitrée qui vous conduit sur une magnifique terrasse, accessible également depuis le coin cuisine. Pour l'espace nuit, 4 chambres dont 1 chambre parentale avec placards et salle d'eau privative, une salle de bains avec baignoire, double vasque et wc séparés. Pour vous assurer un confort de vie et conformément à la RE2025, nous avons choisi un mode de chauffage par PAC + plancher chauffant, volets roulants électriques. Prix hors peinture, décoration, revêtements de sol dans les chambres, cuisine équipée), frais de notaire, raccordements, dommage ouvrage. (Piscine non contractuelle, non comprise dans le prix). // Réf. : 1688-210836-PEL. Prix terrain : 219 000 €, hors frais d'agence à la charge de l'acquéreur. Ce terrain vous est proposé, par nos partenaires fonciers, dans le cadre d'un projet de construction avec nous. Les informations sur les risques auxquels ce bien est exposé sont disponibles sur le site Géorisques (www.georisques.gouv.fr). Prix maison : 330 105 €.
Audenge
TERRAIN ET MAISONBeau terrain de 610m² vendu en direct particulier. En seconde ligne, il offre la possibilité de construire jusqu'à 215m² au sol. . Premier investissement ou résidence secondiare, cette maison de plain-pied en L est faite pour vous : Très belle pièce de vie très lumineuse de plus de 45 m² oouverte sur le jardin. L’espace nuit est composé de trois chambres avec tous les rangements nécessaires ainsi que d’une salle de bains et des wc séparés. Le plus de cette maison est sans nul doute son garage intégré. Pour vous assurer un confort de vie et conformément à la RE2025, nous avons choisi un mode de chauffage par PAC + plancher chauffant, volets roulants électriques. Prix hors peinture, décoration, revêtements de sol dans les chambres, cuisine équipée), frais de notaire, raccordements, dommage ouvrage. // Réf. : 1714-210836-PEL. Prix terrain : 219 000 €, hors frais d'agence à la charge de l'acquéreur. Ce terrain vous est proposé, par nos partenaires fonciers, dans le cadre d'un projet de construction avec nous. Les informations sur les risques auxquels ce bien est exposé sont disponibles sur le site Géorisques (www.georisques.gouv.fr). Prix maison : 187 600 €.
Audenge
TERRAINBeau terrain de 610m² vendu en direct particulier. En seconde ligne, il offre la possibilité de construire jusqu'à 215m² au sol. . // Réf. : T210836. Prix terrain : 219 000 €, hors frais d'agence et de notaire à la charge de l'acquéreur. Ce terrain vous est proposé, par nos partenaires fonciers, dans le cadre d'un projet de construction avec nous. Les informations sur les risques auxquels ce bien est exposé sont disponibles sur le site Géorisques (www.georisques.gouv.fr).
Biganos
TERRAINVENTE : terrain de 745 m² en plein centre ville de Biganos. Le terrai est entiérement cloturé et non viabilisé. EAUD EDF TAE en bordure.CENTRE-VILLE – PROCHE DE MÉRIGNACEn vente à 8 km de l’océan Atlantique et à quelques kilomètres de Mérignac à Biganos (33380), grand terrain. Il est prêt à accueillir votre résidence principale ou secondaire pour toute la famille. Il profite d’une vue sur rue. En centre-ville, ce terrain est proche des écoles et des commerces. L’École Élementaire Jules Ferry, l’École Maternelle Marcel Pagnol et le Collège Jean Zay sont implantés à moins de 10 minutes à pied. Côté transports en commun, il y a la gare Biganos Facture à quelques pas du terrain. Il y a un accès à l’autoroute A660 à 3 km. On trouve deux tennis, des commerces, trois boulangeries, un bureau de poste, deux boucheries-charcuteries et une épicerie à proximité du terrain.Il est proposé à l’achat pour 170 000 €. N’hésitez pas à prendre contact avec Romain TEXIER ((Numéro supprimé)) pour toute information sur le terrain, sur les démarches à suivre ou sur les modalités de vente. Maisons de la Côte Atlantique Le Barp est là pour vous accompagner dans tous vos projets immobiliers.
Biganos
TERRAIN ET MAISONBiganos : maison de 5 pièces (130 m²) à vendreCENTRE-VILLE – MAISON 5 PIÈCES NEUVEÀ vendre sur le littoral atlantique et à quelques kilomètres de Mérignac, laissez vous charmer par cette maison de 5 pièces de 130 m² dans le centre de Biganos (33380). Son intérieur offre quatre chambres, une cuisine et une salle de bains.Le terrain de la propriété est de 745 m².Il s’agit d’une maison de 2 niveaux. Elle est neuve.L’École Élementaire Jules Ferry, l’École Maternelle Marcel Pagnol et le Collège Jean Zay sont implantés à moins de 10 minutes à pied. Côté transports, il y a la gare Biganos Facture dans les environs. Il y a un accès à l’autoroute A660 à 3 km. On trouve deux tennis, des commerces, trois boulangeries, une épicerie, une poissonnerie et un bureau de poste à proximité du logement.Elle est à vendre pour la somme de 418 610 €.N’hésitez pas à prendre contact avec Romain TEXIER (tél : (Numéro supprimé)) pour tout renseignement sur la maison, sur les démarches à suivre ou sur les modalités de vente. Maisons de la Côte Atlantique Le Barp vous accompagne dans tous vos projets immobiliers et à toutes les étapes de votre projet.
Biganos
TERRAIN ET MAISONVENTE : maison F6 (100 m²) à BiganosCENTRE-VILLE – MAISON 6 PIÈCES NEUVEEn vente à 8 km de la côte atlantique et à 29 km de Mérignac, Maisons de la Côte Atlantique Le Barp vous présente cette maison de 6 pièces de plain-pied de 100 m², à Biganos (33380), en centre-ville.Son intérieur inclut trois chambres, une cuisine et deux salles de bains. La maison est neuve.Le terrain du bien s’étend sur 745 m².L’École Élementaire Jules Ferry, l’École Maternelle Marcel Pagnol et le Collège Jean Zay sont implantés à moins de 10 minutes à pied. Niveau transports, on trouve la gare Biganos Facture juste à côté. L’autoroute A660 est accessible à 3 km. Il y a deux tennis, des commerces, trois boulangeries, une épicerie, une poissonnerie et deux boucheries-charcuteries dans les environs.Il est proposé à l’achat pour 332 940 €.Prenez contact avec Romain TEXIER (tél : (Numéro supprimé)) pour obtenir de plus amples renseignements sur la maison et sur les modalités de vente. Concrétisez vos projets immobiliers avec Maisons de la Côte Atlantique Le Barp.
Biganos
TERRAIN ET MAISONBiganos : maison T6 (115 m²) en venteCENTRE-VILLE – MAISON 6 PIÈCES NEUVEÀ vendre à 8 km de la côte atlantique et à deux pas de Mérignac, dans le centre de Biganos (33380), Maisons de la Côte Atlantique Le Barp vous propose cette maison de 6 pièces de plain-pied de 115 m² et de 745 m² de terrain. Son intérieur offre trois chambres, une cuisine et deux salles de bains.Cette maison est neuve.Il y a l’École Élementaire Jules Ferry, l’École Maternelle Marcel Pagnol et le Collège Jean Zay à moins de 10 minutes à pied. Niveau transports en commun, on trouve la gare Biganos Facture dans un rayon de 1 km. L’autoroute A660 est accessible à 3 km. Il y a deux tennis, des commerces, trois boulangeries, une poissonnerie, deux boucheries-charcuteries et une épicerie dans les environs.Elle est proposée à l’achat pour 349 650 €.Contactez Romain TEXIER (tél : (Numéro supprimé)) pour toute information sur la maison ou sur les démarches à suivre. Maisons de la Côte Atlantique Le Barp est là pour vous accompagner à toutes les étapes de votre projet.
Biganos
TERRAIN ET MAISONVENTE d’une maison T6 (119 m²) à BiganosCENTRE-VILLE – MAISON 6 PIÈCES NEUVEEn vente : à 8 km de l’océan Atlantique et à deux pas de Mérignac, Maisons de la Côte Atlantique Le Barp vous présente cette maison de 6 pièces de plain-pied de 119 m² et de 745 m² de terrain, dans le centre-ville de Biganos (33380).Conçue de plain-pied, elle est composée de trois chambres, d’une cuisine et de deux salles de bains. La maison est neuve.L’École Élementaire Jules Ferry, l’École Maternelle Marcel Pagnol et le Collège Jean Zay se trouvent à moins de 10 minutes à pied. Niveau transports en commun, il y a la gare Biganos Facture à proximité. L’autoroute A660 est accessible à 3 km. On trouve deux tennis, des commerces, trois boulangeries, deux boucheries-charcuteries, une épicerie et une poissonnerie à quelques minutes à peine.Son prix de vente est de 358 720 €.Contactez Romain TEXIER ((Numéro supprimé)) pour plus d’informations sur la propriété.
L’actualité immobilière à Audenge
27/11/2023
02/11/2023
30/10/2023
20/10/2023
16/10/2023
16/10/2023