Maison à construire à Bordeaux (33100)
Images
Description
Maison neuve à étage - Bordeaux Bastide secteur Galin - Tram à pied
Emplacement rare à deux pas de l'arrêt de tram Galin, dans un quartier résidentiel paisible et sans nuisance, sur la rive droite bordelaise.
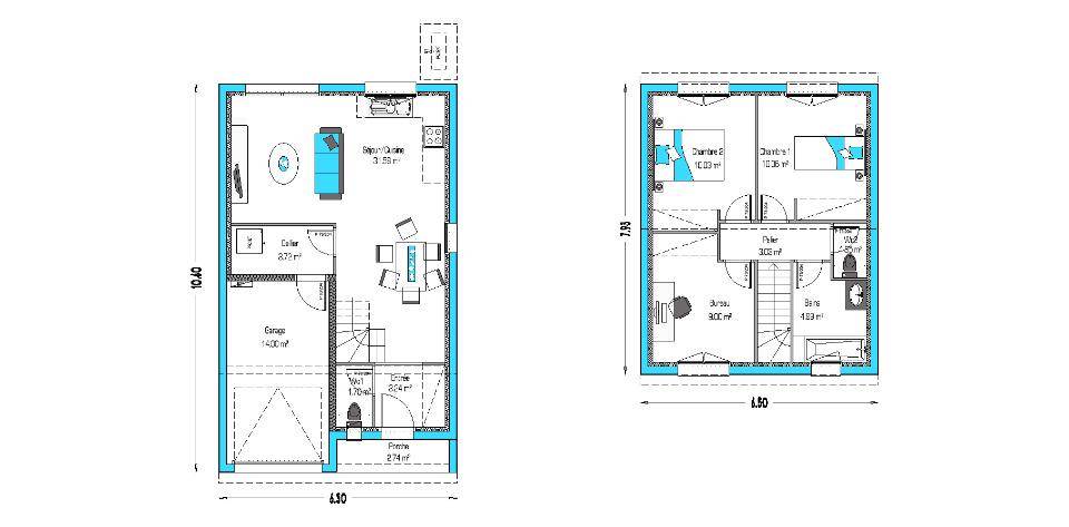
Découvrez ce projet de maison de ville à étage sur un terrain de 270 m² entièrement personnalisable pour une surface plancher maximale de 105 m².
Caractéristiques du projet :
Maison à étage avec une belle architecture urbaine
3 chambres à l'étage, dont une suite parentale possible
Grande pièce de vie traversante ouverte sur le jardin arrière
Garage intégré en façade possible
Terrain clos et arboré, avec espace extérieur à aménager selon vos envies
Atouts :
Emplacement premium à 2 min du tram Galin
Quartier calme, résidentiel, proche des commerces et écoles
Opportunité rare sur le secteur Bastide
Terrain avec construction existante de 50 m² à valoriser ou à démolir situé en fond de parcelle
Contactez-nous pour étudier votre projet de construction sur mesure.
Logement susceptibles de vous intéresser
Nous vous proposons de découvrir aussi cette sélection de logements situés à moins de 10km de Bordeaux et qui seraient susceptibles de vous intéresser.
Bouliac
TERRAINVENTE : terrain de 670 m² à BouliacPROCHE DE BORDEAUXÀ 25 km de la côte atlantique et à deux pas de Bordeaux à Bouliac (33270), grand terrain. Des écoles maternelles et élémentaires sont implantées à moins de 10 minutes à pied, tout comme, parmi lesquelles l’École Élementaire André Peynaud. Niveau transports, on trouve huit gares à moins de 10 minutes en voiture. Les autoroutes A630, A10 et A62 et les nationales N230 et N89 sont accessibles à moins de 10 km. Il y a un tennis, une bibliothèque, une boulangerie, quatre commerces, un bureau de poste et une boucherie-charcuterie dans les environs.Il est à vendre pour la somme de 247 000 €. N’hésitez pas à prendre contact avec notre agence (ZODROS Naomi : (Numéro supprimé) ) pour obtenir de plus amples renseignements sur ce terrain. Maisons de la Côte Atlantique Créon est là pour vous accompagner dans tous vos projets immobiliers.
Bouliac
TERRAIN ET MAISONVENTE d’une maison de 6 pièces (100 m²) à BouliacMAISON 6 PIÈCES NEUVE – PROCHE DE BORDEAUXÀ 25 km de la côte atlantique et à quelques kilomètres de Bordeaux, venez découvrir cette maison de 6 pièces de plain-pied de 100 m² et de 670 m² de terrain à vendre à Bouliac (33270). Son intérieur comporte trois chambres, une cuisine et deux salles de bains.La maison est neuve.Il y a des écoles maternelles et élémentaires à moins de 10 minutes à pied et dont l’École Élementaire André Peynaud. Niveau transports, on trouve huit gares à moins de 10 minutes en voiture. Les autoroutes A630, A10 et A62 et les nationales N230 et N89 sont accessibles à moins de 10 km. Il y a un tennis, une bibliothèque, une boulangerie, quatre commerces, une boucherie-charcuterie et un bureau de poste dans les environs.Son prix de vente est de 452 995 €.Contactez notre agence (Naomi ZODROS : (Numéro supprimé) ) pour tout renseignement sur cette maison, sur les modalités de vente ou sur les démarches à suivre. Concrétisez vos projets immobiliers avec Maisons de la Côte Atlantique Créon.
Bouliac
TERRAIN ET MAISONVENTE : maison de 3 pièces (111 m²) à BouliacMAISON 3 PIÈCES NEUVE – PROCHE DE BORDEAUXEn vente sur le littoral atlantique et à quelques kilomètres de Bordeaux, à Bouliac (33270), votre agence Maisons de la Côte Atlantique Créon est heureuse de vous présenter cette maison de 3 pièces de plain-pied de 111 m².Conçue de plain-pied, elle offre trois chambres, une cuisine et une salle de bains. Cette maison est neuve.Le terrain de la propriété s’étend sur 670 m².Il y a des écoles maternelles et élémentaires à moins de 10 minutes à pied et, parmi lesquelles l’École Élementaire André Peynaud. Côté transports en commun, on trouve huit gares à moins de 10 minutes en voiture. Les autoroutes A630, A10 et A62 et les nationales N230 et N89 sont accessibles à moins de 10 km. Il y a un tennis, une bibliothèque, une boulangerie, quatre commerces, un bureau de poste et une boucherie-charcuterie dans les environs.Elle est proposée à l’achat pour 457 997 €.Contactez notre constructeur (Naomi ZODROS : (Numéro supprimé) ) pour tout renseignement sur la maison ou sur les démarches à suivre.
Bouliac
TERRAIN ET MAISONBouliac : maison de 3 pièces (100 m²) en ventePROCHE DE BORDEAUX – MAISON 3 PIÈCES NEUVEÀ vendre à 25 km de l’océan Atlantique et à deux pas de Bordeaux, nous vous proposons cette maison de 3 pièces de plain-pied de 100 m² et de 670 m² de terrain à Bouliac (33270).Son intérieur dispose de trois chambres, d’une cuisine et de deux salles de bains. Cette maison est neuve.Des écoles maternelles et élémentaires sont implantées à moins de 10 minutes à pied, tout comme dont l’École Élementaire André Peynaud. Côté transports en commun, il y a huit gares à moins de 10 minutes en voiture. Les autoroutes A630, A10 et A62 et les nationales N230 et N89 sont accessibles à moins de 10 km. On trouve un tennis, une bibliothèque, une boulangerie, quatre commerces, une boucherie-charcuterie et un bureau de poste dans les environs.Son prix de vente est de 427 995 €.Contactez notre agence (Naomi ZODROS : (Numéro supprimé) ) pour toute information sur cette maison, sur les modalités de vente ou sur les démarches à suivre. Maisons de la Côte Atlantique Créon est là pour vous accompagner dans tous vos projets immobiliers.
Bouliac
TERRAIN ET MAISONVENTE : maison de 4 pièces (100 m²) à BouliacMAISON 4 PIÈCES NEUVE – PROCHE DE BORDEAUXÀ vendre : à 25 km de l’océan Atlantique et à quelques kilomètres de Bordeaux, nous sommes heureux de vous présenter cette maison de 4 pièces de plain-pied de 100 m² à Bouliac (33270).Conçue de plain-pied, elle propose trois chambres, une cuisine et deux salles de bains. Cette maison est neuve.Le terrain de la propriété est de 670 m².Des écoles maternelles et élémentaires se trouvent à moins de 10 minutes à pied, tout comme, comme l’École Élementaire André Peynaud. Niveau transports en commun, il y a huit gares à moins de 10 minutes en voiture. Les autoroutes A630, A10 et A62 et les nationales N230 et N89 sont accessibles à moins de 10 km. On trouve un tennis, une bibliothèque, une boulangerie, quatre commerces, une boucherie-charcuterie et un bureau de poste à proximité.Elle est à vendre pour la somme de 432 995 €.Prenez contact avec notre agence (ZODROS Naomi : (Numéro supprimé) ) pour obtenir de plus amples renseignements sur la maison ou sur les modalités de vente. Maisons de la Côte Atlantique Créon vous accompagne à toutes les étapes de votre projet et dans tous vos projets immobiliers.
Eysines
TERRAIN ET MAISONVENTE d’une maison T4 (102 m²) à EysinesQUARTIER RECHERCHÉ – MAISON 4 PIÈCES NEUVEÀ vendre à 12 km de la côte atlantique, située dans un secteur attractif d’Eysines (33320), nous vous proposons cette maison de 4 pièces de 102 m² et de 1 100 m² de terrain.Il s’agit d’une maison de 2 niveaux. Son intérieur inclut quatre chambres, une cuisine et une salle de bains. Cette maison est neuve.Ce bien se situe dans un quartier convoité. L’École Maternelle Raoul Dejean, l’École Élémentaire René Girol, le Collège Albert Camus et l’École Primaire Publique Pôle Éducatif sont implantés à moins de 10 minutes à pied, tout comme deux structures d’accueil pour les enfants en bas âge. Côté transports, on trouve huit gares à moins de 10 minutes en voiture. Il y a un accès à l’autoroute A630 à 2 km. Il y a une bibliothèque, des commerces, deux supermarchés, deux boulangeries, deux boucheries-charcuteries et un bureau de poste à quelques minutes.Son prix de vente est de 515 000 €.Prenez contact avec Laurent BOLZER ((Numéro supprimé)) pour tout renseignement sur la maison ou sur les modalités de vente.
Bordeaux
TERRAINVENTE : terrain de 700 m² à BordeauxSur le littoral atlantique à Bordeaux (33300), grand terrain. Réalisez-y votre résidence principale ou secondaire. Il est exposé au sud. Le terrain est proche des écoles et des commerces. Cinq établissements scolaires sont implantés à moins de 10 minutes à pied. Côté transports, il y a 12 gares à moins de 10 minutes en voiture. Il y a un accès à l » » » »autoroute A630 à 1 km. On trouve un tennis, un bassin de natation, des commerces, des boulangeries, trois supermarchés, trois épiceries et deux boucheries-charcuteries à quelques minutes à peine. Le marché Boulevard Brandenburg a lieu tous les vendredis matin.Ce terrain est proposé à l » » » »achat pour 680 000 €. Contactez notre agence (Laurent BOLZER : (Numéro supprimé)) pour toute information sur le terrain, sur les modalités de vente et sur les démarches à suivre.
Bordeaux
TERRAIN ET MAISONVENTE : maison de 4 pièces (102 m²) à BordeauxMAISON 4 PIÈCES NEUVESur le littoral atlantique, nous sommes heureux de vous présenter cette maison de 4 pièces de 102 m² à Bordeaux (33300). Son intérieur comporte quatre chambres, une cuisine et une salle de bains.Le terrain de la propriété est de 700 m².Cette maison compte 2 niveaux. Elle est neuve.Il y a cinq établissements scolaires à moins de 10 minutes à pied. Côté transports en commun, on trouve 12 gares à moins de 10 minutes en voiture. On trouve un accès à l’autoroute A630 à 1 km. Il y a un tennis, un bassin de natation, des commerces, des boulangeries, trois supermarchés, un bureau de poste et trois épiceries à proximité de la maison. Le marché Boulevard Brandenburg a lieu chaque vendredi matin.Elle est à vendre pour la somme de 875 000 €.Contactez notre agence (Laurent BOLZER : (Numéro supprimé)) pour obtenir de plus amples informations sur le bien ou sur les démarches à suivre. Donnez vie à vos projets immobiliers avec Maisons de la Côte Atlantique Biganos.
Bordeaux
TERRAINÀ Bordeaux, rare opportunité avec ce terrain non viabilisé de 382 m², proposé à 290 000 €. Situé dans un secteur calme et recherché, il offre un cadre de vie agréable à proximité immédiate des commerces, écoles et transports. // Réf. : T210579. Prix terrain : 290 000 €, hors frais d'agence et de notaire à la charge de l'acquéreur. Ce terrain vous est proposé, par nos partenaires fonciers, dans le cadre d'un projet de construction avec nous. Les informations sur les risques auxquels ce bien est exposé sont disponibles sur le site Géorisques (www.georisques.gouv.fr).
L’actualité immobilière à Bordeaux
27/11/2023
02/11/2023
30/10/2023
20/10/2023
16/10/2023
16/10/2023