Maison neuve à Cénac (33360)
Images
Description
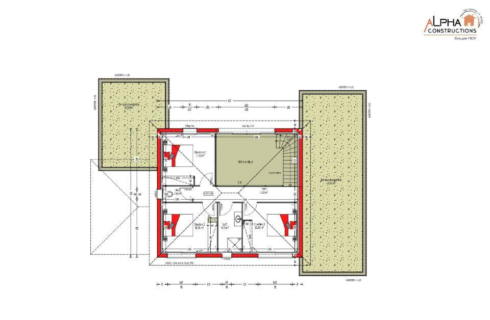
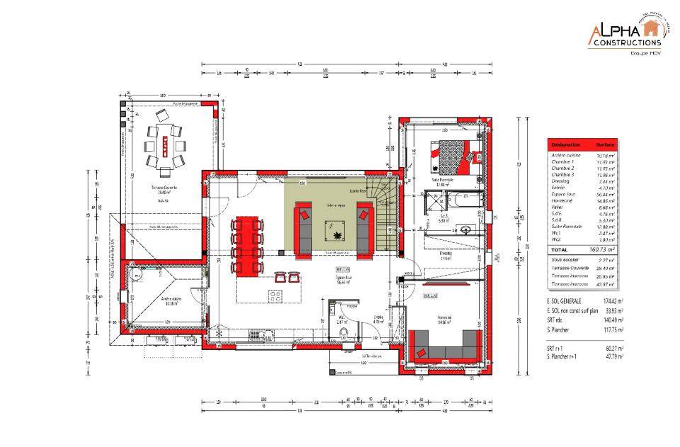
Maison 4 pièces (120m²) + garage -Cénac (33360)
Situé à proximité immédiate du centre de Cénac et des écoles, ce terrain à bâtir de 1 680 m² offre un cadre de vie agréable, alliant calme et praticité au quotidien.
Le terrain, non viabilisé, bénéficie d'une emprise au sol de 89 m², permettant la construction d'une maison à étage d'environ 120 m² habitables, complétée d'un garage.
Dans un environnement calme et recherché, découvrez ce projet de construction avec Alpha Constructions - Créon :
Maison à étage de 120m² comprenant :
3 chambres
Un séjour lumineux et fonctionnel
Cuisine ouverte (selon vos envies)
Garage accolé
Conception respectant les normes RE2020
Ce projet est personnalisable pour répondre à vos besoins et à votre style de vie.
Contact direct : Alexandra CHAUVET - (Numéro supprimé)
Terrain proposé par un partenaire foncier selon disponibilité. Projet de construction sur mesure avec Alpha Constructions. Illustrations, surfaces et prix donnés à titre indicatif et non contractuels. Non soumis au DPE. Différents modèles disponibles.
Logement susceptibles de vous intéresser
Nous vous proposons de découvrir aussi cette sélection de logements situés à moins de 10km de Cénac et qui seraient susceptibles de vous intéresser.
Ayguemorte-les-Graves
TERRAINVous rêvez de construire votre maison proche de Bordeaux ? Ce superbe terrain plat et viabilisé d’environ 420 m² est fait pour vous !Situé dans un secteur verdoyant, au coeur du charmant village d’Ayguemorte-les-Graves, ce terrain offre un environnement idéal pour une vie de famille épanouie.Toutes les commodités sont à proximité : écoles, commerces, transports, et accès rapide à la rocade ou à la gare.Le terrain est viabilisé, il n’attend plus que votre projet de construction !N’hésitez pas à prendre contact avec notre agence (Edwige PICAUD : (Numéro supprimé)) pour plus d’informations sur le terrain ou sur les démarches à suivre. Alliance Constructions Aquitaine Langon vous accompagne dans toutes les étapes de votre projet.
Ayguemorte-les-Graves
TERRAIN ET MAISONLaissez-vous séduire par cette belle maison contemporaine de 120 m², idéalement implantée sur un terrain viabilisé d’environ 420 m², au coeur d’un environnement verdoyant.Prestations et agencement :- Spacieuse pièce de vie lumineuse avec cuisine ouverte sur le séjour- 3 chambres, dont une suite parentale avec salle d’eau privative-Salle de bain familiale et WC indépendantUn garage attenant avec accès direct à la maison complète le bien. Cette maison combine confort moderne, fonctionnalité et qualité de vie. Idéale pour une famille souhaitant rester proche de Bordeaux et de ses commodités.N’hésitez pas à prendre contact avec notre agence (Edwige PICAUD : (Numéro supprimé)) pour plus d’informations sur le terrain ou sur les démarches à suivre. Alliance Constructions Aquitaine Langon vous accompagne dans toutes les étapes de votre projet.
Bouliac
TERRAIN ET MAISONMaison 7 pièces (160 m²) sur terrain de 1 092 m² – Bouliac (33270)Découvrez cette opportunité rare dans un lotissement boisé privilégié : une maison neuve de 160 m², pensée pour offrir confort et modernité.Elle se compose de :3 chambres spacieuses, idéales pour la familleUn vaste séjour traversant et lumineuxUne construction conforme aux normes RE2020 pour plus d’économies et de confortLe tout sur une parcelle généreuse de 1 092 m², à seulement quelques minutes de Bordeaux et de la rocade.Ce projet est personnalisable avec Alpha Constructions – Créon, afin de concevoir la maison qui vous ressemble.Renseignements : Alexandra CHAUVET – (Numéro supprimé)Terrain proposé par un partenaire foncier selon disponibilité. Projet de construction sur mesure avec Alpha Constructions. Illustrations, surfaces et prix donnés à titre indicatif et non contractuels. Non soumis au DPE. Différents modèles disponibles.
Villenave-d'Ornon
TERRAIN🏡 Terrain à bâtir 448 m² – Villenave-d’OrnonÀ saisir ! Ce terrain plat situé dans un secteur calme et recherché est une belle opportunité pour concrétiser votre projet de maison.Pourquoi ? Car avec son emplacement vous profitez d’un cadre de vie paisible et pratique, avec toutes les commodités à proximité :🛍️ Commerces, écoles et services accessibles à pied🚍 Bus 5 et 89 à proximité🚉 Gare de Villenave-d’Ornon à 10 min à pied🚋 Tram C à moins de 5 min🏠 De plus, ce terrain est prêt à accueillir le projet de votre choix, il permet la construction en R+1 ou en plain-pied (30 % d’emprise au sol).Sa forme et son exposition offrent un cadre parfait pour une maison moderne et lumineuse dans un environnement verdoyant !🔧 Atouts techniques✅ Terrain plat et clôturé✅ Étude de sol G1 déjà réalisée✅ Réseaux en bordure (eau, électricité, tout-à-l’égout)✅ Deux accès possibles pour plus de flexibilité d’aménagement💡 En résumé : un terrain de qualité, idéalement situé, prêt à construire et offrant de multiples possibilités.Vous souhaitez vous projeter, obtenir une esquisse de votre projet sur ce foncier? Prenez contact avec votre chargé de projet So’9 Habitat :Hugo BAINVEL (Numéro supprimé)
Villenave-d'Ornon
TERRAIN ET MAISON🏡 Projet de maison neuve – 130 m² sur terrain de 448 m² à Villenave-d’OrnonNous vous proposons cet exemple de projet sur un terrain plat idéalement situé dans un secteur calme et recherché.🌟 Un emplacement de choixProfitez d’un cadre de vie pratique et agréable, proche de tout :🛍️ Commerces, écoles et services à pied🚍 Bus 5 et 89 à proximité immédiate🚉 Gare de Villenave-d’Ornon à 10 min à pied🚋 Tram C à moins de 5 min🏠 Un projet moderne et fonctionnelMaison contemporaine de 130 m² habitables, comprenant une grande pièce de vie lumineuse ouverte sur le jardin, 3 chambres spacieuses dont une suite parentale.Son architecture élégante et ses volumes bien pensés offrent un confort optimal, tout en valorisant le terrain et la luminosité naturelle.Cette maison est un exemple de conception ! Projet 100% personnalisable selon vos besoins, vos goûts et votre mode de vie.Chez So’9 habitat on vous accompagne de la première esquisse jusqu’à la livraison de votre maison, pour un projet clé en main et serein.Ce qui ne bouge jamais :💡 Confort et technologie : domotique intégrée (chauffage, volets, sécurité connectée)🌿 Performance énergétique répondant à la norme RE2020🔧 Matériaux modernes et durables, zéro travaux à prévoir🛡️ Garanties constructeur : décennale, dommage ouvrage, parfait achèvement🏗️ Étude de sol G2 réalisée pour des fondations optimales et sécurisantes En résumé : pour un emplacement idéal, une maison moderne et économe, ainsi qu’un accompagnement sur mesure, prenez contact avec votre chargé de projet So’9 :Hugo BAINVEL (Numéro supprimé)
Créon
TERRAIN ET MAISONTerrain de 1570m² située sur la charmante commune de CREON. Ce terrain n'attend plus que votre projet de construction. . Laissez-vous séduire par cette superbe maison moderne, conçue pour offrir confort et fonctionnalité à toute la famille. Avec ses 5 chambres, dont une suite parentale avec dressing et salle de bain privative à l’étage, elle allie espace et intimité. Son grand séjour lumineux et sa cuisine ouverte créent un cadre de vie convivial, idéal pour les moments de partage. Le rez-de-chaussée accueille également un espace nuit bien pensé, parfait pour répondre aux besoins de chacun. Afin de vous garantir un confort optimal et de répondre aux exigences de la RE2025, cette maison est équipée d’un système de chauffage par pompe à chaleur (PAC), avec un plancher chauffant au rez-de-chaussée et des radiateurs à l’étage. Des volets roulants électriques complètent les prestations pour plus de praticité. À noter :Le prix indiqué ne comprend pas la fourniture et la pose des revêtements de sol dans les chambres, la cuisine aménagée, ainsi que la peinture et la décoration intérieure. Il exclut également les raccordements, les frais de notaire et l’assurance dommages-ouvrage (Piscine non contractuelle, non comprise dans le prix). // Réf. : 1658-210869-RRT. Prix terrain : 140 000 €, hors frais d'agence à la charge de l'acquéreur. Ce terrain vous est proposé, par nos partenaires fonciers, dans le cadre d'un projet de construction avec nous. Les informations sur les risques auxquels ce bien est exposé sont disponibles sur le site Géorisques (www.georisques.gouv.fr). Prix maison : 374 542 €.
Créon
TERRAIN ET MAISONTerrain de 1570m² située sur la charmante commune de CREON. Ce terrain n'attend plus que votre projet de construction. . Votre maison, vos règles ! Pourquoi s’adapter à une maison quand elle peut s’adapter à vous ? Ici, tout est modulable et personnalisable ! Un immense séjour baigné de lumière, une cuisine ouverte prête à accueillir vos inspirations culinaires, et une suite parentale en rez-de-chaussée pour un quotidien tout en confort. L’étage ? Un espace évolutif avec deux chambres et une mezzanine, parfait pour un coin détente, un bureau ou une salle de jeux… À vous d’imaginer la suite !. Ajoutez à cela un bureau indépendant et un garage pratique, et vous obtenez bien plus qu’une maison : un projet conçu à votre image. Ici, tout commence avec vos envies. Et si on dessinait votre futur chez vous ?. . Pour un confort optimal et conforme à la RE2025, cette maison dispose d’une PAC avec plancher chauffant, radiateurs à l’étage et volets roulants électriques. À noter : Le prix indiqué exclut les revêtements de sol des chambres, la cuisine aménagée, la peinture, la décoration, les raccordements, les frais de notaire et l’assurance dommages-ouvrage. // Réf. : 486-210869-RRT. Prix terrain : 140 000 €, hors frais d'agence à la charge de l'acquéreur. Ce terrain vous est proposé, par nos partenaires fonciers, dans le cadre d'un projet de construction avec nous. Les informations sur les risques auxquels ce bien est exposé sont disponibles sur le site Géorisques (www.georisques.gouv.fr). Prix maison : 302 680 €.
Créon
TERRAIN ET MAISONTerrain de 1570m² située sur la charmante commune de CREON. Ce terrain n'attend plus que votre projet de construction. . Maison d'architecte résolument contemporaine, idéalement agencée avec deux volumes distincts. Une partie nuit avec quatre grandes chambres lumineuses et fonctionnelles, une suite parentale singulière offrant une baignoire centrale avec vue sur la piscine. A l'opposé du coin nuit, on trouvera une grande pièce à vivre séparée en deux espaces par une verrière de type industriel. Un salon convivial où l'on aimera se retrouver, une cuisine agréable avec son ilot central pour des moments de partage, celle-ci donnant sur la piscine pour des déjeuners en famille et entre amis. A l'étage, un bel espace lumineux transformé soit en bureau, salle de jeux pour les enfants ou pour des moments de détente. (prix hors piscine). Pour vous assurer un confort de vie et conformément à la RE2025, nous avons choisi un mode de chauffage par PAC + plancher chauffant, volets roulants électriques. Prix hors peinture, décoration, revêtements de sol dans les chambres, cuisine équipée), frais de notaire, raccordements, dommage ouvrage. (Piscine non contractuelle, non comprise dans le prix). // Réf. : 1663-210869-RRT. Prix terrain : 140 000 €, hors frais d'agence à la charge de l'acquéreur. Ce terrain vous est proposé, par nos partenaires fonciers, dans le cadre d'un projet de construction avec nous. Les informations sur les risques auxquels ce bien est exposé sont disponibles sur le site Géorisques (www.georisques.gouv.fr). Prix maison : 368 194 €.
Camarsac
TERRAIN ET MAISONTerrain de 818m² située sur la charmante commune de CAMARSAC. Ce terrain n'attend plus que votre projet de construction. . Cette contemporaine orientée nord-sud vous accueille sous un porche ouvrant sur un séjour et sa cuisine semi-ouverte de 60 m², puis un bureau, une suite parentale de 23 m², 2 chambres, sdb, et un garage de 26 m². Pour vous assurer un confort de vie et conformément à la RE2025, nous avons choisi un mode de chauffage par PAC + plancher chauffant, volets roulants électriques. Prix hors peinture, décoration, revêtements de sol dans les chambres, cuisine équipée), frais de notaire, raccordements, dommage ouvrage. . // Réf. : 536-210867-RRT. Prix terrain : 130 000 €, hors frais d'agence à la charge de l'acquéreur. Ce terrain vous est proposé, par nos partenaires fonciers, dans le cadre d'un projet de construction avec nous. Les informations sur les risques auxquels ce bien est exposé sont disponibles sur le site Géorisques (www.georisques.gouv.fr). Prix maison : 276 145 €.
L’actualité immobilière à Cénac
27/11/2023
02/11/2023
30/10/2023
20/10/2023
16/10/2023
16/10/2023