Maison à construire à Cérons (33720)
Images
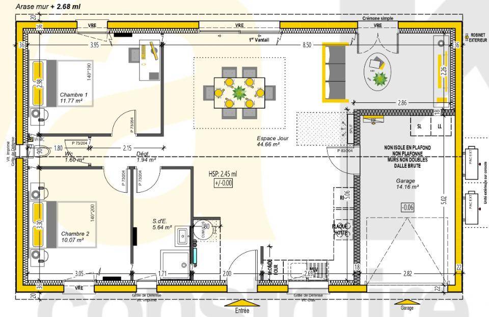
Description
Votre projet ce construction au coeur de Cérons 33720 sur une parcelle de 262 m², idéalement située à proximité de la gare, des commerces et de l'autoroute A62.
La maison, d'une surface habitable de 75,68 m², comprend :
-Une pièce de vie lumineuse 45m² ouverte sur le jardin
-Deux chambres confortables
-Une salle de bain moderne avec WC indépendant
-Un garage de 14,16 m², transformable en pièce habitable si souhaité (chambre supplémentaire, bureau, suite parentale, etc.)
Maison livrée prête à décorer, idéale pour les primo-accédants ou les investisseurs.
Le prix comprend : Le terrain, La construction, Les frais de notaire, Les VRD.
Pour une étude personnalisés contactez Sophia BARRERE - Alpha Constructions Langon
Logement susceptibles de vous intéresser
Nous vous proposons de découvrir aussi cette sélection de logements situés à moins de 10km de Cérons et qui seraient susceptibles de vous intéresser.
Saint-Maixant
TERRAINVENTE : terrain de 1 040 m² à Saint-MaixantQUARTIER RECHERCHÉContactez Hélène DEFFRESSIGNE (tél : (Numéro supprimé))À Saint-Maixant (33490) dans un secteur recherché, venez découvrir ce terrain de 1 040 m². Il donne sur un jardin et bénéficie d’une exposition sud-ouest. Dans un quartier prisé, le terrain est proche des commerces et des écoles. Il y a l’École Primaire François Mauriac à moins de 10 minutes à pied. Niveau transports, on trouve sept gares à moins de 10 minutes en voiture. On trouve un accès à l’autoroute A62 à 4 km. Il y a deux tennis, une boulangerie, un commerce, un supermarché et une épicerie dans les environs.Son prix de vente est de 73 150 €. Prenez contact avec Hélène DEFFRESSIGNE ((Numéro supprimé)) pour obtenir de plus amples informations sur le terrain, sur les démarches à suivre ou sur les modalités de vente. Maisons de la Côte Atlantique Langon est là pour vous accompagner dans tous vos projets immobiliers.
Saint-Maixant
TERRAIN ET MAISONMaison de 4 pièces (80 m²) en vente à Saint-MaixantQUARTIER RECHERCHÉ – MAISON 4 PIÈCES NEUVEContactez Hélène DEFFRESSIGNE (tél : (Numéro supprimé))En vente : Maisons de la Côte Atlantique Langon vous présente, située dans un secteur convoité de Saint-Maixant (33490), cette maison de 4 pièces de plain-pied de 80 m² et de 1 040 m² de terrain.Son intérieur comporte trois chambres, une cuisine et une salle de bains. La maison est neuve.La maison se trouve dans un quartier prisé. Il y a l’École Primaire François Mauriac à moins de 10 minutes à pied. Côté transports, on trouve sept gares à moins de 10 minutes en voiture. Il y a un accès à l’autoroute A62 à 4 km. Il y a deux tennis, une boulangerie, un commerce, un supermarché et une épicerie à proximité.Elle est à vendre pour la somme de 192 248 €.Contactez notre agence (Hélène DEFFRESSIGNE : (Numéro supprimé)) pour toute information sur la maison ou sur les modalités de vente.
Saint-Maixant
TERRAIN ET MAISONVENTE : maison T4 (85 m²) à Saint-MaixantQUARTIER RECHERCHÉ – MAISON 4 PIÈCES NEUVEContactez Hélène DEFFRESSIGNE (tél : (Numéro supprimé))Votre agence Maisons de la Côte Atlantique Langon est heureuse de vous proposer cette maison de 4 pièces de plain-pied de 85 m² et de 1 040 m² de terrain en vente, située dans un quartier convoité de Saint-Maixant (33490). Elle offre trois chambres, une cuisine et une salle de bains.Cette maison est neuve.Cette maison se situe dans un secteur prisé. L’École Primaire François Mauriac est implantée à moins de 10 minutes à pied. Niveau transports en commun, on trouve sept gares à moins de 10 minutes en voiture. L’autoroute A62 est accessible à 4 km. Il y a deux tennis, une boulangerie, un commerce, un supermarché et une épicerie à proximité.Son prix de vente est de 207 200 €.Prenez contact avec notre constructeur (Hélène DEFFRESSIGNE : (Numéro supprimé)) pour obtenir de plus amples informations sur le bien, sur les modalités de vente ou sur les démarches à suivre. Maisons de la Côte Atlantique Langon est là pour vous accompagner dans tous vos projets immobiliers.
Saint-Maixant
TERRAIN ET MAISONVENTE d’une maison T4 (100 m²) à Saint-MaixantQUARTIER RECHERCHÉ – MAISON 4 PIÈCES NEUVEContactez Hélène DEFFRESSIGNE (tél : (Numéro supprimé))À vendre : dans un secteur attractif de Saint-Maixant (33490), votre agence Maisons de la Côte Atlantique Langon est ravie de vous proposer cette maison de 4 pièces de plain-pied de 100 m².Conçue de plain-pied, elle est composée de trois chambres, d’une cuisine et de deux salles de bains. La maison est neuve.Le terrain de la propriété s’étend sur 1 040 m².Cette maison se situe dans un quartier recherché. L’École Primaire François Mauriac se trouve à moins de 10 minutes à pied. Niveau transports en commun, il y a sept gares à moins de 10 minutes en voiture. L’autoroute A62 est accessible à 4 km. On trouve deux tennis, une boulangerie, un commerce, un supermarché et une épicerie dans les environs.Elle est proposée à l’achat pour 212 342 €.Contactez notre agence (DEFFRESSIGNE Hélène : (Numéro supprimé)) pour obtenir de plus amples renseignements sur le bien et sur les modalités de vente. Maisons de la Côte Atlantique Langon est là pour vous accompagner dans toutes vos démarches.
Saint-Maixant
TERRAINVENTE : terrain de 1 084 m² à Saint-MaixantIDÉALEMENT SITUÉÀ Saint-Maixant (33490), grand terrain. Il se trouve dans un quartier attractif. Il y a l’École Primaire François Mauriac à moins de 10 minutes à pied. Côté transports, on trouve sept gares à moins de 10 minutes en voiture. On trouve un accès à l’autoroute A62 à 4 km. Il y a deux tennis, une boulangerie, un commerce, un supermarché et une épicerie à quelques minutes de la propriété.Il est proposé à l’achat pour 69 300 €. Prenez contact avec notre agence (Maryne LAGORCE : (Numéro supprimé)) pour toute information sur ce terrain, sur les démarches à suivre ou sur les modalités de vente. Maisons de la Côte Atlantique Langon est là pour vous accompagner dans tous vos projets immobiliers.
Saint-Maixant
TERRAIN ET MAISONVENTE : maison F4 (84 m²) à Saint-MaixantIDÉALEMENT SITUÉE – MAISON 4 PIÈCES NEUVEÀ vendre : nous vous proposons cette maison de 4 pièces de plain-pied de 84 m² et de 1 084 m² de terrain idéalement située dans Saint-Maixant (33490).Conçue de plain-pied, elle inclut trois chambres, une cuisine et une salle de bains. La maison est neuve.Le bien est situé dans un secteur recherché. L’École Primaire François Mauriac est implantée à moins de 10 minutes à pied. Niveau transports, on trouve sept gares à moins de 10 minutes en voiture. L’autoroute A62 est accessible à 4 km. Il y a deux tennis, une boulangerie, un commerce, un supermarché et une épicerie à quelques minutes.Son prix de vente est de 191 900 €.N’hésitez pas à prendre contact avec notre agence (Maryne LAGORCE : (Numéro supprimé)) pour obtenir de plus amples informations sur la maison, sur les démarches à suivre ou sur les modalités de vente. Concrétisez vos projets immobiliers avec Maisons de la Côte Atlantique Langon.
Saint-Maixant
TERRAIN ET MAISONMaison T4 (80 m²) en vente à Saint-MaixantIDÉALEMENT SITUÉE – MAISON 4 PIÈCES NEUVEÀ vendre : Maisons de la Côte Atlantique Langon vous propose cette maison de 4 pièces de plain-pied de 80 m², idéalement située dans Saint-Maixant (33490). Elle se divise en trois chambres, une cuisine et une salle de bains.Le terrain de la propriété s’étend sur 1 084 m².La maison est neuve.Cette maison se situe dans un secteur convoité. Il y a l’École Primaire François Mauriac à moins de 10 minutes à pied. Niveau transports, on trouve sept gares à moins de 10 minutes en voiture. On trouve un accès à l’autoroute A62 à 4 km. Il y a deux tennis, une boulangerie, un commerce, un supermarché et une épicerie à quelques minutes à peine.Elle est à vendre pour la somme de 188 900 €.Prenez contact avec Maryne LAGORCE ((Numéro supprimé)) pour obtenir de plus amples renseignements sur le bien, sur les démarches à suivre ou sur les modalités de vente. Concrétisez vos projets immobiliers avec Maisons de la Côte Atlantique Langon.
Saint-Maixant
TERRAIN ET MAISONMaison T3 (49 m²) en vente à Saint-MaixantIDÉALEMENT SITUÉE – MAISON 3 PIÈCES NEUVENous sommes ravis de vous présenter cette maison de 3 pièces de plain-pied de 49 m² et de 1 084 m² de terrain idéalement située dans Saint-Maixant (33490). Son intérieur compte trois chambres, une cuisine et deux salles de bains.Cette maison est neuve.Ce bien se situe dans un quartier prisé. On trouve l’École Primaire François Mauriac à moins de 10 minutes à pied. Côté transports, il y a sept gares à moins de 10 minutes en voiture. L’autoroute A62 est accessible à 4 km. On trouve deux tennis, une boulangerie, un commerce, un supermarché et une épicerie dans les environs.Son prix de vente est de 208 900 €.Prenez contact avec notre agence (LAGORCE Maryne : (Numéro supprimé)) pour toute information sur la maison.
Saint-Maixant
TERRAIN ET MAISONSaint-Maixant : maison F5 (90 m²) à vendreIDÉALEMENT SITUÉE – MAISON 5 PIÈCES NEUVEEn vente : Maisons de la Côte Atlantique Langon vous présente cette maison de 5 pièces de plain-pied de 90 m² et de 1 084 m² de terrain, idéalement située dans Saint-Maixant (33490).Elle offre trois chambres, une cuisine et une salle de bains. La maison est neuve.Cette maison est située dans un secteur convoité. L’École Primaire François Mauriac est implantée à moins de 10 minutes à pied. Niveau transports, on trouve sept gares à moins de 10 minutes en voiture. L’autoroute A62 est accessible à 4 km. Il y a deux tennis, une boulangerie, un commerce, un supermarché et une épicerie à quelques minutes du logement.Son prix de vente est de 215 900 €.Prenez contact avec notre agence (Maryne LAGORCE : (Numéro supprimé)) pour toute information sur la propriété, sur les démarches à suivre ou sur les modalités de vente.
L’actualité immobilière à Cérons
27/11/2023
02/11/2023
30/10/2023
20/10/2023
16/10/2023
16/10/2023