Maison à construire à Gradignan (33170)
Images
Description
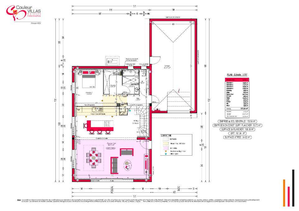
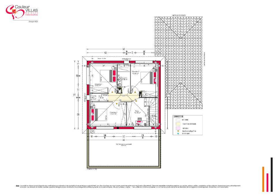
Découvrez cette belle maison contemporaine à étage partiel de 130 m², implantée sur un vaste terrain de 1800 m² situé dans un quartier résidentiel prisé de Gradignan.
Cette maison familiale offre 4 chambres, dont une suite parentale au rez-de-chaussée, ainsi que 2 salles de bain modernes. L'espace de vie spacieux et lumineux, ouvert sur le jardin, allie confort et élégance. Conçue selon la norme RE2020, elle garantit d'excellentes performances énergétiques et un confort optimal en toutes saisons.
Le grand terrain plat, en partie viabilisé, permet de multiples aménagements extérieurs : piscine, terrasse, potager ou aire de jeux.
Logement susceptibles de vous intéresser
Nous vous proposons de découvrir aussi cette sélection de logements situés à moins de 10km de Gradignan et qui seraient susceptibles de vous intéresser.
Gradignan
TERRAIN ET MAISONjoli terrain de 615 m² sur la commune de Gradignan dans la quartier ornano. Proche des écoles, des commerces, commodité et des transports en communs. L'emplacement est idéal pour réaliser votre projet de construction. . Bien pensée et fonctionnelle. Avec son architecture en L et de plain-pied, la maison CARNEY vous séduira par sa cuisine ouverte sur un bel espace de vie lumineux et ses trois chambresPour vous assurer un confort de vie et conformèment à la RE2025, nous avons chosi un mode de chauffage par PAC + plancher chauffant, volets roulants électriques, Prix hors fourniture et pose : des appareils sanitaires (sauf système de chauffage et d'eau chaude sanitaire), du carrelage et de la faïence, des revêtements de sol dans les chambres. Hors décoration et aménagement intérieur et peinture. Hors raccordements, frais de notaire et dommage ouvrage. // Réf. : 711-210887-MAV. Prix terrain : 210 000 €, hors frais d'agence à la charge de l'acquéreur. Ce terrain vous est proposé, par nos partenaires fonciers, dans le cadre d'un projet de construction avec nous. Les informations sur les risques auxquels ce bien est exposé sont disponibles sur le site Géorisques (www.georisques.gouv.fr). Prix maison : 113 448 €.
Gradignan
TERRAIN ET MAISONjoli terrain de 615 m² sur la commune de Gradignan dans la quartier ornano. Proche des écoles, des commerces, commodité et des transports en communs. L'emplacement est idéal pour réaliser votre projet de construction. . Une maison moderne et fonctionnelle, parfaite pour toute la famille ! Avec son design optimisé et ses espaces bien pensés, cette maison offre un cadre de vie agréable et confortable. Au rez-de-chaussée, une spacieuse pièce de vie ouverte baigne de lumière, regroupant le salon, la salle à manger et la cuisine pour une ambiance conviviale. Un espace arrière-cuisine facilite l’organisation, tandis qu’un WC indépendant et une salle d’eau moderne ajoutent un confort supplémentaire. Une chambre en rez-de-chaussée permet un aménagement flexible selon vos besoins. À l’étage, trois chambres bien réparties assurent à chacun un espace personnel agréable. Une grande salle de bain fonctionnelle et un dégagement bien conçu viennent compléter cet étage pour une vie quotidienne fluide et organisée. Un équilibre parfait entre modernité, confort et optimisation des espaces !. ! Pour vous assurer un confort de vie optimal et en conformité avec la RE2025, nous avons opté pour un système de chauffage par pompe à chaleur (PAC) avec plancher chauffant au rez-de-chaussée et radiateurs à l’étage. Le logement est également équipé de volets roulants électriques. Prix hors fourniture et pose : des appareils sanitaires (sauf système de chauffage et d'eau chaude sanitaire), du carrelage et de la faïence, des revêtements de sol dans les chambres. Hors décoration et aménagement intérieur et peinture. Hors raccordements, frais de notaire et dommage ouvrage. // Réf. : 1411-210887-MAV. Prix terrain : 210 000 €, hors frais d'agence à la charge de l'acquéreur. Ce terrain vous est proposé, par nos partenaires fonciers, dans le cadre d'un projet de construction avec nous. Les informations sur les risques auxquels ce bien est exposé sont disponibles sur le site Géorisques (www.georisques.gouv.fr). Prix maison : 165 222 €.
Gradignan
TERRAIN ET MAISONjoli terrain de 615 m² sur la commune de Gradignan dans la quartier ornano. Proche des écoles, des commerces, commodité et des transports en communs. L'emplacement est idéal pour réaliser votre projet de construction. . Contemporaine et confortable, le modèle ASINARA se distingue par son porche en façade avant et ses enduits bi-ton qui lui apportent un style très actuel. Cette maison de plain-pied vous propose une très belle pièce de vie très lumineuse grâce à ses nombreuses ouvertures. La cuisine est très fonctionnelle puisqu’à la fois ouverte sur le séjour et accolée au cellier. L’espace nuit est composé de trois chambres avec tous les rangements nécessaires ainsi que d’une salle de bains et des wc séparés. Le plus de cette maison est sans nul doute son garage intégré. Ses jeux d'enduits personnalisables sauront vous séduire. Pour vous assurer un confort de vie et conformément à la RE2025, nous avons choisi un mode de chauffage par PAC + plancher chauffant, volets roulants électriques. Prix hors fourniture et pose : des appareils sanitaires (sauf système de chauffage et d'eau chaude sanitaire), du carrelage et de la faïence, des revêtements de sol dans les chambres. Hors décoration et aménagement intérieur et peinture. Hors raccordements, frais de notaire et dommage ouvrage. // Réf. : 594-210887-MAV. Prix terrain : 210 000 €, hors frais d'agence à la charge de l'acquéreur. Ce terrain vous est proposé, par nos partenaires fonciers, dans le cadre d'un projet de construction avec nous. Les informations sur les risques auxquels ce bien est exposé sont disponibles sur le site Géorisques (www.georisques.gouv.fr). Prix maison : 120 901 €.
Gradignan
TERRAINjoli terrain de 615 m² sur la commune de Gradignan dans la quartier ornano. Proche des écoles, des commerces, commodité et des transports en communs. L'emplacement est idéal pour réaliser votre projet de construction. . // Réf. : T210887. Prix terrain : 210 000 €, hors frais d'agence et de notaire à la charge de l'acquéreur. Ce terrain vous est proposé, par nos partenaires fonciers, dans le cadre d'un projet de construction avec nous. Les informations sur les risques auxquels ce bien est exposé sont disponibles sur le site Géorisques (www.georisques.gouv.fr).
Villenave-d'Ornon
TERRAIN🏡 Terrain à bâtir 448 m² – Villenave-d’OrnonÀ saisir ! Ce terrain plat situé dans un secteur calme et recherché est une belle opportunité pour concrétiser votre projet de maison.Pourquoi ? Car avec son emplacement vous profitez d’un cadre de vie paisible et pratique, avec toutes les commodités à proximité :🛍️ Commerces, écoles et services accessibles à pied🚍 Bus 5 et 89 à proximité🚉 Gare de Villenave-d’Ornon à 10 min à pied🚋 Tram C à moins de 5 min🏠 De plus, ce terrain est prêt à accueillir le projet de votre choix, il permet la construction en R+1 ou en plain-pied (30 % d’emprise au sol).Sa forme et son exposition offrent un cadre parfait pour une maison moderne et lumineuse dans un environnement verdoyant !🔧 Atouts techniques✅ Terrain plat et clôturé✅ Étude de sol G1 déjà réalisée✅ Réseaux en bordure (eau, électricité, tout-à-l’égout)✅ Deux accès possibles pour plus de flexibilité d’aménagement💡 En résumé : un terrain de qualité, idéalement situé, prêt à construire et offrant de multiples possibilités.Vous souhaitez vous projeter, obtenir une esquisse de votre projet sur ce foncier? Prenez contact avec votre chargé de projet So’9 Habitat :Hugo BAINVEL (Numéro supprimé)
Mérignac
TERRAIN ET MAISONMERIGNAC ARLACDans un environnement calme et recherché de Mérignac, découvrez cette maison contemporaine de 140 m² habitables à l’architecture élégante. 4 chambres, et 2 SDB ainsi qu’une terrasse pour profiter de l’extérieur.Avec So’9 Habitat, bénéficiez d’un accompagnement sur mesure pour personnaliser votre maison selon vos envies.Plusieurs implantations possibles sur ce terrain rare d’environ 700m² et bien situé !Performance énergétique optimisée (RT 2020) pour des économies durablesGaranties décennales et biennales pour une sérénité totaleMatériaux haut de gamme et finitions soignéesTransports et commerces à proximité immédiate.Pour toutes informations, contactez moi au: (Numéro supprimé)Florent DELMOND Chargé de projets
Mérignac
TERRAINMERIGNAC CAPEYRONParcelle de terrain d’une superficie d’environ 2 000 m², située dans une zone à vocation commerciale et/ou de bureaux.Le terrain est à viabiliser et comprend deux hangars existants en fond de parcelle, à détruire dans le cadre d’un futur aménagement.Topographie plane et bonne accessibilité depuis la voirie publique,La surface du terrain offre une grande liberté de conception pour l’implantation d’un bâtiment à usage professionnel, tout en conservant des zones de manoeuvre, de stationnement ou d’espaces verts.
Pessac
TERRAINPESSAC BOURGCe terrain de 600 m² bénéficie d’un emplacement privilégié, à proximité immédiate des bus, des commerces, des écoles et services essentiels et à seulement quelques minutes du centre-ville.Un cadre de vie pratique et agréable, parfait pour un projet familial ou une résidence principale contemporaine.Avec So’9 Habitat, bénéficiez d’un accompagnement sur mesure pour personnaliser votre maison selon vos envies.contactez dès à présent votre chargé de projets:Florent DELMOND(Numéro supprimé)
Villenave-d'Ornon
TERRAIN ET MAISON🏡 Projet de maison neuve – 130 m² sur terrain de 448 m² à Villenave-d’OrnonNous vous proposons cet exemple de projet sur un terrain plat idéalement situé dans un secteur calme et recherché.🌟 Un emplacement de choixProfitez d’un cadre de vie pratique et agréable, proche de tout :🛍️ Commerces, écoles et services à pied🚍 Bus 5 et 89 à proximité immédiate🚉 Gare de Villenave-d’Ornon à 10 min à pied🚋 Tram C à moins de 5 min🏠 Un projet moderne et fonctionnelMaison contemporaine de 130 m² habitables, comprenant une grande pièce de vie lumineuse ouverte sur le jardin, 3 chambres spacieuses dont une suite parentale.Son architecture élégante et ses volumes bien pensés offrent un confort optimal, tout en valorisant le terrain et la luminosité naturelle.Cette maison est un exemple de conception ! Projet 100% personnalisable selon vos besoins, vos goûts et votre mode de vie.Chez So’9 habitat on vous accompagne de la première esquisse jusqu’à la livraison de votre maison, pour un projet clé en main et serein.Ce qui ne bouge jamais :💡 Confort et technologie : domotique intégrée (chauffage, volets, sécurité connectée)🌿 Performance énergétique répondant à la norme RE2020🔧 Matériaux modernes et durables, zéro travaux à prévoir🛡️ Garanties constructeur : décennale, dommage ouvrage, parfait achèvement🏗️ Étude de sol G2 réalisée pour des fondations optimales et sécurisantes En résumé : pour un emplacement idéal, une maison moderne et économe, ainsi qu’un accompagnement sur mesure, prenez contact avec votre chargé de projet So’9 :Hugo BAINVEL (Numéro supprimé)
L’actualité immobilière à Gradignan
27/11/2023
02/11/2023
30/10/2023
20/10/2023
16/10/2023
16/10/2023