Maison neuve à Gujan-Mestras (33470)
Images
Description
Maison de 4 pièces (120 m²) en vente à Gujan-Mestras - Quartier La Hume
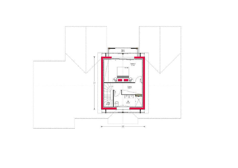
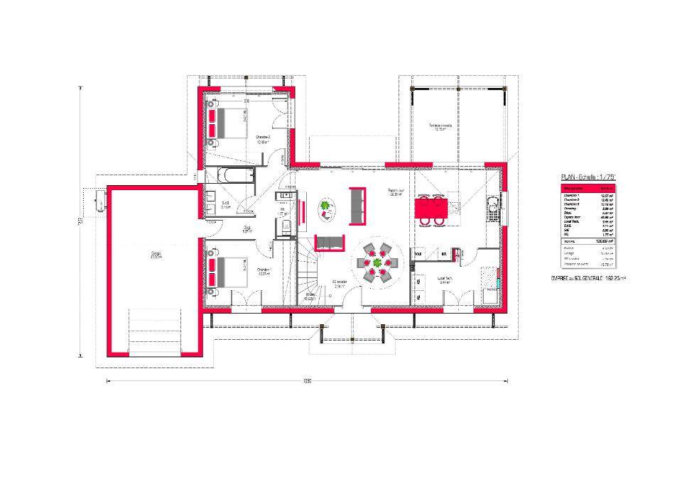
Nous sommes ravis de vous présenter cette maison de 4 pièces d'une surface totale de 120 m², implantée sur un terrain idéalement situé à La Hume, à proximité du centre-ville, des commodités et de la plage.
De style arcachonnais avec un étage partiel, elle se compose de trois chambres, de deux salles d'eau, d'une belle pièce de vie lumineuse ouverte sur le jardin, ainsi que d'un garage accolé.
Son architecture mêle charme du Bassin et modernité, pour un confort de vie au quotidien.
Cette maison prête à construire vous attend dans un cadre de vie recherché, entre authenticité et douceur de vivre.
Elle est à vendre pour la somme de 632 574 €. Frais de notaire en sus.
N'hésitez pas à prendre contact avec Marine LESCOMÈRE (tel : (Numéro supprimé)) pour obtenir plus d'informations sur cette maison, les démarches à suivre ou les modalités de vente.
Couleurs Villas La Teste-de-Buch vous accompagne à toutes les étapes de votre projet immobilier.
Logement susceptibles de vous intéresser
Nous vous proposons de découvrir aussi cette sélection de logements situés à moins de 10km de Gujan-Mestras et qui seraient susceptibles de vous intéresser.
Gujan-Mestras
TERRAIN33470 – GUJAN MESTRAS – TERRAIN DE 920 M² environ viabilisé avec maison de plain pied, 77 m² à déconstruire. Secteur calme et recherché.Pour visiter et vous accompagner dans votre projet, contactez Nathalie LEROY, au (Numéro supprimé) ou, par courriel à (Email supprimé) l’article L.561.5 du Code Monétaire et Financier, pour l’organisation de la visite, la présentation d’une pièce d’identité vous sera demandée. Cette présente annonce a été rédigée sous la responsabilité éditoriale de Nathalie LEROY agissant sous le statut d’agent commercial immatriculé au RSAC BORDEAUX 494 261 175 auprès de SAS PROPRIETES PRIVEES, au capital de 44 920 euros, ZAC LE CHÊNE FERRÉ – 44 ALLÉE DES CINQ CONTINENTS 44120 VERTOU; SIRET 487 624 777 00040, RCS Nantes. Carte Professionnelle Transactions sur immeubles et fonds de commerce (T) et Gestion immobilière (G) n°CPI 4401 2016 000 010 388 délivrée par la CCI Nantes – Saint Nazaire. Compte séquestre n(Numéro supprimé)67 BPA SAINT-SEBASTIEN-SUR-LOIRE (44230). Garantie GALIAN-SMABTP – 89 rue de la Boétie, 75008 Paris – n°28137 J pour 2 000 000 euros pour T et 120 000 euros pour G. Assurance responsabilité civile professionnelle par GALIAN-SMABTP n° de police 28137.Mandat réf : 426285 – Le professionnel garantit et sécurise votre projet immobilier. (3.99 % honoraires TTC à la charge de l’acquéreur.) Nathalie LEROY (EI) Agent Commercial – Numéro RSAC : BORDEAUX 494 261 175 – .Les informations sur les risques auxquels ce bien est exposé sont disponibles sur le site Géorisques : www. georisques. gouv. fr
Le Teich
TERRAINTerrain de 900 m² en vente au Teich Contactez Javier TERRON ((Numéro supprimé)) pour toute question sur ce terrain ou sur les modalités de vente.QUARTIER RECHERCHÉÀ vendre à 5 km de la côte atlantique au Teich (33470), grand terrain. Réalisez-y votre résidence principale ou secondaire. Dans un quartier prisé, ce terrain dans un secteur recherché est proche des commerces et des écoles. L’École Primaire Delta se trouve à moins de 10 minutes à pied, tout comme une crèche. Niveau transports en commun, il y a la gare Le Teich dans les environs. L’autoroute A660 est accessible à 3 km. On trouve des commerces, une boulangerie, un supermarché, trois boucheries-charcuteries et une poissonnerie à quelques minutes du bien.Il est à vendre pour la somme de 240 000 € Hors frais de notaire, et de raccordements.
Le Teich
TERRAIN ET MAISONLe Teich : maison de 4 pièces (115 m²) à vendreContactez Javier TERRON ((Numéro supprimé)) pour toute question sur la maison, sur les modalités de vente ou sur les démarches à suivre. Villas Melrose Andernos-les-Bains est là pour vous accompagner dans tous vos projets immobiliers.QUARTIER RECHERCHÉ – MAISON 4 PIÈCES NEUVEEn vente : située sur le littoral atlantique, nous vous proposons cette maison de 4 pièces de plain-pied de 115 m² et de 900 m² de terrain construite dans un quartier attractif du Teich (33470).Conçue de plain-pied, elle est composée de trois chambres, d’une cuisine et de deux salles de bains. La maison est neuve.Cette maison se trouve dans un secteur recherché. L’École Primaire Delta est implantée à moins de 10 minutes à pied, tout comme une crèche. Niveau transports, on trouve la gare Le Teich juste à côté. On trouve un accès à l’autoroute A660 à 3 km. Il y a des commerces, une boulangerie, un supermarché, un bureau de poste et une poissonnerie à proximité du bien.Elle est proposée à l’achat pour 472 320 €. Hors frais de notaire, et de raccordements.
Le Teich
TERRAIN ET MAISONLe Teich : maison F4 (125 m²) en ventePrenez contact avec notre agence (Javier TERRON : (Numéro supprimé)) pour obtenir de plus amples informations sur la maison ou sur les modalités de vente.QUARTIER RECHERCHÉ – MAISON 4 PIÈCES NEUVESur le littoral atlantique, ayez le coup de coeur pour cette maison de 4 pièces de plain-pied de 125 m² dans un secteur attractif du Teich (33470).Son intérieur inclut trois chambres, une cuisine et deux salles de bains. La maison est neuve.Le terrain de la propriété est de 900 m².La maison se trouve dans un quartier prisé. L’École Primaire Delta est implantée à moins de 10 minutes à pied, tout comme une crèche. Côté transports, on trouve la gare Le Teich à proximité. L’autoroute A660 est accessible à 3 km. Il y a des commerces, une boulangerie, un supermarché, une poissonnerie et un bureau de poste à quelques minutes du bien.Elle est à vendre pour la somme de 490 560 € Hors frais de notaire, et de raccordements
Le Teich
TERRAIN ET MAISONVENTE d’une maison F6 (169 m²) au TeichContactez Javier TERRON ((Numéro supprimé)) pour toute question sur la maison ou sur les modalités de vente. Concrétisez vos projets immobiliers avec Villas Melrose Andernos-les-Bains.QUARTIER RECHERCHÉ – MAISON 6 PIÈCES NEUVEÀ 5 km de la côte atlantique, à vendre située dans un quartier prisé du Teich (33470), ayez le coup de coeur pour cette maison de 6 pièces de plain-pied de 169 m². Conçue de plain-pied, elle se divise en quatre chambres, une cuisine et deux salles de bains.Le terrain de la maison s’étend sur 900 m².Cette maison est neuve.La propriété se situe dans un secteur convoité. L’École Primaire Delta est implantée à moins de 10 minutes à pied, tout comme une structure d’accueil pour la petite enfance. Niveau transports en commun, on trouve la gare Le Teich à quelques pas du bien. On trouve un accès à l’autoroute A660 à 3 km. Il y a des commerces, une boulangerie, un supermarché, un bureau de poste et une poissonnerie à quelques minutes de la maison.Elle est proposée à l’achat pour 578 430 € .Hors frais de notaire, et de raccordements.
Gujan-Mestras
TERRAIN ET MAISONVENTE d’une maison de 4 pièces (90 m²) à Gujan-MestrasIDÉALEMENT SITUÉE – MAISON 4 PIÈCES NEUVEÀ vendre : localisée sur le littoral atlantique, votre agence Maisons de la Côte Atlantique Biganos est heureuse de vous proposer cette maison de 4 pièces de plain-pied de 90 m², idéalement située dans Gujan-Mestras (33470). Elle inclut trois chambres, une cuisine et une salle de bains.Le terrain du bien est de 560 m².La maison est neuve.La maison se situe dans un quartier convoité. On trouve des écoles maternelles et élémentaires à moins de 10 minutes à pied. Niveau transports en commun, il y a la gare Gujan-Mestras dans les environs. L’autoroute A660 est accessible à 5 km. On trouve quatre boulangeries, des commerces, un supermarché, un bureau de poste et trois poissonneries à quelques minutes à peine. Enfin, le marché Place de la Gare anime le quartier tous les mercredis matin.Elle est proposée à l’achat pour 459 000 €.N’hésitez pas à prendre contact avec Laurent BOLZER ((Numéro supprimé)) pour plus de renseignements sur la propriété ou sur les modalités de vente. Maisons de la Côte Atlantique Biganos vous accompagne à toutes les étapes de votre projet et dans toutes vos démarches.
Le Teich
TERRAINVENTE d’un terrain entièrement viabilisé de 646 m² au TeichEn vente sur la côte atlantique au Teich (33470), grand terrain. Réalisez-y la maison de vos rêves. Il y a l’École Primaire Delta à moins de 10 minutes à pied et une crèche. Niveau transports, on trouve la gare Le Teich dans les alentours. L’autoroute A660 est accessible à 3 km. Il y a des commerces, une boulangerie, un supermarché, un bureau de poste et une poissonnerie à proximité.Il est proposé à l’achat pour 250 000 €. Contactez notre agence (Laurent CHAMPEIL : (Numéro supprimé)) pour tout renseignement sur ce terrain ou sur les modalités de vente.
Le Teich
TERRAIN ET MAISONVENTE d’une maison de 4 pièces (80 m²) au TeichMAISON 4 PIÈCES NEUVEEn vente à 5 km de la côte atlantique, nous vous proposons cette maison de 4 pièces de plain-pied de 80 m² et de 646 m² de terrain au Teich (33470). Elle propose trois chambres, une cuisine et une salle de bains.La maison est neuve.Il y a l’École Primaire Delta à moins de 10 minutes à pied et une structure d’accueil pour la petite enfance. Niveau transports, on trouve la gare Le Teich dans les alentours. L’autoroute A660 est accessible à 3 km. Il y a des commerces, une boulangerie, un supermarché, un bureau de poste et trois boucheries-charcuteries à proximité.Son prix de vente est de 389 000 €.Contactez Laurent CHAMPEIL ((Numéro supprimé)) pour toute question sur cette maison, sur les modalités de vente ou sur les démarches à suivre. Batisoft La Teste-de-Buch est là pour vous accompagner dans tous vos projets immobiliers.
Le Teich
TERRAIN ET MAISONVENTE d’une maison de 4 pièces (145 m²) au TeichMAISON 4 PIÈCES NEUVEEn vente : localisée à 5 km de l’océan Atlantique, votre agence Batisoft La Teste-de-Buch est heureuse de vous présenter cette maison de 4 pièces de plain-pied de 145 m² et de 646 m² de terrain au Teich (33470).Elle comporte trois chambres, une cuisine et une salle de bains. La maison est neuve.L’École Primaire Delta est implantée à moins de 10 minutes à pied, tout comme une crèche. Niveau transports, on trouve la gare Le Teich dans un rayon de 1 km. Il y a un accès à l’autoroute A660 à 3 km. Il y a des commerces, une boulangerie, un supermarché, un bureau de poste et trois boucheries-charcuteries à quelques minutes.Son prix de vente est de 554 000 €.N’hésitez pas à prendre contact avec notre constructeur (Laurent CHAMPEIL : (Numéro supprimé)) pour toute question sur la maison ou sur les démarches à suivre. Batisoft La Teste-de-Buch vous accompagne dans tous vos projets immobiliers et à toutes les étapes de l’achat.
L’actualité immobilière à Gujan-Mestras
27/11/2023
02/11/2023
30/10/2023
20/10/2023
16/10/2023
16/10/2023