Maison neuve à Lacanau Océan (33680)
Images
Description
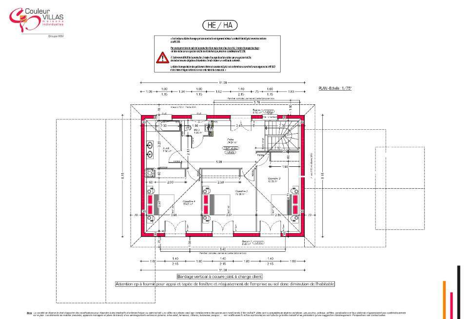
Situé sur les hauteurs de Lacanau Océan, dans un cadre résidentiel d'exception, ce terrain de 800 m² offre une opportunité rare au coeur d'un environnement recherché, calme et verdoyant.
Le projet prévoit une maison de 216 m² habitables à l'architecture typique BOIS. Répartie sur deux niveaux, elle comprend 5 chambres ddont 3 salles de bain, ainsi qu'un vaste espace de vie lumineux avec un plafond rampant traditionnel ouvert sur l'extérieur et la piscine.
Le tout est agrémenté de balcon et terrasse pour vous offrir un véritable confort de vie extérieur.
Un projet d'exception, au coeur d'un secteur préservé et recherché de Lacanau Océan
Contactez Alexis FAUCHON au (Numéro supprimé) pour plus d'informations.
Logement susceptibles de vous intéresser
Nous vous proposons de découvrir aussi cette sélection de logements situés à moins de 10km de Lacanau et qui seraient susceptibles de vous intéresser.
Lacanau
TERRAIN ET MAISONSur la commune de Lacanau, dans un quartier résidentiel, calme et recherché, ce terrain de 680 m² bénéficie d’un emplacement rare, bonne exposition, et à l’écart de toute nuisance sonore ou visuelle.La parcelle est viabilisée et permet de réaliser une belle maison de plain-pied ou à étage, dans un environnement serein, préservé et sans vis-à-vis.Présentation de notre modèle de maison personnalisable de 127 m².Une véritable opportunité pour construire dans l’un des secteurs les plus qualitatifs.Contactez Fabien UTEZA au (Numéro supprimé) pour plus d’informations.
Lacanau
TERRAIN ET MAISONUne opportunité rare au coeur d’un environnement recherché, calme et verdoyant.Le projet prévoit une superbe maison de 260 m² habitables à l’architecture typée basque, élégante et intemporelle. Répartie sur deux niveaux, elle comprend 5 chambres disposant chacune de leur salle de bain, ainsi qu’un vaste espace de vie lumineux ouvert sur l’extérieur et la piscine.Un sous-sol aménageable complète l’ensemble, idéal pour une cave à vin ou une zone de stockage. À l’extérieur, un garage indépendant et de belles terrasses couvertes renforcent le caractère exclusif de cette propriété haut de gamme.Un projet d’exception, au coeur d’un secteur préservé et recherché de LACANAU OCEAN.Contactez Alexis FAUCHON au (Numéro supprimé) pour plus d’informations.
Lacanau
TERRAIN ET MAISONSitué sur les hauteurs de Lacanau Océan, dans un cadre résidentiel d’exception, ce terrain de 800 m² offre une opportunité rare au coeur d’un environnement recherché, calme et verdoyant.Le projet prévoit une maison de 216 m² habitables à l’architecture typique BOIS. Répartie sur deux niveaux, elle comprend 5 chambres ddont 3 salles de bain, ainsi qu’un vaste espace de vie lumineux avec un plafond rampant traditionnel ouvert sur l’extérieur et la piscine.Le tout est agrémenté de balcon et terrasse pour vous offrir un véritable confort de vie extérieur.Un projet d’exception, au coeur d’un secteur préservé et recherché de Lacanau OcéanContactez Alexis FAUCHON au (Numéro supprimé) pour plus d’informations.
Lacanau
TERRAIN ET MAISONSituée dans un quartier prisé de LACANAU OCEAN, sur une parcelle de 550 m², cette maison de plain-pied incarne parfaitement le charme traditionnel de l’arcachonaise.D’une superficie de 140 m², elle offre une distribution fonctionnelle avec quatre chambres, dont deux suites parentales, ainsi qu’un vaste espace de vie lumineux tourné vers l’extérieur. Un garage d’environ 30 m² complète l’ensemble, offrant un stationnement confortable.Son architecture reprend les codes emblématiques du style arcachonnais : petits bois dans les menuiseries, consoles, ornementations bois, briquettes d’angle et parements pierre. L’alliance du charme local et du confort moderne confère à cette maison une élégance intemporelle dans un cadre verdoyant et recherché.Contactez Alexis FAUCHON au (Numéro supprimé) pour plus d’informations.
Lacanau
TERRAINÀ vendre à Lacanau, superbe terrain constructible viabilisé de 350 m², idéalement situé dans un environnement calme et verdoyant, à proximité des commerces, du lac et des plages. Terrain plat, prêt à accueillir votre projet de maison. Opportunité rare sur le secteur, à saisir rapidement !. // Réf. : T210276. Prix terrain : 245 000 €, hors frais d'agence et de notaire à la charge de l'acquéreur. Ce terrain vous est proposé, par nos partenaires fonciers, dans le cadre d'un projet de construction avec nous. Les informations sur les risques auxquels ce bien est exposé sont disponibles sur le site Géorisques (www.georisques.gouv.fr).
Lacanau
TERRAIN ET MAISONÀ vendre à Lacanau, superbe terrain constructible viabilisé de 350 m², idéalement situé dans un environnement calme et verdoyant, à proximité des commerces, du lac et des plages. Terrain plat, prêt à accueillir votre projet de maison. Opportunité rare sur le secteur, à saisir rapidement !. Une maison spacieuse et fonctionnelle, idéale pour toute la famille ! Avec son design moderne et son agencement optimisé, cette maison offre un cadre de vie agréable et lumineux, parfait pour répondre aux besoins de chacun. Au rez-de-chaussée, vous profitez d’un vaste espace de vie ouvert, alliant salon, salle à manger et cuisine dans une atmosphère chaleureuse et conviviale. Un cellier pratique facilite l’organisation et le rangement du quotidien. La suite parentale avec dressing et salle d’eau privative garantit un confort optimal aux parents, offrant un véritable espace d’intimité. À l’étage, trois belles chambres bien réparties permettent à toute la famille de disposer de son propre cocon. Une grande salle de bain et un WC indépendant complètent cet étage pour plus de praticité. Une maison élégante, confortable et pensée pour s’adapter aux modes de vie modernes !. Pour vous assurer un confort de vie optimal et en conformité avec la RE2025, nous avons opté pour un système de chauffage par pompe à chaleur (PAC) avec plancher chauffant au rez-de-chaussée et radiateurs à l’étage. Le logement est également équipé de volets roulants électriques. Prix hors fourniture et pose : des appareils sanitaires (sauf système de chauffage et d'eau chaude sanitaire), du carrelage et de la faïence, des revêtements de sol dans les chambres. Hors décoration et aménagement intérieur et peinture. Hors raccordements, frais de notaire et dommage ouvrage. // Réf. : 1565-210276-JEW. Prix terrain : 245 000 €, hors frais d'agence à la charge de l'acquéreur. Ce terrain vous est proposé, par nos partenaires fonciers, dans le cadre d'un projet de construction avec nous. Les informations sur les risques auxquels ce bien est exposé sont disponibles sur le site Géorisques (www.georisques.gouv.fr). Prix maison : 171 689 €.
Lacanau
TERRAIN ET MAISONÀ vendre à Lacanau, superbe terrain constructible viabilisé de 350 m², idéalement situé dans un environnement calme et verdoyant, à proximité des commerces, du lac et des plages. Terrain plat, prêt à accueillir votre projet de maison. Opportunité rare sur le secteur, à saisir rapidement !. Maison rectangulaire de plain-pied de plus de 100 m² habitables qui vous séduira par son espace de vie traversant baigné de lumière grâce à ses ouvertures, un cellier et un garage accessible de la cuisine ouverte. Pour l’espace nuit, 4 chambres, une salle de bains avec douche et baignoire, un wc séparé. Pour vous assurer un confort de vie et conformément à la RE2025, nous avons choisi un mode de chauffage par PAC + plancher chauffant, volets roulants électriques. Prix hors fourniture et pose : des appareils sanitaires (sauf système de chauffage et d'eau chaude sanitaire), du carrelage et de la faïence, des revêtements de sol dans les chambres. Hors décoration et aménagement intérieur et peinture. Hors raccordements, frais de notaire et dommage ouvrage. // Réf. : 1451-210276-JEW. Prix terrain : 245 000 €, hors frais d'agence à la charge de l'acquéreur. Ce terrain vous est proposé, par nos partenaires fonciers, dans le cadre d'un projet de construction avec nous. Les informations sur les risques auxquels ce bien est exposé sont disponibles sur le site Géorisques (www.georisques.gouv.fr). Prix maison : 135 475 €.
Lacanau
TERRAIN ET MAISONÀ vendre à Lacanau, superbe terrain constructible viabilisé de 350 m², idéalement situé dans un environnement calme et verdoyant, à proximité des commerces, du lac et des plages. Terrain plat, prêt à accueillir votre projet de maison. Opportunité rare sur le secteur, à saisir rapidement !. Devenez Propriétaire de votre Maison Evolutive avec EVOLIA . Bienvenue dans l'ère de la maison évolutive avec EVOLIÂ. Spécialement conçue pour s'adapter à chaque étape de votre vie, la maison EVOLIÂ vous offre une flexibilité inégalée et une transformation facile pour répondre à vos besoins changeants. Que vous soyez une jeune famille, un couple ou une personne seule, EVOLIÂ évolue avec vous. Agrandissez, réduisez ou modifiez vos espaces de vie au gré de vos besoins et de vos envies. Ne laissez plus vos besoins en logement vous limiter. Avec EVOLIÂ, votre maison s’adapte à vous, et non l’inverse. Contactez nos experts conseillers en construction dès aujourd’hui pour découvrir comment EVOLIÂ peut devenir la maison de vos rêves. Prix hors fourniture et pose : des appareils sanitaires (sauf système de chauffage et d'eau chaude sanitaire), du carrelage, de la faïence, de la cuisine aménagée, des revêtements de sol dans les chambres. Hors décoration et aménagement intérieur et peinture. Hors raccordements, frais de notaire et dommage ouvrage. // Réf. : 2461-210276-JEW. Prix terrain : 245 000 €, hors frais d'agence à la charge de l'acquéreur. Ce terrain vous est proposé, par nos partenaires fonciers, dans le cadre d'un projet de construction avec nous. Les informations sur les risques auxquels ce bien est exposé sont disponibles sur le site Géorisques (www.georisques.gouv.fr). Prix maison : 70 250 €.
Lacanau
TERRAINÀ vendre à Lacanau, superbe terrain constructible viabilisé de 350 m², idéalement situé dans un environnement calme et verdoyant, à proximité des commerces, du lac et des plages. Terrain plat, prêt à accueillir votre projet de maison. Opportunité rare sur le secteur, à saisir rapidement !. // Réf. : T210276. Prix terrain : 245 000 €, hors frais d'agence et de notaire à la charge de l'acquéreur. Ce terrain vous est proposé, par nos partenaires fonciers, dans le cadre d'un projet de construction avec nous. Les informations sur les risques auxquels ce bien est exposé sont disponibles sur le site Géorisques (www.georisques.gouv.fr).
L’actualité immobilière à Lacanau
27/11/2023
02/11/2023
30/10/2023
20/10/2023
16/10/2023
16/10/2023