Maison neuve à Lanton (33138)
Images
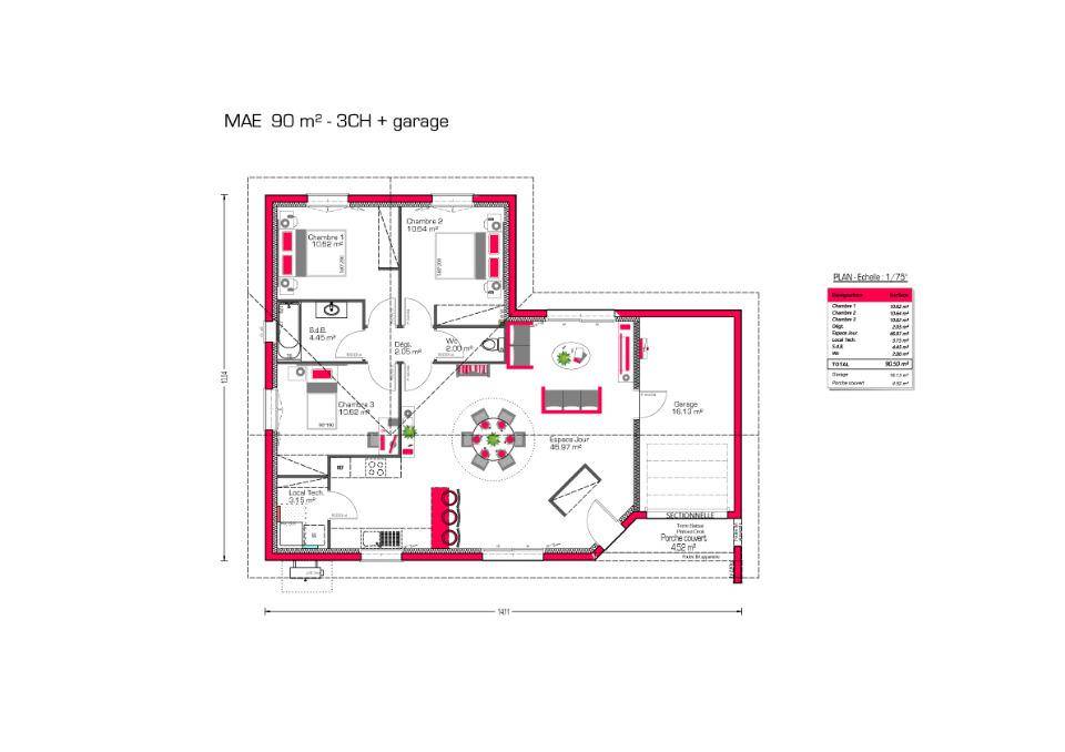
Description
Dans un quartier calme et résidentiel de Lanton, découvrez ce projet de maison contemporaine sur un terrain de 600 m², idéalement situé à proximité du bassin et des commodités.
Cette maison en L de 90 m² habitable offre une distribution optimisée avec trois chambres, un cellier attenant et un garage de 15 m². L'espace de vie lumineux s'ouvre sur un porche couvert, parfait pour profiter des beaux jours en toute saison.
Alliant confort, fonctionnalité et architecture actuelle, ce projet offre un cadre de vie agréable dans un environnement recherché du bassin d'Arcachon.
Contactez Alexis FAUCHON au (Numéro supprimé) pour plus d'informations.
Logement susceptibles de vous intéresser
Nous vous proposons de découvrir aussi cette sélection de logements situés à moins de 10km de Lanton et qui seraient susceptibles de vous intéresser.
Audenge
TERRAIN ET MAISONDans un quartier résidentiel calme et recherché sur Audenge, beau terrain de 1016 m² issu d'une division parcellaire. Emprise au sol de 30%, étage possible et terrain piscinable. Une architecture qui allie élégance et fonctionnalité !. Laissez-vous séduire par cette maison contemporaine aux lignes épurées, où chaque espace est pensé pour optimiser lumière et confort. Avec 4 chambres, dont une suite parentale avec dressing et salle d’eau, ainsi qu’un espace de vie spacieux et convivial, elle répond aux attentes des familles modernes. Son design harmonieux intègre de grandes ouvertures sur l’extérieur, créant une connexion fluide entre intérieur et jardin. Fonctionnelle et personnalisable, elle s’adapte à votre mode de vie et vos envies. Un projet conçu pour s’intégrer parfaitement à votre terrain, alliant modernité et performance énergétique. Pour un confort optimal et conforme à la RE2025, cette maison dispose d’une PAC avec plancher chauffant au rez-de-chaussée, radiateurs à l’étage et volets roulants électriques. À noter : Le prix indiqué exclut les revêtements de sol des chambres, la cuisine aménagée, la peinture, la décoration, les raccordements, les frais de notaire et l’assurance dommages-ouvrage. (Piscine non contractuelle, non incluse dans le prix. ). Besoin d’inspiration ? Contactez-nous dès maintenant pour concrétiser votre projet !. // Réf. : 1659-211015-CLB. Prix terrain : 214 000 €, hors frais d'agence à la charge de l'acquéreur. Ce terrain vous est proposé, par nos partenaires fonciers, dans le cadre d'un projet de construction avec nous. Les informations sur les risques auxquels ce bien est exposé sont disponibles sur le site Géorisques (www.georisques.gouv.fr). Prix maison : 361 846 €.
Audenge
TERRAIN ET MAISONDans un quartier résidentiel calme et recherché sur Audenge, beau terrain de 1016 m² issu d'une division parcellaire. Emprise au sol de 30%, étage possible et terrain piscinable. Maison de plain-pied de 138 m² habitables pour votre famille dont son cœur de vie de 72 m² vous séduira à coup sûr ; d’un côté la suite parentale de 20 m², de l’autre deux chambres et salle de bains toute équipée. Enfin une buanderie vous donne accès au garage double de 32 m². Pour vous assurer un confort de vie et conformément à la RE2025, nous avons choisi un mode de chauffage par PAC + plancher chauffant, volets roulants électriques. Prix hors peinture, décoration, revêtements de sol dans les chambres, cuisine équipée), frais de notaire, raccordements, dommage ouvrage. . // Réf. : 529-211015-CLB. Prix terrain : 214 000 €, hors frais d'agence à la charge de l'acquéreur. Ce terrain vous est proposé, par nos partenaires fonciers, dans le cadre d'un projet de construction avec nous. Les informations sur les risques auxquels ce bien est exposé sont disponibles sur le site Géorisques (www.georisques.gouv.fr). Prix maison : 255 387 €.
Audenge
TERRAIN ET MAISONDans un quartier résidentiel calme et recherché sur Audenge, beau terrain de 1016 m² issu d'une division parcellaire. Emprise au sol de 30%, étage possible et terrain piscinable. Maison en L composée d’une entrée séparée, wc, cellier, espace de vie de 52 m² avec cuisine semi séparée donnant sur une terrasse couverte, et partie nuit avec suite parentale et 2 chambres avec grande sdb, wc et bureau. Pour vous assurer un confort de vie et conformément à la RE2025, nous avons choisi un mode de chauffage par PAC + plancher chauffant, volets roulants électriques. Prix hors peinture, décoration, revêtements de sol dans les chambres, cuisine équipée), frais de notaire, raccordements, dommage ouvrage. (Piscine non contractuelle, non comprise dans le prix). . // Réf. : 496-211015-CLB. Prix terrain : 214 000 €, hors frais d'agence à la charge de l'acquéreur. Ce terrain vous est proposé, par nos partenaires fonciers, dans le cadre d'un projet de construction avec nous. Les informations sur les risques auxquels ce bien est exposé sont disponibles sur le site Géorisques (www.georisques.gouv.fr). Prix maison : 274 194 €.
Andernos-les-Bains
TERRAIN ET MAISONDans un quartier résidentiel calme et recherché sur Andernos, beau terrain de 600 m² issu d'une division parcellaire en 2ème ligne. Emprise au sol de 30%, étage possible et terrain piscinable. Cette maison familiale à étage de 180 m² habitables s'intégrera parfaitement au paysage. Une entrée vous accueille dans un espace de vie très lumineux de plus de 56 m², une cuisine semi-ouverte, une terrasse couverte, une suite parentale avec une salle de bains, une petite chambre ou bureau et un double garage avec grenier. A l'étage, un palier dessert 1 suite avec salle de bains privative, deux chambres, une salle de bains indépendante. Et le plus de cette maison, une terrasse couverte idéale pour des moments de détente. Pour vous assurer un confort de vie et conformément à la RE2025, nous avons choisi un mode de chauffage par PAC + plancher chauffant, volets roulants électriques. Prix hors peinture, décoration, revêtements de sol dans les chambres, cuisine équipée), frais de notaire, raccordements, dommage ouvrage. (Piscine non contractuelle, non comprise dans le prix). // Réf. : 1693-211013-CLB. Prix terrain : 240 000 €, hors frais d'agence à la charge de l'acquéreur. Ce terrain vous est proposé, par nos partenaires fonciers, dans le cadre d'un projet de construction avec nous. Les informations sur les risques auxquels ce bien est exposé sont disponibles sur le site Géorisques (www.georisques.gouv.fr). Prix maison : 495 157 €.
Andernos-les-Bains
TERRAIN ET MAISONDans un quartier résidentiel calme et recherché sur Andernos, beau terrain de 600 m² issu d'une division parcellaire en 2ème ligne. Emprise au sol de 30%, étage possible et terrain piscinable. Lignes contemporaines & espaces optimisés ! Offrez-vous une maison personnalisable, conçue pour le confort et la convivialité. Avec 4 chambres, dont une suite parentale avec dressing et salle d’eau au rez-de-chaussée, cette maison allie fonctionnalité et élégance. Son vaste espace de vie lumineux est l’endroit idéal pour partager des moments en famille. À l’étage, trois chambres bien agencées, une salle de bain moderne et un WC séparé offrent un espace nuit parfait. Un garage et un cellier viennent compléter ce projet pensé pour s’adapter à votre style de vie. Pour un confort optimal et conforme à la RE2025, cette maison dispose d’une PAC avec plancher chauffant, radiateurs à l’étage et volets roulants électriques. À noter : Le prix indiqué exclut les revêtements de sol des chambres, la cuisine aménagée, la peinture, la décoration, les raccordements, les frais de notaire et l’assurance dommages-ouvrage. N’attendez plus pour concrétiser votre projet de vie ! Contactez-nous pour plus d’informations et une étude personnalisée. . // Réf. : 1311-211013-CLB. Prix terrain : 240 000 €, hors frais d'agence à la charge de l'acquéreur. Ce terrain vous est proposé, par nos partenaires fonciers, dans le cadre d'un projet de construction avec nous. Les informations sur les risques auxquels ce bien est exposé sont disponibles sur le site Géorisques (www.georisques.gouv.fr). Prix maison : 305 601 €.
Andernos-les-Bains
TERRAIN ET MAISONDans un quartier résidentiel calme et recherché sur Andernos, beau terrain de 600 m² issu d'une division parcellaire en 2ème ligne. Emprise au sol de 30%, étage possible et terrain piscinable. Une maison qui s’adapte à vous, et non l’inverse ! Oubliez les plans figés, ici c’est vous qui donnez le ton ! Un vaste espace de vie de près de 50 m², baigné de lumière et pensé pour des moments de convivialité. Une chambre au rez-de-chaussée avec salle d’eau attenante, idéale pour votre confort ou celui de vos invités. À l’étage, trois chambres spacieuses et une salle de bain vous offrent un cocon parfait. Ajoutez à cela un garage pratique et un cellier malin, et vous obtenez une maison qui évolue avec vous. Design, confort et flexibilité. Il ne manque que votre touche ! . Pour un confort optimal et conforme à la RE2025, cette maison dispose d’une PAC avec plancher chauffant, radiateurs à l’étage et volets roulants électriques. À noter : Le prix indiqué exclut les revêtements de sol des chambres, la cuisine aménagée, la peinture, la décoration, les raccordements, les frais de notaire et l’assurance dommages-ouvrage. . . // Réf. : 483-211013-CLB. Prix terrain : 240 000 €, hors frais d'agence à la charge de l'acquéreur. Ce terrain vous est proposé, par nos partenaires fonciers, dans le cadre d'un projet de construction avec nous. Les informations sur les risques auxquels ce bien est exposé sont disponibles sur le site Géorisques (www.georisques.gouv.fr). Prix maison : 249 483 €.
Andernos-les-Bains
TERRAINDans un quartier résidentiel calme et recherché sur Andernos, beau terrain de 600 m² issu d'une division parcellaire en 2ème ligne. Emprise au sol de 30%, étage possible et terrain piscinable. // Réf. : T211013. Prix terrain : 240 000 €, hors frais d'agence et de notaire à la charge de l'acquéreur. Ce terrain vous est proposé, par nos partenaires fonciers, dans le cadre d'un projet de construction avec nous. Les informations sur les risques auxquels ce bien est exposé sont disponibles sur le site Géorisques (www.georisques.gouv.fr).
Audenge
TERRAINDans un quartier résidentiel calme et recherché sur Audenge, beau terrain de 1016 m² issu d'une division parcellaire. Emprise au sol de 30%, étage possible et terrain piscinable. // Réf. : T211015. Prix terrain : 214 000 €, hors frais d'agence et de notaire à la charge de l'acquéreur. Ce terrain vous est proposé, par nos partenaires fonciers, dans le cadre d'un projet de construction avec nous. Les informations sur les risques auxquels ce bien est exposé sont disponibles sur le site Géorisques (www.georisques.gouv.fr).
Arès
TERRAINTerrain à bâtir de 360 m² sur la commune d’Arès dans un secteur calme.Situé dans un quartier recherché d’Arès, proche du centre-ville, ce terrain de 360 m² offre un emplacement idéal pour votre projet de construction.Parcelle avec une bonne exposition, dans une rue calme et peu passante, offrant un cadre de vie paisible à deux pas de toutes les commodités.Contactez Fabien UTEZA au (Numéro supprimé) pour plus d’informations.
L’actualité immobilière à Lanton
27/11/2023
02/11/2023
30/10/2023
20/10/2023
16/10/2023
16/10/2023