Maison neuve à Le Porge (33680)
Images
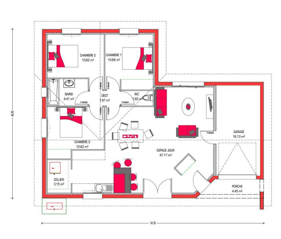
Description
Sur la commune du Porge, dans un quartier résidentiel, calme et recherché, ce terrain de 760 m² bénéficie d'un emplacement rare, bonne exposition, et à l'écart de toute nuisance sonore ou visuelle.
La parcelle est viabilisée et permet de réaliser une belle maison de plain-pied ou à étage, dans un environnement serein, préservé et sans vis-à-vis.
Présentation de notre modèle de maison personnalisable de 90 m².
Une véritable opportunité pour construire dans l'un des secteurs les plus qualitatifs.
Contactez Fabien UTEZA au (Numéro supprimé) pour plus d'informations.
Logement susceptibles de vous intéresser
Nous vous proposons de découvrir aussi cette sélection de logements situés à moins de 10km de Le Porge et qui seraient susceptibles de vous intéresser.
Le Porge
TERRAIN ET MAISONVENTE d’une maison T4 (80 m²) au PorgeMAISON 4 PIÈCES NEUVE – PROCHE DE SAINT-MÉDARD-EN-JALLESÀ vendre : localisée à 13 km de la côte atlantique et à 28 km de Saint-Médard-en-Jalles, nous sommes ravis de vous présenter cette maison de 4 pièces de plain-pied de 80 m² au Porge (33680).Elle inclut trois chambres, une cuisine et une salle de bains. Cette maison est neuve.Le terrain du bien est de 930 m².L’École Primaire Jean Degoul est implantée à moins de 10 minutes à pied. Il y a un tennis, trois boulangeries, deux commerces, un supermarché, un bureau de poste et une boucherie-charcuterie à proximité.Elle est proposée à l’achat pour 320 000 €.Contactez Laëtitia CHAUDET ((Numéro supprimé)) pour toute information sur la maison.
Le Porge
TERRAIN ET MAISONMaison T3 (49 m²) en vente au PorgeMAISON 3 PIÈCES NEUVE – PROCHE DE SAINT-MÉDARD-EN-JALLESÀ vendre : à 13 km de la côte atlantique et à deux pas de Saint-Médard-en-Jalles, votre agence Maisons de la Côte Atlantique Artigues-près-Bordeaux est heureuse de vous proposer au Porge (33680), cette maison de 3 pièces de plain-pied de 49 m² et de 930 m² de terrain. Conçue de plain-pied, elle comporte deux chambres, une cuisine et une salle de bains.La maison est neuve.On trouve l’École Primaire Jean Degoul à moins de 10 minutes à pied. Il y a un tennis, trois boulangeries, deux commerces, un supermarché, un bureau de poste et une boucherie-charcuterie dans les environs.Elle est proposée à l’achat pour 290 000 €.Contactez notre agence (Laëtitia CHAUDET : (Numéro supprimé)) pour obtenir de plus amples informations sur cette maison ou sur les modalités de vente. Maisons de la Côte Atlantique est là pour vous accompagner dans tous vos projets immobiliers.
Arès
TERRAIN ET MAISONSur la commune d’Arès, dans un quartier résidentiel, calme et recherché, ce terrain de 400 m² bénéficie d’un emplacement rare, bonne exposition, et à l’écart de toute nuisance sonore ou visuelle.La parcelle est viabilisée et permet de réaliser une belle maison de plain-pied ou à étage, dans un environnement serein, préservé et sans vis-à-vis.Présentation de notre modèle de maison personnalisable de 120 m².Une véritable opportunité pour construire dans l’un des secteurs les plus qualitatifs du Bassin d’Arcachon.Contactez Fabien UTEZA au (Numéro supprimé) pour plus d’informations.
Arès
TERRAIN ET MAISONSur la commune d’Arès, dans un quartier résidentiel, calme et recherché, ce terrain de 400 m² bénéficie d’un emplacement rare, bonne exposition, et à l’écart de toute nuisance sonore ou visuelle.La parcelle est viabilisée et permet de réaliser une belle maison de plain-pied ou à étage, dans un environnement serein, préservé et sans vis-à-vis.Présentation de notre modèle de maison personnalisable de 80 m².Le prix inclus l’achat du terrain, les frais de notaire, la construction, et les raccordements.Une véritable opportunité pour construire dans l’un des secteurs les plus qualitatifs du Bassin d’Arcachon.Contactez Fabien UTEZA au (Numéro supprimé) pour plus d’informations.
Arès
TERRAIN ET MAISONSur la commune d’Arès, dans un quartier résidentiel, calme et recherché, ce terrain de 400 m² bénéficie d’un emplacement rare, bonne exposition, et à l’écart de toute nuisance sonore ou visuelle.La parcelle est viabilisée et permet de réaliser une belle maison de plain-pied ou à étage, dans un environnement serein, préservé et sans vis-à-vis.Présentation de notre modèle de maison personnalisable de 100 m².Le prix inclus l’achat du terrain, les frais de notaire, la construction, et les raccordements.Une véritable opportunité pour construire dans l’un des secteurs les plus qualitatifs du Bassin d’Arcachon.Contactez Fabien UTEZA au (Numéro supprimé) pour plus d’informations.
Arès
TERRAINArès : terrain de 351 m² en venteIDÉALEMENT SITUÉ – PROCHE DE SAINT-MÉDARD-EN-JALLESÀ Arès (33740) sur le littoral atlantique et à 26 km de Saint-Médard-en-Jalles, imaginez la maison de vos rêves sur ce terrain de 351 m². Ce terrain, orienté sud-est, donne sur un espace vert. L’École Maternelle W. Bordes Sue se trouve à moins de 10 minutes à pied. On trouve un accès à l’autoroute A660 à 20 km. Il y a un tennis, des commerces, un supermarché, deux boulangeries, une boucherie-charcuterie et une poissonnerie à quelques minutes du terrain. Le marché Place Weiss a lieu chaque mardi matin.Il est proposé à l’achat pour 242 000 €. Contactez Carol CHEVALIER ((Numéro supprimé)) pour plus de renseignements sur ce terrain, sur les démarches à suivre ou sur les modalités de vente.
Arès
TERRAIN ET MAISONVENTE : maison de 6 pièces (100 m²) à ArèsIDÉALEMENT SITUÉE – MAISON 6 PIÈCES NEUVEÀ vendre : à 1 km de la côte atlantique et à deux pas de Saint-Médard-en-Jalles, nous sommes heureux de vous présenter cette maison de 6 pièces de plain-pied de 100 m² et de 351 m² de terrain, idéalement située dans Arès (33740).Elle se divise en trois chambres, une cuisine et deux salles de bains. Cette maison est neuve.Cette maison se trouve dans un quartier convoité. Il y a l’École Maternelle W. Bordes Sue à moins de 10 minutes à pied. L’autoroute A660 est accessible à 20 km. On trouve un tennis, des commerces, un supermarché, deux boulangeries, une poissonnerie et un bureau de poste à quelques minutes à peine. Enfin, le marché Place Weiss anime le quartier tous les mardis matin.Elle est à vendre pour la somme de 420 000 €.Contactez Carol CHEVALIER ((Numéro supprimé)) pour obtenir de plus amples informations sur la maison.
Arès
TERRAIN ET MAISONVENTE : maison de 7 pièces (84 m²) à ArèsIDÉALEMENT SITUÉE – MAISON 7 PIÈCES NEUVESur le littoral atlantique et à 26 km de Saint-Médard-en-Jalles, à vendre idéalement située dans Arès (33740), nous sommes heureux de vous proposer cette maison de 7 pièces de plain-pied de 84 m². Conçue de plain-pied, elle est composée de trois chambres, d’une cuisine et de deux salles de bains.Le terrain de la propriété s’étend sur 351 m².Cette maison est neuve.La maison se trouve dans un quartier prisé. Il y a l’École Maternelle W. Bordes Sue à moins de 10 minutes à pied. L’autoroute A660 est accessible à 20 km. On trouve un tennis, des commerces, un supermarché, deux boulangeries, un bureau de poste et une boucherie-charcuterie à proximité. Enfin, le marché Place Weiss a lieu tous les mardis matin.Elle est proposée à l’achat pour 398 000 €.Prenez contact avec notre agence (Carol CHEVALIER : (Numéro supprimé)) pour obtenir de plus amples renseignements sur la maison ou sur les modalités de vente. Maisons de la Côte Atlantique Bordeaux vous accompagne à toutes les étapes de l’achat et dans toutes vos démarches.
Arès
TERRAIN ET MAISONArès : maison T4 (98 m²) à vendreIDÉALEMENT SITUÉE – MAISON 4 PIÈCES NEUVEEn vente : à 1 km de la côte atlantique et à deux pas de Saint-Médard-en-Jalles, notre agence Maisons de la Côte Atlantique Bordeaux est heureuse de vous proposer, idéalement située dans Arès (33740), cette maison de 4 pièces de plain-pied de 98 m².Conçue de plain-pied, elle comporte trois chambres, une cuisine et une salle de bains. La maison est neuve.Le terrain du bien s’étend sur 351 m².Cette maison se situe dans un secteur convoité. L’École Maternelle W. Bordes Sue est implantée à moins de 10 minutes à pied. L’autoroute A660 est accessible à 20 km. On trouve un tennis, des commerces, un supermarché, deux boulangeries, une épicerie et un bureau de poste à proximité de la maison. Le marché Place Weiss anime les environs chaque mardi matin.Elle est à vendre pour la somme de 460 000 €.Contactez notre constructeur (CHEVALIER Carol : (Numéro supprimé)) pour tout renseignement sur la maison, sur les modalités de vente ou sur les démarches à suivre. Donnez vie à vos projets immobiliers avec Maisons de la Côte Atlantique Bordeaux.
L’actualité immobilière à Le Porge
27/11/2023
02/11/2023
30/10/2023
20/10/2023
16/10/2023
16/10/2023