Maison à construire à Léognan (33850)
Images
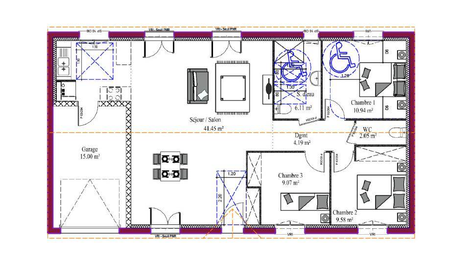
Description
Alexandra BARRAILH des maisons MCA, vous propose d'adapter le modèle Paradis Investisseurs, sur ce terrain de 700m2 situé sur la commune de Léognan. A quelques minutes à pied du centre bourg, investissement idéal pour du locatif.
Spécialement conçu pour les investisseurs, adaptée aux normes PMR pour le locatif, cette maison dispose d'un hall d'entrée avec placard, un beau salon / séjour tourné vers le jardin, et une cuisine ouverte, soit un espace de vie de plus de 40m2. Le coin nuit est composé de 3 chambres avec placards, une salle d'eau et un WC séparé.
Frais de notaire et raccordement compris avec options comprises (tout carrelé, faïence douche, wc suspendu).
N'attendez plus, contactez vite Alexandra BARRAILH, au (Numéro supprimé), afin qu'elle vous guide dans les démarches et vous accompagne dans votre projet de construction personnalisé.
Logement susceptibles de vous intéresser
Nous vous proposons de découvrir aussi cette sélection de logements situés à moins de 10km de Léognan et qui seraient susceptibles de vous intéresser.
Pessac
TERRAIN ET MAISONPESSAC BOURGDécouvrez cette magnifique maison neuve de plain-pied, conjuguant élégance, confort et performance énergétique, sur un terrain de 600 m².D’une surface de 136 m² habitable, elle se compose d’une vaste pièce de vie ouverte, de trois chambres dont une suite parentale.Pensée pour offrir un cadre de vie moderne et lumineux, vous pourrez aisément implanter une terrasse et une piscine.Les prestations incluent :Domotique intégrée : volets, chauffage, sécurité, pilotage à distanceIsolation et confort thermique aux normes RE2020Chauffage économe et matériaux de qualitéFinitions soignées et personnalisablesGaranties constructeur complètes (décennale, dommages ouvrage, parfait achèvement)Emplacement idéal : commerces, lycée et écoles accessibles facilement.Une opportunité unique d’allier confort, modernité et emplacement privilégié au coeur de Pessac et de la métropole Bordelaise.Avec So’9 Habitat, bénéficiez d’un accompagnement sur mesure pour personnaliser votre maison selon vos envies.Plusieurs implantations possibles sur ce terrain rare et bien situé !N’hésitez pas à me contacter au (Numéro supprimé)Florent DELMOND
Pessac
TERRAIN ET MAISONVenez découvrir cette maison neuve contemporaine de plain-pied d’une surface de 120 m², conçue pour allier confort, modernité et performance énergétique.Son architecture épurée et sa distribution fonctionnelle offrent un cadre de vie idéal pour une famille à la recherche d’espace et de luminosité.🏠 Agencement intérieurEntrée accueillante avec placard intégréGrande pièce de vie de plus de 45 m², lumineuse et ouverte sur le jardin grâce à de larges baies vitréesCuisine ouverte moderne (possibilité d’aménagement sur mesure)3 chambres spacieuses, dont une suite parentale avec dressing et salle d’eau privativeSalle de bains familiale avec baignoire et double vasqueWC séparésCellier / buanderie attenant à la cuisineGarage fermé de [ex. 20 m²]🌿 ExtérieurLe terrain offre un bel espace jardin piscinable, exposé plein sud, idéal pour profiter des beaux jours.Possibilité de terrasse en bois et d’aménagement paysager personnalisé.⚙️ PrestationsConstruction neuve conforme à la réglementation RE2020Pompe à chaleur air/eau – plancher chauffantMenuiseries aluminium double vitrageVolets roulants électriques centralisésIsolation renforcéeDomotique (chauffage, éclairage, sécurité – en option)Finitions soignées et matériaux de qualité📍 LocalisationProche des commerces, écoles et transports, dans un secteur calme et résidentiel, offrant un excellent confort de vie au quotidien.
Léognan
TERRAINAlexandra BARRAILH des maisons MCA, vous propose ce beau terrain 700m2 viabilisé dans un environnement naturel et paisible. Viabilisé avec assainissement collectif, sur la commune de Léognan.Ce terrain bénéficie d’un environnement calme et verdoyant. Il offre de nombreuses possibilités d’aménagement. Sa proximité avec les commerces et services du centre-bourg en fait un emplacement idéal (2min en voiture). De plus, il dispose d’un accès rapide aux principaux axes routiers.Idéal pour la construction d’une maison individuelle dans une commune dynamique aux portes de Bordeaux.Pour plus d’informations contactez Alexandra BARRAILH, au (Numéro supprimé), afin d’établir avec elle votre projet de construction personnalisé.
Léognan
TERRAINAlexandra BARRAILH des maisons MCA, vous propose ce beau terrain 700m2 viabilisé dans un environnement naturel et paisible. Viabilisé avec assainissement collectif, sur la commune de Léognan.Ce terrain bénéficie d’un environnement calme et verdoyant. Il offre de nombreuses possibilités d’aménagement. Sa proximité avec les commerces et services du centre-bourg en fait un emplacement idéal (2min en voiture). De plus, il dispose d’un accès rapide aux principaux axes routiers.Idéal pour la construction d’une maison individuelle dans une commune dynamique aux portes de Bordeaux.Pour plus d’informations contactez Alexandra BARRAILH, au (Numéro supprimé), afin d’établir avec elle votre projet de construction personnalisé.
Léognan
TERRAIN ET MAISONAlexandra BARRAILH des maisons MCA, vous propose le modèle Jasmin avec garage, sur ce terrain de 700m2 situé sur la commune de Léognan. Idéale pour un premier achat, la maison JASMIN saura vous séduire avec des volumes très étudiés et un espace de vie convivial. Le garage intégré attenant au cellier lui confère un côté très pratique.Ce modèle de 90m² possède un grand salon-séjour traversant et baigné de lumière, jouxté d’une cuisine avec son cellier attenant.Elle dispose de 4 chambres, chacune équipée d’un emplacement placard, une salle de bain familiale avec baignoire et meuble double vasque.Grâce à la pompe à chaleur laissez-vous tenter par le chauffage au sol, le split. Cette maison est entièrement modulable pour répondre à toutes vos envies, vous pourrez la personnaliser pour qu’elle corresponde parfaitement à vos besoins. La transformer en 3 chambres pour agrandir le séjour par exemple. Ou ajouter un dressing ou une deuxième salle de bain également. Pour une étude personnalisée de votre projet de vie et une visite contactez Alexandra des maisons MCA au (Numéro supprimé).
Léognan
TERRAIN ET MAISONAlexandra BARRAILH des maisons MCA, vous propose d’adapter le modèle Jonquille, sur ce terrain de 700m2 situé sur la commune de Léognan. Cette maison de plain-pied est dotée d’un agencement optimisé, pour vous faire bénéficier d’un espace nuit composé de 3 chambres, une salle de bains et un wc. Et un bel espace de vie avec cellier attenant à la cuisine, qui est ouverte sur le séjour, offrant un espace de vie d’environ 37m2. Ce modèle est idéal pour un premier achat ou un investissement locatif.Frais de Notaire compris !N’attendez plus, contactez vite Alexandra BARRAILH, au (Numéro supprimé), afin qu’elle vous guide dans les démarches et vous accompagne dans votre projet de construction personnalisé.
Léognan
TERRAIN ET MAISONAlexandra BARRAILH des maisons MCA, vous propose d’adapter le modèle Garonne, sur ce terrain de 700m2 situé sur la commune de Léognan. Notre modèle « Garonne » est la maison familiale par excellence ! Sa forme en V permet de séparer les espaces jour et nuit de manière bien distincte. Sur une aile, se trouvent les 3 chambres dont une suite parentale, sa belle salle de bain avec baignoire ou douche italienne au choix et son WC séparé. L’autre partie abrite les pièces de vie communes avec un grand salon-séjour lumineux et la cuisine semi-ouverte, suivie du cellier et garage.Proposée sur un très beau terrain viabilisé de 700m², proche de toutes commodités.Pour une étude personnalisée de votre projet de vie et une visite contactez Alexandra des maisons MCA au (Numéro supprimé).
Léognan
TERRAIN ET MAISONAlexandra BARRAILH des maisons MCA, vous propose d’adapter le modèle Paradis Investisseurs, sur ce terrain de 700m2 situé sur la commune de Léognan. A quelques minutes à pied du centre bourg, investissement idéal pour du locatif. Spécialement conçu pour les investisseurs, adaptée aux normes PMR pour le locatif, cette maison dispose d’un hall d’entrée avec placard, un beau salon / séjour tourné vers le jardin, et une cuisine ouverte, soit un espace de vie de plus de 40m2. Le coin nuit est composé de 3 chambres avec placards, une salle d’eau et un WC séparé.Frais de notaire et raccordement compris avec options comprises (tout carrelé, faïence douche, wc suspendu).N’attendez plus, contactez vite Alexandra BARRAILH, au (Numéro supprimé), afin qu’elle vous guide dans les démarches et vous accompagne dans votre projet de construction personnalisé.
Gradignan
TERRAIN ET MAISONjoli terrain de 615 m² sur la commune de Gradignan dans la quartier ornano. Proche des écoles, des commerces, commodité et des transports en communs. L'emplacement est idéal pour réaliser votre projet de construction. . Bien pensée et fonctionnelle. Avec son architecture en L et de plain-pied, la maison CARNEY vous séduira par sa cuisine ouverte sur un bel espace de vie lumineux et ses trois chambresPour vous assurer un confort de vie et conformèment à la RE2025, nous avons chosi un mode de chauffage par PAC + plancher chauffant, volets roulants électriques, Prix hors fourniture et pose : des appareils sanitaires (sauf système de chauffage et d'eau chaude sanitaire), du carrelage et de la faïence, des revêtements de sol dans les chambres. Hors décoration et aménagement intérieur et peinture. Hors raccordements, frais de notaire et dommage ouvrage. // Réf. : 711-210887-MAV. Prix terrain : 210 000 €, hors frais d'agence à la charge de l'acquéreur. Ce terrain vous est proposé, par nos partenaires fonciers, dans le cadre d'un projet de construction avec nous. Les informations sur les risques auxquels ce bien est exposé sont disponibles sur le site Géorisques (www.georisques.gouv.fr). Prix maison : 113 448 €.
L’actualité immobilière à Léognan
27/11/2023
02/11/2023
30/10/2023
20/10/2023
16/10/2023
16/10/2023