Maison à construire à Mérignac (33700)
Images
Description
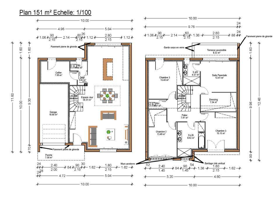
À Mérignac, dans le quartier prisé de la Mairie, à deux pas du tram et de toutes les commodités, découvrez ce projet exclusif de construction comprenant un terrain à bâtir de 412 m² entièrement viabilisé et une maison contemporaine à étage de 150 m² habitables. Ce projet propose de beaux volumes et un agencement fonctionnel avec un vaste espace de vie lumineux, quatre chambres dont une suite parentale, deux salles de bain, ainsi qu'un garage de 18 m². L'architecture résolument contemporaine, alliant confort et modernité, vous permettra de profiter d'un cadre de vie privilégié au coeur d'un secteur rare et recherché. Le tout est proposé au prix de 325 000 € pour le terrain, avec possibilité d'étude personnalisée pour la construction de la maison. Pour plus d'informations, contactez Thomas Carré - SO'9 Habitat au (Numéro supprimé).
Logement susceptibles de vous intéresser
Nous vous proposons de découvrir aussi cette sélection de logements situés à moins de 10km de Mérignac et qui seraient susceptibles de vous intéresser.
Saint-Médard-en-Jalles
TERRAIN ET MAISONA Saint Médard en Jalles, très beau terrain de 400 m², idéalement situé dans un quartier calme, permettant de réaliser un projet de plain-pied (85m²) ou étage. Proche commerces, écoles et centre ville. Maison d’architecte idéale pour terrain en ville avec orientation du séjour de 48 m² plein sud, très bel espace cuisine familiale de 18 m², une suite parentale séparée, 2 chambres avec sde, et un bureau séparatif, abri voiture. Pour vous assurer un confort de vie et conformément à la RE2025, nous avons choisi un mode de chauffage par PAC + plancher chauffant, volets roulants électriques. Prix hors peinture, décoration, revêtements de sol dans les chambres, cuisine équipée), frais de notaire, raccordements, dommage ouvrage. (Piscine non contractuelle, non comprise dans le prix). // Réf. : 497-210784-CLB. Prix terrain : 155 000 €, hors frais d'agence à la charge de l'acquéreur. Ce terrain vous est proposé, par nos partenaires fonciers, dans le cadre d'un projet de construction avec nous. Les informations sur les risques auxquels ce bien est exposé sont disponibles sur le site Géorisques (www.georisques.gouv.fr). Prix maison : 305 030 €.
Saint-Médard-en-Jalles
TERRAIN ET MAISONA Saint Médard en Jalles, très beau terrain de 400 m², idéalement situé dans un quartier calme, permettant de réaliser un projet de plain-pied (85m²) ou étage. Proche commerces, écoles et centre ville. Un style unique, un confort absolu – et si c’était votre maison ? Ici, chaque détail a été pensé pour allier design, espace et bien-être. Une suite parentale avec dressing et salle d’eau, un séjour lumineux, une cuisine qui donne envie de partager… Cette maison est un véritable cocon moderne et fonctionnel. À l’étage, deux belles chambres, une salle de bains et des espaces optimisés pour que chacun profite pleinement de son intimité. Besoin de plus ? Cette maison s’adapte à vos envies : un bureau, un espace détente, une salle de jeux ? C’est vous qui décidez !. Pour un confort optimal et conforme à la RE2025, cette maison dispose d’une PAC avec plancher chauffant, radiateurs à l’étage et volets roulants électriques. À noter : Le prix indiqué exclut les revêtements de sol des chambres, la cuisine aménagée, la peinture, la décoration, les raccordements, les frais de notaire et l’assurance dommages-ouvrage. Contactez-nous dès aujourd’hui pour concrétiser votre projet et façonner votre futur chez-vous !. // Réf. : 1661-210784-CLB. Prix terrain : 155 000 €, hors frais d'agence à la charge de l'acquéreur. Ce terrain vous est proposé, par nos partenaires fonciers, dans le cadre d'un projet de construction avec nous. Les informations sur les risques auxquels ce bien est exposé sont disponibles sur le site Géorisques (www.georisques.gouv.fr). Prix maison : 247 579 €.
Saint-Médard-en-Jalles
TERRAIN ET MAISONA Saint Médard en Jalles, très beau terrain de 400 m², idéalement situé dans un quartier calme, permettant de réaliser un projet de plain-pied (85m²) ou étage. Proche commerces, écoles et centre ville. Très belle maison de plain-pied de 131 m² habitables avec garage. La vie s'organise autour d'un très bel espace de vie très lumineux grâce à ses ouvertures et sa très grande baie vitrée qui vous conduit sur une magnifique terrasse, accessible également depuis le coin cuisine. Pour l'espace nuit, 4 chambres dont 1 chambre parentale avec placards et salle d'eau privative, une salle de bains avec baignoire, double vasque et wc séparés. Pour vous assurer un confort de vie et conformément à la RE2025, nous avons choisi un mode de chauffage par PAC + plancher chauffant, volets roulants électriques. Prix hors peinture, décoration, revêtements de sol dans les chambres, cuisine équipée), frais de notaire, raccordements, dommage ouvrage. (Piscine non contractuelle, non comprise dans le prix). // Réf. : 1688-210784-CLB. Prix terrain : 155 000 €, hors frais d'agence à la charge de l'acquéreur. Ce terrain vous est proposé, par nos partenaires fonciers, dans le cadre d'un projet de construction avec nous. Les informations sur les risques auxquels ce bien est exposé sont disponibles sur le site Géorisques (www.georisques.gouv.fr). Prix maison : 330 105 €.
Saint-Médard-en-Jalles
TERRAINA Saint Médard en Jalles, très beau terrain de 400 m², idéalement situé dans un quartier calme, permettant de réaliser un projet de plain-pied (85m²) ou étage. Proche commerces, écoles et centre ville. // Réf. : T210784. Prix terrain : 155 000 €, hors frais d'agence et de notaire à la charge de l'acquéreur. Ce terrain vous est proposé, par nos partenaires fonciers, dans le cadre d'un projet de construction avec nous. Les informations sur les risques auxquels ce bien est exposé sont disponibles sur le site Géorisques (www.georisques.gouv.fr).
Saint-Médard-en-Jalles
TERRAINDécouvrez ce superbe terrain constructible de 710 m², idéalement situé dans un secteur résidentiel recherché de Saint-Médard-en-Jalles. Proche des commerces, écoles et transports, ce terrain offre un cadre de vie privilégié, à seulement quelques minutes de Bordeaux. Terrain plat, bien exposé, prêt à accueillir votre projet de maison moderne ou traditionnelle. // Réf. : T210765. Prix terrain : 213 000 €, hors frais d'agence et de notaire à la charge de l'acquéreur. Ce terrain vous est proposé, par nos partenaires fonciers, dans le cadre d'un projet de construction avec nous. Les informations sur les risques auxquels ce bien est exposé sont disponibles sur le site Géorisques (www.georisques.gouv.fr).
Saint-Médard-en-Jalles
TERRAIN ET MAISONDécouvrez ce superbe terrain constructible de 710 m², idéalement situé dans un secteur résidentiel recherché de Saint-Médard-en-Jalles. Proche des commerces, écoles et transports, ce terrain offre un cadre de vie privilégié, à seulement quelques minutes de Bordeaux. Terrain plat, bien exposé, prêt à accueillir votre projet de maison moderne ou traditionnelle. Fonctionnelle et spacieuse, cette maison de plain-pied vous propose un bel espace de vie lumineux et traversant. Sa cuisine est ouverte sur le séjour et a un accès direct au cellier. Son espace nuit est composé de trois belles chambres avec rangements. La maison comporte deux salles de bains, des wc séparés et un bureau avec rangements. Pour vous assurer un confort de vie et conformèment à la RE2025, nous avons chosi un mode de chauffage par PAC + plancher chauffant, volets roulants électriques, Prix hors fourniture et pose : des appareils sanitaires (sauf système de chauffage et d'eau chaude sanitaire), du carrelage et de la faïence, des revêtements de sol dans les chambres. Hors décoration et aménagement intérieur et peinture. Hors raccordements, frais de notaire et dommage ouvrage. // Réf. : 819-210765-CRI. Prix terrain : 213 000 €, hors frais d'agence à la charge de l'acquéreur. Ce terrain vous est proposé, par nos partenaires fonciers, dans le cadre d'un projet de construction avec nous. Les informations sur les risques auxquels ce bien est exposé sont disponibles sur le site Géorisques (www.georisques.gouv.fr). Prix maison : 139 074 €.
Saint-Médard-en-Jalles
TERRAIN ET MAISONDécouvrez ce superbe terrain constructible de 710 m², idéalement situé dans un secteur résidentiel recherché de Saint-Médard-en-Jalles. Proche des commerces, écoles et transports, ce terrain offre un cadre de vie privilégié, à seulement quelques minutes de Bordeaux. Terrain plat, bien exposé, prêt à accueillir votre projet de maison moderne ou traditionnelle. Charmante maison de plain-pied spacieuse et stylée. Son entrée est couverte par un porche, qui ouvre sur la pièce de vie de 40 m² environ. L’espace jour et l’espace nuit ont été optimisés par notre bureau d’études. Côté nuit, 3 chambres avec rangement, une salle de bains. Ses jeux d'enduits personnalisables sauront vous séduirePour vous assurer un confort de vie et conformèment à la RE2025, nous avons chosi un mode de chauffage par PAC + plancher chauffant, volets roulants électriques, Prix hors fourniture et pose : des appareils sanitaires (sauf système de chauffage et d'eau chaude sanitaire), du carrelage et de la faïence, des revêtements de sol dans les chambres. Hors décoration et aménagement intérieur et peinture. Hors raccordements, frais de notaire et dommage ouvrage. // Réf. : 1046-210765-CRI. Prix terrain : 213 000 €, hors frais d'agence à la charge de l'acquéreur. Ce terrain vous est proposé, par nos partenaires fonciers, dans le cadre d'un projet de construction avec nous. Les informations sur les risques auxquels ce bien est exposé sont disponibles sur le site Géorisques (www.georisques.gouv.fr). Prix maison : 116 080 €.
Saint-Médard-en-Jalles
TERRAIN ET MAISONDécouvrez ce superbe terrain constructible de 710 m², idéalement situé dans un secteur résidentiel recherché de Saint-Médard-en-Jalles. Proche des commerces, écoles et transports, ce terrain offre un cadre de vie privilégié, à seulement quelques minutes de Bordeaux. Terrain plat, bien exposé, prêt à accueillir votre projet de maison moderne ou traditionnelle. Aucune place de perdue pour cette maison de plain-pied familiale et fonctionnelle qui vous propose un très bel espace de vie lumineux avec une grande baie vitrée donnant sur le jardin. Sa cuisine est ouverte sur le séjour et dispose d'un accès direct au cellier, et au garage intégré. Du côté de l'espace nuit quatre chambres avec rangements, d'une salle de bains et de wc séparés. Pour vous assurer un confort de vie et conformèment à la RE2025, nous avons chosi un mode de chauffage par PAC + plancher chauffant, volets roulants électriques, Prix hors fourniture et pose : des appareils sanitaires (sauf système de chauffage et d'eau chaude sanitaire), du carrelage et de la faïence, des revêtements de sol dans les chambres. Hors décoration et aménagement intérieur et peinture. Hors raccordements, frais de notaire et dommage ouvrage. // Réf. : 873-210765-CRI. Prix terrain : 213 000 €, hors frais d'agence à la charge de l'acquéreur. Ce terrain vous est proposé, par nos partenaires fonciers, dans le cadre d'un projet de construction avec nous. Les informations sur les risques auxquels ce bien est exposé sont disponibles sur le site Géorisques (www.georisques.gouv.fr). Prix maison : 138 944 €.
Saint-Médard-en-Jalles
TERRAINDécouvrez ce superbe terrain constructible de 710 m², idéalement situé dans un secteur résidentiel recherché de Saint-Médard-en-Jalles. Proche des commerces, écoles et transports, ce terrain offre un cadre de vie privilégié, à seulement quelques minutes de Bordeaux. Terrain plat, bien exposé, prêt à accueillir votre projet de maison moderne ou traditionnelle. // Réf. : T210765. Prix terrain : 213 000 €, hors frais d'agence et de notaire à la charge de l'acquéreur. Ce terrain vous est proposé, par nos partenaires fonciers, dans le cadre d'un projet de construction avec nous. Les informations sur les risques auxquels ce bien est exposé sont disponibles sur le site Géorisques (www.georisques.gouv.fr).
L’actualité immobilière à Mérignac
27/11/2023
02/11/2023
30/10/2023
20/10/2023
16/10/2023
16/10/2023