Maison à construire à Mérignac (33700)
Images
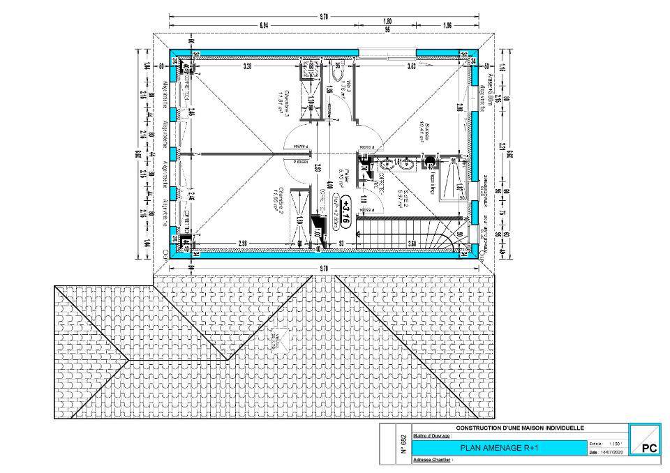
Description
Découvrez cette charmante maison à étage d'environ 130 m², idéalement agencée pour offrir confort et luminosité.
Au rez-de-chaussée, vous profiterez d'une grande pièce de vie spacieuse et lumineuse, ouverte sur le jardin exposé plein sud, parfait pour les moments en famille ou entre amis. Une suite parentale complète ce niveau, offrant indépendance et confort.
À l'étage, vous trouverez deux belles chambres, un bureau idéal pour le télétravail ou les études, ainsi qu'une deuxième salle d'eau.
La maison dispose également d'un garage et de nombreux rangements.
✅ En résumé :
Surface : env. 130 m²
Grande pièce de vie ouverte sur jardin plein sud
Suite parentale en rez-de-chaussée
2 chambres + 1 bureau à l'étage
2 salles d'eau
Garage
Un bien fonctionnel et agréable, parfait pour une famille à la recherche d'un cadre de vie paisible et lumineux.
SO'9 HABITAT c'est concevoir votre maison sur mesure!!
Contactez moi au (Numéro supprimé)
Florent DELMOND
Logement susceptibles de vous intéresser
Nous vous proposons de découvrir aussi cette sélection de logements situés à moins de 10km de Mérignac et qui seraient susceptibles de vous intéresser.
Le Taillan-Médoc
TERRAINCe terrain de 524 m² au Taillan-Médoc, vendu 210 000 €, offre un bel emplacement alliant calme et accessibilité. Vous apprécierez la proximité immédiate de Bordeaux et la qualité de vie typique des communes du Médoc. // Réf. : T210719. Prix terrain : 210 000 €, hors frais d'agence et de notaire à la charge de l'acquéreur. Ce terrain vous est proposé, par nos partenaires fonciers, dans le cadre d'un projet de construction avec nous. Les informations sur les risques auxquels ce bien est exposé sont disponibles sur le site Géorisques (www.georisques.gouv.fr).
Le Taillan-Médoc
TERRAINÀ Le Taillan-Médoc, commune recherchée aux portes de Bordeaux, découvrez ce terrain constructible de 565 m², idéalement situé dans un quartier calme et verdoyant. À proximité des commerces, écoles et transports, il offre un cadre de vie familial et privilégié à seulement 15 minutes de Bordeaux. Parfait pour bâtir votre maison dans un secteur dynamique et nature. À saisir vite !. // Réf. : T210682. Prix terrain : 230 000 €, hors frais d'agence et de notaire à la charge de l'acquéreur. Ce terrain vous est proposé, par nos partenaires fonciers, dans le cadre d'un projet de construction avec nous. Les informations sur les risques auxquels ce bien est exposé sont disponibles sur le site Géorisques (www.georisques.gouv.fr).
Le Taillan-Médoc
TERRAIN ET MAISONCe terrain de 524 m² au Taillan-Médoc, vendu 210 000 €, offre un bel emplacement alliant calme et accessibilité. Vous apprécierez la proximité immédiate de Bordeaux et la qualité de vie typique des communes du Médoc. Vous serez séduits par la luminosité qui se dégage de cette maison de plain-pied qui vous propose un espace de vie spacieux de 46 m² environ ouvert sur le jardin avec un coin cuisine aménagée. Trois belles chambres avec rangements, une salle de bains et wc indépendant. Le plus pour cette maison fonctionnelle, un cellier et un garage intégréPour vous assurer un confort de vie et conformèment à la RE2025, nous avons chosi un mode de chauffage par PAC + plancher chauffant, volets roulants électriques, Prix hors fourniture et pose : des appareils sanitaires (sauf système de chauffage et d'eau chaude sanitaire), du carrelage et de la faïence, des revêtements de sol dans les chambres. Hors décoration et aménagement intérieur et peinture. Hors raccordements, frais de notaire et dommage ouvrage. // Réf. : 1226-210719-MIP. Prix terrain : 210 000 €, hors frais d'agence à la charge de l'acquéreur. Ce terrain vous est proposé, par nos partenaires fonciers, dans le cadre d'un projet de construction avec nous. Les informations sur les risques auxquels ce bien est exposé sont disponibles sur le site Géorisques (www.georisques.gouv.fr). Prix maison : 127 515 €.
Le Taillan-Médoc
TERRAIN ET MAISONCe terrain de 524 m² au Taillan-Médoc, vendu 210 000 €, offre un bel emplacement alliant calme et accessibilité. Vous apprécierez la proximité immédiate de Bordeaux et la qualité de vie typique des communes du Médoc. Vous serez séduits par cette maison contemporaine qui se distingue par son porche en façade et ses enduits bi-ton personnalisable. Elle vous accueille dans un très bel espace de vie de plus de 44 m² très lumineux grâce à ses nombreuses ouvertures. La cuisine ouverte est très fonctionnelle puisqu’à la fois ouverte sur le séjour et accolée au cellier. L’espace nuit est composé de trois chambres avec tous les rangements nécessaires ainsi que d’une salle de bain et des wc séparés. Le plus de cette maison est sans nul doute son garage intégré. Pour vous assurer un confort de vie et conformément à la RE2025, nous avons choisi un mode de chauffage par PAC + plancher chauffant, volets roulants électriques. Prix hors fourniture et pose : des appareils sanitaires (sauf système de chauffage et d'eau chaude sanitaire), du carrelage et de la faïence, des revêtements de sol dans les chambres. Hors décoration et aménagement intérieur et peinture. Hors raccordements, frais de notaire et dommage ouvrage. // Réf. : 630-210719-MIP. Prix terrain : 210 000 €, hors frais d'agence à la charge de l'acquéreur. Ce terrain vous est proposé, par nos partenaires fonciers, dans le cadre d'un projet de construction avec nous. Les informations sur les risques auxquels ce bien est exposé sont disponibles sur le site Géorisques (www.georisques.gouv.fr). Prix maison : 129 756 €.
Le Taillan-Médoc
TERRAIN ET MAISONCe terrain de 524 m² au Taillan-Médoc, vendu 210 000 €, offre un bel emplacement alliant calme et accessibilité. Vous apprécierez la proximité immédiate de Bordeaux et la qualité de vie typique des communes du Médoc. Familiale et lumineuse. Le modèle PANAY vous propose un plan de maison très astucieux. Cette maison est idéalement agencée avec une entrée sur un grand espace de vie et une cuisine ouverte accolée au cellier. La « zone jour » et délimitée de la « zone nuit » par un dégagement qui dessert quatre belles chambres, une salle de bain et les wc séparés. Pour le côté pratique, le garage est intégré à la maisonPour vous assurer un confort de vie et conformèment à la RE2025, nous avons chosi un mode de chauffage par PAC + plancher chauffant, volets roulants électriques, Prix hors fourniture et pose : des appareils sanitaires (sauf système de chauffage et d'eau chaude sanitaire), du carrelage et de la faïence, des revêtements de sol dans les chambres. Hors décoration et aménagement intérieur et peinture. Hors raccordements, frais de notaire et dommage ouvrage. // Réf. : 1154-210719-MIP. Prix terrain : 210 000 €, hors frais d'agence à la charge de l'acquéreur. Ce terrain vous est proposé, par nos partenaires fonciers, dans le cadre d'un projet de construction avec nous. Les informations sur les risques auxquels ce bien est exposé sont disponibles sur le site Géorisques (www.georisques.gouv.fr). Prix maison : 123 217 €.
Le Taillan-Médoc
TERRAINCe terrain de 524 m² au Taillan-Médoc, vendu 210 000 €, offre un bel emplacement alliant calme et accessibilité. Vous apprécierez la proximité immédiate de Bordeaux et la qualité de vie typique des communes du Médoc. // Réf. : T210719. Prix terrain : 210 000 €, hors frais d'agence et de notaire à la charge de l'acquéreur. Ce terrain vous est proposé, par nos partenaires fonciers, dans le cadre d'un projet de construction avec nous. Les informations sur les risques auxquels ce bien est exposé sont disponibles sur le site Géorisques (www.georisques.gouv.fr).
Le Taillan-Médoc
TERRAINÀ Le Taillan-Médoc, commune recherchée aux portes de Bordeaux, découvrez ce terrain constructible de 565 m², idéalement situé dans un quartier calme et verdoyant. À proximité des commerces, écoles et transports, il offre un cadre de vie familial et privilégié à seulement 15 minutes de Bordeaux. Parfait pour bâtir votre maison dans un secteur dynamique et nature. À saisir vite !. // Réf. : T210682. Prix terrain : 230 000 €, hors frais d'agence et de notaire à la charge de l'acquéreur. Ce terrain vous est proposé, par nos partenaires fonciers, dans le cadre d'un projet de construction avec nous. Les informations sur les risques auxquels ce bien est exposé sont disponibles sur le site Géorisques (www.georisques.gouv.fr).
Pessac
TERRAIN33600 PESSAC PAPE CLÉMENT – RARE SUR LE SECTEUR !A 10 min à pied du centre ville de Pessac, accès bus/tram/train, tous commerces, écoles, rocade accessible rapidement…TERRAIN ARBORÉ AU CALME ABSOLU D’ENVIRON 2000 M2.LIBRE DE CONSTRUCTEUR !40 % d’emprise au solR+1 maximumA VOS PROJETS !Prix: 625 000 Euros. Honoraires agence à la charge du vendeur.Pour visiter et vous accompagner dans votre projet, contactez Loïs LAMIREAU, au (Numéro supprimé) ou par courriel à (Email supprimé)Cette présente annonce a été rédigée sous la responsabilité éditoriale de Loïs LAMIREAU agissant sous le statut d’agent commercial immatriculé au RSAC BORDEAUX 844968107 auprès de la SAS PROPRIETES PRIVEES, Réseau national immobilier, au capital de 40000 euros, 44 ALLÉE DES CINQ CONTINENTS – ZAC LE CHÊNE FERRÉ, 44120 VERTOU, RCS Nantes n° 487 624 777 00040, Carte professionnelle T et G n° CPI 4401 2016 000 010 388 CCI Nantes-Saint Nazaire. Garantie GALIAN – 89 rue de la Boétie, 75008 ParisMandat réf : 419392 – Le professionnel garantit et sécurise votre projet immobilier.***Estimation gratuite de votre bien (maison, appartement, immeuble, terrain, . . .)*** Loïs LAMIREAU (EI) Agent Commercial – Numéro RSAC : BORDEAUX 844968107 – .
Saint-Médard-en-Jalles
TERRAIN ET MAISONSaint-Médard-en-Jalles : maison F5 (90 m²) en vente. Prenez contact avec notre agence (Guillaume ARNOULD : (Numéro supprimé))IDÉALEMENT SITUÉE – MAISON 5 PIÈCES NEUVEÀ 20 km de la côte atlantique, votre agence Maisons de la Côte Atlantique Saint-Médard-en-Jalles est heureuse de vous présenter cette maison de 5 pièces de plain-pied de 90 m² et de 410 m² de terrain idéalement située dans Saint-Médard-en-Jalles (33160).Conçue de plain-pied, elle offre trois ou quatre chambres, une cuisine , une salle de bains et garage. Cette maison est neuve. PLAN ET SURFACE MODULABLES.Cette maison se situe dans un quartier convoité. écoles et commerces à proximité. Côté transports, il y a quatre gares à moins de 10 minutes en voiture. On trouve un accès à l’autoroute A630 à 6 km. On trouve des commerces, des boulangeries, un bureau de poste, une poissonnerie et deux épiceries dans les environs. Ne manquez pas le marché Place de la république tous les samedis matin.Elle est à vendre pour la somme de 330 000 €.Prenez contact avec notre agence (Guillaume ARNOULD : (Numéro supprimé)) pour toute information sur le bien, sur les démarches à suivre ou sur les modalités de vente. Faites de vos projets immobiliers une réalité avec Maisons de la Côte Atlantique Saint-Médard-en-Jalles.
L’actualité immobilière à Mérignac
27/11/2023
02/11/2023
30/10/2023
20/10/2023
16/10/2023
16/10/2023