Maison à construire à Mérignac (33700)
Images
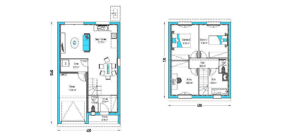
Description
Cette maison incarne l'alliance subtile du design contemporain et du confort durable. Son architecture élégante et ses volumes généreux offrent un cadre de vie harmonieux, pensé pour répondre aux exigences du quotidien tout en privilégiant la sérénité.
Rez-de-chaussée :
Garage intégré avec accès direct à la maison,
Superbe pièce de vie baignée de lumière, prolongée par une cuisine ouverte conviviale,
Cellier fonctionnel attenant à la cuisine,
WC indépendant.
Étage :
Trois chambres avec placards
Salle de bains raffinée,
WC séparé.
Grâce à une conception soignée et à des prestations de qualité, elle offre un confort de vie optimal, une luminosité naturelle et une efficacité énergétique maîtrisée.
SO'9 HABITAT c'est concevoir votre maison sur mesure!!
Contactez moi au (Numéro supprimé)
Florent DELMOND
Logement susceptibles de vous intéresser
Nous vous proposons de découvrir aussi cette sélection de logements situés à moins de 10km de Mérignac et qui seraient susceptibles de vous intéresser.
Mérignac
TERRAINExclusivité CABINET BEDIN – MERIGNAC ARLAC MERIGNAC SAINT AUGUSTIN. Terrain à bâtir pour une maison individuelle avec une belle profondeur. Libre de tout constructeur, ce terrain dispose d’un droit à construire de 40 %. Environnement proche des commodités dont le Tramway. A vos projets ! Contactez-nous au (Numéro supprimé) ou au (Numéro supprimé). Les informations sur les risques auxquels ce bien est exposé sont disponibles sur le site Géorisques : www. georisques. gouv. fr.
Mérignac
TERRAIN ET MAISONCette maison incarne l’alliance subtile du design contemporain et du confort durable. Son architecture élégante et ses volumes généreux offrent un cadre de vie harmonieux, pensé pour répondre aux exigences du quotidien tout en privilégiant la sérénité.Rez-de-chaussée :Garage intégré avec accès direct à la maison,Superbe pièce de vie baignée de lumière, prolongée par une cuisine ouverte conviviale,Cellier fonctionnel attenant à la cuisine,WC indépendant.Étage :Trois chambres avec placardsSalle de bains raffinée,WC séparé.Grâce à une conception soignée et à des prestations de qualité, elle offre un confort de vie optimal, une luminosité naturelle et une efficacité énergétique maîtrisée.SO’9 HABITAT c’est concevoir votre maison sur mesure!!Contactez moi au (Numéro supprimé)Florent DELMOND
Saint-Médard-en-Jalles
TERRAINTerrain de 485 m² à vendre à Saint-Médard-en-Jalles (corbiac)QUARTIER RECHERCHÉÀ 20 km de la côte atlantique à Saint-Médard-en-Jalles (33160), terrain de 485 m². Dans un secteur recherché, le terrain niché dans un quartier prisé est proche des écoles et des commerces. L’École Élementaire Michel Montaigne, le Collège François Mauriac, l’École Maternelle Montaigne et le Lycée Professionnel Jehan Duperier se trouvent à moins de 10 minutes à pied, tout comme une crèche. Niveau transports en commun, il y a quatre gares à moins de 10 minutes en voiture. L’autoroute A630 est accessible à 6 km. On trouve des commerces, des boulangeries, une boucherie-charcuterie, un bureau de poste et une poissonnerie dans les environs. Le marché Place de la république anime les environs chaque samedi matin.Il est à vendre pour la somme de 230 000 €. Contactez notre agence (Clément JARROUSSIE : (Numéro supprimé)) pour toute question sur ce terrain. Maisons de la Côte Atlantique Saint-Médard-en-Jalles vous accompagne dans toutes vos démarches et dans tous vos projets immobiliers.
Saint-Médard-en-Jalles
TERRAINTerrain viabilisé de 457 m² en vente à Saint-Médard-en-JallesIDÉALEMENT SITUÉÀ Saint-Médard-en-Jalles (33160) à 20 km de l’océan Atlantique, projetez la maison de vos rêves sur ce terrain de 457 m². Dans un quartier prisé, le terrain idéalement situé est proche des écoles et des commerces. Il y a l’École Élementaire Michel Montaigne, le Collège François Mauriac, l’École Maternelle Montaigne et le Lycée Professionnel Jehan Duperier à moins de 10 minutes à pied et une structure d’accueil pour les enfants en bas âge. Niveau transports en commun, on trouve quatre gares à moins de 10 minutes en voiture. On trouve un accès à l’autoroute A630 à 6 km. Il y a des commerces, des boulangeries, un bureau de poste, deux épiceries et une poissonnerie dans les environs. Ne manquez pas le marché Place de la république tous les samedis matin.Il est proposé à l’achat pour 215 000 €. N’hésitez pas à prendre contact avec notre agence (JARROUSSIE Clément : (Numéro supprimé)) pour tout renseignement sur ce terrain. Maisons de la Côte Atlantique Saint-Médard-en-Jalles est là pour vous accompagner dans toutes vos démarches.
Saint-Médard-en-Jalles
TERRAIN ET MAISONMaison F4 (85 m²) en vente à Saint-Médard-en-JallesIDÉALEMENT SITUÉE – MAISON 4 PIÈCES NEUVEÀ 20 km de l’océan Atlantique, nous vous présentons à vendre, idéalement située dans Saint-Médard-en-Jalles (33160), cette maison de 4 pièces de plain-pied de 85 m² et de 457 m² de terrain viabilisé. Conçue de plain-pied, elle dispose de trois chambres, d’une cuisine et d’une salle de bains.La maison est neuve.Cette maison se trouve dans un secteur convoité. Il y a l’École Élementaire Michel Montaigne, le Collège François Mauriac, l’École Maternelle Montaigne et le Lycée Professionnel Jehan Duperier à moins de 10 minutes à pied et une crèche. Côté transports, on trouve quatre gares à moins de 10 minutes en voiture. Il y a un accès à l’autoroute A630 à 6 km. Il y a des commerces, des boulangeries, une boucherie-charcuterie, deux épiceries et une poissonnerie dans les environs. Enfin, le marché Place de la république anime le quartier chaque samedi matin.Elle est à vendre pour la somme de 355 905 €.Contactez Clément JARROUSSIE (tél : (Numéro supprimé)) pour plus de renseignements sur le bien. Maisons de la Côte Atlantique Saint-Médard-en-Jalles vous accompagne dans toutes vos démarches et dans tous vos projets immobiliers.
Saint-Médard-en-Jalles
TERRAIN ET MAISONSaint-Médard-en-Jalles : maison T4 (90 m²) à vendreIDÉALEMENT SITUÉE – MAISON 4 PIÈCES NEUVEÀ 20 km de l’océan Atlantique, votre agence Maisons de la Côte Atlantique Saint-Médard-en-Jalles est ravie de vous proposer cette maison de 4 pièces de plain-pied de 90 m² et de 457 m² de terrain viabilisé idéalement située dans Saint-Médard-en-Jalles (33160).Conçue de plain-pied, elle compte trois chambres, une cuisine et une salle de bains. La maison est neuve.La maison est située dans un secteur convoité. L’École Élementaire Michel Montaigne, le Collège François Mauriac, l’École Maternelle Montaigne et le Lycée Professionnel Jehan Duperier sont implantés à moins de 10 minutes à pied, tout comme une crèche. Côté transports en commun, il y a quatre gares à moins de 10 minutes en voiture. On trouve un accès à l’autoroute A630 à 6 km. On trouve des commerces, des boulangeries, une boucherie-charcuterie, un bureau de poste et deux épiceries dans les environs. Le marché Place de la république anime les environs tous les samedis matin.Son prix de vente est de 347 000 €.N’hésitez pas à prendre contact avec notre agence (JARROUSSIE Clément : (Numéro supprimé)) pour toute information sur la maison ou sur les modalités de vente. Maisons de la Côte Atlantique Saint-Médard-en-Jalles est là pour vous accompagner dans toutes vos démarches.
Saint-Médard-en-Jalles
TERRAIN ET MAISONMaison de 5 pièces (100 m²) à vendre à Saint-Médard-en-JallesIDÉALEMENT SITUÉE – MAISON 5 PIÈCES NEUVEEn vente : à 20 km de l’océan Atlantique, nous vous proposons cette maison de 5 pièces de plain-pied de 100 m², idéalement située dans Saint-Médard-en-Jalles (33160).Elle compte quatre chambres, une cuisine et deux salles de bains. La maison est neuve.Le terrain viabilisé de la propriété est de 457 m².Cette maison se trouve dans un quartier prisé. L’École Élementaire Michel Montaigne, le Collège François Mauriac, l’École Maternelle Montaigne et le Lycée Professionnel Jehan Duperier sont implantés à moins de 10 minutes à pied, tout comme une crèche. Niveau transports, on trouve quatre gares à moins de 10 minutes en voiture. L’autoroute A630 est accessible à 6 km. Il y a des commerces, des boulangeries, deux épiceries, un bureau de poste et une poissonnerie à proximité. Enfin, le marché Place de la république a lieu tous les samedis matin.Elle est proposée à l’achat pour 361 905 €.Contactez notre agence (Clément JARROUSSIE : (Numéro supprimé)) pour toute information sur la propriété ou sur les démarches à suivre. Maisons de la Côte Atlantique Saint-Médard-en-Jalles vous accompagne dans tous vos projets immobiliers et à toutes les étapes de votre projet.
Saint-Médard-en-Jalles
TERRAIN ET MAISONMaison de 3 pièces (49 m²) à vendre à Saint-Médard-en-JallesIDÉALEMENT SITUÉE – MAISON 3 PIÈCES NEUVEEn vente à 20 km de l’océan Atlantique, idéalement située dans Saint-Médard-en-Jalles (33160), nous vous proposons cette maison de 3 pièces de plain-pied de 49 m². Son intérieur propose trois chambres, une cuisine et deux salles de bains.Le terrain viabilisé de la propriété est de 457 m².La maison est neuve.La maison se trouve dans un secteur recherché. Il y a l’École Élementaire Michel Montaigne, le Collège François Mauriac, l’École Maternelle Montaigne et le Lycée Professionnel Jehan Duperier à moins de 10 minutes à pied et une crèche. Niveau transports en commun, on trouve quatre gares à moins de 10 minutes en voiture. On trouve un accès à l’autoroute A630 à 6 km. Il y a des commerces, des boulangeries, deux épiceries, une poissonnerie et un bureau de poste à quelques minutes. Le marché Place de la république a lieu tous les samedis matin.Son prix de vente est de 321 933 €.Contactez Clément JARROUSSIE (tél : (Numéro supprimé)) pour obtenir de plus amples renseignements sur la maison ou sur les modalités de vente. Faites de vos projets immobiliers une réalité avec Maisons de la Côte Atlantique Saint-Médard-en-Jalles.
Eysines
TERRAIN ET MAISONVENTE d’une maison de 5 pièces (98 m²) à EysinesQUARTIER RECHERCHÉ – MAISON 5 PIÈCES NEUVE dans un quartier convoité d’Eysines (33320), nous sommes heureux de vous proposer cette maison de 5 pièces de 98 m². Son intérieur offre quatre chambres, une cuisine et une salle de bains.Le terrain du bien est de 1 100 m².Il s’agit d’une maison de 2 niveaux. Elle est neuve.Cette maison se situe dans un secteur attractif. L’École Maternelle Raoul Dejean, l’École Élémentaire René Girol, le Collège Albert Camus et l’École Primaire Publique Pôle Éducatif se trouvent à moins de 10 minutes à pied, tout comme deux crèches. Niveau transports, il y a huit gares à moins de 10 minutes en voiture. L’autoroute A630 est accessible à 2 km. On trouve une bibliothèque, des commerces, deux supermarchés, deux boulangeries, un bureau de poste et deux boucheries-charcuteries à quelques minutes.Elle est à vendre pour la somme de 498 000 €.Prenez contact avec notre agence (BOLZER Laurent : (Numéro supprimé)) pour toute question sur la maison, sur les démarches à suivre et sur les modalités de vente. Maisons de la Côte Atlantique Biganos est là pour vous accompagner à toutes les étapes de l’achat.
L’actualité immobilière à Mérignac
27/11/2023
02/11/2023
30/10/2023
20/10/2023
16/10/2023
16/10/2023