Maison à construire à Mios (33380)
Images
Description
Dans un lotissement prisé et sécurisé, profitez de ce terrain viabilisé de 942 m² pour réaliser votre projet de vie dans le cadre d'un projet avec Alpha Constructions.
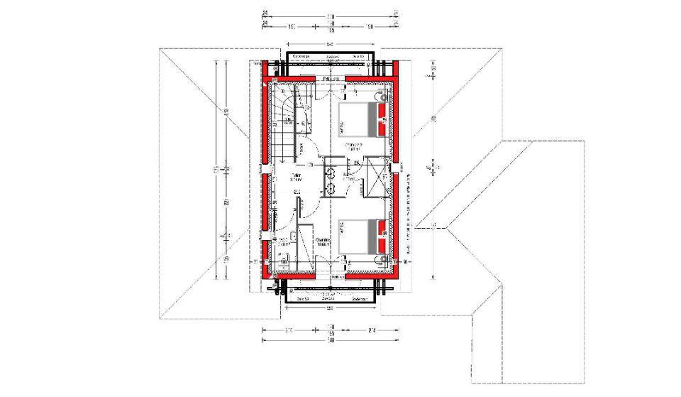
Ce projet comprend une maison moderne de 115 m², conçue pour allier confort, fonctionnalité et prestations haut de gamme. La maison se compose d'une pièce de vie lumineuse et spacieuse, ouverte sur le jardin, idéale pour partager des moments conviviaux en famille. La cuisine moderne et fonctionnelle, accompagnée d'un cellier pratique, optimise votre quotidien.
La partie nuit comprend trois chambres généreuses, dont une suite parentale avec salle d'eau privative, un bureau fonctionnel et une salle de bains commune, offrant intimité et confort à toute la famille. Chaque espace a été pensé pour optimiser circulation, luminosité et confort, avec de nombreuses possibilités de personnalisation : aménagement intérieur sur mesure, choix des matériaux et finitions, création d'une terrasse ou d'un carport selon vos envies.
Implantée dans un cadre résidentiel verdoyant et calme, cette maison bénéficie de la proximité immédiate des écoles, commerces et services, combinant tranquillité et praticité au quotidien. C'est une opportunité rare pour bâtir une maison familiale élégante et personnalisée dans un environnement de vie exceptionnel.
Projet proposé hors frais de notaire et frais annexes.
Contactez dès maintenant votre chargé de projet, Christophe CHARON, au (Numéro supprimé).
Logement susceptibles de vous intéresser
Nous vous proposons de découvrir aussi cette sélection de logements situés à moins de 10km de Mios et qui seraient susceptibles de vous intéresser.
Mios
TERRAIN ET MAISONMaison T4 (114 m²) à vendre à MiosQUARTIER RECHERCHÉ – MAISON 4 PIÈCES NEUVEÀ vendre : à 14 km de la côte atlantique et à quelques kilomètres de Mérignac, située dans un secteur convoité de Mios (33380), notre agence Maisons de la Côte Atlantique Le Barp est heureuse de vous proposer cette maison de 4 pièces de plain-pied de 114 m². Elle inclut trois chambres, une cuisine et une salle de bains.Le terrain de la maison est de 800 m².La maison est neuve.Cette maison est située dans un quartier recherché. L’École Maternelle la Fauvette Pitchou, l’École Élementaire les Ecureuils, l’École Secondaire Privée Montessori Bordeaux Mios, l’École Primaire Privée Montessori Mios Campus et le Collège Montessori Bordeaux Mios se trouvent à moins de 10 minutes à pied. Côté transports, il y a deux gares (Biganos Facture et Le Teich) à moins de 10 minutes en voiture. Les autoroutes A660 et A63 sont accessibles à moins de 8 km. On trouve un tennis, deux boulangeries, des commerces, une boucherie-charcuterie et un bureau de poste à quelques minutes.Elle est à vendre pour la somme de 355 130 €.Contactez notre agence (TEXIER Romain : (Numéro supprimé)) pour plus de renseignements sur le bien.
Salles
TERRAINVENTE : terrain de 768 m² à Salles non viabilisé.QUARTIER RECHERCHÉEn vente à 21 km de la côte atlantique à Salles (33770), grand terrain. Réalisez-y votre projet de construction. Il donne sur un espace vert. Dans un quartier recherché, ce terrain situé dans un secteur attractif est proche des commerces et des écoles. Des écoles de tous niveaux sont implantées à moins de 10 minutes en voiture, tout comme une crèche à moins de 10 minutes à pied. Il y a un accès à l’autoroute A63 à 7 km. Il y a deux bibliothèques, trois tennis, des commerces, trois supermarchés, des boulangeries, des boucheries-charcuteries et trois épiceries dans les environs. Le marché Place du champ de foire anime les environs.Son prix de vente est de 135 000 €. Contactez notre agence (Romain TEXIER : (Numéro supprimé)) pour toute information sur le terrain ou sur les modalités de vente. Concrétisez vos projets immobiliers avec Maisons de la Côte Atlantique Le Barp.
Salles
TERRAIN ET MAISONSalles : maison de 5 pièces (90 m²) à vendreQUARTIER RECHERCHÉ – MAISON 5 PIÈCES NEUVEEn vente à 21 km de l’océan Atlantique, notre agence Maisons de la Côte Atlantique Le Barp est heureuse de vous proposer cette maison de 5 pièces de plain-pied de 90 m² et de 768 m² de terrain construite dans un quartier convoité de Salles (33770). Elle compte quatre chambres, une cuisine et une salle de bains.La maison est neuve.Cette maison est située dans un secteur attractif. Des établissements scolaires de tous types (de la maternelle au lycée) sont implantés à moins de 10 minutes en voiture, tout comme une structure d’accueil pour les tout-petits à moins de 10 minutes à pied. On trouve un accès à l’autoroute A63 à 7 km. Il y a deux bibliothèques, trois tennis, des commerces, trois supermarchés, des boulangeries, trois épiceries et deux bureaux de poste à proximité. Enfin, le marché Place du champ de foire anime le quartier.Elle est proposée à l’achat pour 263 110 €.Contactez Romain TEXIER (tél : (Numéro supprimé)) pour plus de renseignements sur la maison, sur les modalités de vente ou sur les démarches à suivre. Maisons de la Côte Atlantique Le Barp vous accompagne dans tous vos projets immobiliers et à toutes les étapes de votre projet.
Salles
TERRAIN ET MAISONSalles : maison de 4 pièces (80 m²) à vendreQUARTIER RECHERCHÉ – MAISON 4 PIÈCES NEUVEÀ 21 km de la côte atlantique, à vendre dans un quartier prisé de Salles (33770), laissez vous charmer par cette maison de 4 pièces de plain-pied de 80 m². Conçue de plain-pied, elle est composée de trois chambres, d’une cuisine et d’une salle de bains.Le terrain de la propriété est de 768 m².La maison est neuve.La maison se situe dans un secteur attractif. Des établissements scolaires de tous types se trouvent à moins de 10 minutes en voiture, tout comme une crèche à moins de 10 minutes à pied. Il y a un accès à l’autoroute A63 à 7 km. Il y a deux bibliothèques, trois tennis, des commerces, trois supermarchés, des boulangeries, trois épiceries et des boucheries-charcuteries à quelques minutes. Enfin, le marché Place du champ de foire anime les environs.Elle est proposée à l’achat pour 245 530 €.Contactez notre agence (TEXIER Romain : (Numéro supprimé)) pour obtenir de plus amples informations sur la maison.
Salles
TERRAIN ET MAISONVENTE : maison F4 (85 m²) à SallesQUARTIER RECHERCHÉ – MAISON 4 PIÈCES NEUVEÀ vendre : à 21 km de l’océan Atlantique, notre agence Maisons de la Côte Atlantique Le Barp est ravie de vous présenter cette maison de 4 pièces de plain-pied de 85 m² située dans un secteur recherché de Salles (33770).Son intérieur comporte trois chambres, une cuisine et une salle de bains. Cette maison est neuve.Le terrain de la propriété est de 768 m².Le bien se trouve dans un quartier attractif. Tous les types d’établissements scolaires (de la maternelle au lycée) sont implantés à moins de 10 minutes en voiture, tout comme une crèche à moins de 10 minutes à pied. L’autoroute A63 est accessible à 7 km. Il y a deux bibliothèques, trois tennis, des commerces, trois supermarchés, des boulangeries, des boucheries-charcuteries et deux bureaux de poste à proximité du bien. Enfin, le marché Place du champ de foire anime le quartier.Il est à vendre pour la somme de 261 300 €.Contactez Romain TEXIER ((Numéro supprimé)) pour toute question sur la maison.
Salles
TERRAIN ET MAISONMaison T4 (90 m²) à vendre à SallesQUARTIER RECHERCHÉ – MAISON 4 PIÈCES NEUVEEn vente : à 21 km de l’océan Atlantique, nous sommes heureux de vous présenter cette maison de 4 pièces de plain-pied de 90 m² dans un quartier convoité de Salles (33770). Elle offre trois chambres, une cuisine et une salle de bains.Le terrain de la propriété est de 768 m².Cette maison est neuve.La maison se trouve dans un secteur recherché. Il y a des établissements scolaires de tous niveaux (de la maternelle au lycée) à moins de 10 minutes en voiture, tout comme une structure d’accueil pour les enfants en bas âge à moins de 10 minutes à pied. On trouve un accès à l’autoroute A63 à 7 km. On trouve deux bibliothèques, trois tennis, des commerces, trois supermarchés, des boulangeries, deux bureaux de poste et des boucheries-charcuteries à quelques minutes à peine. Enfin, le marché Place du champ de foire anime le quartier.Elle est proposée à l’achat pour 256 650 €.Contactez Romain TEXIER ((Numéro supprimé)) pour plus de renseignements sur le bien et sur les modalités de vente. Faites de vos projets immobiliers une réalité avec Maisons de la Côte Atlantique Le Barp.
Salles
TERRAIN ET MAISONVENTE d’une maison T4 (80 m²) à SallesQUARTIER RECHERCHÉ – MAISON 4 PIÈCES NEUVEEn vente : située à 21 km de la côte atlantique, nous sommes heureux de vous proposer cette maison de 4 pièces de plain-pied de 80 m² dans un quartier attractif de Salles (33770).Elle inclut trois chambres, une cuisine et une salle de bains. Cette maison est neuve.Le terrain du bien s’étend sur 768 m².La maison se trouve dans un secteur prisé. Des écoles (de la maternelle au lycée) sont implantées à moins de 10 minutes en voiture, tout comme une structure d’accueil pour la petite enfance à moins de 10 minutes à pied. Il y a un accès à l’autoroute A63 à 7 km. Il y a deux bibliothèques, trois tennis, des commerces, trois supermarchés, des boulangeries, trois épiceries et des boucheries-charcuteries dans les environs. Enfin, le marché Place du champ de foire anime le quartier.Elle est à vendre pour la somme de 254 650 €.Contactez Romain TEXIER (tél : (Numéro supprimé)) pour toute question sur la maison et sur les démarches à suivre.
Salles
TERRAIN ET MAISONVENTE d’une maison de 6 pièces (100 m²) à SallesQUARTIER RECHERCHÉ – MAISON 6 PIÈCES NEUVEÀ vendre à 21 km de la côte atlantique, nous sommes ravis de vous présenter cette maison de 6 pièces de plain-pied de 100 m², construite dans un quartier prisé de Salles (33770).Son intérieur se divise en trois chambres, une cuisine et deux salles de bains. La maison est neuve.Le terrain de la propriété s’étend sur 768 m².Cette maison est située dans un secteur convoité. Il y a tous les types d’écoles (de la maternelle au lycée) à moins de 10 minutes en voiture, tout comme une structure d’accueil pour les enfants en bas âge à moins de 10 minutes à pied. L’autoroute A63 est accessible à 7 km. On trouve deux bibliothèques, trois tennis, des commerces, trois supermarchés, des boulangeries, trois épiceries et des boucheries-charcuteries dans les environs. Le marché Place du champ de foire anime les environs.Son prix de vente est de 297 940 €.Contactez notre agence (Romain TEXIER : (Numéro supprimé)) pour toute information sur le bien, sur les démarches à suivre ou sur les modalités de vente. Maisons de la Côte Atlantique Le Barp vous accompagne dans tous vos projets immobiliers et dans toutes vos démarches.
Salles
TERRAIN ET MAISONVENTE d’une maison T6 (115 m²) à SallesQUARTIER RECHERCHÉ – MAISON 6 PIÈCES NEUVEEn vente : à 21 km de l’océan Atlantique, construite dans un quartier recherché de Salles (33770), votre agence Maisons de la Côte Atlantique Le Barp est ravie de vous présenter cette maison de 6 pièces de plain-pied de 115 m². Son intérieur dispose de trois chambres, d’une cuisine et de deux salles de bains.Le terrain du bien est de 768 m².Cette maison est neuve.La maison se situe dans un secteur prisé. Des écoles du primaire et du secondaire sont implantées à moins de 10 minutes en voiture, tout comme une crèche à moins de 10 minutes à pied. On trouve un accès à l’autoroute A63 à 7 km. On trouve deux bibliothèques, trois tennis, des commerces, trois supermarchés, des boulangeries, trois épiceries et des boucheries-charcuteries à quelques minutes à peine. Le marché Place du champ de foire anime le quartier.Elle est à vendre pour la somme de 314 650 €.Contactez Romain TEXIER (tél : (Numéro supprimé)) pour toute question sur la maison. Maisons de la Côte Atlantique Le Barp vous accompagne dans tous vos projets immobiliers et dans toutes vos démarches.
L’actualité immobilière à Mios
27/11/2023
02/11/2023
30/10/2023
20/10/2023
16/10/2023
16/10/2023