Terrain à vendre

Maison à construire à Mios (33380)

371000 €
100 m²
Mios
Gironde (33)
TERRAIN ET MAISON
Réf externe: 3560791
Annonce publiée le 7 novembre 2025

Images

Description

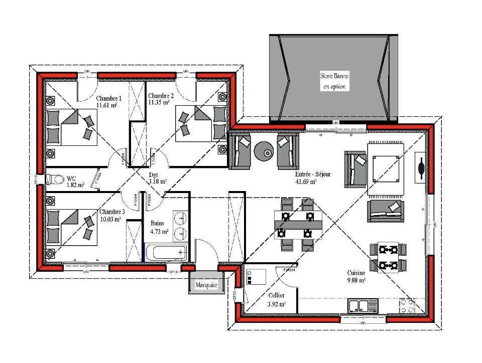
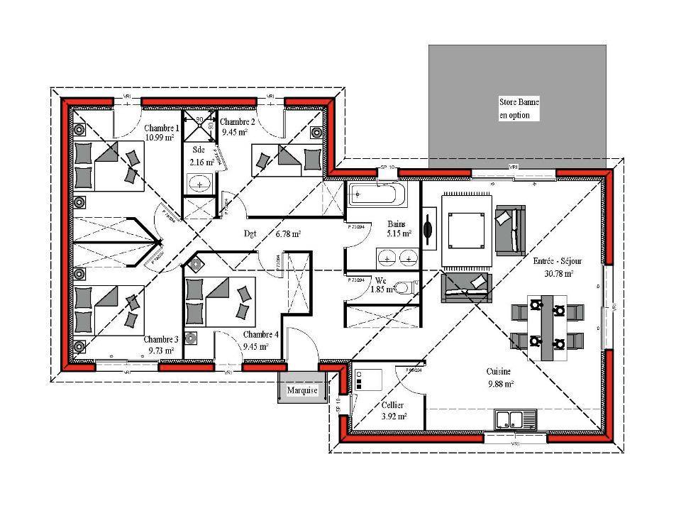
VENTE : maison de 4 pièces (100 m²) à Mios
MAISON 4 PIÈCES NEUVE - PROCHE BASSIN D'ARCACHON
À vendre à 14 km de l'océan Atlantique et à quelques kilomètres de Mérignac, votre agence Batisoft La Teste-de-Buch est ravie de vous présenter cette maison de 4 pièces de plain-pied de 100 m² à Mios (33380).
Son intérieur est composé de quatre chambres, d'une cuisine et de deux salles de bains. La maison est neuve.
Le terrain de la propriété est de 735 m².
Il y a l'École Maternelle la Fauvette Pitchou, l'École Élementaire les Ecureuils, l'École Secondaire Privée Montessori Bordeaux Mios, l'École Primaire Privée Montessori Mios Campus et le Collège Montessori Bordeaux Mios à moins de 10 minutes à pied. Côté transports en commun, on trouve deux gares (Biganos Facture et Le Teich) à moins de 10 minutes en voiture. Les autoroutes A660 et A63 sont accessibles à moins de 8 km. Il y a un tennis, deux boulangeries, des commerces, un bureau de poste et une boucherie-charcuterie à proximité.
Son prix de vente est de 377 000 €.
N'hésitez pas à prendre contact avec Laurent CHAMPEIL ((Numéro supprimé)) pour plus d'informations sur cette propriété. Batisoft La Teste-de-Buch vous accompagne dans toutes vos démarches et à toutes les étapes de l'achat.

CONTACTER

Logement susceptibles de vous intéresser

L’actualité immobilière à Mios

Image du post Pourquoi acheter un terrain en lotissement ? 27/11/2023
Lire l’article
Pourquoi acheter un terrain en lotissement ?
Image du post Vendre son terrain à un promoteur : comment procéder ? 02/11/2023
Lire l’article
Vendre son terrain à un promoteur : comment procéder ?
Image du post Diviser le terrain de sa maison pour le vendre : pourquoi et comment ? 30/10/2023
Lire l’article
Diviser le terrain de sa maison pour le vendre : pourquoi et comment ?
Image du post Acheter un terrain viabilisé : quels avantages ? 20/10/2023
Lire l’article
Acheter un terrain viabilisé : quels avantages ?
Image du post Les 7 étapes incontournables pour bien vendre votre terrain constructible 16/10/2023
Lire l’article
Les 7 étapes incontournables pour bien vendre votre terrain constructible
Image du post 5 points clés à vérifier pour l’achat d’un terrain constructible  16/10/2023
Lire l’article
5 points clés à vérifier pour l’achat d’un terrain constructible