Maison à construire à Pessac (33600)
Images
Description
Maison à construire à PESSAC (33600)
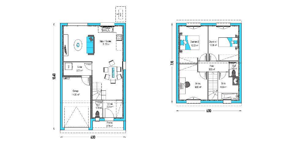
Sur la commune de Pessac, à proximité des commerces, des écoles et du centre ville, découvrez ce projet de construction d'une maison contemporaine à étage d'environ 80m² habitable avec garage attenant.
Implantée sur un terrain de 620m², elle offre une pièce de vie spacieuse et lumineuse ouverte sur un jardin, parfait pour accueillir famille et amis. L'espace nuit à l'étage se compose de trois chambres confortables et d'une salle de bains fonctionnelle.
Conçue pour allier confort, luminosité et performance énergétique, cette maison répond aux standards actuels de construction et d'isolation.
Un projet harmonieux et clé en main, idéal pour une famille souhaitant s'installer à Pessac et profiter d'un cadre de vie agréable, entre ville et tranquillité.
Les avantages du neuf :
✅ Maison 100 % personnalisée selon vos goûts et vos besoins
✅ Performances énergétiques optimales pour un confort durable et des économies au quotidien
✅ Entretien minimal et garanties constructeur
Contact : SO'9 HABITAT - Florent DELMOND (Numéro supprimé)
Logement susceptibles de vous intéresser
Nous vous proposons de découvrir aussi cette sélection de logements situés à moins de 10km de Pessac et qui seraient susceptibles de vous intéresser.
Mérignac
TERRAINA VENDRE TERRAIN CONSTRUCTIBLE D’ENVIRON 455M2 QUARTIER BEUTRE 33700 MÉRIGNACBelles possibilités de construction ! Parcelle attenante en vente également, plus d’information par téléphone.Votre conseiller HK HomeKare : Samantha GAUTHURONAgent commercial (Entreprise individuelle).HK HomeKare immobilier : VENTE – LOCATION – GESTION – SYNDIC
Pessac
TERRAINPESSACSO’9 HABITAT-LE BOUSCAT vous propose à la vente un terrain constructible de 620 m², situé à quelques minutes du centre ville.Parcelle offrant de nombreuses possibilités de construction et à proximité immédiate des commerces, écoles, transports et des axes routiers principauxAvec So’9 Habitat, bénéficiez d’un accompagnement sur mesure pour personnaliser votre maison selon vos envies.contactez des à présent votre chargé de projets:Florent DELMOND(Numéro supprimé)
Pessac
TERRAIN ET MAISONMaison à construire à PESSAC (33600)Découvrez cette belle maison neuve de 120 m², alliant design contemporain et prestations de qualité, conçue pour offrir un cadre de vie agréable et fonctionnel.Caractéristiques principales :Surface habitable : 120 m²4 chambres, dont 1 suite parentale avec salle d’eau et dressingPièce de vie lumineuse avec grandes baies vitrées ouvrant sur le jardinCuisine ouverte sur séjour (aménagée ou à personnaliser selon projet)Salle de bain familiale + WC séparésGarage attenant et espace buanderieChauffage performant et conforme aux dernières normes énergétiques (RE 2020)Atouts du bien :✅ Construction neuve – personnalisation possible des finitions✅ Frais de notaire réduits✅ Garanties constructeur (décennale, dommage-ouvrage, parfait achèvement)✅ Excellente isolation thermique et phonique✅ Espaces optimisés et belle luminosité naturelleIdéale pour : une famille recherchant un bien moderne, économe en énergie et prêt à vivre, dans un cadre résidentiel paisible.Contactez votre chargé de projets SO’9 HABITAT(Numéro supprimé)
Pessac
TERRAIN ET MAISONMaison à construire à Pessac (33600)Découvrez cette charmante maison à étage d’environ 134 m² avec garage, idéalement agencée pour offrir confort et luminosité. Cette maison est implantée sur un terrain de 620m².Au rez-de-chaussée, vous profiterez d’une grande pièce de vie spacieuse et lumineuse, ouverte sur le jardin exposé plein sud, parfait pour les moments en famille ou entre amis. Une suite parentale complète ce niveau, offrant indépendance et confort.À l’étage, vous trouverez deux belles chambres, un bureau idéal pour le télétravail ou les études, ainsi qu’une deuxième salle d’eau.La maison dispose également d’un garage et de nombreux rangements.En résumé :Surface : env. 134 m²Grande pièce de vie ouverte sur jardin plein sudSuite parentale en rez-de-chaussée2 chambres + 1 bureau à l’étage2 salles d’eauGarageUn bien fonctionnel et agréable, parfait pour une famille à la recherche d’un cadre de vie paisible et lumineux.SO’9 HABITAT c’est concevoir votre maison sur mesure!!Contactez moi au (Numéro supprimé)Florent DELMOND
Pessac
TERRAIN ET MAISONMaison à construire à PESSAC (33600)Sur la commune de Pessac, à proximité des commerces, des écoles et du centre ville, découvrez ce projet de construction d’une maison contemporaine à étage d’environ 80m² habitable avec garage attenant.Implantée sur un terrain de 620m², elle offre une pièce de vie spacieuse et lumineuse ouverte sur un jardin, parfait pour accueillir famille et amis. L’espace nuit à l’étage se compose de trois chambres confortables et d’une salle de bains fonctionnelle.Conçue pour allier confort, luminosité et performance énergétique, cette maison répond aux standards actuels de construction et d’isolation.Un projet harmonieux et clé en main, idéal pour une famille souhaitant s’installer à Pessac et profiter d’un cadre de vie agréable, entre ville et tranquillité.Les avantages du neuf :✅ Maison 100 % personnalisée selon vos goûts et vos besoins✅ Performances énergétiques optimales pour un confort durable et des économies au quotidien✅ Entretien minimal et garanties constructeur Contact : SO’9 HABITAT – Florent DELMOND (Numéro supprimé)
Mérignac
TERRAINVENTE d’un terrain de 222 m² à MérignacCENTRE-VILLEÀ 17 km de la côte atlantique à Mérignac (33700), terrain de 222 m². Il est prêt à accueillir votre résidence principale ou secondaire pour toute la famille. Il profite d’une vue sur rue et bénéficie d’une exposition sud-ouest. En centre-ville, ce terrain est proche des écoles et des commerces. Il y a l’École Primaire Ferdinand Buisson à moins de 10 minutes à pied et deux crèches. Côté transports en commun, on trouve six gares à moins de 10 minutes en voiture. L’autoroute A630 est accessible à 1 km. Il y a un tennis, une bibliothèque, de nombreux commerces et une épicerie dans les environs.Il est à vendre pour la somme de 205 000 €. N’hésitez pas à prendre contact avec Jocelyn MAURAS (tél : (Numéro supprimé)) pour obtenir de plus amples renseignements sur le terrain. Donnez vie à vos projets immobiliers avec Maisons de la Côte Atlantique Bordeaux.
Mérignac
TERRAIN ET MAISONVENTE : maison F4 (90 m²) à MérignacCENTRE-VILLE – MAISON 4 PIÈCES NEUVEÀ vendre : à 17 km de l’océan Atlantique, nous sommes heureux de vous proposer cette maison de 4 pièces de plain-pied de 90 m², dans le centre-ville de Mérignac (33700). Elle propose trois chambres, une cuisine et une salle de bains.Le terrain du bien s’étend sur 222 m².Cette maison est neuve.Il y a l’École Primaire Ferdinand Buisson à moins de 10 minutes à pied et deux crèches. Niveau transports en commun, on trouve six gares à moins de 10 minutes en voiture. Il y a un accès à l’autoroute A630 à 1 km. Il y a un tennis, une bibliothèque, de nombreux commerces et une épicerie à proximité du logement.Elle est à vendre pour la somme de 348 400 €.Contactez notre agence (MAURAS Jocelyn : (Numéro supprimé)) pour obtenir de plus amples informations sur la maison. Concrétisez vos projets immobiliers avec Maisons de la Côte Atlantique Bordeaux.
Villenave-d'Ornon
TERRAINChatGPT a dit :À vendre à Villenave d’Ornon, magnifique terrain constructible viabilisé de 330 m², idéalement situé dans un quartier calme et recherché, proche des commerces, écoles et transports. Parfait pour réaliser votre maison dans un cadre de vie agréable, à deux pas de Bordeaux. // Réf. : T210984. Prix terrain : 216 000 €, hors frais d'agence et de notaire à la charge de l'acquéreur. Ce terrain vous est proposé, par nos partenaires fonciers, dans le cadre d'un projet de construction avec nous. Les informations sur les risques auxquels ce bien est exposé sont disponibles sur le site Géorisques (www.georisques.gouv.fr).
Villenave-d'Ornon
TERRAIN ET MAISONChatGPT a dit :À vendre à Villenave d’Ornon, magnifique terrain constructible viabilisé de 330 m², idéalement situé dans un quartier calme et recherché, proche des commerces, écoles et transports. Parfait pour réaliser votre maison dans un cadre de vie agréable, à deux pas de Bordeaux. Une maison spacieuse et fonctionnelle, idéale pour toute la famille ! Avec son grand espace de vie lumineux, cette maison allie confort et convivialité. Le rez-de-chaussée accueille un salon, une salle à manger et une cuisine ouverte, accompagnés d’un cellier pratique, d’une salle d’eau et d’un WC indépendant. Une chambre supplémentaire offre flexibilité et confort. À l’étage, trois chambres généreuses, une salle de bain moderne et un second WC garantissent bien-être et praticité au quotidien. Un design moderne et optimisé pour un cadre de vie agréable !. Pour vous assurer un confort de vie optimal et en conformité avec la RE2025, nous avons opté pour un système de chauffage par pompe à chaleur (PAC) avec plancher chauffant au rez-de-chaussée et radiateurs à l’étage. Le logement est également équipé de volets roulants électriques. Prix hors fourniture et pose : des appareils sanitaires (sauf système de chauffage et d'eau chaude sanitaire), du carrelage et de la faïence, des revêtements de sol dans les chambres. Hors décoration et aménagement intérieur et peinture. Hors raccordements, frais de notaire et dommage ouvrage. // Réf. : 2533-210984-JEW. Prix terrain : 216 000 €, hors frais d'agence à la charge de l'acquéreur. Ce terrain vous est proposé, par nos partenaires fonciers, dans le cadre d'un projet de construction avec nous. Les informations sur les risques auxquels ce bien est exposé sont disponibles sur le site Géorisques (www.georisques.gouv.fr). Prix maison : 166 483 €.
L’actualité immobilière à Pessac
27/11/2023
02/11/2023
30/10/2023
20/10/2023
16/10/2023
16/10/2023