Maison à construire à Pessac (33600)
Images
Description
Faites construire votre future maison à Pessac !
Choisissez So'9 Habitat pour vous accompagner dans votre projet, trouver le terrain adapté et concevoir une maison sur mesure.
Nous sélectionnons et validons des opportunités foncières sur le secteur.
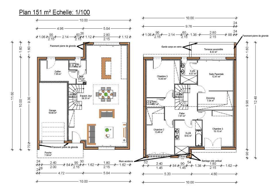
Par exemple projetez-vous dans cette maison de 150m2 secteur Jules Ferry, en première ligne et bénéficiez de prestations de qualité pour profiter de vos moments de vie les plus précieux.
Contactez-nous pour une étude personnalisée de votre projet et la présentation de cette belle opportunité.
À bientôt,
L'équipe So'9 Habitat
So'9 Habitat Bordeaux
201 rue Georges Bonnac
33000 Bordeaux
Annonce proposée par un Agent Commercial Partenaire.
Logement susceptibles de vous intéresser
Nous vous proposons de découvrir aussi cette sélection de logements situés à moins de 10km de Pessac et qui seraient susceptibles de vous intéresser.
Cestas
TERRAIN ET MAISONVENTE d’une maison T4 (101 m²) à CestasPROCHE DE BORDEAUX – MAISON 4 PIÈCES NEUVE à deux pas de Bordeaux, venez découvrir à Cestas (33610), cette maison de 4 pièces de plain-pied de 101 m².Son intérieur propose trois chambres, une cuisine et deux salles de bains. Cette maison est neuve.Le terrain du bien s’étend sur 600 m².L’École Maternelle Bourg, l’École Élémentaire Bourg et l’École Élementaire les Pierrettes sont implantées à moins de 10 minutes à pied. Niveau transports en commun, on trouve trois gares (Gazinet Cestas, Pessac Alouette et Pessac) à moins de 10 minutes en voiture. Les autoroutes A63 et A630 sont accessibles à moins de 7 km. Il y a des commerces, trois boulangeries, un bureau de poste, une épicerie et quatre boucheries-charcuteries à quelques minutes à peine. Enfin, le marché Place du Village a lieu chaque dimanche matin.Elle est à vendre pour la somme de 449 000 €.Contactez Sébastien CADIX ((Numéro supprimé)) pour plus d’informations sur cette maison ou sur les démarches à suivre. Faites de vos projets immobiliers une réalité avec Maisons de la Côte Atlantique Bordeaux.
Mérignac
TERRAIN ET MAISONConstruisez votre future maison sur la commune de Mérignac, dans le quartier prisé Les Eyquems.Choisissez So’9 Habitat pour vous accompagner dans votre projet, trouver le terrain adapté et concevoir une maison sur mesure.Nous sélectionnons et validons des opportunités foncières sur toute la métropole bordelaise.Optez par exemple pour ce magnifique terrain en première ligne de 655m2, sans aucun vis-à-vis, au calme dans une impasse et à proximité de l’arrêt de tram A Alfred de Vigny (ligne directe vers l’aéroport).Avec 30% d’emprise au sol et 30m de façade, ses dimensions généreuses vous permettent de bénéficier de possibilités multiples pour votre future construction.Contactez-nous rapidement pour une étude personnalisée de votre projet et la présentation des terrains disponibles.À bientôt,L’équipe So’9 HabitatSo’9 Habitat Bordeaux201 rue Georges Bonnac33000 BordeauxAnnonce proposée par un Agent Commercial Partenaire.
Cestas
TERRAIN ET MAISONCestas : maison F5 (130 m²) en venteIDÉALEMENT SITUÉE – MAISON 5 PIÈCES NEUVEÀ 23 km de la côte atlantique et à deux pas de Bordeaux, Maisons de la Côte Atlantique Le Barp vous présente à vendre, idéalement située dans Cestas (33610), cette maison de 5 pièces de 130 m². Son intérieur dispose de quatre chambres, d’une cuisine et d’une salle de bains.Le terrain de la propriété s’étend sur 600 m².Cette maison possède 2 niveaux. Elle est neuve.La maison est située dans un secteur attractif. L’École Maternelle Bourg, l’École Élémentaire Bourg et l’École Élementaire les Pierrettes sont implantées à moins de 10 minutes à pied. Niveau transports en commun, il y a les gares Gazinet Cestas, Pessac Alouette et Pessac à moins de 10 minutes en voiture. Les autoroutes A63 et A630 sont accessibles à moins de 7 km. On trouve des commerces, trois boulangeries, une épicerie, un bureau de poste et quatre boucheries-charcuteries dans les environs. Ne manquez pas le marché Place du Village chaque dimanche matin.Son prix de vente est de 493 610 €.Prenez contact avec Romain TEXIER (tél : (Numéro supprimé)) pour plus d’informations sur la maison. Maisons de la Côte Atlantique Le Barp vous accompagne dans tous vos projets immobiliers et dans toutes vos démarches.
Talence
TERRAIN ET MAISONTALENCE – Quartier PacarisTerrain de 300 m² + Projet de maison 90 m² avec garageExclusivité : terrain de 300 m² situé dans le quartier recherché de Pacaris à Talence, idéal pour un projet de construction personnalisé.Nous vous proposons, à titre indicatif, un exemple de maison contemporaine de 90 m² avec garage, parfaitement adaptée à la parcelle.Caractéristiques du terrain :Surface : 300 m²Environnement calme et résidentielProche commerces, écoles et transportsTerrain idéal pour une maison de 90 m² + garageOpportunité rare sur le secteurExemple de maison (modifiable) :90 m² habitablesGarage attenantGrande pièce de vie3 chambres possiblesMaison moderne, personnalisable selon vos besoinsNous accompagnons nos clients sur la recherche foncière, la conception sur mesure et la construction de leur maison.Contactez-nous pour une étude personnalisée de votre projet et la présentation des terrains disponibles. À bientôt, L’équipe So’9 HabitatSo’9 Habitat Bordeaux201 rue Georges Bonnac33000 Bordeaux Annonce proposée par un Agent Commercial Partenaire.
Cestas
TERRAIN ET MAISONVENTE : maison de 6 pièces (102 m²) à CestasIDÉALEMENT SITUÉE – MAISON 6 PIÈCES NEUVEÀ vendre à 23 km de la côte atlantique et à quelques kilomètres de Bordeaux, votre agence Maisons de la Côte Atlantique Le Barp est heureuse de vous présenter, idéalement située dans Cestas (33610), cette maison de 6 pièces de plain-pied de 102 m². Conçue de plain-pied, elle dispose de trois chambres, d’une cuisine et d’une salle de bains.Le terrain de la maison s’étend sur 600 m².La maison est neuve.Cette maison se trouve dans un secteur recherché. L’École Maternelle Bourg, l’École Élémentaire Bourg et l’École Élementaire les Pierrettes sont implantées à moins de 10 minutes à pied. Côté transports en commun, on trouve les gares Gazinet Cestas, Pessac Alouette et Pessac à moins de 10 minutes en voiture. Les autoroutes A63 et A630 sont accessibles à moins de 7 km. Il y a des commerces, trois boulangeries, quatre boucheries-charcuteries, un bureau de poste et une épicerie dans les environs. Enfin, le marché Place du Village a lieu tous les dimanches matin.Elle est à vendre pour la somme de 410 650 €.N’hésitez pas à prendre contact avec notre constructeur (Romain TEXIER : (Numéro supprimé)) pour plus d’informations sur la propriété, sur les modalités de vente ou sur les démarches à suivre. Faites de vos projets immobiliers une réalité avec Maisons de la Côte Atlantique Le Barp.
Cestas
TERRAIN ET MAISONMaison F6 (126 m²) en vente à CestasIDÉALEMENT SITUÉE – MAISON 6 PIÈCES NEUVEÀ vendre : localisée à 23 km de la côte atlantique et à 17 km de Bordeaux, découvrez cette maison de 6 pièces de 126 m² et de 600 m² de terrain idéalement située dans Cestas (33610).C’est une maison de 2 niveaux. Son intérieur propose trois chambres, une cuisine et deux salles de bains. La maison est neuve.La maison se situe dans un secteur attractif. L’École Maternelle Bourg, l’École Élémentaire Bourg et l’École Élementaire les Pierrettes se trouvent à moins de 10 minutes à pied. Niveau transports, il y a les gares Gazinet Cestas, Pessac Alouette et Pessac à moins de 10 minutes en voiture. Les autoroutes A63 et A630 sont accessibles à moins de 7 km. On trouve des commerces, trois boulangeries, un bureau de poste, une épicerie et quatre boucheries-charcuteries à proximité. Le marché Place du Village anime les environs tous les dimanches matin.Elle est proposée à l’achat pour 512 910 €.Contactez notre agence (Romain TEXIER : (Numéro supprimé)) pour obtenir de plus amples renseignements sur le bien ou sur les démarches à suivre. Maisons de la Côte Atlantique Le Barp vous accompagne dans tous vos projets immobiliers et à toutes les étapes de votre projet.
Cestas
TERRAIN ET MAISONMaison T7 (101 m²) à vendre à CestasIDÉALEMENT SITUÉE – MAISON 7 PIÈCES NEUVEEn vente : à 23 km de la côte atlantique et à quelques kilomètres de Bordeaux, Maisons de la Côte Atlantique Le Barp vous propose cette maison de 7 pièces de plain-pied de 101 m² et de 600 m² de terrain idéalement située dans Cestas (33610). Conçue de plain-pied, elle dispose de trois chambres, d’une cuisine et de deux salles de bains.Cette maison est neuve.La propriété est située dans un secteur convoité. L’École Maternelle Bourg, l’École Élémentaire Bourg et l’École Élementaire les Pierrettes se trouvent à moins de 10 minutes à pied. Niveau transports en commun, il y a les gares Gazinet Cestas, Pessac Alouette et Pessac à moins de 10 minutes en voiture. Les autoroutes A63 et A630 sont accessibles à moins de 7 km. On trouve des commerces, trois boulangeries, un bureau de poste, une épicerie et quatre boucheries-charcuteries à quelques minutes du logement. Enfin, le marché Place du Village a lieu chaque dimanche matin.Son prix de vente est de 409 040 €.Contactez notre agence (TEXIER Romain : (Numéro supprimé)) pour plus de renseignements sur la maison, sur les modalités de vente ou sur les démarches à suivre. Maisons de la Côte Atlantique Le Barp vous accompagne dans tous vos projets immobiliers et à toutes les étapes de votre projet.
Cestas
TERRAIN ET MAISONMaison de 3 pièces (100 m²) en vente à CestasMAISON 3 PIÈCES NEUVE – PROCHE DE BORDEAUXEn vente à deux pas de Bordeaux, nous vous présentons cette maison de 3 pièces de plain-pied de 100 m² à Cestas (33610). Son intérieur se divise en quatre chambres, une cuisine et deux salles de bains.Le terrain de la propriété s’étend sur 600 m².Cette maison est neuve.L’École Maternelle Bourg, l’École Élémentaire Bourg et l’École Élementaire les Pierrettes sont implantées à moins de 10 minutes à pied. Niveau transports en commun, on trouve trois gares (Gazinet Cestas, Pessac Alouette et Pessac) à moins de 10 minutes en voiture. Les autoroutes A63 et A630 sont accessibles à moins de 7 km. Il y a des commerces, trois boulangeries, une épicerie, quatre boucheries-charcuteries et un bureau de poste à quelques minutes. Enfin, le marché Place du Village a lieu chaque dimanche matin.Son prix de vente est de 435 000 €.Prenez contact avec Sébastien CADIX (tél : (Numéro supprimé)) pour tout renseignement sur la maison ou sur les démarches à suivre. Maisons de la Côte Atlantique Bordeaux est là pour vous accompagner à toutes les étapes de l’achat.
Cestas
TERRAIN ET MAISONCestas : maison T4 (107 m²) en venteIDÉALEMENT SITUÉE – MAISON 4 PIÈCES NEUVEEn vente : située à 53 km de la côte atlantique et à 17 km de Bordeaux, idéalement située dans Cestas (33610), nous vous proposons cette maison de 4 pièces de plain-pied de 107 m².Son intérieur dispose de trois chambres, d’une cuisine et de deux salles de bains. La maison est neuve.Le terrain de la propriété est de 773 m².La maison est située dans un secteur attractif. L’École Maternelle Bourg, l’École Élémentaire Bourg et l’École Élementaire les Pierrettes se trouvent à moins de 10 minutes à pied. Niveau transports en commun, il y a trois gares (Gazinet Cestas, Pessac Alouette et Pessac) à moins de 10 minutes en voiture. Les autoroutes A63 et A630 sont accessibles à moins de 7 km. On trouve des commerces, trois boulangeries, un bureau de poste, une épicerie et quatre boucheries-charcuteries à quelques minutes à peine. Enfin, le marché Place du Village a lieu chaque dimanche matin.Son prix de vente est de 470 430 €.Prenez contact avec notre agence (CAZAUBON David : (Numéro supprimé)) pour tout renseignement sur le bien. Faites de vos projets immobiliers une réalité avec Batisoft Bordeaux.
L’actualité immobilière à Pessac
27/11/2023
02/11/2023
30/10/2023
20/10/2023
16/10/2023
16/10/2023