Maison à construire à Sauternes (33210)
Images
Description
À Sauternes, à seulement quelques minutes de la gare de Langon et de l'autoroute A62, découvrez ce beau projet de construction sur un terrain boisé d'environ 950 m², situé dans un environnement résidentiel calme et recherché.
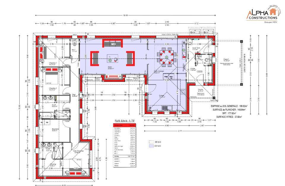
Nous vous proposons un projet de construction personnalisé avec cette maison contemporaine en L de 144 m² habitables, pensée pour offrir confort et luminosité au quotidien.
Elle se compose d'une grande pièce de vie traversante de près de 50 m² avec cuisine ouverte, donnant sur une belle terrasse et sa piscine. L'aile nuit comprend 3 chambres, une suite parentale avec dressing et salle d'eau, un bureau, une salle de bain familiale et un cellier attenant à la cuisine.
Cette maison séduit par son agencement fonctionnel, ses volumes équilibrés et ses nombreuses ouvertures vers l'extérieur. L'ensemble s'intègre parfaitement à ce cadre verdoyant, offrant un espace de vie moderne et paisible.
Le terrain permet d'aménager aisément un bel espace jardin et de profiter d'une vue dégagée sans vis-à-vis.
Un cadre de vie idéal pour ceux qui recherchent le calme de la nature tout en restant proches des commodités.
Pour étudier votre futur projet de construction, contactez Franck Hazera au (Numéro supprimé).
Logement susceptibles de vous intéresser
Nous vous proposons de découvrir aussi cette sélection de logements situés à moins de 10km de Sauternes et qui seraient susceptibles de vous intéresser.
Noaillan
TERRAINÀ deux pas de Langon, découvrez ce beau terrain plat d’environ 1 200 m² situé à Noaillan, dans un environnement verdoyant et paisible.Le cadre est idéal pour un projet de maison moderne ou traditionnelle, avec un jardin spacieux et sans vis-à-vis.Proximité immédiate des écoles, commerces et accès rapide à l’A62 vers Bordeaux.Une belle opportunité pour construire dans un secteur recherché, alliant calme et praticité.Pour étudier votre futur projet de construction, contactez Franck Hazera au (Numéro supprimé).
Langon
TERRAINÀ seulement 5 minutes de Langon, découvrez ce très beau terrain d’environ 700 m², situé dans une commune recherchée offrant un cadre de vie paisible et verdoyant.Le terrain, plat et bien exposé, permet d’envisager facilement un projet de construction avec jardin et terrasse. Son environnement calme, bordé de verdure, offre une belle intimité tout en restant à proximité des écoles, commerces et des accès vers l’autoroute A62.Un emplacement privilégié pour concilier sérénité, accessibilité et confort de vie, à quelques minutes seulement du centre de Langon.Une opportunité rare sur le secteur, à visiter sans tarder.Pour étudier votre futur projet de construction, contactez Franck Hazera au (Numéro supprimé).
Noaillan
TERRAIN ET MAISONÀ proximité immédiate de Langon, dans un environnement résidentiel calme et verdoyant, découvrez ce projet de maison neuve de 68 m² avec garage accolé, idéal pour un premier achat ou un projet de vie simple et fonctionnel.Cette maison comprend une belle pièce de vie lumineuse avec cuisine ouverte, deux chambres spacieuses avec rangements, une salle d’eau et un WC indépendant. Le garage accolé offre un espace pratique supplémentaire pour le stockage ou un futur atelier.Le terrain plat permet de profiter d’un jardin agréable, sans vis-à-vis, avec la possibilité d’ajouter terrasse ou carport selon vos envies. Construction conforme à la réglementation environnementale RE2020, garantissant confort et économie d’énergie.Un projet accessible et clé en main, proche de toutes commodités, à seulement quelques minutes de la gare et de l’autoroute A62.Pour étudier votre futur projet de construction, contactez Franck Hazera au (Numéro supprimé).
Noaillan
TERRAIN ET MAISONÀ seulement quelques minutes de Langon, dans un environnement calme et résidentiel, découvrez ce projet de maison neuve de 90 m² idéalement conçue pour une première acquisition.Son agencement fonctionnel comprend une pièce de vie lumineuse avec cuisine ouverte, trois chambres confortables, une salle de bain équipée et un cellier pratique. Le tout sur un terrain plat offrant un bel espace jardin et la possibilité d’un carport ou d’une terrasse.Une maison moderne, économe en énergie (RE2020) et facile à entretenir, alliant confort, praticité et budget maîtrisé, à proximité des écoles, commerces et axes principaux.Pour étudier votre futur projet de construction, contactez Franck Hazera au (Numéro supprimé).
Noaillan
TERRAIN ET MAISONÀ quelques minutes de Langon, dans un cadre naturel préservé, découvrez une maison contemporaine d’architecte de 231 m² sur un terrain d’environ 1 200 m².Son plan en H met en valeur des volumes lumineux et une circulation fluide entre les espaces intérieurs et extérieurs. Grand séjour traversant avec cuisine ouverte et charpente apparente, suite parentale avec dressing, trois chambres, bureau et terrasse couverte prolongée par le jardin.Un projet alliant esthétisme, confort et élégance dans un environnement calme et verdoyant, proche de toutes commodités et des accès vers Bordeaux.Pour étudier votre futur projet de construction, contactez Franck Hazera au (Numéro supprimé).
Langon
TERRAIN ET MAISONVENTE : maison F4 (80 m²) à Saint-MaixantQUARTIER RECHERCHÉ – MAISON 4 PIÈCES NEUVEContactez Hélène DEFFRESSIGNE (tél : (Numéro supprimé))En vente construite dans un quartier prisé de Saint-Maixant (33490), nous vous présentons cette maison de 4 pièces de plain-pied de 80 m² et de 1 084 m² de terrain.Son intérieur comporte trois chambres, une cuisine et une salle de bains. La maison est neuve.La maison se situe dans un secteur convoité. L’École Primaire François Mauriac se trouve à moins de 10 minutes à pied. Niveau transports, il y a sept gares à moins de 10 minutes en voiture. On trouve un accès à l’autoroute A62 à 4 km. On trouve deux tennis, une boulangerie, un commerce, un supermarché et une épicerie à proximité.Son prix de vente est de 197 440 €.Contactez Hélène DEFFRESSIGNE ((Numéro supprimé)) pour toute question sur la propriété ou sur les modalités de vente.
Langon
TERRAIN ET MAISONVENTE d’une maison T3 (90 m²) à Saint-MaixantQUARTIER RECHERCHÉ – MAISON 3 PIÈCES NEUVEContactez Hélène DEFFRESSIGNE (tél : (Numéro supprimé))À vendre : nichée dans un quartier recherché de Saint-Maixant (33490), votre agence Maisons de la Côte Atlantique Langon est ravie de vous présenter cette maison de 3 pièces de plain-pied de 90 m².Conçue de plain-pied, elle offre trois chambres, une cuisine et une salle de bains. La maison est neuve.Le terrain de la propriété s’étend sur 1 030 m².Cette maison est située dans un secteur convoité. Il y a l’École Primaire François Mauriac à moins de 10 minutes à pied. Niveau transports, on trouve sept gares à moins de 10 minutes en voiture. On trouve un accès à l’autoroute A62 à 4 km. Il y a deux tennis, une boulangerie, un commerce, un supermarché et une épicerie à proximité.Son prix de vente est de 225 300 €.N’hésitez pas à prendre contact avec notre agence (DEFFRESSIGNE Hélène : (Numéro supprimé)) pour tout renseignement sur la maison ou sur les démarches à suivre.
Langon
TERRAIN ET MAISONVENTE : maison T6 (100 m²) à Saint-MaixantQUARTIER RECHERCHÉ – MAISON 6 PIÈCES NEUVEContactez Hélène DEFFRESSIGNE (tél : (Numéro supprimé))Ayez le coup de coeur pour cette maison de 6 pièces de plain-pied de 100 m² à vendre, dans un quartier prisé de Saint-Maixant (33490).Elle comporte trois chambres, une cuisine et deux salles de bains. Cette maison est neuve.Le terrain du bien s’étend sur 1 030 m².La maison se trouve dans un secteur convoité. Il y a l’École Primaire François Mauriac à moins de 10 minutes à pied. Niveau transports, on trouve sept gares à moins de 10 minutes en voiture. Il y a un accès à l’autoroute A62 à 4 km. Il y a deux tennis, une boulangerie, un commerce, un supermarché et une épicerie dans les environs.Elle est proposée à l’achat pour 247 540 €.Contactez notre agence (Hélène DEFFRESSIGNE : (Numéro supprimé)) pour toute question sur la maison.
Saint-Maixant
TERRAINVENTE : terrain de 1 040 m² à Saint-MaixantQUARTIER RECHERCHÉContactez Hélène DEFFRESSIGNE (tél : (Numéro supprimé))À Saint-Maixant (33490) dans un secteur recherché, venez découvrir ce terrain de 1 040 m². Il donne sur un jardin et bénéficie d’une exposition sud-ouest. Dans un quartier prisé, le terrain est proche des commerces et des écoles. Il y a l’École Primaire François Mauriac à moins de 10 minutes à pied. Niveau transports, on trouve sept gares à moins de 10 minutes en voiture. On trouve un accès à l’autoroute A62 à 4 km. Il y a deux tennis, une boulangerie, un commerce, un supermarché et une épicerie dans les environs.Son prix de vente est de 73 150 €. Prenez contact avec Hélène DEFFRESSIGNE ((Numéro supprimé)) pour obtenir de plus amples informations sur le terrain, sur les démarches à suivre ou sur les modalités de vente. Maisons de la Côte Atlantique Langon est là pour vous accompagner dans tous vos projets immobiliers.
L’actualité immobilière à Sauternes
27/11/2023
02/11/2023
30/10/2023
20/10/2023
16/10/2023
16/10/2023