Maison neuve à Saint-Aubin-de-Médoc (33160)
Images
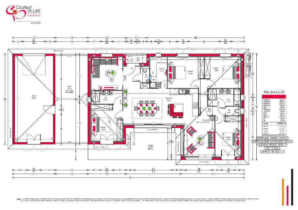
Description
venez découvrir ce joli projet de construction sur la commune de Saint Aubin de Médoc. idéalement situé en plein coeur de ville, à proximité de tous les commerces, écoles et transports.
située au calme et sans vis a vis, ce terrain piscinable est fait pour vous.
la maison de 4 chambres proposée est personnalisable à souhaits et bénéficie de prestations haut de gamme.
N'hésitez pas à prendre contact avec notre agence (MICHEL Thomas : (Numéro supprimé)) pour toute question sur la maison. Couleur Villas Villenave-d'Ornon est là pour vous accompagner dans toutes vos démarches
Logement susceptibles de vous intéresser
Nous vous proposons de découvrir aussi cette sélection de logements situés à moins de 10km de Saint-Aubin-de-Médoc et qui seraient susceptibles de vous intéresser.
Saint-Médard-en-Jalles
TERRAIN ET MAISONJoli parcelle de 518 m² sur la commune de Saint Médard en Jalles. Proche des commerces, écoles et transports accessibles à pieds, ce terrain est idéalement situé. Contactez nous pour une visite et envisager ensemble votre futur projet de construction. . Une maison spacieuse et fonctionnelle, idéale pour toute la famille ! Avec son grand espace de vie lumineux, cette maison allie confort et convivialité. Le rez-de-chaussée accueille un salon, une salle à manger et une cuisine ouverte, accompagnés d’un cellier pratique, d’une salle d’eau et d’un WC indépendant. Une chambre supplémentaire offre flexibilité et confort. À l’étage, trois chambres généreuses, une salle de bain moderne et un second WC garantissent bien-être et praticité au quotidien. Un design moderne et optimisé pour un cadre de vie agréable !. Pour vous assurer un confort de vie optimal et en conformité avec la RE2025, nous avons opté pour un système de chauffage par pompe à chaleur (PAC) avec plancher chauffant au rez-de-chaussée et radiateurs à l’étage. Le logement est également équipé de volets roulants électriques. Prix hors fourniture et pose : des appareils sanitaires (sauf système de chauffage et d'eau chaude sanitaire), du carrelage et de la faïence, des revêtements de sol dans les chambres. Hors décoration et aménagement intérieur et peinture. Hors raccordements, frais de notaire et dommage ouvrage. // Réf. : 2533-210904-MAV. Prix terrain : 198 000 €, hors frais d'agence à la charge de l'acquéreur. Ce terrain vous est proposé, par nos partenaires fonciers, dans le cadre d'un projet de construction avec nous. Les informations sur les risques auxquels ce bien est exposé sont disponibles sur le site Géorisques (www.georisques.gouv.fr). Prix maison : 166 483 €.
Saint-Médard-en-Jalles
TERRAIN ET MAISONJoli parcelle de 518 m² sur la commune de Saint Médard en Jalles. Proche des commerces, écoles et transports accessibles à pieds, ce terrain est idéalement situé. Contactez nous pour une visite et envisager ensemble votre futur projet de construction. . Une maison spacieuse et fonctionnelle, idéale pour toute la famille ! Avec son design moderne et son agencement optimisé, cette maison offre un cadre de vie agréable et lumineux, parfait pour répondre aux besoins de chacun. Au rez-de-chaussée, vous profitez d’un vaste espace de vie ouvert, alliant salon, salle à manger et cuisine dans une atmosphère chaleureuse et conviviale. Un cellier pratique facilite l’organisation et le rangement du quotidien. La suite parentale avec dressing et salle d’eau privative garantit un confort optimal aux parents, offrant un véritable espace d’intimité. À l’étage, trois belles chambres bien réparties permettent à toute la famille de disposer de son propre cocon. Une grande salle de bain et un WC indépendant complètent cet étage pour plus de praticité. Une maison élégante, confortable et pensée pour s’adapter aux modes de vie modernes !. Pour vous assurer un confort de vie optimal et en conformité avec la RE2025, nous avons opté pour un système de chauffage par pompe à chaleur (PAC) avec plancher chauffant au rez-de-chaussée et radiateurs à l’étage. Le logement est également équipé de volets roulants électriques. Prix hors fourniture et pose : des appareils sanitaires (sauf système de chauffage et d'eau chaude sanitaire), du carrelage et de la faïence, des revêtements de sol dans les chambres. Hors décoration et aménagement intérieur et peinture. Hors raccordements, frais de notaire et dommage ouvrage. // Réf. : 1565-210904-MAV. Prix terrain : 198 000 €, hors frais d'agence à la charge de l'acquéreur. Ce terrain vous est proposé, par nos partenaires fonciers, dans le cadre d'un projet de construction avec nous. Les informations sur les risques auxquels ce bien est exposé sont disponibles sur le site Géorisques (www.georisques.gouv.fr). Prix maison : 171 689 €.
Saint-Aubin-de-Médoc
TERRAIN ET MAISONIssue d'une division parcellaire acceptée, ce terrain est libre de constructeur et sera en partie viabilisé (tout à l'égout, eau et électricité). Vous aurez la possibilité d'y construire une maison d'une surface habitable d'environ 125 m², avec une annexe de 16 m² environ pouvant servir de garage. Proche des commodités, écoles et transport l'emplacement est idéal ! . Une maison spacieuse et fonctionnelle, idéale pour toute la famille ! Avec son grand espace de vie lumineux, cette maison allie confort et convivialité. Le rez-de-chaussée accueille un salon, une salle à manger et une cuisine ouverte, accompagnés d’un cellier pratique, d’une salle d’eau et d’un WC indépendant. Une chambre supplémentaire offre flexibilité et confort. À l’étage, trois chambres généreuses, une salle de bain moderne et un second WC garantissent bien-être et praticité au quotidien. Un design moderne et optimisé pour un cadre de vie agréable !. Pour vous assurer un confort de vie optimal et en conformité avec la RE2025, nous avons opté pour un système de chauffage par pompe à chaleur (PAC) avec plancher chauffant au rez-de-chaussée et radiateurs à l’étage. Le logement est également équipé de volets roulants électriques. Prix hors fourniture et pose : des appareils sanitaires (sauf système de chauffage et d'eau chaude sanitaire), du carrelage et de la faïence, des revêtements de sol dans les chambres. Hors décoration et aménagement intérieur et peinture. Hors raccordements, frais de notaire et dommage ouvrage. // Réf. : 2533-210898-MAV. Prix terrain : 225 000 €, hors frais d'agence à la charge de l'acquéreur. Ce terrain vous est proposé, par nos partenaires fonciers, dans le cadre d'un projet de construction avec nous. Les informations sur les risques auxquels ce bien est exposé sont disponibles sur le site Géorisques (www.georisques.gouv.fr). Prix maison : 166 483 €.
Saint-Aubin-de-Médoc
TERRAIN ET MAISONIssue d'une division parcellaire acceptée, ce terrain est libre de constructeur et sera en partie viabilisé (tout à l'égout, eau et électricité). Vous aurez la possibilité d'y construire une maison d'une surface habitable d'environ 125 m², avec une annexe de 16 m² environ pouvant servir de garage. Proche des commodités, écoles et transport l'emplacement est idéal ! . Familiale et fonctionnelle cette maison de 106 m² habitables vous séduira par ses volumes et son aménagement. Son très bel espace de vie de 47 m² environ avec sa cuisine ouverte avec accès direct au jardin grâce à sa baie vitrée. L’espace nuit est composé d’une suite parentale avec dressing et salle d’eau privative, à l’opposé trois chambres avec rangements, une salle de bains indépendantePour vous assurer un confort de vie et conformèment à la RE2025, nous avons chosi un mode de chauffage par PAC + plancher chauffant, volets roulants électriques, Prix hors fourniture et pose : des appareils sanitaires (sauf système de chauffage et d'eau chaude sanitaire), du carrelage et de la faïence, des revêtements de sol dans les chambres. Hors décoration et aménagement intérieur et peinture. Hors raccordements, frais de notaire et dommage ouvrage. // Réf. : 1244-210898-MAV. Prix terrain : 225 000 €, hors frais d'agence à la charge de l'acquéreur. Ce terrain vous est proposé, par nos partenaires fonciers, dans le cadre d'un projet de construction avec nous. Les informations sur les risques auxquels ce bien est exposé sont disponibles sur le site Géorisques (www.georisques.gouv.fr). Prix maison : 137 262 €.
Saint-Aubin-de-Médoc
TERRAIN ET MAISONIssue d'une division parcellaire acceptée, ce terrain est libre de constructeur et sera en partie viabilisé (tout à l'égout, eau et électricité). Vous aurez la possibilité d'y construire une maison d'une surface habitable d'environ 125 m², avec une annexe de 16 m² environ pouvant servir de garage. Proche des commodités, écoles et transport l'emplacement est idéal ! . Spacieuse et fonctionnelle, cette maison de plain-pied vous propose un bel espace de vie lumineux de 46 m² environ , avec une grande baie vitrée donnant sur le jardin. Sa cuisine est ouverte sur le séjour et dispose d'un accès direct au cellier, et au garage intégré. Son espace nuit est composé de trois chambres avec rangements, d'une salle de bains et de wc séparés. Pour vous assurer un confort de vie et conformément à la RE2025, nous avons choisi un mode de chauffage par PAC + plancher chauffant, volets roulants électriques, Prix hors fourniture et pose : des appareils sanitaires (sauf système de chauffage et d'eau chaude sanitaire), du carrelage et de la faïence, des revêtements de sol dans les chambres. Hors décoration et aménagement intérieur et peinture. Hors raccordements, frais de notaire et dommage ouvrage. // Réf. : 855-210898-MAV. Prix terrain : 225 000 €, hors frais d'agence à la charge de l'acquéreur. Ce terrain vous est proposé, par nos partenaires fonciers, dans le cadre d'un projet de construction avec nous. Les informations sur les risques auxquels ce bien est exposé sont disponibles sur le site Géorisques (www.georisques.gouv.fr). Prix maison : 128 416 €.
Saint-Médard-en-Jalles
TERRAIN ET MAISONJoli parcelle de 518 m² sur la commune de Saint Médard en Jalles. Proche des commerces, écoles et transports accessibles à pieds, ce terrain est idéalement situé. Contactez nous pour une visite et envisager ensemble votre futur projet de construction. . Fonctionnelle et lumineuse, cette maison de plain-pied vous propose un espace de vie de plus de 42 m²ouvert sur le jardin et sa cuisine ouverte aménagée avec un accès direct au cellier et à son garage intégré. La partie nuit est composée de trois chambres avec rangement, une salle de bain et wc indépendantPour vous assurer un confort de vie et conformèment à la RE2025, nous avons chosi un mode de chauffage par PAC + plancher chauffant, volets roulants électriques, Prix hors fourniture et pose : des appareils sanitaires (sauf système de chauffage et d'eau chaude sanitaire), du carrelage et de la faïence, des revêtements de sol dans les chambres. Hors décoration et aménagement intérieur et peinture. Hors raccordements, frais de notaire et dommage ouvrage. // Réf. : 1208-210904-MAV. Prix terrain : 198 000 €, hors frais d'agence à la charge de l'acquéreur. Ce terrain vous est proposé, par nos partenaires fonciers, dans le cadre d'un projet de construction avec nous. Les informations sur les risques auxquels ce bien est exposé sont disponibles sur le site Géorisques (www.georisques.gouv.fr). Prix maison : 119 925 €.
Saint-Aubin-de-Médoc
TERRAINIssue d'une division parcellaire acceptée, ce terrain est libre de constructeur et sera en partie viabilisé (tout à l'égout, eau et électricité). Vous aurez la possibilité d'y construire une maison d'une surface habitable d'environ 125 m², avec une annexe de 16 m² environ pouvant servir de garage. Proche des commodités, écoles et transport l'emplacement est idéal ! . // Réf. : T210898. Prix terrain : 225 000 €, hors frais d'agence et de notaire à la charge de l'acquéreur. Ce terrain vous est proposé, par nos partenaires fonciers, dans le cadre d'un projet de construction avec nous. Les informations sur les risques auxquels ce bien est exposé sont disponibles sur le site Géorisques (www.georisques.gouv.fr).
Saint-Médard-en-Jalles
TERRAINJoli parcelle de 518 m² sur la commune de Saint Médard en Jalles. Proche des commerces, écoles et transports accessibles à pieds, ce terrain est idéalement situé. Contactez nous pour une visite et envisager ensemble votre futur projet de construction. . // Réf. : T210904. Prix terrain : 198 000 €, hors frais d'agence et de notaire à la charge de l'acquéreur. Ce terrain vous est proposé, par nos partenaires fonciers, dans le cadre d'un projet de construction avec nous. Les informations sur les risques auxquels ce bien est exposé sont disponibles sur le site Géorisques (www.georisques.gouv.fr).
Saint-Aubin-de-Médoc
TERRAINUne Opportunité Exceptionnelle dans un Cadre Paisible ! Nous vous proposons un terrain à bâtir de 930 m², idéalement situé à Saint-aubin du médoc. Ce bien rare, plat et bien exposé , convivial pour tous vos projets de construction, est localisé dans un environnement calme et verdoyant. Détails du Terrain : – Superficie : 930 m², parfait pour bâtir la maison de vos rêves.- Terrain Plat : Facilité de construction et d’aménagement.- Accès Piste Cyclable : Idéal pour les cyclistes et les amateurs de balades en plein air.- Environnement Tranquille : vous bénéficierez d’un cadre de vie serein.- Commodités à Proximité : Commerces, écoles et services accessibles facilement, facilitant votre quotidien. Pourquoi Choisir Ce Terrain ? Ce projet est une opportunité unique de créer un espace de vie sur mesure, adapté à vos besoins et à ceux de votre famille. Que ce soit pour une maison familiale spacieuse ou un havre de paix, ce terrain vous offre toutes les possibilités. Terrain proposé dans le cadre d’un projet de construction avec Alpha Constructions / Groupe HDV. Prenez contact avec notre agence jean-georges Delrieu : (Numéro supprimé) pour toute question sur le terrain, sur les modalités de vente ou sur les démarches à suivre. Alpha Constructions Castelnau-de-Médoc est là pour vous accompagner à toutes les étapes de l’achat.
L’actualité immobilière à Saint-Aubin-de-Médoc
27/11/2023
02/11/2023
30/10/2023
20/10/2023
16/10/2023
16/10/2023