Maison à construire à Saint-Médard-en-Jalles (33160)
Images
Description
Saint Medard en Jalles (proximité le haillan / Le Taillan Médoc / Saint Aubin de médoc). Terrain à bâtir de 1 805 m² avec projet de maison à étage partiel - Saint-Médard-en-Jalles
Situé au calme, en fond de parcelle, ce superbe terrain à bâtir de 1 800 m² offre un cadre de vie privilégié, alliant tranquillité et proximité des commodités de Saint-Médard-en-Jalles.
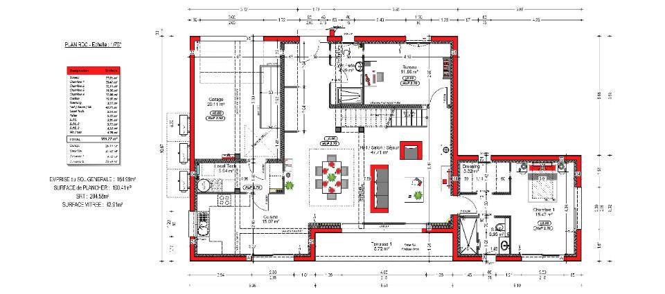
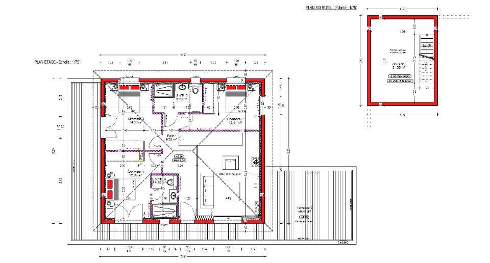
Le terrain permet la réalisation d'un projet de maison contemporaine à étage partiel d'environ 265 m² habitables, modulable selon vos envies.Cette maison, pensée pour le confort et la luminosité, propose :
Un vaste séjour avec cuisine ouverte, baigné de lumière naturelle grâce à de grandes baies vitrées,
Une terrasse couverte idéale pour profiter de l'extérieur en toute saison,
Trois chambres spacieuses et une suite parentale avec dressing et salle d'eau,
Un bureau en rez-de-chaussée, parfait pour le télétravail ou un espace indépendant,
Un plan évolutif permettant d'adapter le projet à vos besoins et à votre style de vie.
Les atouts du bien :
Environnement calme et verdoyant, sans vis-à-vis,
Accès rapide aux commerces, écoles et transports,
Terrain plat et aisément constructible,
Possibilité de personnaliser totalement le projet.
Un cadre idéal pour concrétiser votre projet de vie à Saint-Médard-en-Jalles !
Prenez contact avec notre agence Matthieu GIRARD : (Numéro supprimé) pour toute question sur le terrain, sur les modalités de vente ou sur les démarches à suivre. Alpha Constructions Castelnau-de-Médoc est là pour vous accompagner à toutes les étapes de l'achat.
Logement susceptibles de vous intéresser
Nous vous proposons de découvrir aussi cette sélection de logements situés à moins de 10km de Saint-Médard-en-Jalles et qui seraient susceptibles de vous intéresser.
  
 
 Saint-Médard-en-Jalles
TERRAINTerrain de 800m2 situé dans le quartier Hastignan proches de toutes les commodités, des des écoles élémentaire et d’une piste cyclable. Clôturé sur 3 côtés et arboré, Vous pourrez réaliser un plain pied ou un étage. Contactez Yoann OLLIVIER, Villas Melrose au (Numéro supprimé).
  
 
 Mérignac
TERRAIN ET MAISONMaison de 6 pièces (132 m²) en vente à MérignacPROCHE GARE – MAISON 6 PIÈCES NEUVEÀ vendre : située à 17 km de la côte atlantique, Maisons de la Côte Atlantique Biganos vous présente, dans Mérignac (33700), proche de la gare, cette maison de 6 pièces de 132 m². Elle compte trois chambres, une cuisine et deux salles de bains.Le terrain de la maison s’étend sur 500 m².C’est une maison de 2 niveaux. Elle est neuve.Il y a l’École Primaire Ferdinand Buisson à moins de 10 minutes à pied et deux crèches. Côté transports en commun, on trouve six gares à moins de 10 minutes en voiture. L’autoroute A630 est accessible à 1 km. Il y a un tennis, une bibliothèque, de nombreux commerces et une épicerie dans les environs.Son prix de vente est de 620 000 €.Contactez Laurent BOLZER (tél : (Numéro supprimé)) pour obtenir de plus amples informations sur la maison. Maisons de la Côte Atlantique Biganos est là pour vous accompagner dans tous vos projets immobiliers.
  
 
 Le Taillan-Médoc
TERRAINCe terrain de 524 m² au Taillan-Médoc, vendu 210 000 €, offre un bel emplacement alliant calme et accessibilité. Vous apprécierez la proximité immédiate de Bordeaux et la qualité de vie typique des communes du Médoc. // Réf. : T210719. Prix terrain : 210 000 €, hors frais d'agence et de notaire à la charge de l'acquéreur. Ce terrain vous est proposé, par nos partenaires fonciers, dans le cadre d'un projet de construction avec nous. Les informations sur les risques auxquels ce bien est exposé sont disponibles sur le site Géorisques (www.georisques.gouv.fr).
  
 
 Le Taillan-Médoc
TERRAINÀ Le Taillan-Médoc, commune recherchée aux portes de Bordeaux, découvrez ce terrain constructible de 565 m², idéalement situé dans un quartier calme et verdoyant. À proximité des commerces, écoles et transports, il offre un cadre de vie familial et privilégié à seulement 15 minutes de Bordeaux. Parfait pour bâtir votre maison dans un secteur dynamique et nature. À saisir vite !. // Réf. : T210682. Prix terrain : 230 000 €, hors frais d'agence et de notaire à la charge de l'acquéreur. Ce terrain vous est proposé, par nos partenaires fonciers, dans le cadre d'un projet de construction avec nous. Les informations sur les risques auxquels ce bien est exposé sont disponibles sur le site Géorisques (www.georisques.gouv.fr).
  
 
 Le Taillan-Médoc
TERRAIN ET MAISONCe terrain de 524 m² au Taillan-Médoc, vendu 210 000 €, offre un bel emplacement alliant calme et accessibilité. Vous apprécierez la proximité immédiate de Bordeaux et la qualité de vie typique des communes du Médoc. Vous serez séduits par la luminosité qui se dégage de cette maison de plain-pied qui vous propose un espace de vie spacieux de 46 m² environ ouvert sur le jardin avec un coin cuisine aménagée. Trois belles chambres avec rangements, une salle de bains et wc indépendant. Le plus pour cette maison fonctionnelle, un cellier et un garage intégréPour vous assurer un confort de vie et conformèment à la RE2025, nous avons chosi un mode de chauffage par PAC + plancher chauffant, volets roulants électriques, Prix hors fourniture et pose : des appareils sanitaires (sauf système de chauffage et d'eau chaude sanitaire), du carrelage et de la faïence, des revêtements de sol dans les chambres. Hors décoration et aménagement intérieur et peinture. Hors raccordements, frais de notaire et dommage ouvrage. // Réf. : 1226-210719-MIP. Prix terrain : 210 000 €, hors frais d'agence à la charge de l'acquéreur. Ce terrain vous est proposé, par nos partenaires fonciers, dans le cadre d'un projet de construction avec nous. Les informations sur les risques auxquels ce bien est exposé sont disponibles sur le site Géorisques (www.georisques.gouv.fr). Prix maison : 127 515 €.
  
 
 Le Taillan-Médoc
TERRAIN ET MAISONCe terrain de 524 m² au Taillan-Médoc, vendu 210 000 €, offre un bel emplacement alliant calme et accessibilité. Vous apprécierez la proximité immédiate de Bordeaux et la qualité de vie typique des communes du Médoc. Vous serez séduits par cette maison contemporaine qui se distingue par son porche en façade et ses enduits bi-ton personnalisable. Elle vous accueille dans un très bel espace de vie de plus de 44 m² très lumineux grâce à ses nombreuses ouvertures. La cuisine ouverte est très fonctionnelle puisqu’à la fois ouverte sur le séjour et accolée au cellier. L’espace nuit est composé de trois chambres avec tous les rangements nécessaires ainsi que d’une salle de bain et des wc séparés. Le plus de cette maison est sans nul doute son garage intégré. Pour vous assurer un confort de vie et conformément à la RE2025, nous avons choisi un mode de chauffage par PAC + plancher chauffant, volets roulants électriques. Prix hors fourniture et pose : des appareils sanitaires (sauf système de chauffage et d'eau chaude sanitaire), du carrelage et de la faïence, des revêtements de sol dans les chambres. Hors décoration et aménagement intérieur et peinture. Hors raccordements, frais de notaire et dommage ouvrage. // Réf. : 630-210719-MIP. Prix terrain : 210 000 €, hors frais d'agence à la charge de l'acquéreur. Ce terrain vous est proposé, par nos partenaires fonciers, dans le cadre d'un projet de construction avec nous. Les informations sur les risques auxquels ce bien est exposé sont disponibles sur le site Géorisques (www.georisques.gouv.fr). Prix maison : 129 756 €.
  
 
 Le Taillan-Médoc
TERRAIN ET MAISONCe terrain de 524 m² au Taillan-Médoc, vendu 210 000 €, offre un bel emplacement alliant calme et accessibilité. Vous apprécierez la proximité immédiate de Bordeaux et la qualité de vie typique des communes du Médoc. Familiale et lumineuse. Le modèle PANAY vous propose un plan de maison très astucieux. Cette maison est idéalement agencée avec une entrée sur un grand espace de vie et une cuisine ouverte accolée au cellier. La « zone jour » et délimitée de la « zone nuit » par un dégagement qui dessert quatre belles chambres, une salle de bain et les wc séparés. Pour le côté pratique, le garage est intégré à la maisonPour vous assurer un confort de vie et conformèment à la RE2025, nous avons chosi un mode de chauffage par PAC + plancher chauffant, volets roulants électriques, Prix hors fourniture et pose : des appareils sanitaires (sauf système de chauffage et d'eau chaude sanitaire), du carrelage et de la faïence, des revêtements de sol dans les chambres. Hors décoration et aménagement intérieur et peinture. Hors raccordements, frais de notaire et dommage ouvrage. // Réf. : 1154-210719-MIP. Prix terrain : 210 000 €, hors frais d'agence à la charge de l'acquéreur. Ce terrain vous est proposé, par nos partenaires fonciers, dans le cadre d'un projet de construction avec nous. Les informations sur les risques auxquels ce bien est exposé sont disponibles sur le site Géorisques (www.georisques.gouv.fr). Prix maison : 123 217 €.
  
 
 Le Taillan-Médoc
TERRAINCe terrain de 524 m² au Taillan-Médoc, vendu 210 000 €, offre un bel emplacement alliant calme et accessibilité. Vous apprécierez la proximité immédiate de Bordeaux et la qualité de vie typique des communes du Médoc. // Réf. : T210719. Prix terrain : 210 000 €, hors frais d'agence et de notaire à la charge de l'acquéreur. Ce terrain vous est proposé, par nos partenaires fonciers, dans le cadre d'un projet de construction avec nous. Les informations sur les risques auxquels ce bien est exposé sont disponibles sur le site Géorisques (www.georisques.gouv.fr).
  
 
 Le Taillan-Médoc
TERRAINÀ Le Taillan-Médoc, commune recherchée aux portes de Bordeaux, découvrez ce terrain constructible de 565 m², idéalement situé dans un quartier calme et verdoyant. À proximité des commerces, écoles et transports, il offre un cadre de vie familial et privilégié à seulement 15 minutes de Bordeaux. Parfait pour bâtir votre maison dans un secteur dynamique et nature. À saisir vite !. // Réf. : T210682. Prix terrain : 230 000 €, hors frais d'agence et de notaire à la charge de l'acquéreur. Ce terrain vous est proposé, par nos partenaires fonciers, dans le cadre d'un projet de construction avec nous. Les informations sur les risques auxquels ce bien est exposé sont disponibles sur le site Géorisques (www.georisques.gouv.fr).
L’actualité immobilière à Saint-Médard-en-Jalles
 
 27/11/2023
 
 
 
 02/11/2023
 
 
 
 30/10/2023
 
 
 
 20/10/2023
 
 
 
 16/10/2023
 
 
 
 16/10/2023